Mieszkanie na sprzedaż bez pośredników
ul. Konduktorska Warszawa Mokotów

Mieszkanie 4-pokojowe Warszawa Mokotów, ul. Konduktorska. Zdjęcie 1

Mieszkanie na sprzedaż bez pośredników Warszawa Mokotów ul. Konduktorska · 1 piętro

1 620 000
14 986 zł/m²
108
4 pok.
Warszawa Mokotów, Konduktorska - lokalizacja przybliżona
Bezpośrednio od właściciela

Jeśli nie potrzebujesz pośrednika, zaoszczędzisz około 48 600 zł. Potrzebujesz wsparcia? Skorzystaj z pomocy agenta.

Bezpośrednio sprzedam przestronne i ciche mieszkanie z garażem, położone na granicy Górnego i Dolnego Mokotowa, przy ulicy Konduktorskiej.

Nieruchomość znajduje się na pierwszym piętrze w apartamentowcu z lat '90. Budynek jest strzeżony, posiada świeżo wyremontowaną portiernię (2024) i windy.

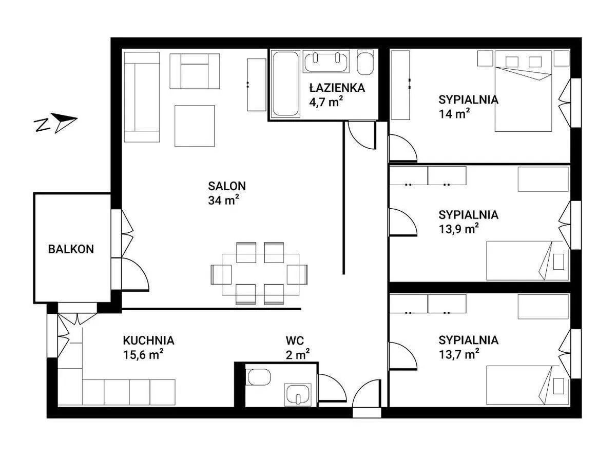
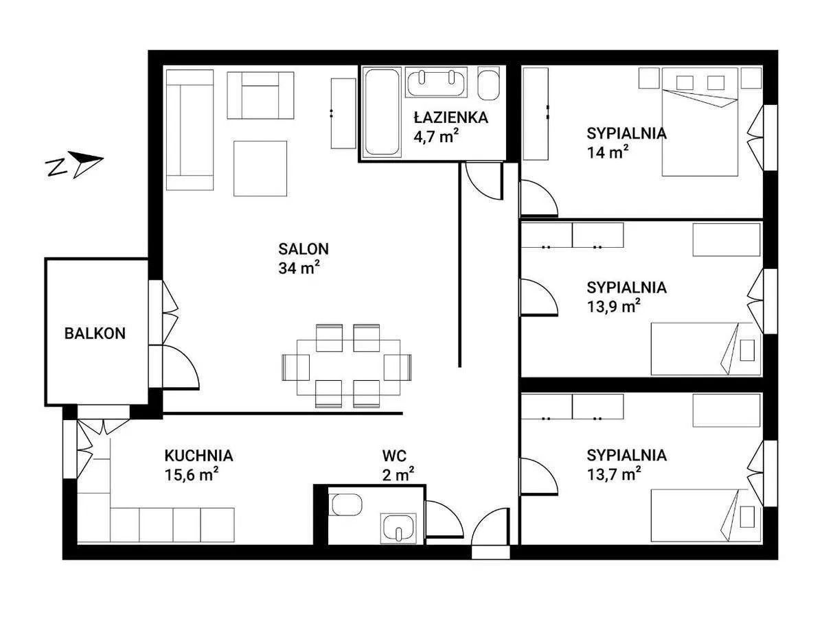
Mieszkanie składa się z:
- dużego salonu,
- trzech sypialni,
- przedpokoju,
- dużej widnej kuchni,
- dwóch łazienek,
- hallu,
- oraz balkonu.

Do mieszkania przynależy garaż o powierzchni 16,3 m2 z oddzielną księgą wieczystą.

Mieszkanie jest dwustronne, ustawne i rozkładowe. Okna salonu, kuchni oraz balkon wychodzą na zieloną i spokojną ulicę Konduktorską (południowy zachód), okna pokoi sypialnych - na podwórze (północny wschód).

Zbliżona wielkość trzech pokoi sypialnych sprawia, że przestrzeń jest dobrze zagospodarowana. Nieruchomość stwarza duże możliwości aranżacyjne - jedynie jedna ściana w mieszkaniu jest ścianą nośną. Istnieje możliwość (m.in.):
- połączenia kuchni z salonem,
- otworzenia salonu na przedpokój,
- powiększenia łazienki,
- połączenia pokoi sypialnych.

Istnieje możliwość parkowania drugiego samochodu na zamkniętym podwórku przed garażem przynależącym do mieszkania.

Lokalizacja świetnie skomunikowana z centrum Warszawy:
- samochód 10-15 min,
- komunikacja miejska 22 min.

Przystanek autobusowy Dolna oddalony od mieszkania 2 min piechotą, przystanek tramwajowy Dolna - 5 min.

Okolica otoczona zielenią i parkami: 3 minuty do Parku Morskie Oko, 8 minut do kompleksu sportowego Warszawianka. W pobliżu szkoły, przedszkola, restauracje, kawiarnie, Aquapark, stacja Orlen oraz Biedronka.

Salon - 34 m2
Kuchnia - 15,6 m2
Pokój sypialny nr 1 - 14 m2
Pokój sypialny nr 2 - 13,9 m2
Pokój sypialny nr 3 - 13,7 m2
Łazienka z wanną - 4,7 m2
Toaleta - 2 m2

Wysokość pomieszczeń: 275 cm.

Cena lokalu: 1 620 000 zł
Cena garażu: 90 000 zł

  • Na sprzedaż mieszkanie 4-pokojowe o powierzchni 108,10 m² balkon, garaż
  • 1 piętro w 4-piętrowym apartamentowcu z windą, rok budowy 1999
  • Warszawa, Mokotów ul. Konduktorska
  • Oferta bezpośrednio od właściciela dodana ponad miesiąc temu i zaktualizowana ponad tydzień temu
Ta nieruchomość może być Twoja od.. sprawdź
324000 zł (20%) Okres spłaty: 30 lat

Podobne mieszkania na sprzedaż

15
Mieszkanie 4-pokojowe Warszawa Mokotów, ul. Jana Pawła Woronicza

1 650 000

69

4 pok.

Przedstawiam na sprzedaż komfortowe, dobrze zaplanowane mieszkanie o powierzchni 69,58 m², usytuowane na 5. (z 6) piętrze nowoczesnego apartamentowca z 2019 roku, znajdujące się na warszawskim Mokotowie. Atuty mieszkania: - idealny układ pomieszczeń - mieszkanie jest wyjątkowo przestronne, funkcjon...

Zobacz ogłoszenie
10
Mieszkanie 4-pokojowe Warszawa Mokotów, ul. Jana Sebastiana Bacha

1 600 000

88

4 pok.

4-pokojowe mieszkanie zlokalizowane na Mokotowie przy ul. Jana Sebastiana Bacha BUDYNEK/OSIEDLE Mieszkanie znajduje się na 2 piętrze w 4 piętrowym budynku Rok budowy: budynek z lat 80-tych. NIERUCHOMOŚĆ Mieszkanie o powierzchni 88m2 składa się z: - przedpokój ok. 9,5 m2, - pokój duży ok. 20...

Zobacz ogłoszenie
12
Mieszkanie 3-pokojowe Warszawa Mokotów, ul. Wyględowska

1 580 000

75

3 pok.

Hampton Home zaprasza do zapoznania się z ofertą sprzedaży przestronnego, 3-pokojowego mieszkania o powierzchni 75 m², położonego przy ul. Wyględowskiej na prestiżowym osiedlu Marina Mokotów. Cena: 1 580 000 zł Wielkość: 75 m2 Miejsce parkingowe naziemne w cenie Atuty nieruchomości: - 3 piętro nowoc...

Zobacz ogłoszenie
15
Mieszkanie 3-pokojowe Warszawa Mokotów, ul. Obrzeżna

1 600 000

74

3 pok.

Ciche, nowoczesne mieszkanie zlokalizowane na 5. piętrze kompleksu Galeria Park, w centrum Mokotowa. Mieszkanie składa się z: - salonu - oddzielnej, widnej kuchni - 2 sypialni - łazienki - oddzielnej toalety - balkonu (9,15 m2) Duże okna skierowane są na wschód, południe i zachód. Mieszkanie zost...

Zobacz ogłoszenie
9
Mieszkanie 3-pokojowe Warszawa Mokotów, ul. Bartycka

1 600 000

73

3 pok.

3-pokojowe mieszkanie zlokalizowane na Mokotowie przy ul. Bartyckiej BUDYNEK/OSIEDLE Mieszkanie znajduje się na parterze w 2 piętrowym budynku. Rok budowy: 2019 NIERUCHOMOŚĆ Mieszkanie o powierzchni 73m2 składa się z: -salonu z otwartą kuchnią, -dwóch sypialni, -łazienki, -przedpokoju. Powi...

Zobacz ogłoszenie
21
Mieszkanie 3-pokojowe Warszawa Mokotów, ul. Króżańska

1 590 000

65

3 pok.

Piękne 3-pokojowe mieszkanie na Starym Mokotowie (65m²) Idealna lokalizacja dla wielbicieli Starej Warszawy. Piękne, słoneczne, z kominkiem, klimatyczne mieszkanie w bocznej, zamkniętej i niezwykle cichej uliczce Starego Mokotowa. Mieszkanie po generalnym remoncie - w 2015 roku wymieniono wszystkie...

Zobacz ogłoszenie