Mieszkanie na sprzedaż bez pośredników
ul. Stanisława Moniuszki Kraków Grzegórzki

Mieszkanie 5-pokojowe Kraków Grzegórzki, ul. Stanisława Moniuszki. Zdjęcie 1

Mieszkanie na sprzedaż bez pośredników Kraków Grzegórzki ul. Stanisława Moniuszki · parter

1 900 000
13 287 zł/m²
143
5 pok.
Kraków Grzegórzki, Stanisława Moniuszki - lokalizacja przybliżona
Bezpośrednio od właściciela

Jeśli nie potrzebujesz pośrednika, zaoszczędzisz około 57 000 zł. Potrzebujesz wsparcia? Skorzystaj z pomocy agenta.

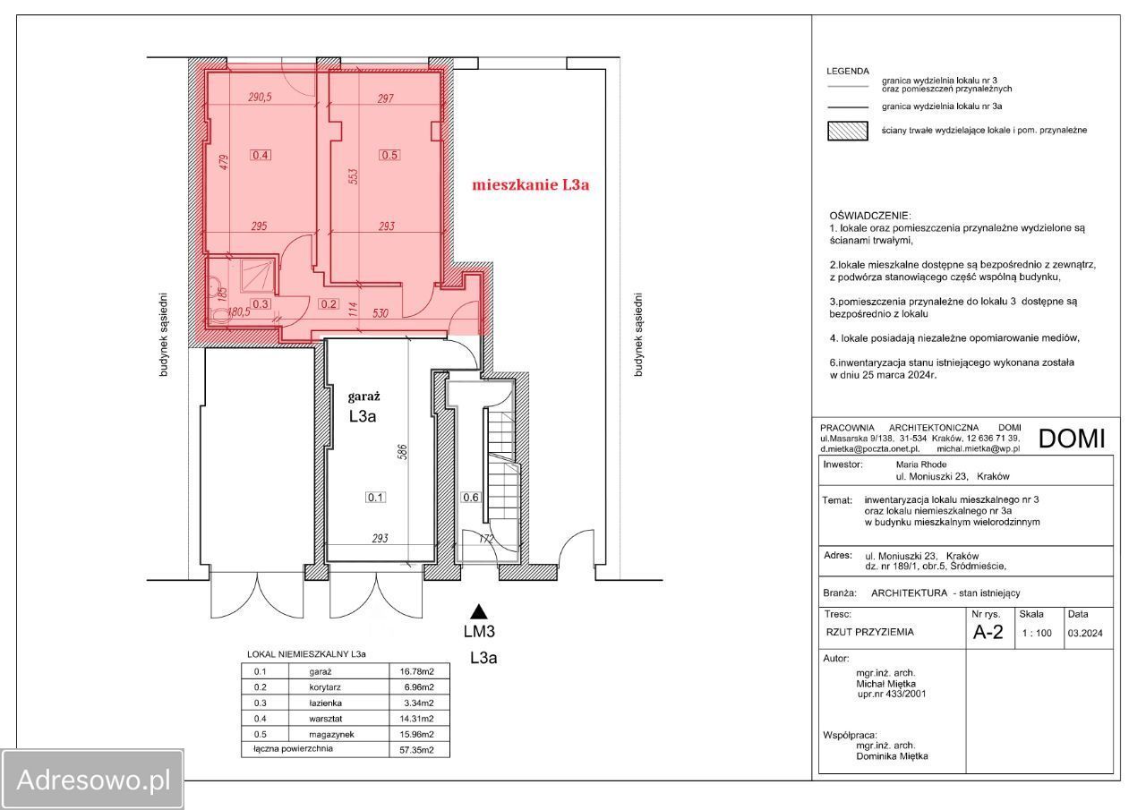
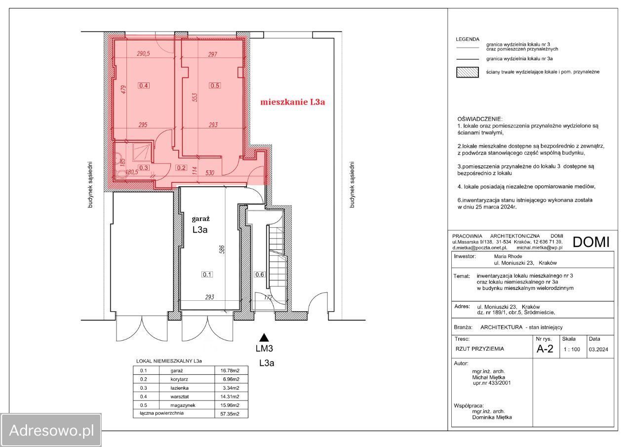
Do sprzedania część domu z wydzielonymi dwoma lokalami.

Na parterze (41 m²):
- Mieszkanie po generalnym remoncie, urządzone i umeblowane.
- Pomieszczenia: kuchnia, łazienka, przedpokój, sypialnia.

Na piętrze (102 m²):
- Duże mieszkanie do odświeżenia.
- Pomieszczenia: 4 pokoje, dwie łazienki i kuchnia.

Do mieszkań należy garaż i mały ogródek z wejściem z parterowego mieszkania.

Mieszkanie bezczynszowe.

Dla bardziej zainteresowanych udostępniam operat szacunkowy z wszelkimi danymi.

Możliwość oglądania po uzgodnieniu terminu telefonicznie.
Uwaga: Nie ma możliwości oglądania w terminie 3-13.04.

  • Na sprzedaż mieszkanie 5-pokojowe o powierzchni 143 m² balkon, piwnica, ogródek, osobna kuchnia
  • Parter w 3-piętrowej kamienicy  
  • Kraków, Grzegórzki ul. Stanisława Moniuszki
  • Odrębna własność z księgą wieczystą  
  • Oferta bezpośrednio od właściciela dodana ponad miesiąc temu i zaktualizowana ponad tydzień temu
Ta nieruchomość może być Twoja od.. sprawdź
380000 zł (20%) Okres spłaty: 30 lat

Podobne mieszkania na sprzedaż

10
Mieszkanie 3-pokojowe Kraków Podgórze, ul. Stanisława Smolki

1 889 000

92

3 pok.

Na sprzedaż mieszkanie bezpośrednio od właścicieli, po generalnym remoncie w 2025 roku. Powierzchnia użytkowa 92,6 m2 z tarasem o orientacji południowo-zachodniej z ekspozycją na tereny zielone, piwnica o powierzchni około 20 m2 i procentowy udział w poddaszu kamienicy. Część dzienna klimatyzowana...

Zobacz ogłoszenie
7
Mieszkanie 4-pokojowe Kraków Krowodrza, ul. Żabiniec

zapytaj

95

4 pok.

Nowe mieszkanie 4-pokojowe o powierzchni 95,08 m² w inwestycji Żabiniec Vita dewelopera DEVELIA, na 1 piętrze w budynku 56 pod adresem ul. Żabiniec 56, Kraków Krowodrza. Planowany termin oddania to III kwartał 2026 roku. Żabiniec Vita to kameralny, jednoetapowy projekt zlokalizowany w dzielnicy Kro...

Zobacz ogłoszenie
5
Mieszkanie 3-pokojowe Kraków Grzegórzki, ul. Kielecka

2 100 000

95

3 pok.

Sprzedam mieszkanie zlokalizowane w przedwojennej, klimatycznej kamienicy przy ul. Kieleckiej 18 w Krakowie o powierzchni użytkowej ok 100 m2 (Osiedle Oficerskie/Grzegórzki). Mieszkanie genialne pod działalność gospodarczą (kancelaria adwokacka, notarialna, biuro księgowe itp. ) lub lokal mieszkalny...

Zobacz ogłoszenie
26
Mieszkanie 4-pokojowe Kraków Grzegórzki, ul. Stanisława Moniuszki

1 900 000

146

4 pok.

| Interesująca nieruchomość przy ulicy Moniuszki! Do sprzedania mieszkanie w domu typu bliźniak na Osiedlu Oficerskim. Nieruchomość ma uregulowany stan prawny, wydzieloną księgę wieczystą i kilka "bonusów" czyniących ją atrakcyjną. Najważniejszą składową jest czteropokojowe mieszkanie ...

Zobacz ogłoszenie
7
Mieszkanie 4-pokojowe Kraków Bieżanów, ul. Henryka i Karola Czeczów

zapytaj

86

4 pok.

Nowe mieszkanie 4-pokojowe o powierzchni 86,73 m² w inwestycji Słoneczne Miasteczko dewelopera DEVELIA, na 3 piętrze pod adresem ul. Henryka i Karola Czeczów, Kraków Bieżanów. Planowany termin oddania to I kwartał 2026 roku. Inwestycja to niska, 4-piętrowa zabudowa, otoczona zielenią w spokojnej ok...

Zobacz ogłoszenie
15
Mieszkanie 4-pokojowe Kraków Grzegórzki, ul. Aleksandra Lubomirskiego

2 015 000

103

4 pok.

| Biuro Nieruchomości Bracia Sadurscy ma przyjemność przedstawić do sprzedaży piękne mieszkanie w kamienicy z 1912 roku. Kamienicę zaprojektował i wykonał architekt Karol Szpondrowski w 1912 roku . Nietypowy budynek z cegły został zbudowany na planie litery H. Oczarowuje wykuszami...

Zobacz ogłoszenie