Mieszkanie na sprzedaż bez pośredników
Żerniki Wrocław

Mieszkanie 3-pokojowe Wrocław Żerniki. Zdjęcie 1

Mieszkanie na sprzedaż bez pośredników Wrocław Żerniki brak adresu · 1 piętro

833 000
10 875 zł/m²
76
3 pok.
Wrocław Żerniki - lokalizacja przybliżona
Bezpośrednio od właściciela

Jeśli nie potrzebujesz pośrednika, zaoszczędzisz około 25 000 zł. Potrzebujesz wsparcia? Skorzystaj z pomocy agenta.

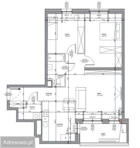
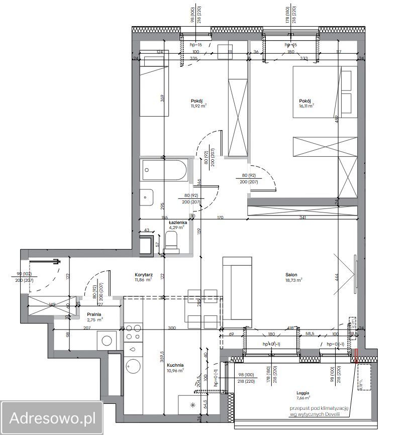
Na sprzedaż komfortowe mieszkanie o powierzchni 76,6 m², zlokalizowane na prestiżowym osiedlu Nowe Żerniki we Wrocławiu. Inwestycja realizowana przez dewelopera Develia, etap pierwszy.

Mieszkanie znajduje się na 1. piętrze, a odbiór kluczy planowany jest na czerwiec.

Do mieszkania przynależy przestronna loggia o powierzchni 7,66 m², idealna do relaksu.

Lokal został zaprojektowany z dużą dbałością o funkcjonalność i szczegóły - już na etapie budowy wprowadzono zmiany w instalacjach zgodnie z indywidualnym projektem, z zachowaniem rękojmi deweloperskiej.

Najważniejsze atuty:
• lokalizacja: Nowe Żerniki, Wrocław
• deweloper: Develia, etap I
• piętro: 1
• powierzchnia: 76,6 m²
• loggia: 7,66 m²
• odbiór mieszkania: czerwiec
• instalacje przerobione na etapie budowy (elektryka + instalacje sanitarne) - dostosowane do projektu - bez potrzeby kosztownych zmian
• zachowana rękojmia
• obligatoryjnie do mieszkania przynależy powiększone miejsce garażowe (koszt dodatkowy 29000 zł) - wygodne parkowanie i dodatkowa przestrzeń oraz komórka lokatorska w cenie 9000 zł
• dodatkowo istnieje możliwość kupienia drugiego miejsca garażowego powiększonego (obok), obecnie mam rezerwację, jednak jeżeli ktoś się nie zdecyduje, wtedy zrezygnuję.

Mieszkanie stanowi idealną bazę do wykończenia według własnego stylu lub gotowy, przemyślany układ pod inwestycję.

  • Na sprzedaż mieszkanie 3-pokojowe o powierzchni 76,60 m² balkon, piwnica, garaż/miejsce parkingowe
  • 1 piętro w 4-piętrowym bloku z windą, rok budowy 2026
  • Wrocław, Żerniki  
  • Mieszkanie do wykończenia okna plastikowe
  • Odrębna własność z księgą wieczystą  
  • Oferta bezpośrednio od właściciela dodana ponad tydzień temu i zaktualizowana wczoraj
Ta nieruchomość może być Twoja od.. sprawdź
167000 zł (20%) Okres spłaty: 30 lat

Podobne mieszkania na sprzedaż

13
Mieszkanie 2-pokojowe Wrocław Żerniki, ul. Tadeusza Brzozy

zapytaj

53

2 pok.

Nowe mieszkanie 2-pokojowe o powierzchni 53,54 m² w inwestycji Wuwa Vita dewelopera DEVELIA, na parterze pod adresem ul. Tadeusza Brzozy, Wrocław Żerniki. Planowany termin oddania to I kwartał 2027 roku. Oferta Etap I inwestycji zakłada realizację 164 komfortowych i praktycznie zaprojektowanych ...

Zobacz ogłoszenie
30
Mieszkanie 4-pokojowe Wrocław Stabłowice, ul. Dziarska

849 900

85

4 pok.

Kupujący nie płaci prowizji! Na bezpiecznym, małym, zamkniętym osiedlu z osobnym wejściem, piętro w nowym budynku (2023) z wejściem na dole osobną klatką schodową przy zabudowie szeregowej. Na zielonych Stabłowicach wśród jednorodzinnej zabudowy ul. Dziarska - niedaleko N Park, tereny zielone, stawy...

Zobacz ogłoszenie
16
Mieszkanie 2-pokojowe Wrocław Żerniki

688 311

58

2 pok.

Kameralna inwestycja deweloperska oferuje 31 lokali mieszkalnych o zróżnicowanym metrażu: od 29,58 m² do 94,23 m². Wśród nich znajdują się funkcjonalne mieszkania jedno, dwu i trzypokojowe oraz dwupoziomowe mieszkania z antresolą, które są doskonałym rozwiązaniem dla uzyskania dodatkowej przestrzeni...

Zobacz ogłoszenie
8
Mieszkanie 4-pokojowe Wrocław Muchobór Wielki

819 000

75

4 pok.

2 MIESZKANIA W CENIE 1 - idealne dla rodziny dwu- lub trzypokoleniowej lub inwestora. Na sprzedaż wyjątkowa oferta: bezczynszowe mieszkanie + kawalerka w jednej cenie. W skład oferty wchodzą: Mieszkanie - przestronne 50 m², składające się z: - dwóch sypialni, - salonu z otwartą kuchnią, - łazienk...

Zobacz ogłoszenie
8
Mieszkanie 3-pokojowe Wrocław Psie Pole

850 000

63

3 pok.

Proszę nie kontaktować się w sprawie nawiązania współpracy z biur nieruchomości. Na sprzedaż oferuję jasne i funkcjonalne mieszkanie o powierzchni 63,21 m², położone na 3 piętrze, w zadbanej kamienicy zlokalizowanej zaledwie 15 minut spacerem od wrocławskiego Rynku. To idealna propozycja zarówno dl...

Zobacz ogłoszenie
8
Mieszkanie 3-pokojowe Wrocław Krzyki

850 000

64

3 pok.

Wyjątkowe 3 Pokoje z Ogrodem 160 m² - Wrocław, Krzyki/Klecina Bezpośrednio od właściciela - bez prowizji! Na sprzedaż przestronne, nowoczesne mieszkanie o powierzchni 64 m², które łączy komfort apartamentu z prywatnością domu jednorodzinnego. Największym atutem nieruchomości jest spektakularny, nar...

Zobacz ogłoszenie