Mieszkanie na sprzedaż bez pośredników
ul. Tadeusza Kościuszki Wrocław Śródmieście

Mieszkanie 1-pokojowe Wrocław Śródmieście, ul. Tadeusza Kościuszki. Zdjęcie 1

Mieszkanie na sprzedaż bez pośredników Wrocław Śródmieście ul. Tadeusza Kościuszki · 4 piętro

495 000
11 000 zł/m²
45
1 pok.
Wrocław Śródmieście, Tadeusza Kościuszki - lokalizacja przybliżona
Bezpośrednio od właściciela

Jeśli nie potrzebujesz pośrednika, zaoszczędzisz około 14 900 zł. Potrzebujesz wsparcia? Skorzystaj z pomocy agenta.

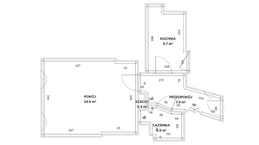
Na sprzedaż mieszkanie własnościowe o powierzchni 45 m², położone w kamienicy przy ul. T. Kościuszki 173 we Wrocławiu, 2 przystanki od Galerii Dominikańskiej.
Pieszo 1,8 km do Galerii Dominikańskiej, 1,4 km do dworca Wrocław Główny.

---

Opis nieruchomości:

• powierzchnia: 45 m²
• układ: przestronny pokój, osobna kuchnia, łazienka, przedpokój
• piętro: 4/5, budynek z windą
• stan: mieszkanie odmalowane, nowe okna, wymaga remontu kuchni, łazienka w dobrym stanie
• media: ciepła woda i ogrzewanie z sieci miejskiej
• dodatkowo: piwnica
• miejsca parkingowe: przy ulicy, na podwórku lub możliwość wynajęcia w okolicy (około 500 m)

---

Atuty:

• świetna lokalizacja - blisko centrum i głównych węzłów komunikacyjnych (tramwaje, autobusy)
• pełna infrastruktura w okolicy - sklepy, markety, szkoły, przedszkola
• tereny rekreacyjne w pobliżu: Niskie Łąki, Park Wschodni, ścieżki rowerowe, Kładka Zwierzyniecka
• mieszkanie własnościowe z księgą wieczystą

---

Opłaty: czynsz około 550 zł (w zależności od liczby mieszkańców)

Cena: 495 000 zł

  • Na sprzedaż mieszkanie 1-pokojowe o powierzchni 45 m² piwnica, osobna kuchnia
  • 4 piętro w 5-piętrowej kamienicy z windą
  • Wrocław, Śródmieście ul. Tadeusza Kościuszki
  • Mieszkanie w stanie do remontu  
  • Oferta bezpośrednio od właściciela dodana ponad miesiąc temu i zaktualizowana ponad tydzień temu
Ta nieruchomość może być Twoja od.. sprawdź
99000 zł (20%) Okres spłaty: 30 lat

Podobne mieszkania na sprzedaż

9
Mieszkanie 2-pokojowe Wrocław Śródmieście, ul. Nowowiejska

500 000

51

2 pok.

ul. Nowowiejska 15, 50-314 Wrocław Może być wraz z wyposażeniem. Okna po wymianie - plastikowe. Łazienka z toaletą, prysznic. Szacowana wartość wycenianego mieszkania: 519 588 zł. (-5.93% w ciągu ostatnich 12 mies.)

Zobacz ogłoszenie
7
Mieszkanie 1-pokojowe Wrocław Śródmieście, ul. Mikołaja Reja

475 000

27

1 pok.

Na sprzedaż atrakcyjna kawalerka o powierzchni 27,5 m², położona we Wrocławiu - Śródmieście, na wysokim parterze w czteropiętrowym bloku z 2001 roku. Mieszkanie jest bezpośrednio po remoncie, gotowe do zamieszkania lub pod wynajem - bez dodatkowych nakładów finansowych. Układ i informacje: - kawal...

Zobacz ogłoszenie
8
Mieszkanie 2-pokojowe Wrocław Śródmieście, ul. Pomorska

530 000

41

2 pok.

Na sprzedaż mieszkanie ustawne o powierzchni 41,5 m², znajdujące się na trzecim piętrze w kamienicy. Mieszkanie składa się z dwóch pokoi, osobnej kuchni oraz piwnicy. Jest w pełni umeblowane i wyposażone w sprzęt AGD, w tym pralkę, lodówkę i kuchenkę. Ogrzewanie elektryczne zapewnia komfort w chłodn...

Zobacz ogłoszenie
10
Mieszkanie 2-pokojowe Wrocław Śródmieście, ul. Kamienna

459 000

28

2 pok.

Funkcjonalna kawalerka położona w ścisłym centrum Wrocławia, tuż obok Uniwersytetu Ekonomicznego. Mowa o ulicy Kamiennej. Powierzchnia została zaaranżowana w przemyślany sposób, dzięki czemu całość jest wygodna i funkcjonalna. To mieszkanie to doskonała propozycja na start - dla singla, studenta lub...

Zobacz ogłoszenie
8
Mieszkanie 2-pokojowe Wrocław Śródmieście, ul. ks. Konstantego Damrota

499 000

39

2 pok.

Oferta bezpośrednia. Proszę o wiadomość jeżeli nie odbieram. Budynek z 1998 r, Spółdzielnia "Akademicka". Zapraszam do zapoznania się z ofertą sprzedaży jasnego mieszkania w centralnej, dobrze skomunikowanej części miasta. To idealne miejsce zarówno dla osób pragnących samodzielnie zamieszkać, jak...

Zobacz ogłoszenie
9
Mieszkanie 2-pokojowe Wrocław Śródmieście, ul. gen. Józefa Haukego-Bosaka

519 000

47

2 pok.

Sprzedam mieszkanie 2-pokojowe - centrum Wrocławia, Przedmieście Oławskie Oferuję na sprzedaż w pełni wyposażone mieszkanie 2-pokojowe o powierzchni 46,89 m² + piwnica 6,44 m², zlokalizowane przy ul. Haukego-Bosaka na Przedmieściu Oławskim, tuż obok centrum miasta. Świetna Lokalizacja: - Bardzo bl...

Zobacz ogłoszenie