Mieszkanie na sprzedaż bez pośredników
ul. Międzyborska Poznań Grunwald

Mieszkanie 3-pokojowe Poznań Grunwald, ul. Międzyborska. Zdjęcie 1

Mieszkanie na sprzedaż bez pośredników Poznań Grunwald ul. Międzyborska · 2 piętro

685 000
9 786 zł/m²
70
3 pok.
Poznań Grunwald, Międzyborska - lokalizacja przybliżona
Bezpośrednio od właściciela

Jeśli nie potrzebujesz pośrednika, zaoszczędzisz około 20 600 zł. Potrzebujesz wsparcia? Skorzystaj z pomocy agenta.

Sprzedam 3-pokojwe mieszkanie o powierzchni 70 m2 położone na ul. Międzyborskiej w Poznaniu. Położone w spokojnej i cichej lokalizacji z widokiem na wewnętrzny, zielony dziedziniec od strony zachodniej wystawy okien. Przed blokiem sporo bezpłatnych miejsc postojowych.
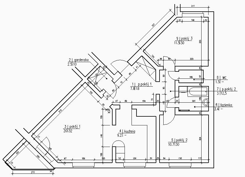
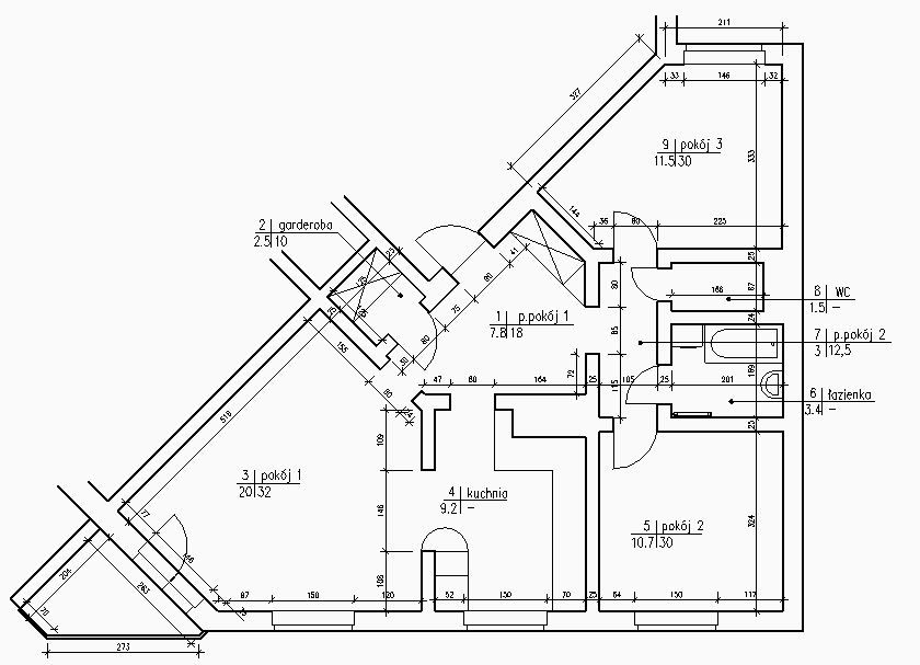
Spółdzielcze własnościowe prawo do lokalu z założoną KW. Mieszkanie składa się z salonu połączonego z kuchnią z możliwością zamknięcia kuchni, dwóch niezależnych pokoi, łazienki, WC, przedpokoju oraz garderoby.
- pokój 1 z balkonem – 20 m2
- pokój 2 - 10,7 m2
- pokój 3 - 11,5 m2
- kuchnia - 9,2 m2
- łazienka - 3,4 m2
- WC - 1,5 m2
- garderoba z szafą w zabudowie - 2,5 m2
- przestronny korytarz z szafą w zabudowie - 7,8 m2
Mieszkanie ma bardzo ciekawy układ, jest przestronne, jasne i ciepłe. Balkon od strony południowo-wschodniej. Blok jest po termomodernizacji w 2022r. Do lokalu przynależy piwnica ok 5m2. Istnieje możliwość sprzedaży z meblami widocznymi na zdjęciach. W mieszkaniu wszystko jest sprawne i nadaje się do natychmiastowego zamieszkania.
Mieszkanie wolne od zaraz.
Mieszkanie położone jest na poznańskim Grunwaldzie. W najbliższym otoczeniu pełna infrastruktura w postaci punktów usługowo-handlowych wszelkiego rodzaju. W bliskim otoczeniu szkoły, przedszkola, plac zabaw, przychodnia, apteka, kościół. Bardzo dobre połączenie komunikacyjne z centrum miasta. Blisko tereny zielone - 15min spacerem do Lasku Marcelińskiego.

  • Na sprzedaż mieszkanie 3-pokojowe o powierzchni 70 m² balkon, piwnica, osobna kuchnia
  • 2 piętro w 4-piętrowym bloku bez windy, rok budowy 1992
  • Poznań, Grunwald ul. Międzyborska
  • Mieszkanie w dobrym stanie okna plastikowe
  • Spółdzielcze własnościowe z księgą wieczystą  
  • Oferta bezpośrednio od właściciela dodana ponad miesiąc temu i zaktualizowana ponad tydzień temu
Ta nieruchomość może być Twoja od.. sprawdź
137000 zł (20%) Okres spłaty: 30 lat

Podobne mieszkania na sprzedaż

5
Mieszkanie 3-pokojowe Poznań Grunwald, ul. Ptasia

zapytaj

63

3 pok.

Nowe mieszkanie 3-pokojowe o powierzchni 63,12 m² w inwestycji Ptasia Vita dewelopera DEVELIA, na parterze w budynku 32 pod adresem ul. Ptasia 32, Poznań Grunwald. Planowany termin oddania to IV kwartał 2027 roku. LOKALIZACJA Ptasia Vita to kameralne osiedle położone w jednej z bardziej cenionych ...

Zobacz ogłoszenie
15
Mieszkanie 2-pokojowe Poznań Grunwald, ul. Kotowo

649 000

63

2 pok.

OSIEDLE DOMÓW ENERGOOSZCZĘDNYCH - KOTOWO - 12 bezczynszowych mieszkań w standardzie pasywnym , w zabudowie bliźniaczej , na zamkniętym osiedlu , - każde mieszkanie z ogródkiem o pow. ok 106 m2 , - doskonały dojazd do centrum , - wyjątkowo niski koszty utrzymania  - miejsce postojowe w cenie    ...

Zobacz ogłoszenie
20
Mieszkanie 4-pokojowe Poznań Grunwald, ul. Cześnikowska

740 000

63

4 pok.

Zapraszamy do zapoznania się z ofertą sprzedaży komfortowego i klimatycznego mieszkania o powierzchni 63 m², zlokalizowanego w niskim, kameralnym budynku z cegły. Budynek przeszedł termomodernizację, a sama nieruchomość znajduje się w spokojnej i zielonej części miasta. To propozycja dla osób, które...

Zobacz ogłoszenie
14
Mieszkanie 2-pokojowe Poznań Grunwald, ul. Ceglana

730 000

50

2 pok.

Na sprzedaż funkcjonalne 2-pokojowe mieszkanie o powierzchni 50,05 m², z ogródkiem, zlokalizowane na prestiżowym osiedlu Stara Cegielnia w Poznaniu (dzielnica Grunwald). Osiedle wyróżnia się malowniczym położeniem - w sąsiedztwie stawu, zieleni, placu zabaw oraz terenów spacerowych. Lokalizacja zap...

Zobacz ogłoszenie
13
Mieszkanie 4-pokojowe Poznań Grunwald, os. Mikołaja Kopernika

649 000

67

4 pok.

OKAZJA - 4 Pokoje na Os. Kopernika + PIWNICA GRATIS! Najważniejsze informacje: - Lokalizacja: Poznań, Grunwald, Os. Kopernika - Metraż: 67m2 - Układ: 4 niezależne pokoje (możliwość wydzielenia 6 pokoi pod inwestycję) - Stan: Mieszkanie jest opróżnione, czyste, gotowe do zmiany aranżacji lub zamiesz...

Zobacz ogłoszenie
32
Mieszkanie 3-pokojowe Poznań Grunwald, ul. Bułgarska

618 000

49

3 pok.

Oferta bezpośrednia Oferuję świetne mieszkanie 3 pokojowe na ul Bułgarskiej przytulne, funkcjonalne i przestronne, o pow.49 m², w niskim bloku cztero piętrowym z odnowioną elewacją. Mieszkanie jest po remoncie. Umeblowane ze smakiem , praktycznie i funkcjonalnie w meble z Ikea Wyposażone w 2 duże s...

Zobacz ogłoszenie