Mieszkanie na sprzedaż
ul. Marcina Kasprzaka 5 Łódź Koziny

Mieszkanie 4-pokojowe Łódź Koziny, ul. Marcina Kasprzaka. Zdjęcie 1
Mieszkanie 4-pokojowe Łódź Koziny, ul. Marcina Kasprzaka. Zdjęcie 2
Mieszkanie 4-pokojowe Łódź Koziny, ul. Marcina Kasprzaka. Zdjęcie 3
Mieszkanie 4-pokojowe Łódź Koziny, ul. Marcina Kasprzaka. Zdjęcie 4

Mieszkanie na sprzedaż Łódź Koziny ul. Marcina Kasprzaka 5 · 2 piętro

839 000
8 797 zł/m²
95
4 pok.
Łódź Koziny, Marcina Kasprzaka 5 - lokalizacja przybliżona

Właściciel powierzył sprzedaż nieruchomości pośrednikowi. Możesz zadzwonić lub napisać do agenta za darmo.

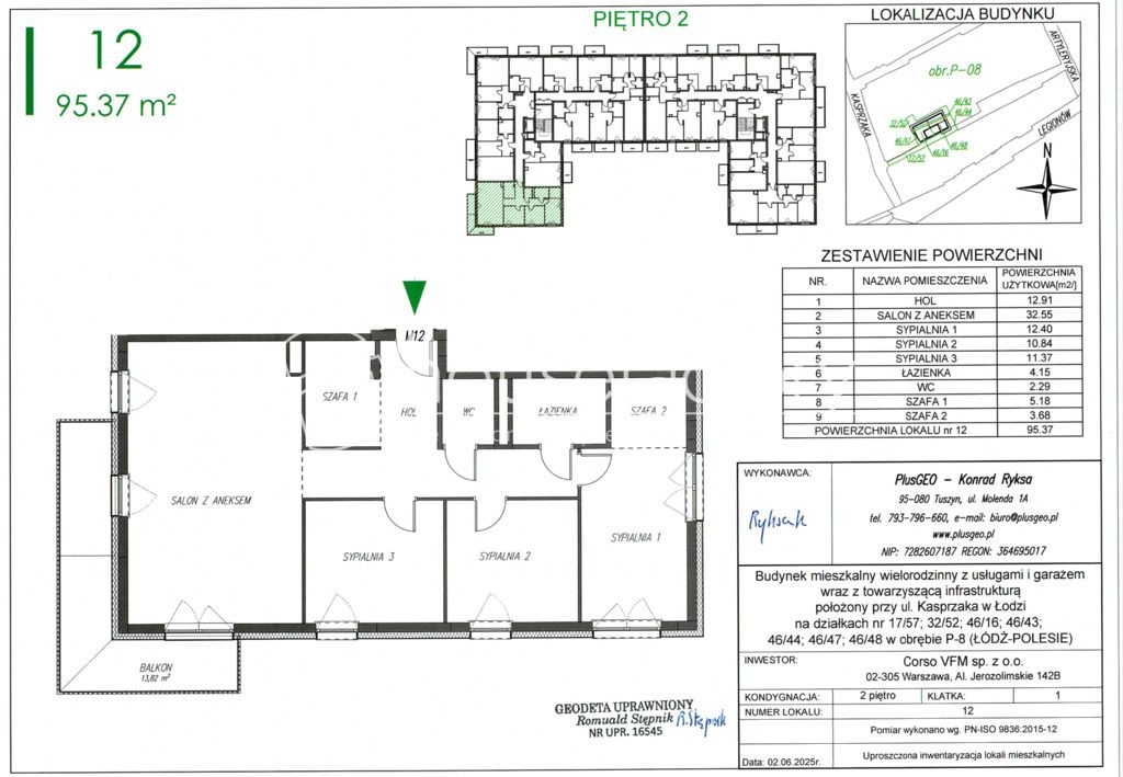
Z przyjemnością prezentuję wyjątkowy apartament w stanie deweloperskim o powierzchni 95,37 m², zlokalizowany w sercu Polesia – w prestiżowej inwestycji CORSO (ul. Kasprzaka 5). To propozycja dla osób, które szukają metrażu dającego wolność aranżacji, ogromnej ilości światła i standardu życia na miarę nowoczesnej metropolii.

NAJWIĘKSZE ATUTY MIESZKANIA:Powierzchnia: Imponujące 95,37 m² w stanie deweloperskim – Twoje białe płótno do stworzenia wymarzonego wnętrza.
Ekspozycja Południowo-Zachodnia: Mieszkanie jest skąpane w słońcu przez większą część dnia, co gwarantuje naturalne doświetlenie i przytulną atmosferę.
Spektakularny Taras: Unikalny, narożny taras, który stanie się Twoim prywatnym ogrodem w mieście – idealny na poranną kawę czy wieczorny relaks przy zachodzie słońca.
Lokalizacja w Budynku: Mieszkanie znajduje się na 2. piętrze w Budynku nr 1 (pierwszy od ul. Kasprzaka), co zapewnia prestiż i łatwy dostęp.

CORSO – COŚ WIĘCEJ NIŻ OSIEDLEInwestycja dewelopera VFM Real Estate to nowoczesna ikona Starego Polesia. Projekt łączy miejską energię z zielonym spokojem:Reprezentacyjny deptak biegnący wzdłuż całego osiedla, zwieńczony zielonym skwerem miejskim z kawiarnią.Udogodnienia "Smart Living": Paczkomaty na terenie osiedla, stacje ładowania samochodów elektrycznych, liczne parkingi dla rowerów i rowerownie.Bezpieczeństwo i Technologia: Wideodomofony, światłowód, energooszczędne oświetlenie LED w częściach wspólnych.

LOKALIZACJA – WSZĘDZIE MASZ BLISKO! Mieszkanie przy ul. Kasprzaka 5 to idealny punkt na mapie Łodzi:
Rekreacja: Tylko 13 minut spacerem do Parku im. marszałka Józefa Piłsudskiego (największy park w Łodzi!).
Zakupy i Rozrywka: CH Manufaktura oraz Cinema City w zasięgu 6 minut samochodem.
Komunikacja: Przystanek autobusowy (4 minuty pieszo), przystanek tramwajowy (8-9 minut pieszo). Szybki dojazd do centrum (2,3 km).
Infrastruktura: W bezpośrednim sąsiedztwie: Netto (9 min), przedszkola, szkoły, apteki, siłownia oraz piekarnie.
Do mieszkania przynależą:
Komórka lokatorska: 19 000 zł
Miejsce w garażu podziemnym: 39 000 zł
Stan prawny: Pełna własność. Stan wykończenia: Deweloperski (już dostępne).
Nie przegap szansy na zamieszkanie w jednym z najbardziej wyczekiwanych punktów na mapie Łodzi. Zapraszam do kontaktu i na prezentację!

  • Oferta z rynku pierwotnego
  • Na sprzedaż mieszkanie 4-pokojowe o powierzchni 95,37 m² garaż
  • 2 piętro w 8-piętrowym apartamentowcu z windą, rok budowy 2025
  • Łódź, Koziny ul. Marcina Kasprzaka
  • Odrębna własność z księgą wieczystą  
  • Ogłoszenie biura nieruchomości  
  • Oferta dodana ponad tydzień temu
Ta nieruchomość może być Twoja od.. sprawdź
168000 zł (20%) Okres spłaty: 30 lat

Podobne mieszkania na sprzedaż

7
Mieszkanie 4-pokojowe Łódź Śródmieście, ul. Piotrkowska

850 000

126

4 pok.

Oferta prywatna, pełna własność z KW. Do sprzedania 4-pokojowe mieszkanie z charakterem o powierzchni 126 m² na trzecim piętrze na ulicy Piotrkowskiej (deptak) przy Pasażu Schillera. Ogromnym atutem mieszkania jest nie tylko wyjątkowa lokalizacja, ale również układ mieszkania z dwoma wejściami z dwó...

Zobacz ogłoszenie
9
Mieszkanie 3-pokojowe Łódź Polesie, ul. Zimna

850 000

110

3 pok.

Na sprzedaż wyjątkowe, dwupoziomowe mieszkanie o łącznej powierzchni blisko 110 m² (61 m² mieszkania + 49 m² poddasza), położone w kameralnym, 5-letnim budynku przy ul. Zimnej w Łodzi (Polesie/Zdrowie). Oferta bezpośrednia, idealna dla osób szukających przestrzeni domu w cenie mieszkania. Najważnie...

Zobacz ogłoszenie
13
Mieszkanie 4-pokojowe Łódź, ul. Rąbieńska

850 000

91

4 pok.

UWAGA: Metraż podany w ogłoszeniu to metraż PO PODŁODZE. Metraż w Księdze Wieczystej wynosi dokładnie 76,9 m2. Rozbieżność wynika ze skosów, które według norm nie są wliczane w poczet powierzchni użytkowej. Na sprzedaż wyposażone 4-pokojowe mieszkanie na osiedlu Maestria Park - kameralnym miejscu ...

Zobacz ogłoszenie
20
Mieszkanie 3-pokojowe Łódź Bałuty, ul. Org. "Wolność i Niezawisłość"

834 000

80

3 pok.

Zapraszamy do zapoznania się z ofertą sprzedaży wyjątkowego, przestronnego apartament w zielonym sercu Łodzi!   Lokalizacja: Łódź - Bałuty, ul. Organizacji „WiN” 83 - Apartamentowiec „Sun Tower”. Naprzeciwko Skweru Gdańskiego, w sąsiedztwie Parku Ocalałych, Parku im. Szarych Szeregów oraz Parku H...

Zobacz ogłoszenie
20
Mieszkanie 3-pokojowe Łódź Ruda Pabianicka, ul. Starorudzka

835 000

64

3 pok.

Dzień dobry, Mam do zaoferowania Państwu gotowe do zamieszkania, trzypokojowe mieszkanie na zamkniętym osiedlu zlokalizowanym na Rudzie Pabianickiej w okolicy Rudzkiej Góry. Mieszkanie jest w pełni wyposażone i nie wymaga żadnego dodatkowego wkładu finansowego. LOKALIZACJA: Osiedle powstało w 201...

Zobacz ogłoszenie
15
Mieszkanie 4-pokojowe Łódź, ul. Piotrkowska

799 000

96

4 pok.

Przestronne 4 pokoje | 96 m² | Piotrkowska | Kamienica | Balkon Na sprzedaż oferuję wyjątkowo przestronne mieszkanie o powierzchni 96,18 m², położone na 2. piętrze zabytkowej kamienicy przy Piotrkowskiej 59 w samym centrum Łódź. To doskonała propozycja dla osób, które cenią klimat łódzkich kamieni...

Zobacz ogłoszenie