Przejdź do wyników wyszukiwania

Działki na sprzedaż Łódź Najwięcej bez pośredników, strona 2

Średnia 519 zł/m² 290 ofert

8
Działka rod Łódź Radogoszcz, ul. Krecia

83 000

300

Dzień dobry, Sprzedam działkę ROD w spokojnej okolicy na ul. Kreciej 57 w Łodzi (ROD im. Juliusza Słowackiego). Działka położona 5 minut spacerem od przystanku autobusowego Świtezianki Radogoszcz oraz 15 minut od Arturówka/Lasu Łagiewnickiego. Ogrodzona działka z murowanym domkiem, która posiada:...

Zobacz ogłoszenie
8
Działka rod Łódź Polesie, ul. Płocka

108 000

350

Budynek murowany, wszystko po wymianie na nowe w 2024r: wylewki + podłogi, ściany karton-gips, instalacja elektryczna, armatura/hydraulika, meble/wystrój. Rogówka jest z funkcją spania. Ocieplenie dachu, woda + filtry, monitoring z powiadomieniem i podglądem w telefonie na żywo + internet, Smart TV....

Zobacz ogłoszenie
10
Działka budowlana Łódź Doły, ul. Drwęcka

299 000

570

Ogłoszenie bezpośrednie – kupujący nie płaci prowizji. Przedmiotem oferty jest piękna działka w fenomenalnej lokalizacji – cichej, zielonej, a jednocześnie bardzo blisko centrum (ok. 6 minut samochodem do Dworca Łódź Fabryczna). Ulica Drwęcka jest ulicą ślepą, z ruchem wyłącznie lokalnym (wjazd od ...

Zobacz ogłoszenie

Dodaj ogłoszenie za darmo

3 mln osób szuka z adresowo.pl

Dodaj ogłoszenie
10
Działka inwestycyjna Łódź, ul. Klonowa

999 360

823

Na sprzedaż wyjątkowa nieruchomość gruntowa o dużym potencjale inwestycyjnym, położona w sercu Łodzi, przy ul. Klonowej 11a - w obrębie B-45. To oferta skierowana zarówno do inwestorów, jak i osób prywatnych szukających gruntu pod budowę lub modernizację istniejącej zabudowy. Informacje podstawowe: ...

Zobacz ogłoszenie
3
Działka budowlana Łódź Ruda Pabianicka, ul. Rudzka

575 000

896

***REZERWACJA***REZERWACJA*** Inwestycyjna nieruchomość - Łódź Górna Na sprzedaż działka o powierzchni 895,8 m² zabudowana wielorodzinnym budynkiem, w którym jest wyodrębnionych sześć lokali mieszkalnych. Oferta idealna dla inwestora, który oczekuje bezpiecznego ulokowania kapitału. Opis nieruchomoś...

Zobacz ogłoszenie
2
Działka budowlana Łódź Bałuty, ul. Aleksandrowska

550 000

529

Działka na osiedlu domów jednorodzinnych w zakresie ulic , Aleksandrowskiej, Klinowej, Tatarczanej, zagospodarowana budynkiem o pow. 36m2 (kuchnia, łazienka, pokój dzienny) z ogrzewaniem , wodą, (media z instalacji wewnętrznej) prądem z własnego przyłącza. Dostęp do mediów z ulicy (woda,gaz)....

Zobacz ogłoszenie
4
Działka budowlana Łódź Arturówek, ul. Porzeczkowa

360 000

408

Na sprzedaż działka o powierzchni ok. 408 m², położona w zielonej i spokojnej części Łodzi - w okolicach Lasu Łagiewnickiego oraz Arturówka. To idealna propozycja dla osób szukających miejsca do życia blisko natury, a jednocześnie z szybkim dojazdem do centrum miasta. Na działce znajduje się budyn...

Zobacz ogłoszenie
1
Działka budowlana Łódź Górna, ul. Poznańska

2 500 000

2690

Sprzedam działkę w centrum Łodzi, przy ul. Poznańskiej 14. Działka ma powierzchnię 2690 m2 (dz. nr. 72 i 64/3 w obrębie G-5). Została dla niej wydana decyzja o WZ, w oparciu o którą powstała koncepcja inwestycji składającej się z 2 budynków: Frontowy (zamykający pierzeję ulicy Poznańskiej), w który...

Zobacz ogłoszenie
9
Działka rolna Łódź Widzew, ul. Kosodrzewiny

1 200 360

6317

Na sprzedaż: wyjątkowa działka inwestycyjna z ogromnym potencjałem - Łódź, dzielnica Widzew, ul. Kosodrzewiny Z przyjemnością prezentujemy Państwu niepowtarzalną okazję inwestycyjną - działkę o imponującej powierzchni 6 317 m², zlokalizowaną w dynamicznie rozwijającej się dzielnicy Widzew w Łodzi, p...

Zobacz ogłoszenie
6
Działka inwestycyjna Łódź, ul. Aleksandrowska

3 999 599

8427

Atrakcyjna działka inwestycyjna o powierzchni 8427 m², zlokalizowana w spokojnej i zielonej części Łodzi - przy ul. Aleksandrowskiej, z dojazdem od ul. Klinowej. Teren o dużym potencjale - idealny pod inwestycję deweloperską, halę magazynową lub zabudowę mieszkaniową. Parametry działki: Powierzchn...

Zobacz ogłoszenie
8
Działka rod Łódź Górna, ul. Tabelowa

63 000

300

Sprzedam ogródek działkowy ROD w Łodzi, przy ulicy Tabelowej. Działka o powierzchni 300m2. Media dostępne. Nasadzenia, w tym drzewa owocowe: czereśnia, jabłoń. Maurowany domek, podpiwniczony, z tarasem. Na tarasie znajduje się prysznic oraz toaleta kempingowa z systemem płynów. Zapraszam do kon...

Zobacz ogłoszenie
5
Działka budowlana Łódź Górna, ul. Biwakowa

399 000

1500

Sprzedam działkę budowlaną o powierzchni 15 arów, położoną w malowniczej, zielonej okolicy doliny Neru na ulicy Biwakowej w Łodzi. Działka posiada warunki zabudowy dla domu jednorodzinnego. Teren całkowicie ogrodzony panelem metalowym na podbudowie płyty betonowej, z bramą metalową. Media takie jak ...

Zobacz ogłoszenie
5
Działka rod Łódź Widzew, ul. Olkuska

70 000

400

Na sprzedaż zadbana działka R.O.D. przy ulicy Olkuskiej 15A. Na działce (400m2) znajduje się murowany i ocieplony dom (30m2): - pokój, - korytarz, - kuchnia z podpiwniczeniem, - łazienka. Przed domkiem znajduje się duży taras oraz komórka (9m2). Działka jest zadbana, na działce znajduje się wiele...

Zobacz ogłoszenie
2
Działka inwestycyjna Łódź Teofilów, ul. Aleksandrowska

6 999 999

1,47 ha

Łódź - Aleksandrowska | 2 działki inwestycyjne łącznie 14 749 m² | WZ na halę, stację paliw, wniosek na pawilon handlowy Wyjątkowa oferta inwestycyjna - dwie sąsiadujące działki o łącznej powierzchni 14 749 m², zlokalizowane przy ul. Aleksandrowskiej w Łodzi, z dojazdem od ul. Klinowej Aleksandrowsk...

Zobacz ogłoszenie
5
Działka budowlana Łódź Bałuty, ul. Józefa Zaliwskiego

449 000

281

Na sprzedaż: działka budowlana z pozwoleniem na budowę - Łódź, ul. Zaliwskiego 33 Chcesz się budować? Ale obawiasz się papierologii i biegania po urzędach? Mamy dla Ciebie rozwiązanie!!!! Działka z aktualnym pozwoleniem na budowę. Kupując działkę z gotowym pozwoleniem na budowę, nabywca unika żmudny...

Zobacz ogłoszenie
8
Działka rod Łódź Polesie, ul. Konstantynowska

35 000

350

Działka znajduje się na Polesiu na ul. Konstantynowskiej 56/60, w bliskiej okolicy Ogrodu Botanicznego. Jak widać na zdjęciach, uważam, że działka jest zadbana i ma sporo nasadzeń takich jak jabłoń, grusza, brzoskwinia, agrest, pożyczki, czereśnia i dużo innych krzewów i kwiatów. Jeśli chodzi o doja...

Zobacz ogłoszenie
2
Działka budowlana Łódź Widzew, ul. Listopadowa

332 280

852

Sprzedam bezpośrednio: Atrakcyjną działkę budowlaną nr 111/7, o powierzchni 852m2. Wydane prawomocne pozwolenie na budowę i warunki zabudowy. Lokalizacja: ul. Listopadowa, Łódź Widzew, obręb W-10 Parametry działki: Powierzchnia: 852 m2 Wymiary: 23,6 m / 37,5 m Dodatkowe informacje: Projekt domu...

Zobacz ogłoszenie
4
Działka inwestycyjna Łódź Górna, ul. Kolumny

12 646 675

1,08 ha

Sprzedam bardzo atrakcyjną nieruchomość gruntową zlokalizowaną w Łodzi pod adresem Łódź ul. Kolumny 315. Pow. działki – 10 823 m2 Działka nr 95/11, obręb G-55 Rodzaj użytku – Ba – tereny przemysłowe Studium uwarunkowań – działka znajduję się na terenie zabudowy usługowej. Brak WZ oraz MPZP. Na t...

Zobacz ogłoszenie
5
Działka rolno-budowlana Łódź Widzew

299 648

2341

Na sprzedaż działka rolna o powierzchni 2341m². Dojazd do działki drogą asfaltowo-gruntową (ostatnie 200 metrów to drogą gruntowa). Blisko działki znajdują się woda i prąd (ok. 200m) oraz gaz w drodze. Działka znajduje się w cichej i spokojnej okolicy, w pobliżu lasu.

Zobacz ogłoszenie
1
Działka inwestycyjna Łódź Śródmieście

1 550 000

723

Zapraszamy do zakupu działki budowlanej, wraz z projektem i prawomocnym pozwoleniem na budowę. - Powierzchnia działki: 723 m2 - Powierzchnia użytkowa lokali mieszkalnych: 844,62 m2 - Ilość lokali mieszkalnych: 27 4 kondygnacje naziemne, miejsca parkingowe w hali garażowej w parterze, brak koniec...

Zobacz ogłoszenie
2
Działka budowlana Łódź Ruda Pabianicka, ul. Iłowa

720 000

1062

Sprzedam działkę budowlaną 1062 m² w spokojnej i zielonej części Rudy Pabianickiej w Łodzi, w pełni przygotowaną pod budowę domu jednorodzinnego- wydane jest pozwolenie na budowę. Działka jest gotowa do rozpoczęcia inwestycji bez większych formalności. Najważniejsze cechy działki: Pozwolenie na bu...

Zobacz ogłoszenie
7
Działka budowlana Łódź Górna, ul. Ziemiańska

480 000

1744

Do sprzedaży działka o powierzchni 1744 m2 (30m x 58m) znajdująca się w Łodzi przy ulicy Ziemiańskiej. Działka z zatwierdzonym projektem budowlanym i pozwoleniem na budowę domu jednorodzinnego z garażem dwu stanowiskowym (widoczne w zatwierdzonym przez urząd projekcie, niewidoczne na wizualizacji d...

Zobacz ogłoszenie
8
Działka rod Łódź Śródmieście, ul. Źródłowa

74 000

395

Sprzedam prawo do użytkowania działki ROD im. W. Reymonta przy ul. Źródłowej 36/38. Domek w dobrym stanie technicznym. Dach pokryty nową papą. W domku są wszystkie media i nowy bojler 50L. Posiada TV, internet, monitoring, jacuzzi i inne udogodnienia.

Zobacz ogłoszenie
8
Działka rod Łódź Polesie

60 000

370

Sprzedam działkę około 370m2. Na działce znajdują się krzewy aronii, czarnej porzeczki, winogrono, drzewa owocowe (wiśnia i śliwka) oraz orzech. W domku znajduje się jeden pokój z kuchnią, taras oraz pomieszczenie gospodarcze. W domku jest woda, prąd i gaz z butli. Na ogrodzie również znajduje si...

Zobacz ogłoszenie
5
Działka budowlana Łódź Górna, ul. Anieli Krzywoń

400 000

561

Na sprzedaż niezabudowana działka budowlana w Łodzi przy ulicy Anieli Krzywoń 2a. Bardzo dobrze skomunikowana, ulica asfaltowa, max 200 metrów do tramwaju i autobusu. Łódź Górna, działka nr 97 w obrębie G-40, o powierzchni 561 m2. Kształt trapezu prostokątnego o podstawach 31,5 m i 23,7 m oraz bok...

Zobacz ogłoszenie
8
Działka rod Łódź Polesie, ul. Krakowska

54 000

333

Na sprzedaż oferuję zadbaną i piękną działkę RODO o powierzchni 333 m.kw., z murowanym, pięknym domkiem (35 m.kw. i wys. 5 m, pokój, łazienka, kuchnia oraz przedsionek). Domek posiada taras, miejsce do wypoczynku oraz przestrzeń do uprawy warzyw, owoców lub kwiatów. Działka posiada dostęp do wody or...

Zobacz ogłoszenie
60
Działka rod Łódź Widzew, ul. Lodowa

48 000

300

Sprzedam bezpośrednio atrakcyjną działkę rekreac. (ROD ELESTER1), położoną przy ulicy Lodowej 73. Idealne miejsce do wypoczynku: ogrodzona, liczne nasadzenia, media: prąd, woda. Cena 48000 do negocjacji (altana + domek narzędziowy w cenie). ZAPRASZAM DO OBEJRZENIA!!!

Zobacz ogłoszenie
8
Działka rod Łódź Górna, ul. Pustynna

32 000

315

Do sprzedania działka na Rodzinnym Ogrodzie Działkowym w Łodzi, przy ulicy Pustynnej. Okolica cicha i spokojna, pozwalająca się zrelaksować i odpocząć. Miejsce idealne dla każdego, również rodzin z dziećmi, jak i osób starszych. Działka zadbana, o powierzchni około 315m2, obsadzona roślinami ozdobn...

Zobacz ogłoszenie
14
Działka rod Łódź Rokicie, ul. Świętojańska

55 000

301

Na sprzedaż wyjątkowa, bardzo zadbana i w pełni funkcjonalna działka o powierzchni 301 m² w ROD „Albalen” w Łodzi przy ul. Świętojańskiej. Wejście na oferowaną działkę znajduje się kameralną, boczną furtką od ul. Ruczajowej, co zapewnia spokój i prywatność. Dodatkowym atutem jest drugie wyjście z og...

Zobacz ogłoszenie
2
Działka budowlana Łódź Górna, ul. Paprociowa

230 000

780

Na sprzedaż dwie działki budowlane o łącznej powierzchni 780 m², położone w atrakcyjnej części Łódź-Górna w pobliżu trasy 600-lecia. Lokalizacja zapewnia szybki dojazd do centrum miasta, a jednocześnie gwarantuje spokój i bliskość terenów zielonych. Najważniejsze informacje: * 2 działki o łącznej ...

Zobacz ogłoszenie
7
Działka rekreacyjna Łódź Łagiewniki

75 000

300

Sprzedam działkę rekreacyjną typu ROD. Lokalizacja: Łódź-Łagiewniki, obok klasztoru. Cicha i bezpieczna lokalizacja, obok Lasu Łagiewnickiego. Teren ogrodzony, całorocznie strzeżony. Działka o powierzchni 300m2 wraz z domkiem o pow. 16m2 plus taras (domek typu Basia). Miały domek jest murowany i ...

Zobacz ogłoszenie
1
Działka inwestycyjna Łódź Bałuty, ul. Czapli

3 043 000

6089

Sprzedam działkę inwestycyjną, w Łodzi ul. Czapli. Pozwolenie na budowę , wodociąg i gazociąg w ul. Czapli. Więcej informacji pod nr telefonu . Skontaktuj się.

Zobacz ogłoszenie
3
Działka inwestycyjna Łódź Bałuty, ul. Łagiewnicka

2 382 500

4765

Sprzedam działkę inwestycyjną- budowlaną. Działka znajduje się na ul. Łagiewnickiej 231, pięknie położona graniczy z Lasem Łagiewnickim. Posiadam pozwolenia na budowę oraz projekt wodociągu. Więcej informacji pod nr tel.

Zobacz ogłoszenie
4
Działka budowlana Łódź Widzew, ul. Macieja Rataja

435 000

1500

Na sprzedaż działka budowlana w Łodzi (Widzew) przy ul. Rataja 35F. Powierzchnia 1500m2 (prostokątny kształt 30x50). Pełne media bezpośrednio na działce (prąd, woda, gaz). Zabudowa mieszkaniowa jednorodzinna. Wjazd od strony północnej. Ukształtowanie terenu płaskie, z częściowym ogrodzeniem. W sąsi...

Zobacz ogłoszenie
2
Działka budowlana Łódź Teofilów, ul. Jasne Błonia

2 000 000

2200

OFERTA SPRZEDAŻY - DZIAŁKI BUDOWLANE W ŁODZI Wyjątkowe działki budowlane przy samym lesie - Łódź, ul. Jasne Błonia Szukasz miejsca, które łączy absolutny spokój z miejską wygodą? Mamy przyjemność zaprezentować dwie unikatowe działki budowlane położone w najbardziej zielonej i prestiżowej części Te...

Zobacz ogłoszenie
1
Działka budowlana Łódź Wiskitno, ul. Kolumny

251 000

661

Wiskitno ul. Kolumny na przeciwko numeru 400/402 Działki budowlane na sprzedaż bezpośrednio od właściciela. Na sprzedaż działki budowlane o powierzchni 700-900 m². Z warunkami zabudowy oraz z pozwoleniem na budowę. Działki mają również naniesione projekty budynków, które można zmieniać. Media: wod...

Zobacz ogłoszenie
2
Działka budowlana Łódź Górna, ul. Kolumny

1 400 000

6000

Wydane WZ: * Zabudowa działki do 23% * Szerokość elewacji frontowej 10-15m * Wysokość zabudowy 5-9m * Dach dwuspadlowy lub wielospadowy 20-40 stopni Działka 175 oraz 176 obręb G33. Możliwość podziału działki na 750 m x 8 m. Prąd, gaz, woda w ul. Kolumny.

Zobacz ogłoszenie
1
Działka budowlana Łódź Mileszki

300 000

1200

Witam! Do sprzedania posiadam działki o powierzchni 1200m2 i wymiarach ok. 43m x 28m. Dojazd do działek drogą utwardzoną 130 metrów od ul. Gerberowej, dzięki czemu jest cicho i spokojnie. Front działek skierowany na południe. Działki posiadają aktualne warunki zabudowy, które mogę udostępnić zainter...

Zobacz ogłoszenie
2
Działka budowlana Łódź Widzew, ul. Olechowska

670 000

1671

Oferuję na sprzedaż atrakcyjną działkę inwestycyjną o powierzchni 1671 m², dla której zostały wydane warunki zabudowy na budowę hali magazynowo–usługowo–produkcyjnej z częścią biurową. ✅ Możliwość zabudowy hali o powierzchni do 380 m² na jednym poziomie lub znacznie większej piętrowej ✅ Idealna...

Zobacz ogłoszenie
8
Działka budowlana Łódź Bałuty, ul. Jaskółcza

340 000

489

Na sprzedaż działka z dostępem do lasu łagiewnickiego przygotowana pod budowę. Na działce prąd,woda, kanalizacja, wydane warunki zabudowy. Zapraszam

Zobacz ogłoszenie
1
Działka budowlana Łódź Nowosolna, ul. Byszewska

280 000

1000

Sprzedam działkę budowlaną – 1000 m² | ul. Byszewska 38, Łódź Na sprzedaż atrakcyjna działka budowlana o powierzchni 1000 m², w kształcie prostokąta, położona przy ul. Byszewskiej 38 w Łodzi, w sąsiedztwie nowo wybudowanych domów jednorodzinnych. Działka jest przygotowana pod budowę i posiada wyda...

Zobacz ogłoszenie
3
Działka rolno-budowlana Łódź Górna

260 000

1400

Witam. Sprzedam działkę 1400 m, ogrodzoną. Droga dojazdowa od ulicy Zygmunta. Wszystkie media w ulicy. Słup koło działki (elektrownia będzie usuwała). Jestem właścicielem działki. POLECAM.

Zobacz ogłoszenie
9
Działka budowlana Łódź Sikawa, ul. Listopadowa

599 999

1587

NA SPRZEDAŻ DZIAŁKA O POWIERZCHNII 1 587 M2 W ATRAKCYJNEJ CZĘŚCI ŁODZI PRZY UL. LISTOPADOWEJ 40E (działka 126/19) Z WYDANYMI WARUNKAMI ZABUDOWY POD ZABUDOWĘ JEDNORODZINNĄ ORAZ WYDANYM PNB NA DOM JEDNORODZINNY (Projekt domu - Dom w żurawkach 8 odbicie lustrzane garaż od wschodu) można robić projekt ...

Zobacz ogłoszenie
6
Działka budowlana Łódź Bałuty, ul. Krajowa

2 850 000

1 ha

Na sprzedaż działka o pow. 10 tys. m² z PnB, Łódź ul. Krajowej 15, Bałuty. Pozwolenie na budowę: 7 domów / 11 mieszkań o łącznej powierzchni 1220 pum + 1000 m2 budynek usługowy, który może zostać zastąpiony blokiem z 42 mieszkaniami na wynajem długoterminowy. Blok o powierzchni 1650 pum 'Dom wyciecz...

Zobacz ogłoszenie
4
Działka budowlana Łódź Górna, ul. Zagadkowa

650 000

1307

Działka budowlana Łódź Górna. Optymalna działka inwestycyjna o powierzchni 1307 m², zlokalizowana w Łodzi (dzielnica Górna), przy ul. Zagadkowej. Teren objęty jest prawomocną i bezterminową decyzją o warunkach zabudowy (WZ) na budynek produkcyjny o maksymalnej powierzchni zabudowy 800 m². Działka...

Zobacz ogłoszenie
8
Działka rod Łódź Polesie

35 000

400

Sprzedam działkę. RODO. Blisko Manufaktury, 5 minut na pieszo. Działka posiada domek z przybudówką, w której są plastikowe okna. Domek nie jest dokończony. Na działce jest prąd i woda. Działka ma różne nasadzenia, jak również drzewa owocowe (wiśnie, jabłoń, orzech, śliwkę). Urokiem działki jest to, ...

Zobacz ogłoszenie
9
Działka rolna Łódź Łagiewniki, ul. Żółwiowa

159 000

1047

Działka rolna 1047m (MPZP), cicha okolica w Łodzi - okolice Rezerwatu Przyrody Las Łagiewnicki. Działka rolna położona przy ulicy Żółwiowej w pobliżu lasu w Łagiewnikach z miejscowym planem zagospodarowania. Działka jest ogrodzona ,brama wjazdowa i furtka. Na działce znajduje się drewniany domek.D...

Zobacz ogłoszenie
3
Działka budowlana Łódź Kochanówka, ul. Kłosowa

412 000

1033

Uwaga - do sprzedania pozostaje tylko działka większa, gdyż mniejsza właśnie znalazła nabywcę i nie jest już w ofercie. Do sprzedania dwie sąsiadujące ze sobą działki budowlane ( własność ), w środku dzielnicy Łódź - Bałuty ( Kochanówka ) , przy ulicy Kłosowej nr 18 f, g. Na załączonym planie mają ...

Zobacz ogłoszenie
3
Działka inwestycyjna Łódź Polesie, ul. Zielona

6 100 000

1326

Łódź, ul. Zielona 39/39A. Powierzchnia łączna: 1.326 m2. Budynki zostały wyburzone. Obowiązuje Plan Zagospodarowania Przestrzennego (Uchwała Nr VI/211/19 RM w Łodzi). Możliwość zabudowy do 8.000 m2 powierzchni całkowitej. Cena dla możliwej do uzyskania powierzchni całkowitej. Możliwość rozliczenia c...

Zobacz ogłoszenie
2
Działka rolno-budowlana Łódź Górna, ul. Bałtycka

590 000

2500

Teren mieszkaniowy w pełni uzbrojony w spokojnej okolicy w mieście z pięknym widokiem na nie zamieszkałe tereny obok osiedla wielorodzinnego Chojny Park Kurczaki połączony z terenem inwestycyjnym z wspólnym wjazdem.

Zobacz ogłoszenie
6
Działka budowlana Łódź Górna, ul. Konna

994 340

1198

Na sprzedaż atrakcyjna nieruchomość gruntowa złożona z dwóch działek, położona w jednej z najszybciej rozwijających się części Łodzi, przy ul. Konnej 6, w bezpośrednim sąsiedztwie Stawów Stefańskiego. To idealna propozycja zarówno pod własny dom z ogrodem, jak i pod inwestycję. Nieruchomość o łączn...

Zobacz ogłoszenie
4
Działka budowlana Łódź Bałuty, ul. Warszawska

680 000

516

Na sprzedaż działka budowlana 516 m² przy ul. Warszawskiej w Łodzi. Z prawomocnym pozwoleniem na budowę i kompletem dokumentów. Oferta dla osób, które chcą kupić i rozpocząć budowę od razu. W cenie nieruchomości zawarty jest komplet dokumentów, w tym: - Prawomocne pozwolenie na budowę domu jednorod...

Zobacz ogłoszenie
1
Działka budowlana Łódź Arturówek, ul. Jeża

633 000

633

Jedna z najlepszych w Łodzi lokalizacji pod budowę domu. Działka pusta, kształt zbliżony do kwadratu. Wszystkie media (prąd, wodociąg, kanalizacja sanitarna i deszczowa, gaz, światłowód) obok działki. Wyłącznie asfaltowe, osiedlowe uliczki z ograniczeniem do "30", bez kurzu i błota.  Bardzo spokoj...

Zobacz ogłoszenie
2
Działka budowlana Łódź Bałuty, ul. Zajęcza

495 000

503

Mam do sprzedania piękną działkę budowlaną na prawach dzierżawy wieczystej , położoną w jednej z najlepszych lokalizacji w Łodzi. W pobliżu jest Las Łagiewnicki, przystanek autobusowy i sklep spożywczy. W ulicy jest prąd, gaz, kanalizacja, internet. Woda z wodociągu jest na działce.

Zobacz ogłoszenie
4
Działka rolna Łódź Widzew, ul. Popielarnia

180 000

1119

Działka z potencjałem do zabudowy w przyszłości po ewentualnej zmianie kolejnego Miejscowego Planu Zagospodarowania Przestrzennego , znajdująca się wśród zabudowanych działek. Na działce jest blaszak . Znajduje się w odległości 5 minut jazdy samochodem od centrum Nowosolnej - LIdl, Biedronka, s...

Zobacz ogłoszenie
9
Działka inwestycyjna Łódź Śródmieście, ul. Piotrkowska

19 900 000

2700

Kluczowe atuty inwestycji: Lokalizacja premium: Nieruchomość położona w ścisłym centrum Łodzi, z doskonałym dostępem do infrastruktury miejskiej, transportu publicznego oraz głównych arterii komunikacyjnych. Adres znany w całej Polsce ul. Piotrkowska 165/169. Gotowy projekt z PNU: Kompleksowa doku...

Zobacz ogłoszenie
3
Działka inwestycyjna Łódź Górna, ul. Krucza

3 250 000

1551

Oferujemy na sprzedaż atrakcyjną działkę inwestycyjną zlokalizowaną w Łodzi, przy ul. Kruczej 22. Jest to dynamicznie rozwijająca się część miasta z bardzo dobrym dostępem do komunikacji miejskiej, infrastruktury handlowo-usługowej oraz centrum Łodzi. Nieruchomość przeznaczona jest pod zabudowę mie...

Zobacz ogłoszenie
3
Działka inwestycyjna Łódź Polesie, ul. Pienista

2 800 000

2718

Działka inwestycyjna z planem zagospodarowania przestrzennego z możliwością budowy budynków wielorodzinnych do 5 kondygnacji sklepów parkingów itp na działce znajdują się 2 budynki po 25m2 każdy ( osobne przyłącza wody oraz instalacji elektrycznej) ogrodzona, utwardzana zapraszamy

Zobacz ogłoszenie
8
Działka budowlana Łódź Widzew, ul. Moskuliki

455 000

1360

Działka o powierzchni 1360 m2. Frontowe ogrodzenie z bramą - 1 roczne. Media: Prąd i Siła. Woda Miejska. Własna kanalizacja - nieużywana. Gaz w drodze. Na działce znajduje się budynek mieszkalny do własnej aranżacji, zbudowany z cegły w latach 2000 o powierzchni 50 m2. Skład budynku wchodzi: salon z...

Zobacz ogłoszenie
1
Działka rolno-budowlana Łódź Górna, ul. Przedborska

889 920

3296

Na sprzedaż działka rolno-budowlana położona w okolicy ulicy Śląskiej w Łodzi o powierzchni 3296 m2. Działka w kształcie prostokąta o wymiarach ok 81 x 40m. Działka posiada dostęp do 2 dróg, przylegających do krótszych boków działki. Bardzo dobra komunikacja, blisko też do wjazdu na autostradę A1. S...

Zobacz ogłoszenie
6
Działka rolna Łódź Górna, ul. Biwakowa

850 000

3193

Sprzedam malowniczą działkę z wydanymi warunkami zabudowy, położoną w spokojnej, zielonej okolicy w dolinie rzeki Ner - idealnej dla osób ceniących ciszę, prywatność i bliskość natury. Nieruchomość znajduje się przy ul. Biwakowej 56, w sąsiedztwie zabudowy jednorodzinnej oraz lasu. Teren składa się...

Zobacz ogłoszenie
1
Działka inwestycyjna Łódź Polesie

3 699 999

2,25 ha

Działka inwestycyjna na granicy Łodzi i Konstantynowa Łódzkiego, bardzo blisko zjazdu z drogi ekspresowej S14. Nieruchomość jest uzbrojona w: - wodę - prąd - gaz Na chwilę obecną brak planu zagospodarowania przestrzennego, w planie ogólnym ma to być teren z przeznaczeniem pod usługi. W najbliższym...

Zobacz ogłoszenie
1
Działka rolna Łódź Górna, ul. Brójecka

850 000

4640

Sprzedam działkę przy trasie ŁÓDŹ-GÓRNA. Lokalizacja przy rondzie ulic 600-lecia miasta Łodzi i ul. Brójeckiej. 15 min do centrum Łodzi i 5 min do trasy A1. Zabudowania w odległości 300m. Super inwestycja.

Zobacz ogłoszenie
7
Działka budowlana Łódź Górna, ul. Wrzecionowa

285 000

680

Witam, sprzedam dwie działki budowlane po około 680 m2 każda, położone w Łodzi przy ul. Wrzecionowej 4. Cicha i spokojna uliczka dająca z jednej strony prywatność i ciszę, ale położona blisko ul. Kolumny, co daje łatwość komunikacyjną. Aktualnie działka w trakcie podziału sądowego, myślę, że luty...

Zobacz ogłoszenie
4
Działka budowlana Łódź Górna, ul. Wiskicka

357 200

940

Sprzedam działkę o powierzchni 940m2 leżącej przy ulicy Wiskickiej 11 w Łodzi. Działka posiada pozwolenie na budowę, projekt domu Z228 ze strony z500.pl .dzialka będzie miała wszystkie media, do końca listopada 2025r. Będzie prąd, w przyszłym roku woda, gaz ziemny zostanie podłączony za dwa lata. Ce...

Zobacz ogłoszenie
1
Działka inwestycyjna Łódź Górna, ul. Browarna

720 000

847

Działka inwestycyjna Lokalizacja: 10 minut od Centrum Łodzi Powierzchnia: 847 m² Warunki zabudowy: budynek wielorodzinny z garażem podziemnym Parametry zabudowy (wg WZ) Wskaźnik zabudowy: 38% Maksymalna wysokość: 8,5 m Szacowana liczba kondygnacji nadziemnych: 3 (parter + 2 piętra) S...

Zobacz ogłoszenie
1
Działka inwestycyjna Łódź Chojny, ul. Rzgowska

1 400 000

702

Działka w atrakcyjnej lokalizacji z potencjałem handlowym i mieszkaniowym, przy ul. Rzgowskiej 45.

Zobacz ogłoszenie
7
Działka rekreacyjna Łódź Feliksin, ul. Ziemiańska

550 000

6381

Działka znajdująca się bezpośrednio przy ul. Ziemiańskiej w miejscowości Feliksin, miasto Łódź. W drodze prąd i gaz. W pobliżu lasy i domy mieszkalne, brak uciążliwego sąsiedztwa. Gmina Łódź-Widzew, obręb W-38. Numer działki 333/11 Powierzchnia 6381m2 Wymiary: szerokość 36m, długość 178,5m Cena d...

Zobacz ogłoszenie
4
Działka rolno-budowlana Łódź Widzew, ul. Gminna

2 760 000

2,76 ha

Sprzedam działkę rolną o powierzchni 2,76ha, wymiary to 57m x 490m w kształcie prostokąta. Nr działki 65/3 w obrębie W-38, położona przy ul. Gminnej w Łodzi. Dojazd do centrum 15min, odległość od przystanku MPK i PKP Łódź Olechów Wschód ok 400m. Wszystkie media w ul. Gminnej. Działka posiada wydan...

Zobacz ogłoszenie
1
Działka budowlana Łódź Radogoszcz, ul. Osadnicza

490 000

473

Sprzedam działkę w świetnej lokalizacji, przy Al. Włókniarzy. Działka z zabudowaniami (mieszkalne 80m2, garaż i pomieszczenia gospodarcze) do generalnego remontu lub wyburzenia. Przyłącze prądu i wody na działce , kanalizacja i gaz w ulicy.

Zobacz ogłoszenie
6
Działka rekreacyjna Łódź Doły, ul. Inflancka

20 000

500

Odstąpię możliwość dzierżawy działki rekreacyjnej. Działka położona w pobliżu skrzyżowania ulic Inflancka-Strykowska. Powierzchnia: 500 m2. Brak mediów. Na działce znajdują się dwie altany. Koszt dzierżawy wynosi ok. 300 zł miesięcznie.

Zobacz ogłoszenie
1
Działka rolna Łódź Widzew

120 000

2573

Sprzedam: Działkę Rolną o powierzchni 2573m2. LOKALIZACJA: Super lokalizacja! Łódź, ul. Czechosłowacka i Wagonowa. Działka narożna. Działka numer 306/1. Media w drodze. Atrakcyjna cena: 120 000 zł.

Zobacz ogłoszenie
6
Działka budowlana Łódź Górna, ul. Krakusa

1 670 000

1049

Sprzedam bezpośrednio nieruchomość składającą się z dwóch działek budowlanych przy ulicy Krakusa 19 i 21 w Łodzi. Działki o łącznej powierzchni 1049m kw (786m kw ul. Krakusa 19 i 263m kw ul. Krakusa 21), znajdują się bezpośrednio przy Wojewódzkim Wielospecjalistycznym Centrum Onkologii i Traumatolo...

Zobacz ogłoszenie
9
Działka budowlana Łódź Feliksin, ul. Feliksińska

345 000

1303

Dzień Dobry, Posiadam działkę do sprzedania o powierzchni 1303m2 z warunkami zabudowy oraz przyłączami wody i prądu. Gaz jest w uliczce. Warunki zabudowy na dom jednorodzinny o wielkości od 90m2 do 140m2. Kupujący rownież będzie posiadał udział w drodze. Działka zlokalizowana przy ulicy Feliksi...

Zobacz ogłoszenie
2
Działka budowlana Łódź Stare Złotno, ul. Stare Złotno

650 000

2000

Jedna z ostatnich nieruchomości umożliwiających zabudowę jednorodzinną przy ulicy Stare Złotno w Łodzi. Piękna, zielona okolica, z nową zabudową w sąsiedztwie. Na sprzedaż atrakcyjna nieruchomość budowlana (objęta MPZP) na Starym Złotnie nr 42, składająca się z 2 działek wskazanych na zdjęciu w zał...

Zobacz ogłoszenie
8
Działka rod Łódź Widzew, ul. Olkuska

86 000

350

Witam, Mam do sprzedania atrakcyjną działkę w spokojnej okolicy o powierzchni 350 m kw. Działka znajduje się przy ulicy Olkuskiej 9B. Na działce znajduje się dostęp do wszystkich mediów, takich jak prąd, woda, kanalizacja. Do budynku został dobudowany kolejny pokój. Budynek o powierzchni 35 m kw., p...

Zobacz ogłoszenie
1
Działka budowlana Łódź Górna, ul. Jesiotrowa

500 000

1225

Sprzedam działkę budowlaną znajdującą się w Łodzi na Rudzie Pabianickiej o powierzchni 1225 m2. Działka leża w pobliżu Portu Łódź wszystkie media znajdują się w ulicy. W pobliżu są sklepy, szkoła, komunikacja miejska. Spokojna, cicha okolica. Działka posiada warunki zabudowy

Zobacz ogłoszenie
3
Działka budowlana Łódź Ruda Pabianicka, ul. Konna

886 500

1773

Oferuję na sprzedaż, bezpośrednio, działkę budowlaną objętą MPZP, zlokalizowaną w pięknym miejscu w Łodzi, 500 m od Stawów Stefańskiego - ul. Konna. Numer działki: 131/65. Powierzchnia: 1773 m² Wymiary działki: 50 m x 36 m Działka posiada dostęp do utwardzonej drogi oraz dostęp do wszystkich medió...

Zobacz ogłoszenie
8
Działka inwestycyjna Łódź Widzew, ul. Jugosłowiańska

1 500 000

2,64 ha

Na sprzedaż działka o powierzchni 2,64 ha, położona przy ul. Jugosłowiańskiej 54, blisko zjazdu na autostradę. Spokojna, zielona okolica. Teren oznaczony jako zieleń niska - doskonały pod rekreację lub inwestycję. Nr działki: 336/12, obręb W47. Oferta prywatna — bez pośredników. Zapraszam do ko...

Zobacz ogłoszenie
2
Działka budowlana Łódź Widzew, ul. Gminna

250 000

1004

Sprzedam działkę budowlaną 1000 m2. Działka położona jest przy ul. Gminnej 149G w Łodzi. Nr działki: 355/14. - W otoczeniu zabudowy jednorodzinnej i pięknych terenów zielonych. - Na wprost działki las. - Do działki doprowadzony jest prąd oraz gaz. - Wydany plan zagospodarowania przestrzennego. Do...

Zobacz ogłoszenie
1
Działka rolna Łódź Górna, ul. św. Rafała Kalinowskiego

220 000

1,3 ha

Sprzedam działkę rolną w dzielnicy Wiskitno przy ul. Rafała Kalinowskiego / Aleja 600-lecia Oznaczenie użytku: RIIIa,RIIIb

Zobacz ogłoszenie
5
Działka budowlana Łódź Janów

420 000

1320

DZIAŁKA BUDOWLANA NA STYKU DZIELNIC JANÓW - MILESZKI (OBRĘB W-18) - WZ. - Prąd w trakcie podłączania. - Gaz w trakcie. - Woda - studnia głębinowa (istnieje możliwość podłączenia wodociągu miejskiego).

Zobacz ogłoszenie
3
Działka budowlana Łódź Bałuty, ul. Andrzeja Niemojewskiego

480 000

472

Witam, Na sprzedaż niezabudowana, nieporośnięta, nieobciążona, równa działka o pow. 472 m². Bardzo dogodne wymiary prostokąta - ok. 15 x 31 m. Wg studium teren pod zabudowę. Sąsiad obok również sprzedaje działkę nr 602 (zabudowana). Można powiększyć teren. Cena ostateczna. Nie jesteś zainteresowa...

Zobacz ogłoszenie
7
Działka rod Łódź Widzew, ul. Pomorska

39 000

300

Odstąpię prawo do użytkowania działki ROD na terenie ogródków działkowych Morwa na ul. Pomorskiej. Działka: - ok. 300 m2, - ogrodzona, - prąd w domku, - woda w rogu działki.

Zobacz ogłoszenie
1
Działka budowlana Łódź Mileszki, ul. Gryfa Pomorskiego

325 350

723

Działka położona w pięknej ,modnej okolicy .Sąsiaduje po bokach z domami 1-rodzinnymi,ale 1 bokiem także z małym laskiem z drzewostanem mieszanym.Dojazd do centrum Łodzi w kilka minut ulicą Pomorską i Brzezińską.Jednocześnie znajduje się kilkaset metrów od sklepów szkół i infrastruktury w No...

Zobacz ogłoszenie
16
Działka rolna Łódź Widzew, ul. Bakaliowa

329 000

1000

Sprzedam działkę rolną: Łódź Widzew, Feliksin, 600 m od Wiśniowej Góry. Działka 1000 m2 w kwadracie. Działka narożna. Posiada MPZP z określonymi warunkami zabudowy z pieczęcią ostateczności. Teren jest ogrodzony z bramą i furtką. Na działce znajduje się garaż wolnostojący o powierzchni około 34 m2...

Zobacz ogłoszenie
7
Działka rekreacyjna Łódź Bałuty, ul. Romanowska

200 000

1117

Na sprzedaż - działka 1117 m² w granicach Łodzi (ul. Romanowska) Szukasz spokojnego miejsca w zielonej okolicy, a jednocześnie blisko miasta? Ta działka to idealne połączenie ciszy i wygody! • Powierzchnia: 1117 m² - w pełni ogrodzona. • Na działce znajduje się dom o pow. ok. 20 m² - do remontu. •...

Zobacz ogłoszenie
1
Działka budowlana Łódź Małe Łagiewniki

1 200 000

3000

Sprzedam działkę: - o powierzchni 3000 m, - w okolicach Łagiewnik, - z warunkami zabudowy. Więcej informacji pod nr. telefonu.

Zobacz ogłoszenie
8
Działka rod Łódź Widzew, ul. Opolska

99 000

640

Działka ROD a właściwie 2 działki użytkowane jako jedna, ponieważ zakupiliśmy z partnerką po jednej na Siebie i połączyliśmy. Dlatego sprzedajemy tylko dwie razem. U notariusza należy przenieść prawa do działek dla każdej osobno tak jak my zrobiliśmy. Działka ma wjazd od ulicy Opolskiej 63A niedalek...

Zobacz ogłoszenie
1
Działka rolna Łódź Górna, ul. Nad Stawem

55 000

924

Sprzedam działkę rolną położoną w Wiskitnie. Klasa ,RV,ŁV,PsV Użytek N,R,Ł,Ps. Polecam

Zobacz ogłoszenie
2
Działka budowlana Łódź Widzew, ul. Spartakusa

550 000

1150

Działki budowlane / inwestycyjne - ul. Spartakusa 47, Łódź Powierzchnia: każda ok. 1 150 m² Cena: od 550 000 zł Sprzedaż prywatna - bez pośredników DZIAŁKI NA SPRZEDAŻ Na sprzedaż cztery atrakcyjne działki położone w Łodzi przy ulicy Spartakusa (dzielnica Sikawa - Widzew). Wszystkie mają powierz...

Zobacz ogłoszenie
2
Działka budowlana Łódź Widzew, ul. Łodzianka

529 000

2035

DZIAŁKA 2035 m² NA SPRZEDAŻ - ŁÓDŹ, STRYKOWSKA/ŁODZIANKA 📍 Lokalizacja premium przy drodze krajowej nr 14 Atrakcyjna działka usługowo-budowlana o powierzchni 2035 m² zlokalizowana w strategicznym punkcie Łodzi - przy zbiegu ulic Strykowska i Łodzianka. 🎯 Kluczowe atuty nieruchomości ✅ Media na dzi...

Zobacz ogłoszenie
1
Działka rod Łódź Górna, ul. Telefoniczna

46 000

300

Sprzedam prawo do użytkowania działki rekreacyjnej ROD. Działka o pow. 300m2 znajduje się w Łodzi na terenie ROD \"Wspólna praca\" przy ul. Telefonicznej Na terenie działki znajduje się domek murowany, nowy dach do wykończenia w środku według własnej aranżacji. Wyposażona jest w instalację elektrycz...

Zobacz ogłoszenie
8
Działka rod Łódź Górna

69 000

305

Komfortowa działka ROD z murowanym domkiem i bujną roślinnością - idealne miejsce do wypoczynku dla całej rodziny! Na sprzedaż wyjątkowa, w pełni ogrodzona działka o powierzchni ponad 300 m², położona na terenie zadbanego ogrodu ROD. To idealne miejsce dla osób, które marzą o własnym zielonym azylu...

Zobacz ogłoszenie
3
Działka budowlana Łódź

440 000

1800

Sprzedam bezpośrednio! Piękna działka budowlana w Łodzi o pow. 1800 m2, znajdująca się na obszarze Parku Krajobrazowego Wzniesień Łódzkich. To lokalizacja idealna dla osób chcących żyć blisko natury, ale jednocześnie mieć dostęp do wszystkiego, co oferuje życie w mieście. - Malownicza okolica, bli...

Zobacz ogłoszenie
5
Działka budowlana Łódź Bałuty, ul. Pastelowa

430 000

1069

Witam,mam na sprzedaż działkę budowlaną w cichej,zielonej okolicy z zabudową domów jednorodzinnych.Niechuromość ma warunki zabudowy,promesę na gaz,pozostałe media są.

Zobacz ogłoszenie
8
Działka rod Łódź Teofilów, ul. św. Teresy od Dzieciątka Jezus

34 500

456

Sprzedam działkę ROD 456 metrów kwadratowych. Lokalizacja: w Łodzi, Teofilów przy ulicy św. Teresy od Dzieciątka Jezus. Działka 456 m², uporządkowana, zadbana, nakład pracy na bieżąco. Ogrodzona, z nasadzeniami drzew, krzewów owocowych oraz kwiatów. Na działce znajduje się altana około 15 m², sch...

Zobacz ogłoszenie
5
Działka budowlana Łódź Stare Złotno

695 000

1474

Dzień dobry, Sprzedam bezpośrednio piękną działkę budowlaną, przeznaczoną na zabudowę jednorodzinną, o powierzchni 1500 m2 o kształcie trapeza. Prestiżowa lokalizacja, wśród innych domów jednorodzinnych na Starym Złotnie. Dodatkową zaletą działki jest możliwość dojazdu z dwóch stron, możliwość bu...

Zobacz ogłoszenie
1
Działka rod Łódź Marysin, ul. Marysińska

zapytaj

320

Do sprzedaży działka ROD 320 m2  Lokalizacja: Łódź- Marysin, ul.Marysinska. Działka jest zagospodarowana rekreacyjnie Jeśli chodzi o wodę to jest wspólna a energia własna (umowa z energetyką bezpośrednia).  Cena do ustalenia Budnek murowany, piwnica wielkosci budynku, okna plastikowe, światło własne...

Zobacz ogłoszenie
8
Działka rod Łódź Śródmieście, ul. ks. bp. Wincentego Tymienieckiego

52 000

285

Na sprzedaż atrakcyjna działka o powierzchni 285 m² w Rodzinnych Ogrodach Działkowych przy ul. Tymienieckiego w Łodzi, tuż przy malowniczym Parku nad Jasieniem. Atuty działki: • Powierzchnia 285 m² - idealna do wypoczynku i własnych upraw. • Doskonała lokalizacja - działka znajduje się blisko wejś...

Zobacz ogłoszenie
2
Działka inwestycyjna Łódź Nowosolna, ul. Grabińska

1 999 000

2830

Działka budowlano-usługowa - 2834 m2. 300 metrów od skrzyżowania w Nowosolnej. Na działce dwa budynki: • 800 m2 w stanie surowym otwartym zadaszonym (duża sala ze strefą spa, a na górze 10 pokojów z łazienkami). • 100 m2 - pomieszczenie gospodarcze. Media w drodze (80 metrów): - Kanalizacja - Wod...

Zobacz ogłoszenie
10
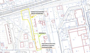
Działka inwestycyjna Łódź Widzew, ul. Zapadła

2 470 000

1321

Działka według wyceny operatu szacunkowego uwzględniający wydane i prawomocne warunki zabudowy w cenie 2 470 000 zł Na sprzedaż działka komercyjna w Łodzi. Powierzchnia działki jest płaska i ogrodzona. Dostępne są wszystkie media: prąd, woda, gaz, telefon i kanalizacja. Jest to idealne miejsce na i...

Zobacz ogłoszenie
8
Działka rod Łódź Retkinia, ul. Krańcowa

35 000

300

Sprzedam prawo do użytkowania działki ROD na terenie ogrodu "Brus" w Łodzi, ul. Krańcowa 20. ROD ten jest wyjątkowy z uwagi na bliskość lasów i terenów zielonych. Cisza i spokój, a sąsiedzi życzliwi i bezkonfliktowi. Działka nr 172: - około 300 m2, - drewniany domek o pow. 20 m2, - prąd, woda na d...

Zobacz ogłoszenie
7
Działka rod Łódź Śródmieście

48 000

300

Dzień dobry, mam do sprzedania piękną działkę na terenie ROD Księży Młyn o powierzchni 300 m2. Działka ma liczne nasadzenia: - jabłoń, - śliwa, - wiśnia, - czereśnia, - winogrono, - agrest, - porzeczka. Sam raz na raz :) Na działce znajduje się mały domek z możliwością noclegu. Całe wyposażenie d...

Zobacz ogłoszenie
4
Działka rod Łódź Widzew, ul. Przędzalniana

40 000

500

Odstąpię działkę nr 108 VI KW w Rodzinnym Ogrodzie Działkowym Księży Młyn. Powierzchnia 500 m2. Dojazd od ul. Tymienieckiego. Wejście przy Folwarku Scheiblera. Na działce znajduje się domek letniskowy oraz narzędziowy i jest uzbrojona w przyłącze wody oraz energii elektrycznej.

Zobacz ogłoszenie
6
Działka budowlana Łódź Mileszki, ul. Bratkowa

266 500

1066

Działki Łódź-Widzew z Warunkami Zabudowy Mam na sprzedaż działkę bądź działki położone w Łodzi przy ul. Bratkowej (Osiedle Mileszki). - Na działki wydane są Warunki Zabudowy. - Działki z dostępem do mediów, które są w drodze, tj. woda, prąd, gaz. - Działki znajdują się pośród zabudowy jednorodzinn...

Zobacz ogłoszenie
10
Działka rod Łódź Widzew

60 000

500

Na sprzedaż oferuję atrakcyjny ogródek działkowy o powierzchni 500 m², zlokalizowany na terenie Rodzinnych Ogródków Działkowych ROD Janosik. Działka zadbana, z licznymi nasadzeniami oraz wygodnym, murowanym domkiem o powierzchni 30 m² do odświeżenia. Szczegóły oferty: • Powierzchnia działki: 500 m²...

Zobacz ogłoszenie
5
Działka rod Łódź Śródmieście

55 000

300

Sprzedam działkę ROD 300 m². Więcej info pod numerem tel.

Zobacz ogłoszenie
8
Działka inwestycyjna Łódź Widzew

4 500 000

1366

NA SPRZEDAŻ: BUDYNEK USŁUGOWY NA WIDZEWIE - IDEALNA INWESTYCJA! Na sprzedaż budynek usługowy o dużym potencjale inwestycyjnym, położony w Łodzi na Widzewie (Wi-Fama). Obecnie funkcjonuje jako restauracja, jednak jego układ i udogodnienia pozwalają na różnorodne adaptacje. Opis nieruchomości: • Pow...

Zobacz ogłoszenie
5
Działka rod Łódź Śródmieście, ul. ks. bp. Wincentego Tymienieckiego

45 000

300

Na sprzedaż zadbana działka rekreacyjna o powierzchni 300 m² zlokalizowana w Rodzinnych Ogrodach Działkowych "Księży Młyn" przy ul. ks. bp. Wincentego Tymienieckiego w Łodzi (Śródmieście, blisko Parku nad Jasieniem). ​Główne atuty: • ​Powierzchnia: 300 m² - idealna do wypoczynku i upraw. Na działce ...

Zobacz ogłoszenie
7
Działka rod Łódź Bałuty, ul. Telefoniczna

40 000

316

Sprzedam prawa do działki w ROD \"Słoneczny Ogród\" przy ul Telefonicznej 28 o powierzchni 316 M2 .Działka jest ogrodzona, ma podłączony prąd i wodę . Stoi na niej murowany domek z tarasem. Na działce rośnie, jabłoń ,maliny, agrest ,porzeczka, winogrono i liczne kwiaty . Szczegółowych informacji chę...

Zobacz ogłoszenie
1
Działka rolno-budowlana Łódź Bałuty, ul. Strykowska

550 000

3760

Sprzedam działkę rolną z bezpośrednim dostępem do drogi krajowej. Działka z planem MPZP.

Zobacz ogłoszenie
9
Działka budowlana Łódź Widzew, ul. Nad Niemnem

540 000

3000

Sprzedam jedną (lub dwie) z działek budowlanych o pow. 3000 m², każda z pozwoleniem na budowę domu jednorodzinnego parterowego z poddaszem użytkowym o łącznej powierzchni: - 201,4 m² (w tym parter: 127,69 m², poddasze: 73,71 m²), - lub 222,4 m² (w tym parter: 117,02 m², poddasze: 105,4 m²). W bryle ...

Zobacz ogłoszenie
6
Działka budowlana Łódź Rogi, ul. Ametystowa

690 000

1206

Na sprzedaż działka budowlana o powierzchni 1 206 m², położona w spokojnej i zielonej okolicy Łodzi - osiedle Rogi. Działka w kształcie zbliżonym do kwadratu, ogrodzona i oczyszczona - gotowa pod budowę domu jednorodzinnego. W jednym z narożników znajduje się niewielki domek gospodarczy, idealny do...

Zobacz ogłoszenie
8
Działka rod Łódź Górna, ul. Andrzeja Frycza-Modrzewskiego

68 000

510

Witam, sprzedam działkę ROD przy ulicy Andrzeja Frycza-Modrzewskiego. Lub zamienię na działkę budowlaną, ewentualnie z dopłatą. Działka ma prąd oraz wodę. Powierzchnia działki 510 m2. Na działce znajduje się wydzielony ogródek warzywny, szklarnia, przyczepa kempingowa z kuchnią oraz łóżkiem, a tak...

Zobacz ogłoszenie
10
Działka budowlana Łódź Moskule, ul. Koniakowska

289 000

739

Na sprzedaż działki budowlane z pozwoleniem na budowę - Łódź, ul. Koniakowska 19 Na sprzedaż atrakcyjne działki budowlane położone w jednej z bardziej prestiżowych lokalizacji w Łodzi - przy ul. Koniakowskiej 19. To spokojna, kameralna okolica z domami w zabudowie jednorodzinnej, z dala od miejskie...

Zobacz ogłoszenie
1
Działka rolna Łódź Widzew

2 140 000

1,19 ha

Działka rolno-budowlana z warunkami zabudowy na dom jednorodzinny, zlokalizowana w cichej i spokojnej okolicy, dobrze skomunikowanej z centrum Łodzi. Główne atuty nieruchomości: * cicha i spokojna okolica, * z dobrym dojazdem (droga asfaltowa), * piękny widok, * działka rolna ze stawem, * w sąsiedz...

Zobacz ogłoszenie
2
Działka budowlana Łódź Bałuty, ul. Zagajnikowa

2 000 000

1918

Oferuję do sprzedaży działkę budowlano - inwestycyjną o powierzchni 1 918 m2, położoną w Łodzi ul. Zagajnikowa. Działka z przeznaczeniem zarówno pod budownictwo mieszkaniowe jak również pod budownictwo uzupełniające - handel, usługi. Na działce jest przyłącze elektryczne, woda w ulicy, możliwość p...

Zobacz ogłoszenie
8
Działka rod Łódź Łagiewniki, ul. Przyklasztorze

100 000

300

Na sprzedaż zadbana działka ROD o powierzchni 300m, położona w świetnej lokalizacji -Łagiewniki, przy Klasztorze sektor B. Działka ogrodzona zgodnie z wymogami ROD. Idealna na wypoczynek, weekendy z rodziną albo jako baza wypadowa do Lasu Łagiewnickiego. Na działce znajduje się drewniany całoroczny...

Zobacz ogłoszenie
1
Działka inna Łódź Chojny, ul. gen. Ignacego Prądzyńskiego

179 000

894

Działka prostokątna , samosiejki. Nie jest to według prawa las ponieważ jest mniejsza niż 1000 mk.

Zobacz ogłoszenie