Ogłoszenie wstrzymane
Mieszkanie na sprzedaż bez pośredników Wrocław Muchobór Wielki ul. Graniczna · 2 piętro
Jeśli nie potrzebujesz pośrednika, zaoszczędzisz prowizję. Potrzebujesz wsparcia? Skorzystaj z pomocy agenta.
Na sprzedaż: 4-pokojowe mieszkanie z komórką lokatorską i balkonem - Wrocław, ul. Graniczna
Na sprzedaż przestronne i ustawne mieszkanie o powierzchni 70,59 m², położone na 2. piętrze w 4-piętrowym budynku z windą z 2017 roku. Mieszkanie znajduje się na nowoczesnym, zadbanym osiedlu z pełną infrastrukturą i dobrą komunikacją z centrum miasta.
PODSTAWOWE INFORMACJE:
- metraż: 70,59 m²
- liczba pokoi: 4
- piętro: 2/4 (winda)
- rok budowy: 2017
- forma własności: pełna własność
- ogrzewanie: miejskie
- czynsz: ~850 zł
- stan: do zamieszkania
- dostępne: od zaraz
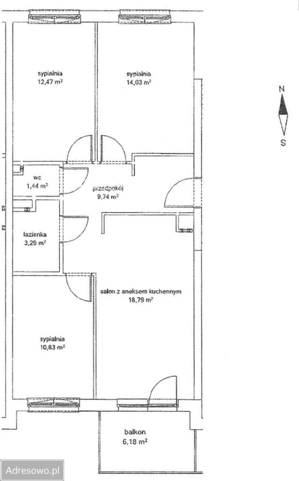
UKŁAD POMIESZCZEŃ:
- pokój dzienny z aneksem kuchennym - 18,79 m²
- sypialnia 1 - 14,03 m²
- sypialnia 2 - 12,47 m²
- sypialnia 3 - 10,83 m²
- łazienka - 3,29 m²
- toaleta - 1,44 m²
- przedpokój - 9,74 m²
- balkon - 6,18 m²
Do mieszkania przynależy komórka lokatorska (5,56 m²).
Dodatkowo istnieje możliwość za dodatkową opłatą zakupu miejsca postojowego w garażu podziemnym (na osobnej księdze wieczystej).
WYPOSAŻENIE I WYKOŃCZENIE:
- kuchnia w zabudowie + sprzęt AGD,
- pralka i suszarka,
- meble,
- gres na podłodze i ścianach w łazience oraz toalecie, a w aneksie kuchennym i części przedpokoju tylko na podłodze,
- w pozostałych pomieszczeniach panele,
- plastikowe okna z ekspozycją północ-południe,
- mieszkanie kupione jako nowe, użytkowane tylko przez jedną rodzinę - zadbane i gotowe do wprowadzenia.
LOKALIZACJA:
- osiedle przy ul. Granicznej - wjazd przez szlaban, przed wejściem do klatki znajduje się plac zabaw,
- w pobliżu Park Tysiąclecia,
- pełna infrastruktura handlowo-usługowa - w sąsiedztwie Factoria oraz Wrocław Fashion Outlet, Carrefour, Leroy Merlin, Castorama, Biedronka,
- przystanek autobusowy - niecałe 300 m,
- przystanek tramwajowy - 1 km,
- rynek - ok. 6,5 km,
- dogodny wyjazd z miasta (AOW).
Mieszkanie idealne dla rodziny - przestronne, funkcjonalne i w świetnej lokalizacji.
Preferuję kontakt po godzinie 16:00.
Pośrednikom dziękujemy.
-
Na sprzedaż mieszkanie 4-pokojowe o powierzchni 70,59 m² balkon, piwnica, możliwość dokupienia garażu, aneks kuchenny
-
2 piętro w 4-piętrowym bloku z windą, rok budowy 2017
-
Wrocław, Muchobór Wielki ul. Graniczna
-
Mieszkanie w bardzo dobrym stanie okna plastikowe
-
Odrębna własność z księgą wieczystą
-
Wyposażenie internet, lodówka, piekarnik, pralka, zmywarka
-
Świadectwo Energetyczne
-
Oferta bezpośrednio od właściciela dodana ponad miesiąc temu
Ogłoszenia nieruchomości z tej okolicy
-
Mieszkania na sprzedaż
Wrocław -
Mieszkania 4-pokojowe Wrocław
-
Mieszkania Wrocław ul.
Graniczna -
Mieszkania na sprzedaż
Wrocław Muchobór Wielki -
Mieszkania 4-pokojowe Wrocław
Muchobór Wielki -
Mieszkania dolnośląskie
-
Mieszkania do wynajęcia
Wrocław -
Ogłoszenia nieruchomości Wrocław
-
Domy Wrocław
-
Ceny mieszkań Wrocław