Mieszkanie na sprzedaż bez pośredników
ul. Zgodna Wrocław Krzyki

Mieszkanie 3-pokojowe Wrocław Krzyki, ul. Zgodna. Zdjęcie 1

Mieszkanie na sprzedaż bez pośredników Wrocław Krzyki ul. Zgodna · 1 piętro

680 000
10 526 zł/m²
64
3 pok.
Wrocław Krzyki, Zgodna - lokalizacja przybliżona
Bezpośrednio od właściciela

Jeśli nie potrzebujesz pośrednika, zaoszczędzisz około 20 400 zł. Potrzebujesz wsparcia? Skorzystaj z pomocy agenta.

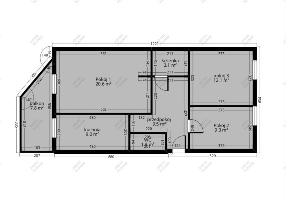
Oferuję na sprzedaż 3-pokojowe mieszkanie na pierwszym piętrze. Mieszkanie znajduje się w plombie z lat 90. Posiada dobrze zaaranżowany układ, oddzielną kuchnię, trzy pokoje, oddzielną toaletę i łazienkę oraz duży balkon od strony zamkniętego podwórza.

- Media miejskie (C.O., ciepła woda)
- Przynależna duża piwnica.
- Miesięczne koszty utrzymania ok. 1000 zł

Lokalizacja to serce miasta, blisko licznych atrakcji. W pobliżu znajdziesz parki, kina, restauracje oraz sklepy. Do komunikacji miejskiej masz łatwy dostęp, co zapewnia wygodę w codziennych dojazdach. W okolicy są również placówki edukacyjne oraz przychodnie zdrowia.

  • Na sprzedaż mieszkanie 3-pokojowe o powierzchni 64,60 m² balkon, piwnica, osobna kuchnia
  • 1 piętro w 4-piętrowym bloku bez windy, rok budowy 1990
  • Wrocław, Krzyki ul. Zgodna
  • Mieszkanie w stanie do częściowego remontu okna plastikowe
  • Spółdzielcze własnościowe  
  • Oferta bezpośrednio od właściciela dodana ponad miesiąc temu i zaktualizowana ponad tydzień temu
Ta nieruchomość może być Twoja od.. sprawdź
136000 zł (20%) Okres spłaty: 30 lat

Podobne mieszkania na sprzedaż

6
Mieszkanie 3-pokojowe Wrocław Krzyki, ul. Śliczna

660 000

55

3 pok.

Mam przyjemność zaprezentować Państwu wyjątkowe, w pełni rozkładowe i dwustronne mieszkanie o powierzchni 55m2, położone we Wrocławiu przy ul. Ślicznej, jednej z bardziej cenionych lokalizacji w tej części miasta. Ta propozycja jest idealna zarówno dla osób szukających dobrego miejsca do zamieszkan...

Zobacz ogłoszenie
8
Mieszkanie 3-pokojowe Wrocław Krzyki, ul. Blizanowicka

675 000

66

3 pok.

Na sprzedaż mieszkanie 66,5 m2 na nowo wybudowanym, zamkniętym osiedlu. BEZ pośredników, w stanie deweloperskim przy ulicy Blizanowickiej. 3 pokojowe z balkonem, doskonale doświetlone na 2 piętrze w bloku z windą oraz z miejscem postojowym.

Zobacz ogłoszenie
15
Mieszkanie 4-pokojowe Wrocław Krzyki, ul. gen. Romualda Traugutta

695 000

71

4 pok.

Mieszkanie 4 pokojowe, II poziomowe o pow. 71,03 m.kw. położone na 4 piętrze w kamienicy przy ul. Traugutta. Mieszkanie w dobrym stanie technicznym, zadbane, do zamieszkania. Układ mieszkania: I poziom: - przedpokój - kuchnia - salon - łazienka II poziom: - 3 sypialnie,  - schowek - garder...

Zobacz ogłoszenie
15
Mieszkanie 3-pokojowe Wrocław Krzyki, ul. Drukarska

680 000

53

3 pok.

Na sprzedaż w pełni wyremontowane, 3-pokojowe mieszkanie o powierzchni 53,5 m², położone na wysokim parterze w budynku z lat 70. przy ul. Drukarskiej  na wrocławskim Grabiszynie. Lokal dostępny od zaraz. Mieszkanie przeszło gruntowny remont, podczas którego wymieniono wszystkie instalacje elektryczn...

Zobacz ogłoszenie
13
Mieszkanie 3-pokojowe Wrocław Krzyki, ul. Nyska

670 000

56

3 pok.

ul. Nyska okolice Klimatyczne, oryginalne i przestronne dwupokojowe mieszkanie o pow. 56 m wraz z dodatkową powierzchnią mieszkalną na antresoli (pokoju) o pow. około 12 m w kamienicy z 1930 roku na Krzykach. Mieszkanie znajduje się na trzecim piętrze w trzypiętrowej zadbanej kamienicy składa się z ...

Zobacz ogłoszenie
16
Mieszkanie 3-pokojowe Wrocław Krzyki, ul. Orzechowa

700 000

68

3 pok.

Mieszkanie dwustronne, 3-pokojowe, rozkładowe z dużym balkonem i miejscem parkingowym. Atrakcyjna lokalizacja: Wrocław-Krzyki, osiedle Gaj, ul. Orzechowa. Mieszkanie mieści się na 3. piętrze w 10-piętrowym bloku. Atutem mieszkania jest jego pełny rozkład i funkcjonalność oraz dwa dodatkowe pomiesz...

Zobacz ogłoszenie