Mieszkanie na sprzedaż bez pośredników
ul. Ruczaj Warszawa Wilanów

NOWA OFERTA
Mieszkanie 4-pokojowe Warszawa Wilanów, ul. Ruczaj. Zdjęcie 1

Mieszkanie na sprzedaż bez pośredników Warszawa Wilanów ul. Ruczaj · 1 piętro

1 366 750
11 000 zł/m²
124
4 pok.
Warszawa Wilanów, Ruczaj - lokalizacja przybliżona
Bezpośrednio od właściciela

Jeśli nie potrzebujesz pośrednika, zaoszczędzisz około 41 000 zł. Potrzebujesz wsparcia? Skorzystaj z pomocy agenta.

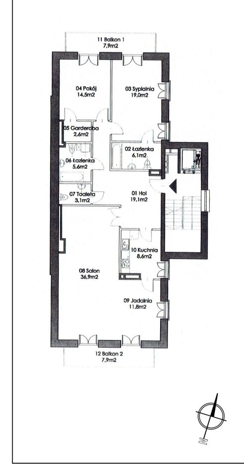
124,25 m2 na 1 piętrze z 2 balkonami po 7,9 m2, w stanie deweloperskim po 11 tys. zł/m2, (cena [numer] zł).
Na życzenie -wykończone "pod klucz" w wysokim standardzie -w cenie po 1750 zł/m2 (wtedy -cena [numer] zł.
-----------
Wysokość mieszkania -282 cm a powierzchnie pomieszczeń:
- PRZEDPOKÓJ/HOL 18,71 m2,
- KUCHNIA -8,60 m2,
- SALON -36,10 m2,
- JADALNIA - 11,71 m2,
- 2 POKOJE- 18,54 m2, i 13,97 m2 z garderobą 2,56 m2,
- 2 ŁAZIENKI - 5,99 i 5,19 m2,
- WC -2,88 m2.
Salon z jadalnią i kuchnią mają łącznie powierzchnię 56,41 m2 i 4 okna tak, że bez problemu (stawiając ściankę działową) można
uzyskać 4-ty pokój (gabinet lub sypialnię) i nie wymaga to przenoszenia żadnych instalacji, ani wyprowadzeń.
W pokoju 18,54 m2 są 3 okna (w tym jedno z wyjściem na balkon) tak, że ten pokój też można podzielić na 2 mniejsze.
------------
Do nabycia dodatkowo (nieobowiązkowo): miejsce w garażu (+48000 zł), komórka lokatorska (+30000 zł).
Typowy stan deweloperski, tzn. są rozprowadzenia wszystkich mediów i zainstalowane kaloryfery. Okna drewniane bdb jakości.
-----------
Dla tej inwestycji Leroy Merllin udziela zniżki 10% na materiały i wyposażenie z bezpłatnym dowozem.
Powyższa oferta ma charakter informacyjny i nie stanowi oferty w rozumieniu art. 66 paragraf 1 Kodeksu Cywilnego.

  • Oferta z rynku pierwotnego
  • Na sprzedaż mieszkanie 4-pokojowe o powierzchni 124,25 m² balkon, piwnica, możliwość dokupienia garażu
  • 1 piętro w 2-piętrowym apartamentowcu bez windy, rok budowy 2024
  • Warszawa, Wilanów ul. Ruczaj
  • Mieszkanie do wykończenia okna drewniane
  • Odrębna własność z księgą wieczystą  
  • Wyposażenie internet
  • Oferta bezpośrednio od właściciela dodana wczoraj
Ta nieruchomość może być Twoja od.. sprawdź
273000 zł (20%) Okres spłaty: 30 lat

Podobne mieszkania na sprzedaż

20
Mieszkanie 5-pokojowe Warszawa Wilanów, ul. Zapłocie

1 220 000

117

5 pok.

Zapraszam do zapoznania się z ofertą mieszkania 5 pokojowego z dużym balkonem o powierzchni użytkowej 117 mkw. Powierzchnia całkowita mieszkania to około 130 mkw, gdyż poddasze zostało dodatkowo zaadaptowane. Zalety: - Bliskość komunikacji miejskiej, 100 metrów od budynku znajduje się przystanek aut...

Zobacz ogłoszenie
14
Mieszkanie 5-pokojowe Warszawa Białołęka, ul. Chęcińska

1 340 000

121

5 pok.

Kupujesz bez dodatkowych opłat i prowizji! Mieszkanie w stanie deweloperskim oddane do użytku w przyszłym roku (III kwartał 2026). Nowoczesny segment skrajny z ogródkiem - bezczynszowy lokal na Tarchominie Szukasz przestrzeni dla rodziny, ale nie chcesz rezygnować z miejskich udogodnień? Osiedle na ...

Zobacz ogłoszenie
8
Mieszkanie 3-pokojowe Warszawa Wilanów, ul. Franciszka Klimczaka

1 299 000

85

3 pok.

Mam przyjemność zaprezentować Państwu mieszkanie 3 pokojowe o powierzchni 85,56m2 zlokalizowane w Centralnej Części Miasteczka Wilanów tuż obok Świątyni Opatrzności.  

Nieruchomość znajduję się na ogrodzonej posesji z własną ochroną i monitoringiem, a budynek wybudowano w 2009 roku.  

Mieszkanie ...

Zobacz ogłoszenie
20
Mieszkanie 5-pokojowe Warszawa Rembertów, ul. Pancerna

1 349 000

147

5 pok.

Atuty nieruchomości w skrócie ! 147,5 mkw  bezczynszowe ogród 86,8 mkw 2 x balkon kominek | klimatyzacja na 2 poziomach zew. m. postojowe | domek narzędziowy zamknięte osiedle Mieszkanie Przedstawiam funkcjonalne, bezczynszowe, dwupoziomowe mieszkanie o powierzchni 147,5 mkw mieszczące się w budyn...

Zobacz ogłoszenie
9
Mieszkanie 4-pokojowe Warszawa Wilanów, ul. Ruczaj

1 573 375

125

4 pok.

Nowe

Lokal o powierzchni 125,07 m2 kosztuje 11 tys. zł/1m2, (1375770 zł) a ogródek kosztuje dodatkowo 187605 zł. Lokal jest na parterze z bez barierowym wyjściem na ogródek o powierzchni 232 m2. Ogródek jest wyodrębniony, ogrodzony i przynależy wyłącznie do tego mieszkania. Ogródek z 2 stron sąsiaduje pr...

Zobacz ogłoszenie
12
Mieszkanie 7-pokojowe Warszawa, ul. Świętokrzyska

1 400 000

79

7 pok.

Na sprzedaż wyjątkowe mieszkanie w samym sercu Warszawy, przy ul. Świętokrzyskiej. Mieszkanie o powierzchni 79,6 m², składające się z 7 odrębnych pokoi, co czyni je idealnym pod wynajem. Lokal znajduje się na 5. piętrze w zadbanym budynku. Mieszkanie jest umeblowane i gotowe do wynajęcia. Mieszkani...

Zobacz ogłoszenie