Mieszkanie na sprzedaż bez pośredników
Ruczaj Warszawa Wilanów

NOWA OFERTA
Mieszkanie 4-pokojowe Warszawa Wilanów, Ruczaj. Zdjęcie 1

Mieszkanie na sprzedaż bez pośredników Warszawa Wilanów Ruczaj · 1 piętro

1 375 770
11 000 zł/m²
125
4 pok.
Warszawa Wilanów, Ruczaj - lokalizacja przybliżona
Bezpośrednio od właściciela

Jeśli nie potrzebujesz pośrednika, zaoszczędzisz około 41 300 zł. Potrzebujesz wsparcia? Skorzystaj z pomocy agenta.

Lokal o powierzchni 125,07 m2 kosztuje 11 tys. zł/1m2, ([numer] zł) a ogródek kosztuje dodatkowo 187605 zł. Lokal jest na parterze z bez barierowym wyjściem na ogródek o powierzchni 232 m2. Ogródek jest wyodrębniony, ogrodzony i przynależy wyłącznie do tego mieszkania. Ogródek z 2 stron sąsiaduje przez "płot" z ogródkami sąsiednich mieszkań.
Aktualny stan mieszkania jest tzw. deweloperski, tzn. są wylewki podłogowe, malowane tynki, rozprowadzenia wszystkich mediów i podłączone kaloryfery i drewniane okna i drzwi zewnętrzne.
Wykonujemy KOMPLETNE WYKOŃCZENIE w bardzo wysokim standardzie w cenie po 1750 zł za 1 m2, cena wykończenia 218872 zł. Cena mieszkania wykończonego "pod klucz" -[numer] zł (12750 zł/m2), a łącznie z ceną ogródka - [numer] zł. W tej cenie są także dobrej jakości meble kuchenne wraz z montażem.
Wejście do budynku i lokalu -BEZ BARIEROWE (zero schodów).
Na tej kondygnacji jest tylko 1 mieszkanie a nad nim na 1 piętrze jest też tylko jedno.
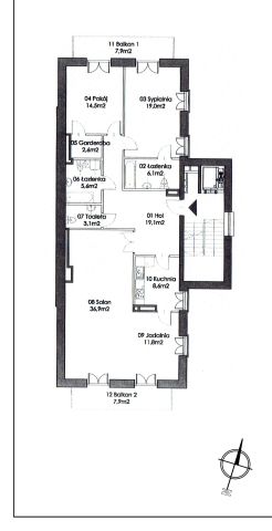
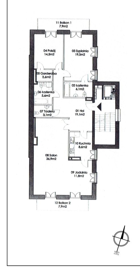
- PRZEDPOKÓJ/HOL 18,84 m2,
- KUCHNIA -8,60 m2,
- SALON -36,10 m2,
- JADALNIA - 11,71 m2,
- 2 POKOJE- 18,54 m2, i 13,97 m2 z garderobą 2,56 m2,
- 2 ŁAZIENKI - 5,99 i 5,19 m2,
- WC -2,88 m2.
- Salon i ogródek jest od strony południowej.
Salon z jadalnią i kuchnią mają łącznie powierzchnię 56,41 m2 i 4 okna tak, że bez problemu (stawiając ściankę działową) można
uzyskać 4-ty pokój (gabinet lub sypialnię) i nie wymaga to przenoszenia żadnych instalacji, ani wyprowadzeń.
Jeszcze łatwiej pokój 18,54 m2 można podzielić na dwa mniejsze, bo w tym pokoju są 3 okna.
Miejsce postojowe naziemne kosztuje dodatkowo 32000 zł, podziemne -48000 zł, komórka lokatorska -30000 zł. Te dodatkowe powierzchnie nie przynależą do mieszkania, dlatego nabycie nie jest obowiązkowe.
Udogodnienia: ochrona, monitoring, teren ogrodzony, internet, tv kablowa, w garażu stanowisko do ładowania samochodów elektrycznych. Ogrzewanie gazowe -kotłownia dla całego osiedla.
Czynsz podstawowy -11,5 z/1 m2 lokalu obejmuje ogrzewanie i koszty ogólne wspólnoty.
Komunikacja: dogodny dojazd do centrum (1800 m. od Płd. Obwodnicy -węzeł "Przyczółkowa"), 550 m do przystanku ZTM -3 linie autobusowe. W okolicy jest Szkoła Podstawowa Nr 169 -w odległości 1250 m, Gimnazjum nr 116 im. Husarii Rzeczypospolitej -1250 m, Przedszkole nr 416 w -1950 m, boisko piłkarskie -1350 m.
Powyższa oferta ma charakter informacyjny i nie stanowi oferty w rozumieniu art. 66 paragraf 1 Kodeksu Cywilnego.

  • Na sprzedaż mieszkanie 4-pokojowe o powierzchni 125,07 m² balkon, piwnica, miejsce w hali garażowej, ogródek, osobna kuchnia
  • 1 piętro w 2-piętrowym apartamentowcu bez windy, rok budowy 2024
  • Warszawa, Wilanów Ruczaj
  • Mieszkanie wykończone (pod klucz) okna drewniane
  • Odrębna własność z księgą wieczystą  
  • Wyposażenie internet
  • Świadectwo Energetyczne  
  • Oferta bezpośrednio od właściciela dodana dodana dzisiaj
Ta nieruchomość może być Twoja od.. sprawdź
275000 zł (20%) Okres spłaty: 30 lat

Podobne mieszkania na sprzedaż

8
Mieszkanie 5-pokojowe Warszawa Mokotów, ul. Czerniakowska

1 339 000

103

5 pok.

5-pokojowe mieszkanie zlokalizowane na Mokotowie przy ul. Czerniakowskiej BUDYNEK/OSIEDLE Mieszkanie znajduje się na 4 piętrze w 4 piętrowym budynku. Rok budowy: 1955 NIERUCHOMOŚĆ Mieszkanie o powierzchni 103m2 składa się z: - 4 niezależne pokoje, - salon z aneksem kuchennym, - duża łazienka (...

Zobacz ogłoszenie
10
Mieszkanie 4-pokojowe Warszawa Wilanów, ul. Królowej Marysieńki

zapytaj

78

4 pok.

Nowe

Mieszkanie 4-pokojowe z oddzielną widną kuchnią, łazienką i osobną toaletą. Do mieszkania przynależy schowek 5,7 m2 na tym samym piętrze tuż obok mieszkania i piwnica. Z większego pokoju (salonu) jest wyjście na dużą loggię. Ekspozycja: 2 pokoje w tym duży pokój z loggią -na WSCHÓD, 2 mniejsze pokoj...

Zobacz ogłoszenie
12
Mieszkanie 7-pokojowe Warszawa, ul. Świętokrzyska

1 400 000

79

7 pok.

Na sprzedaż wyjątkowe mieszkanie w samym sercu Warszawy, przy ul. Świętokrzyskiej. Mieszkanie o powierzchni 79,6 m², składające się z 7 odrębnych pokoi, co czyni je idealnym pod wynajem. Lokal znajduje się na 5. piętrze w zadbanym budynku. Mieszkanie jest umeblowane i gotowe do wynajęcia. Mieszkani...

Zobacz ogłoszenie
11
Mieszkanie 4-pokojowe Warszawa Białołęka, ul. Światowida

1 390 000

83

4 pok.

Ciche, jasne, wygodne 4-pokojowe mieszkanie o łącznej powierzchni 80,4 mkw. Przestrzeń ta jest podzielona na salon z aneksem kuchennym, trzy sypialnie, łazienkę, toaletę i przedpokój. Do salonu przynależy balkon o powierzchni 10,62 mkw. Sypialnie ustawne i ciche z oknami skierowanymi na północny zac...

Zobacz ogłoszenie
19
Mieszkanie 6-pokojowe Warszawa Wawer, ul. Chodzieska

1 349 000

133

6 pok.

PL | ENG VERSION BELOW Na sprzedaż dwupoziomowe 6-pokojowe mieszkanie w Wawrze. Dwupoziomowy układ, pięć sypialni i jasne wnętrza zapewniają komfort codziennego życia oraz funkcjonalność na długie lata. Cechy mieszkania: ♦ Powierzchnia: 148 m², powierzchnia użytkowa 133m² ♦ Układ: salon połączony z ...

Zobacz ogłoszenie
20
Mieszkanie 5-pokojowe Warszawa Rembertów, ul. Pancerna

1 380 000

147

5 pok.

Atuty nieruchomości w skrócie ! | 147,5 mkw | bezczynszowe | ogród 86,8 mkw | 2 x balkon | 2 poziomy | kominek | klimatyzacja na 2 poziomach | bardzo jasne | własne ujęcie wody | zew. m. postojowe | domek narzędziowy | zamknięte osiedle | cicha i spokojna okolica | Mieszkanie Przedstawiam funkcjona...

Zobacz ogłoszenie