Mieszkanie na sprzedaż bez pośredników
Mokotów Warszawa

Mieszkanie 2-pokojowe Warszawa Mokotów. Zdjęcie 1

Mieszkanie na sprzedaż bez pośredników Warszawa Mokotów brak adresu · 8 piętro

495 000
14 143 zł/m²
35
2 pok.
Warszawa Mokotów - lokalizacja przybliżona
Bezpośrednio od właściciela

Jeśli nie potrzebujesz pośrednika, zaoszczędzisz około 14 900 zł. Potrzebujesz wsparcia? Skorzystaj z pomocy agenta.

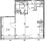
Mieszkanie 35 m² z potencjałem | 8. piętro | Widok na panoramę Warszawy | 2 pokoje | Dwie windy | Do remontu

Na sprzedaż jasne i ustawne mieszkanie o powierzchni 35 m² na 8. piętrze w 13-piętrowym bloku z dwiema windami.

Widok, który robi wrażenie! Z okien rozpościera się spektakularna panorama Warszawy - widać centrum miasta, wieżowce i zieleń. Idealne miejsce, by obserwować miasto z wysokości i cieszyć się światłem przez cały dzień.

Układ mieszkania:
2 pokoje z dużymi oknami,
kuchnia w open space,
łazienka z dużym, funkcjonalnym prysznicem,
korytarz z miejscem na zabudowę.

Budynek z lat 80., zadbany, klatka schodowa po remoncie, dwie nowoczesne windy.

Mieszkanie do generalnego remontu, co daje pełną swobodę aranżacyjną - stwórz wnętrze idealne dla siebie lub pod wynajem!

Lokalizacja:
Blisko centrum - świetnie skomunikowana okolica (autobusy), sklepy, szkoły, parki i punkty usługowe w zasięgu ręki.

Idealna opcja dla inwestora, singla, pary lub jako lokata kapitału.

  • Na sprzedaż mieszkanie 2-pokojowe o powierzchni 35 m²  
  • 8 piętro w 13-piętrowym bloku z windą, rok budowy 1980
  • Warszawa, Mokotów  
  • Mieszkanie w stanie do remontu  
  • Oferta bezpośrednio od właściciela dodana ponad miesiąc temu i zaktualizowana ponad tydzień temu
Ta nieruchomość może być Twoja od.. sprawdź
99000 zł (20%) Okres spłaty: 30 lat

Podobne mieszkania na sprzedaż

11
Mieszkanie 1-pokojowe Warszawa Mokotów, ul. Broniwoja

485 000

28

1 pok.

OFERTA BEZ POŚREDNIKÓW, przygotowana przez jedynego właściciela. Na sprzedaż funkcjonalna kawalerka z dużą przeszkloną loggią, położona w świetnej lokalizacji na Mokotowie przy ul. Broniwoja 12 — zaledwie 150 m od stacji metra Wierzbno (do centrum w 8 minut). ⫸⫸ Najważniejsze atuty: • doskonała k...

Zobacz ogłoszenie
10
Mieszkanie 1-pokojowe Warszawa Mokotów, ul. Jana III Sobieskiego

495 000

27

1 pok.

Oferujemy jasną, świeżo wyremontowaną kawalerkę o powierzchni 27,12 m², zlokalizowaną przy ul. Sobieskiego 99 na warszawskim Mokotowie. Mieszkanie przeszło generalny remont i jest w pełni gotowe do wprowadzenia, od zakończenia remontu nikt w nim nie mieszkał. Wymieniono wszystkie instalacje, a wnętr...

Zobacz ogłoszenie
15
Mieszkanie 1-pokojowe Warszawa Mokotów

495 000

27

1 pok.

Na sprzedaż funkcjonalna kawalerka na parterze, w doskonałej lokalizacji: na Mokotowie obok Sadyba Best Mall. MIESZKANIE Mieszkanie ma 27,10 m. kw. i składa się nań: - salon (ok. 17 m. kw.) z szerokim oknem z widokiem na zielony skwer - kuchnia (ok. 6 m.kw.) otwarta na salon - łazienka (ok. 3 m. kw....

Zobacz ogłoszenie
4
Mieszkanie 1-pokojowe Warszawa Mokotów

499 000

31

1 pok.

Kawalerka usytuowana na 8. piętrze w zadbanym, wyremontowanym budynku z 1975 roku zlokalizowana na Mokotowie-Stegny. Mieszkanie znajduje się przy cichej, zielonej ulicy Barcelońskiej, oferując spokój i liczne miejsca parkingowe. Na powierzchnię mieszkania składa się: - pokój dzienny 19,3m2 z ...

Zobacz ogłoszenie
7
Mieszkanie 1-pokojowe Warszawa Mokotów, ul. Jana III Sobieskiego

510 000

23

1 pok.

Sprzedam kawalerkę (23,82 m²) na Warszawskim Dolnym Mokotowie, 800 metrów od Łazienek Królewskich. Mieszkanie znajduje się przy ulicy Sobieskiego 113 (przy skrzyżowaniu Belwederskiej z Dolną). Gotowa do zamieszkania lub odświeżenia (w zależności od preferencji). Po generalnym remoncie w 2020 roku....

Zobacz ogłoszenie
4
Mieszkanie 2-pokojowe Warszawa Mokotów, ul. Antoniewska

499 000

27

2 pok.

Sprzedam mieszkanie 27 m². Odbiór mieszkania: styczeń/luty 2026. Po więcej informacji zapraszam do kontaktu telefonicznego.

Zobacz ogłoszenie