Mieszkanie na sprzedaż bez pośredników
ul. Bonerowska Kraków Stare Miasto

Mieszkanie 4-pokojowe Kraków Stare Miasto, ul. Bonerowska. Zdjęcie 1

Mieszkanie na sprzedaż bez pośredników Kraków Stare Miasto ul. Bonerowska · 2 piętro

1 600 000
13 913 zł/m²
115
4 pok.
Kraków Stare Miasto, Bonerowska - lokalizacja przybliżona
Bezpośrednio od właściciela

Jeśli nie potrzebujesz pośrednika, zaoszczędzisz około 48 000 zł. Potrzebujesz wsparcia? Skorzystaj z pomocy agenta.

Ulica BONEROWSKA – KRAKÓW

Spokojna okolica, budynek zadbany

Planty 3 minuty drogi, stary czterokondygnacyjny budynek.Kameralny, tylko jedno mieszkanie na każdej kondygnacji !.
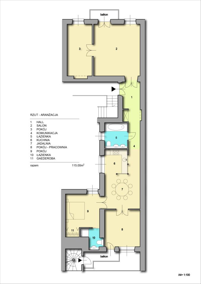
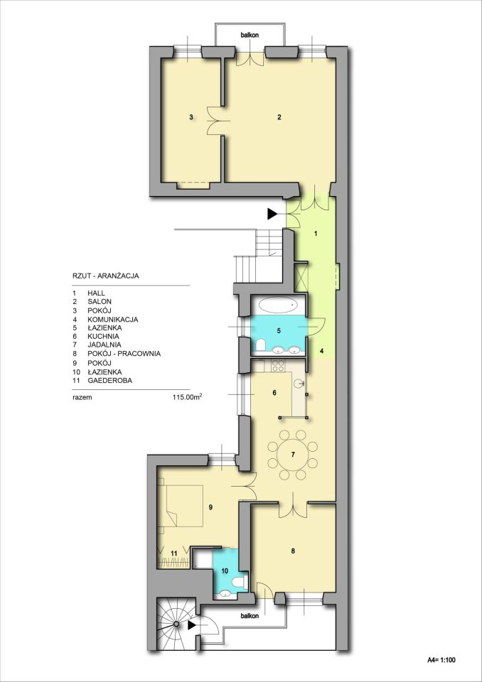
Stan istniejący: mieszkanie 115 m² na 2 piętrze, 4 pokoje, Wysokość pomieszczenia: 3,50 m:
Duże wejście z szafami, pokój dzienny od strony ulicy z balkonem, 3 sypialnie, kuchnia z balkonem, pomieszczenie gospodarcze.
Łazienka z toaletą.
Indywidualne ogrzewanie i ciepła woda gazowe.
Duża piwnica około 20m2
Załączona koncepcja przedstawia aranżację mieszkania na 5 pokoi. Druga gospodarcza klatka schodowa pozwala na odrębne-niezależne wejście do pokoju-pracowni. Znaczna wysokość pomieszczeń umożliwia stworzenie dodatkowej powierzchni poprzez montaż antresoli.

  • Na sprzedaż mieszkanie 4-pokojowe o powierzchni 115 m² balkon, osobna kuchnia
  • 2 piętro w 3-piętrowej kamienicy bez windy, rok budowy 1909
  • Kraków, Stare Miasto ul. Bonerowska
  • Mieszkanie w stanie do odświeżenia okna plastikowe
  • Odrębna własność z księgą wieczystą  
  • Oferta bezpośrednio od właściciela dodana ponad miesiąc temu i zaktualizowana ponad tydzień temu
Ta nieruchomość może być Twoja od.. sprawdź
320000 zł (20%) Okres spłaty: 30 lat

Podobne mieszkania na sprzedaż

17
Mieszkanie 3-pokojowe Kraków Wola Justowska, ul. Jesionowa

1 600 000

71

3 pok.

Na sprzedaż przestrony apartament 5 minut spacerem od Parku Decjusza i Bulwarów Rudawy. Mieszkanie o powierzchni 71 metrów kwadratowych obejmujących Salon z dużym aneksem, dwie sypialnie oraz dwie łazienki. Mieszkanie składa się z przestronnego, umeblowanego w wysokim standardzie, salonu wyposażone...

Zobacz ogłoszenie
30
Mieszkanie 4-pokojowe Kraków Prądnik Biały, ul. Siewna

1 580 000

106

4 pok.

| Duże rodzinne mieszkanie o pow. 106 m2 + taras 40m2 + 2x miejsce postojowe w garażu podziemnym + dodatkowa przestrzeń do składowania Oferujemy na sprzedaż przestronne, funkcjonalne, 4-pokojowe mieszkanie o niezwykłym metrażu 106 m2 na Prądniku Białym. Położone na parterze bloku z 20...

Zobacz ogłoszenie
18
Mieszkanie 4-pokojowe Kraków Zesławice, ul. Gustawa Morcinka

1 600 000

102

4 pok.

Mieszkanie składa się z trzech ponad 10 metrowych sypialni, przestronnego salonu z aneksem kuchennym, dwóch łazienek, garderoby oraz tarasu. Pow. użytkowa to 102,31 m2. Do mieszkania przynależą dwa miejsca postojowe w garażu podziemnym. Są to miejsca poszerzone z miejscem na rower. Mieszkanie znajdu...

Zobacz ogłoszenie
11
Mieszkanie 3-pokojowe Kraków Stare Miasto, ul. Wenecja

1 799 000

86

3 pok.

| ZAPRASZAM DO ZAMIESZKANIA NA ULICY WENECJA. Okolica jest wręcz wymarzona dla każdego, kto chce zamieszkać blisko Rynku Głównego, Plant, Błoni i wszystkich atrakcji jakie niesie ze sobą Stare Miasto. Mieszkając w Centrum miasta można mieć całkowitą ciszę i spokój. Zapraszam serdeczni...

Zobacz ogłoszenie
7
Mieszkanie 4-pokojowe Kraków Stare Miasto, ul. Krowoderska

1 630 000

108

4 pok.

Sprzedam mieszkanie o powierzchni 108 m², z pięknym widokiem na ogród przykościelny zlokalizowane u zbiegu Biskupiej i Krowoderskiej na ul. Krowoderskiej 21. Mieszkanie znajduje się we frontowej części kamienicy, na 1. piętrze, z oknami wychodzącymi na zachód i wschód. Kilka słów o mieszkaniu: Pe...

Zobacz ogłoszenie
15
Mieszkanie 3-pokojowe Kraków Stare Miasto, ul. św. Sebastiana

1 449 000

75

3 pok.

[Sprzedaż bezpośrednia. Nie jestem zainteresowana współpracą z biurami nieruchomości ani pośrednikami. Proszę o uszanowanie mojej decyzji i o niekontaktowanie się w sprawie podjęcia współpracy.] Klimatyczne mieszkanie w zabytkowej kamienicy - między Starym Miastem a Kazimierzem. Na sprzedaż wyjątk...

Zobacz ogłoszenie