Mieszkanie na sprzedaż bez pośredników
ul. Kordiana Kraków Kurdwanów

NOWA OFERTA
Mieszkanie 2-pokojowe Kraków Kurdwanów, ul. Kordiana. Zdjęcie 1

Mieszkanie na sprzedaż bez pośredników Kraków Kurdwanów ul. Kordiana · 3 piętro

669 000
17 615 zł/m²
37
2 pok.
Kraków Kurdwanów, Kordiana - lokalizacja przybliżona
Bezpośrednio od właściciela

Jeśli nie potrzebujesz pośrednika, zaoszczędzisz około 20 100 zł. Potrzebujesz wsparcia? Skorzystaj z pomocy agenta.

!!! Nie bierzemy pod uwagę współpracy z biurem nieruchomości !!!

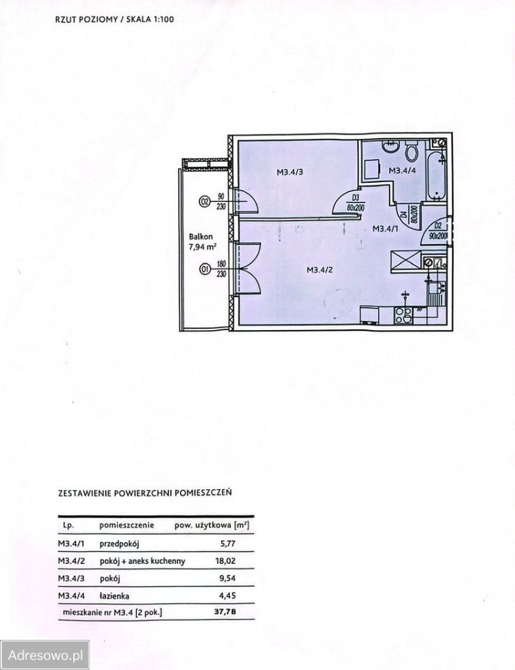
Na sprzedaż bardzo zadbane mieszkanie o powierzchni 37,98 m², położone na 3. piętrze bloku z 2018 roku z windą - bezpośrednio od właściciela, bez prowizji!

Budynek znajduje się na zamkniętym osiedlu przy ul. Kordiana (Kurdwanów, Kraków).
Wejście na teren osiedla przez bramkę na klucz lub kod, wjazd przez bramę sterowaną pilotem lub kodem.

UKŁAD I WYPOSAŻENIE:
- Salon (z aneksem kuchennym): rozkładana kanapa, meblościanka RTV, szafki na wymiar, stół z 4 krzesłami, hoker
- Aneks kuchenny: meble na wymiar (do sufitu), zmywarka, zlewozmywak granitowy, płyta indukcyjna, piekarnik, lodówka w zabudowie
- Sypialnia: łóżko 140x200 cm, duża szafa robiona na wymiar
- Łazienka: wanna, pralka i inne niezbędne elementy wyposażenia łazienki
- Przedpokój: szafa z lustrem na wymiar, szafka na buty
- Balkon 8 m² - wyjście zarówno z salonu, jak i z sypialni
- Ekspozycja okien na zachód - mieszkanie jasne i słoneczne

LOKALIZACJA:
Okolica bardzo dobrze skomunikowana z centrum Krakowa, jak i dzielnicami ościennymi oraz autostradą.
- 8 minut pieszo do przystanku tramwajowego "Nowosądecka"
- 8-10 minut pieszo do przystanków autobusowych "Nowosądecka" i "Tuchowska"
- Szybki dojazd do autostrady A4 (węzeł Kraków-Łagiewniki)
- W okolicy: sklepy spożywcze, punkty usługowe, gastronomia, szkoły, przedszkola, stacja paliw

Brak miejsca postojowego przypisanego do mieszkania.

Dostępne od zaraz - zapraszam do kontaktu!

  • Na sprzedaż mieszkanie 2-pokojowe o powierzchni 37,98 m² balkon, aneks kuchenny
  • 3 piętro w 6-piętrowym apartamentowcu z windą, rok budowy 2018
  • Kraków, Kurdwanów ul. Kordiana
  • Mieszkanie w stanie do zamieszkania  
  • Odrębna własność z księgą wieczystą  
  • Wyposażenie pralka, lodówka, piekarnik, zmywarka
  • Oferta bezpośrednio od właściciela dodana dodana dzisiaj
Ta nieruchomość może być Twoja od.. sprawdź
134000 zł (20%) Okres spłaty: 30 lat

Podobne mieszkania na sprzedaż

8
Mieszkanie 2-pokojowe Kraków Kurdwanów, ul. por. Halszki

699 000

44

2 pok.

NA SPRZEDAŻ - PRZYTULNE, 2-POKOJOWE MIESZKANIE Z OGRÓDKIEM 24 m² LOKALIZACJA: KURDWANÓW, UL. HALSZKI 28 Zapraszam do zapoznania się z ofertą sprzedaży zadbanej i funkcjonalnej nieruchomości o powierzchni 43,67 m², zlokalizowanej na parterze nowoczesnego, pięciopiętrowego budynku z 2012 roku, położo...

Zobacz ogłoszenie
18
Mieszkanie 3-pokojowe Kraków Kurdwanów, ul. gen. Juliana Filipowicza

699 000

51

3 pok.

Prezentujemy na sprzedaż funkcjonalne i dobrze doświetlone mieszkanie o powierzchni 78 m² całkowitej, przekładające się na 51,44 m² powierzchni użytkowej, położone przy ul. Filipowicza. Stanowi idealną propozycję osób poszukujących komfortowego mieszkania z dobrą komunikacją i pełną infrastrukturą ...

Zobacz ogłoszenie
19
Mieszkanie 3-pokojowe Kraków Kurdwanów

779 000

46

3 pok.

Z przyjemnością przedstawiamy Państwu ofertę sprzedaży Trzypokojowego mieszkania o powierzchni 46,98 m², usytuowanego na 3 piętrze w budynku z 2007 roku, przy ul. Żaka w Krakowie. Mieszkanie położone jest na zamkniętym osiedlu z betonu, w spokojnej i zielonej części miasta. Oferta dostępna wyłączni...

Zobacz ogłoszenie
20
Mieszkanie 2-pokojowe Kraków Kurdwanów, ul. Kordiana

666 000

49

2 pok.

Kurdwanów, 2-pokojowe mieszkanie z balkonem i piwnicą! OGŁOSZENIE PRYWATNE, BEZ POŚREDNICTWA! Mieszkanie znajduje się na parterze 3-kondygnacyjnego budynku mieszkalnego w kształcie litery U z dziedzińcem, dostępnym od strony kuchni, do której przynależy 3,5 m² balkon (ekspozycja północna). Blok p...

Zobacz ogłoszenie
13
Mieszkanie 3-pokojowe Kraków Kurdwanów, ul. Stanisława Stojałowskiego

699 000

51

3 pok.

Z przyjemnością przedstawiamy Państwu ofertę trzypokojowego mieszkania o powierzchni 51 m², usytuowanego na 1 piętrze w budynku czteropiętrowym, przy ul. Stojałowskiego w Krakowie. Idealna propozycja dla rodzin, par oraz osób poszukujących komfortowego mieszkania z dobrą komunikacją i pełną infrastr...

Zobacz ogłoszenie
11
Mieszkanie 2-pokojowe Kraków Kurdwanów, ul. Marii i Bolesława Wysłouchów

590 000

38

2 pok.

Z przyjemnością przedstawiamy Państwu ofertę dwupokojowego mieszkania o powierzchni 38,8 m², usytuowanego na 1 piętrze w budynku czteropiętrowym, przy ul. Wysłouchów w Krakowie. Idealna propozycja dla rodzin, par oraz osób poszukujących komfortowego mieszkania z dobrą komunikacją i pełną infrastrukt...

Zobacz ogłoszenie