Mieszkanie na sprzedaż bez pośredników
Dębniki Kraków

Mieszkanie 3-pokojowe Kraków Dębniki. Zdjęcie 1

Mieszkanie na sprzedaż bez pośredników Kraków Dębniki brak adresu · parter

960 000
18 710 zł/m²
51
3 pok.
Kraków Dębniki - lokalizacja przybliżona
Bezpośrednio od właściciela

Jeśli nie potrzebujesz pośrednika, zaoszczędzisz około 28 800 zł. Potrzebujesz wsparcia? Skorzystaj z pomocy agenta.

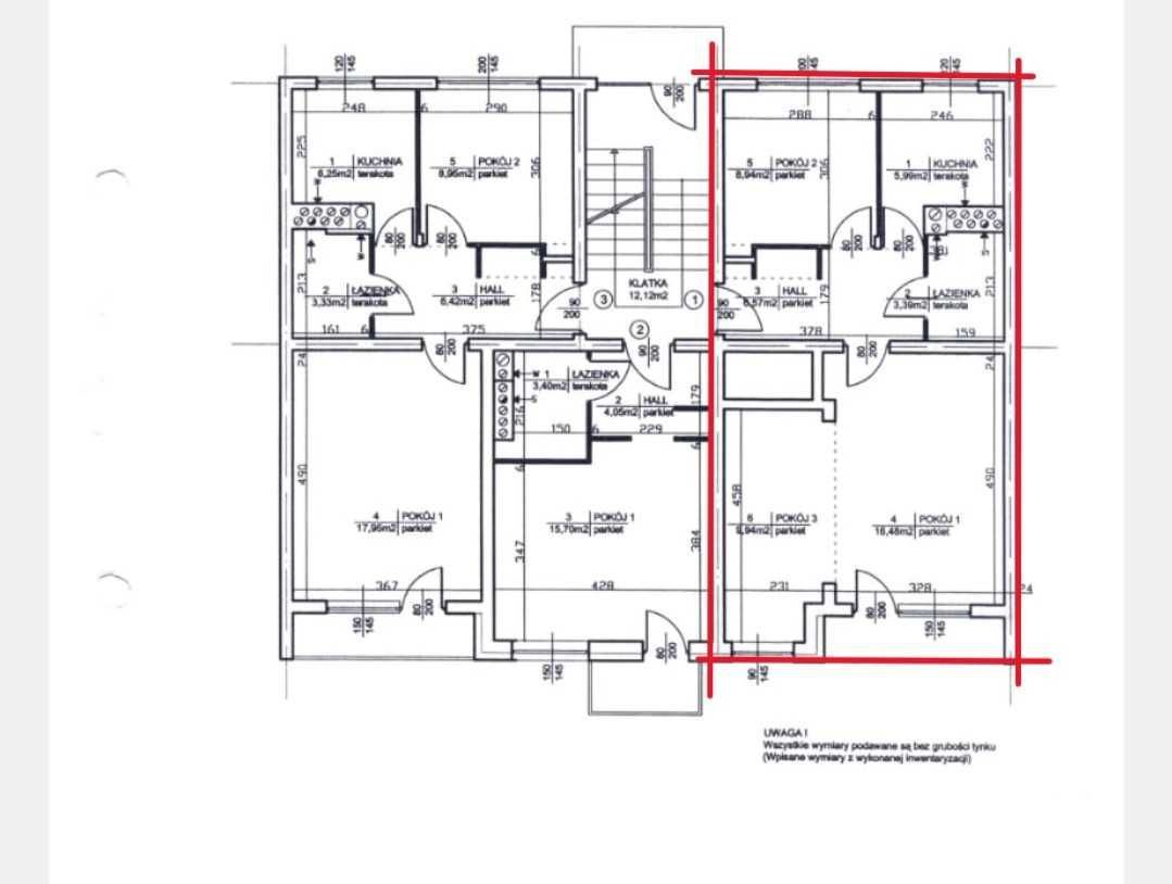
Na sprzedaż funkcjonalne mieszkanie o powierzchni 53,79 m², położone w jednej z najbardziej klimatycznych i zielonych dzielnic Krakowa - Stare Dębniki.

Mieszkanie składa się z:

- Przedpokój: 6,57 m²
- Kuchnia: 5,99 m²
- Łazienka: 3,39 m²
- Pokój 1: 16,48 m²
- Pokój 2: 8,94 m²
- Pokój 3: 9,94 m²
- Balkon: ok. 2 m²

- Łączna powierzchnia użytkowa pomieszczeń: 51,31 m²
- Piwnica: 2,48 m²

Dodatkowym atutem jest balkon, idealny do wypoczynku oraz piwnica, zapewniająca dodatkową przestrzeń do przechowywania. Przed budynkiem dostępne są miejsca parkingowe dla mieszkańców. Czynsz wynosi 767 zł, a w skład jego wchodzi: konserwacja i sprzątanie części wspólnych, śmieci, kanalizacja, centralna ciepła woda użytkowa, zimna woda, centralne ogrzewanie, fundusz remontowy budynku.

Lokal posiada bardzo funkcjonalny i ustawny układ pomieszczeń, który daje szerokie możliwości aranżacyjne - przestrzeń można łatwo dostosować do własnych potrzeb i stylu życia.

Główne atuty dzielnicy Stare Dębniki:

- Wyjątkowa lokalizacja, bliskość centrum i głównych atrakcji miasta Krakowa (Wawel, Kazimierz, Rynek Główny).
- Bliskość terenów zielonych i rekreacyjnych, takich jak Zakrzówek, bulwary wiślane, Park Dębnicki.
- Doskonała komunikacja miejska (5 min pieszo na Rondo Grunwaldzkie, 10 min pieszo pod Jubilat).
- Zaplecze edukacyjne i kulturalne (przedszkole, szkoły, muzea, kampusy krakowskich uczelni).
- W okolicy liczne sklepy spożywcze, ryneczek ze świeżymi owocami i warzywami, restauracje.

To idealna propozycja zarówno do zamieszkania, jak i inwestycja pod wynajem.

Stan prawny mieszkania to forma spółdzielczo-własnościowa lokalu bez księgi wieczystej. Jest możliwość założenia odrębnej księgi wieczystej przy sprzedaży mieszkania.

Stan mieszkania: Do remontu.

Zapraszam do kontaktu i na prezentację.

Ogłoszenie prywatne, pośrednikom z góry dziękujemy.

  • Na sprzedaż mieszkanie 3-pokojowe o powierzchni 51,31 m² balkon, piwnica
  • Parter w bloku  
  • Kraków, Dębniki  
  • Mieszkanie w stanie do remontu  
  • Spółdzielcze własnościowe  
  • Oferta bezpośrednio od właściciela dodana ponad tydzień temu
Ta nieruchomość może być Twoja od.. sprawdź
192000 zł (20%) Okres spłaty: 30 lat

Podobne mieszkania na sprzedaż

8
Mieszkanie 3-pokojowe Kraków Dębniki, ul. Jana Kantego Federowicza

950 000

62

3 pok.

Dzień dobry, mam do zaoferowania mieszkanie na sprzedaż, wykończone na prestiżowym osiedlu Bunscha Park na południu Krakowa z roku 2019, o powierzchni 62 m2. **INFORMACJE O MIESZKANIU** * Piętro: 2 z 3. * Mieszkanie składa się z: salonu z aneksem kuchennym z balkonem (nr 1), sypialni z szafą wnęk...

Zobacz ogłoszenie
13
Mieszkanie 3-pokojowe Kraków Dębniki, ul. Lubostroń

949 000

65

3 pok.

Kraków – Dębniki / Ruczaj | 3 pokoje | 2 ogródki + taras + balkon | garaż Na sprzedaż przestronne i funkcjonalne mieszkanie o powierzchni 64,5 m², położone na parterze kameralnego, 2-piętrowego budynku z 2001 roku, w zielonej i spokojnej części Ruczaju. WYJĄTKOWA PRZESTRZEŃ ZEWNĘTRZNA – PONAD 100 m...

Zobacz ogłoszenie
21
Mieszkanie 3-pokojowe Kraków Dębniki, ul. Komuny Paryskiej

899 000

60

3 pok.

3 pokoje | 60 m² | balkon | Komuny Paryskiej | parking | + komórka lok.15000zl Na sprzedaż funkcjonalne, 3-pokojowe mieszkanie o powierzchni ~60 m², położone przy ul. Komuny Paryskiej 52 w Krakowie, na 3. piętrze w budynku z 2008 roku, na terenie ogrodzonym z parkingiem dla mieszkańców. Układ i stan...

Zobacz ogłoszenie
23
Mieszkanie 4-pokojowe Kraków Dębniki, ul. Borkowska

960 000

65

4 pok.

| KLIMATYCZNE 4-POKOJOWE Z DWOMA BALKONAMI W KAMERALNYM BUDOWNICTWIE W OTOCZENIU NATURY LOKALIZACJA, BUDYNEK Prezentujemy ładne, przestronne mieszkanie o powierzchni 65,29 m2, położone na 1-piętrze budynku przy ulicy Borkowskiej na Klinach. Budynek estetyczny, zad...

Zobacz ogłoszenie
12
Mieszkanie 3-pokojowe Kraków Dębniki, ul. Lubostroń

925 000

59

3 pok.

NOWA CENA ! Do sprzedania przytulne trzypokojowe mieszkanie o powierzchni 59,50m2. + duży balkon. 1 piętro. Opcjonalnie dwa stanowiska postojowe w hali garażowej. Lubostroń 22A. LOKALIZACJA: Kraków, Ruczaj ul. Lubostroń 22A. Mieszkanie zlokalizowane jest w dynamicznie rozwijającej się, a jednocześn...

Zobacz ogłoszenie
14
Mieszkanie 2-pokojowe Kraków Dębniki, ul. Jana Pietrusińskiego

935 000

46

2 pok.

Nowoczesny apartament, Zakrzówek - Stare Dębniki | 46,2 m² | balkon | widok na las Oferujemy na sprzedaż wyjątkowy apartament typu open space o powierzchni 46,20m², zlokalizowany na 2. piętrze kameralnego, nowoczesnego apartamentowca z 2014 roku. Mieszkanie wyróżnia się dużymi przeszkleniami, świetn...

Zobacz ogłoszenie