Mieszkanie na sprzedaż bez pośredników
ul. Galicyjska Kraków Czyżyny

Mieszkanie 1-pokojowe Kraków Czyżyny, ul. Galicyjska. Zdjęcie 1

Mieszkanie na sprzedaż bez pośredników Kraków Czyżyny ul. Galicyjska · parter

580 000
23 200 zł/m²
25
1 pok.
Kraków Czyżyny, Galicyjska - lokalizacja przybliżona
Bezpośrednio od właściciela

Jeśli nie potrzebujesz pośrednika, zaoszczędzisz około 17 400 zł. Potrzebujesz wsparcia? Skorzystaj z pomocy agenta.

Do sprzedania duża kawalerka z balkonem przy ul. Galicyjskiej 3e w Krakowie – dzielnica XIV Czyżyny.

UWAGA! Mieszkanie można kupić pojedynczo lub w pakiecie inwestycyjnym składającym się z 9 mieszkań z najemcami w Krakowie – 7 kawalerek oraz 2 mieszkania 2-pokojowe! Szczegóły na temat pakietu inwestycyjnego są na końcu opisu.

LOKALIZACJA i KOMUNIKACJA
Blok nr 3e przy ul. Galicyjskiej położony jest obok centrum konferencyjnego EXPO Kraków, kilkaset metrów dalej jest Centrum Handlowe ATUT, a w przeciwnym kierunku w podobnej odległości Centrum Handlowe M1, a za nim Tauron Arena Kraków.
Pod M1 jest najbliższy przystanek tramwajowy – odległość 1km – przystanek „Rondo 308. Dywizjonu”. Przystanki autobusowe są znacznie bliżej – w odległości ok. 400-500m od budynku – przystanki „ZDMK”, „Centralna” oraz „Galicyjska”.
Wyjazd autem na obwodnicę Krakowa zajmuje ok. 10 minut i tyle samo do centrum.

BUDYNEK i PARKING
Budynek wybudowany w 2018 roku w technologii tradycyjnej z pustaka ceramicznego przez znaną firmę deweloperską Develia (dawniej LC Corp). Była to inwestycja deweloperska składająca się z kilku budynków różnej wielkości z dużym wewnętrznym terenem pomiędzy nimi na którym są parkingi, tereny zielone i place zabaw.
Przed budynkiem jest duży bezpłatny parking dla mieszkańców. Pod osiedlem jest również duży parking podziemny. Do mieszkania można dokupić jedno miejsce parkingowe w garażu podziemnym, ale to nie jest obowiązkowe - można kupić mieszkanie bez miejsca parkingowego w garażu i korzystać z parkingu zewnętrznego.
Bardzo spokojne miejsce, nie ma tranzytowego ruchu aut ani dużej ilości mieszkańców. Sąsiedzi spokojni, blok zadbany, zarządzany przez zewnętrzną firmę administrującą. Cisza i spokój.

MIESZKANIE i STANDARD
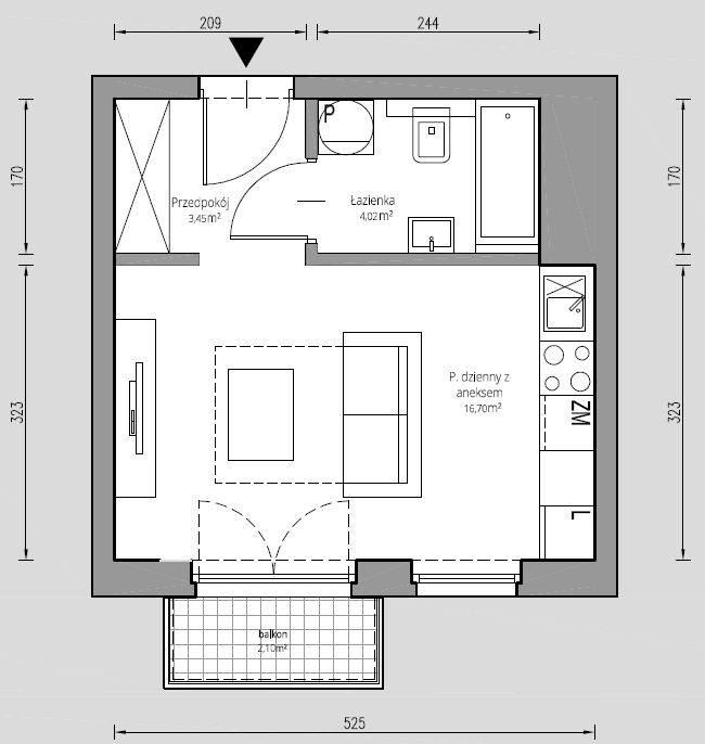
Przedmiotowe mieszkanie znajduje się na pierwszej kondygnacji (parter), posiada ekspozycję południową (widok na pusty teren, a dalej w głębi na halę Expo) i ma powierzchnię użytkową 24,29m2 + balkon o powierzchni ok. 5m2. Mieszkanie składa się z przedpokoju z dużą szafą zabudowaną, łazienki z wanną oraz dużego salonu z aneksem kuchennym. Aneks kuchenny posiada własne okno więc można go zamknąć i zrobić osobną kuchnię jeśli ktoś woli taki układ.
Mieszkanie zostało wykończone w bardzo dobrym standardzie, z wysokiej jakości materiałów wykończeniowych przez profesjonalną firmę budowlaną Wszystkie meble zrobione na wymiar. W kuchni pełen sprzęt AGD: lodówka, zmywarka, piekarnik, płyta i okap, a w łazience pralka.
W oknach znajdują się żaluzje plisowane.
W łazience jest dużo miejsca na przechowywanie rzeczy: szafka pod umywalką, duża szafka z lustrem nad umywalką i jeszcze jedna nad geberitem i pralką. Mieszkanie bardzo funkcjonalne!

OPŁATY i MEDIA
Ogrzewanie i ciepła woda centralne – z sieci miejskiej MPEC, co zapewnia bezpieczeństwo, wygodę oraz niskie koszty użytkowania. Mieszkanie bez gazu!
Opłaty administracyjne stałe to ok. 150zł/mc + śmieci + media wg zużycia na licznikach (wszystkie media opomiarowane). Razem: ok. 400zł/mc.
Internet światłowodowy doprowadzony do mieszkania.
Wszystkie liczniki są na zewnątrz mieszkania, na klatce schodowej.
Ogólnie mieszkanie jest bardzo tanie w użytkowaniu!

SYTUACJA PRAWNA
Mieszkanie w pełnej własności z własną księgą wieczystą. Jeden właściciel – małżeństwo.
Można kupować za gotówkę lub z kredytu hipotecznego.
Mieszkanie jest wynajmowane od 2018 roku do teraz, aktualny czynsz najmu wynosi 2400zł/mc czyli 28.800zł/rok.
Najemcy doceniają dobry standard mieszkania, kompletną ciszę oraz przynależny balkon. Nigdy od 2018 roku nie było żadnego problemu z wynajęciem tego mieszkania - ani jednego pustego miesiąca!
W umowie najmu jest wpisany 2-miesięczny okres wypowiedzenia. Można kupić razem z najemcą lub bez najemcy – decyzja należy w 100% do kupującego.

PAKIET INWESTYCYJNY – opis TYLKO dla klienta inwestycyjnego
Mieszkanie można kupić pojedynczo lub w ramach pakietu inwestycyjnego, który stanowi łącznie 9 mieszkań z najemcami w Krakowie – składa się z 7 kawalerek oraz 2 mieszkań 2-pokojowych. IDEALNA oferta dla klienta inwestycyjnego, który posiada budżet 5 milionów złotych, ale chce zachować DYWERSYFIKACJĘ inwestycji. Taki pakiet 9 mieszkań GWARANTUJE dywersyfikację ponieważ czasowa utrata czynszu z jednego mieszkania obniża przychód właściciela TYLKO o około 10%, a pozostałe 90% dalej wpływa na konto. Przy inwestycji całej kwoty w jedną nieruchomość właściciel RYZYKUJE utratę całego przychodu w razie jakichkolwiek problemów – np. utraty najemcy albo awarii technicznej nieruchomości!
Pakiet inwestycyjny składa się z 7 kawalerek oraz 2 mieszkań 2-pokojowych – jedno z aneksem kuchennym, a drugie z osobną kuchnią z oknem.
Mieszkania znajdują się w Krakowie w kilku różnych dzielnicach: Dębniki – 4 sztuki, Podgórze Duchackie – 2 sztuki, Czyżyny – 1 sztuka, Bieżanów-Prokocim – 1 sztuka oraz Prądnik Biały – 1 sztuka. Osobom zainteresowanym wyślę tabelkę z dokładnymi danymi wszystkich mieszkań. W tabelce będzie podany dokładny adres, piętro, powierzchnia mieszkania, ilość pokoi, powierzchnia dodatkowa (balkon/taras/ogródek), czynsz najmu, stawka czynszu za m2 oraz cena mieszkania, a także rentowność w skali roku.
Wszystkie mieszkania należą do mnie - pierwszego właściciela, który je kupił od dewelopera w latach 2014-2018, wykończył, umeblował, wyposażył i wynajął.
Wszystkie mieszkania są wynajęte osobom wypłacalnym i odpowiedzialnym. Wszyscy najemcy płacą w terminie i nie ma z nimi żadnych problemów – IDEALNI NAJEMCY !!!
Wszystkie umowy są terminowe na okres 12mc – można ich nie przedłużać po zakończeniu okresu umowy jeśli ktoś nie chce dalej wynajmować lub chce zmienić najemcę.
UWAGA! Można odbierać mieszkanie bez najemcy – jeśli kupujący ma takie życzenie.
Wszystkie mieszkania są w bardzo dobrym stanie technicznym, chociaż wiadomo, że noszą delikatne ślady użytkowania ponieważ są zamieszkane od kilku lat.
Łączna cena wszystkich 9 mieszkań wynosi 5.120.000zł, ale dla konkretnego klienta jest konkretny rabat w kwocie 120.001zł, więc cena ostateczna pakietu wynosi 4.999.999zł.
Zakup może być za gotówkę lub z kredytu – obojętnie. Każde mieszkanie ma własną księgę wieczystą – pełna własność hipoteczna wraz z udziałem w gruncie pod budynkiem. Dla klientów kredytowych profesjonalna obsługa kredytowa GRATIS!
Sprzedaję prywatnie jako osoba fizyczna, sprzedaż zwolniona z podatku VAT, kupujący płaci podatek PCC 2%. Jeśli kupujący jest uprawniony do zakupu bez podatku PCC 2% to zwolnienie będzie dotyczyło tylko pierwszego mieszkania, Pozostałe 8 będzie objętych podatkiem PCC.
Łączna powierzchnia użytkowa wszystkich 9 mieszkań wynosi 230m2, a więc średnia powierzchnia jednego mieszkania wynosi 25,5m2. Do dwóch mieszkań jest możliwość dokupienia miejsc parkingowych w garażu podziemnym za dodatkową opłatą oraz komórki lokatorskiej (OPCJA).
Łączny czynsz najmu z tych 9 mieszkań wynosi 21.700/mc + najemcy pokrywają WSZYSTKIE opłaty administracyjne oraz zużycie mediów. Liczniki prądu są przepisane na najemców, którzy sami regulują koszty prądu z Tauronem, Tak samo internet płacą najemcy. Wszystkie mieszkania są z centralnym ogrzewaniem oraz ciepłą wodą użytkową oraz bez gazu.
Rentowność z wynajmu przy aktualnych stawkach najmu wynosi niecałe 6%/rok.

UWAGA! Mieszkania są objęte usługą profesjonalnego zarządzania najmem i w cenie zakupu jest 1 rok zarządzania GRATIS! Oczywiście kupujący może nie korzystać z zarządzania najmem jeśli nie chce. Zarządzanie najmem zapewnia 100% BEZPIECZEŃSTWA i WYGODY dla właściciela, który nie musi absolutnie nic robić w tej sprawie. Zarządzanie najmem obejmuje obsługę WSZYSTKICH spraw związanych z mieszkaniem i wynajmem: administracyjnych, technicznych, finansowych, podatkowych, ubezpieczeniowych – całkowita BEZOBSŁUGOWOŚĆ INWESTYCJI !!!
Dla klientów inwestycyjnych mam również inne oferty inwestycji, które zapewniają JEDNOCZEŚNIE trzy najważniejsze parametry DOBREJ inwestycji:
- BEZPIECZEŃSTWO
- RENTOWNOŚĆ
- WYGODĘ
Zapraszam do kontaktu klientów inwestycyjnych zainteresowanych tym pakietem LUB innymi inwestycjami z rentownością nawet do 25% w skali roku.

Zapraszam do kontaktu osoby zainteresowane zakupem tego mieszkania dla siebie lub na wynajem oraz pośredników nieruchomości poszukujących podobnych ofert dla swoich klientów - możliwa współpraca z pośrednikami za zasadzie współpracy agencyjnej tzn. pośrednik rozlicza się z klientem kupującym.

  • Na sprzedaż mieszkanie 1-pokojowe o powierzchni 25 m² balkon, możliwość dokupienia garażu, aneks kuchenny
  • Parter w 5-piętrowym apartamentowcu z windą, rok budowy 2018
  • Kraków, Czyżyny ul. Galicyjska
  • Mieszkanie w bardzo dobrym stanie okna plastikowe
  • Odrębna własność z księgą wieczystą  
  • Wyposażenie internet, kuchenka, lodówka, piekarnik, pralka, telewizor, zmywarka
  • Cena do negocjacji  
  • Świadectwo Energetyczne  
  • Oferta bezpośrednio od właściciela dodana ponad miesiąc temu i zaktualizowana 4 dni temu
Ta nieruchomość może być Twoja od.. sprawdź
116000 zł (20%) Okres spłaty: 30 lat

Podobne mieszkania na sprzedaż

18
Mieszkanie 1-pokojowe Kraków Czyżyny, ul. Romana Ciesielskiego

zapytaj

33

1 pok.

Nowe mieszkanie 1-pokojowe o powierzchni 33,67 m² w inwestycji Centralna Vita dewelopera DEVELIA, na 3 piętrze pod adresem ul. Romana Ciesielskiego, Kraków Czyżyny. Planowany termin oddania to IV kwartał 2025 roku. Oferta Inwestycja realizowana jest etapami i obejmuje nowoczesne, wielorodzinne b...

Zobacz ogłoszenie
3
Mieszkanie 1-pokojowe Kraków Czyżyny, ul. Romana Ciesielskiego

498 134

32

1 pok.

Na sprzedaż kawalerka, 32.99 m² z ogródkiem – ul. Ciesielskiego, Czyżyny, Kraków Sprzedam mieszkanie o powierzchni 32.99 m², położone na parterze budynku w inwestycji Centralna Vita przy ul. Ciesielskiego w Krakowie. Mieszkanie składa się z: • pokoju dziennego z aneksem kuchennym, • łazienki z mie...

Zobacz ogłoszenie
9
Mieszkanie 1-pokojowe Kraków Czyżyny, ul. bp. Piotra Tomickiego

490 000

29

1 pok.

POLECAMY !!! MIESZKANIE 1 POKOJOWE  29,2 m2 ul.Tomickiego (os.Botanika) CZYŻYNY.   Nieruchomość jest położona na 3 piętrze w 5 piętrowym budynku z 2019 roku. Metraż nieruchomości 29,2 m 2 na które składa się:  przedpokój ; pokój dzienny z aneksem kuchennym ; Łazienka ; balkon. Ciepła woda oraz ogrze...

Zobacz ogłoszenie
32
Mieszkanie 1-pokojowe Kraków Czyżyny, ul. Bolesława Orlińskiego

574 000

30

1 pok.

Kraków, Czyżyny, ul Orlińskiego, Osiedle AVIA Mieszkanie 1-pokojowe o powierzchni 30,69 m2+ balkon 4,83m2. Nieruchomość znajduje się na czwartym piętrze w 8-piętrowym budynku z 2017 roku. Pomieszczenia: Przedpokój (3,17m2), 1 Pokój (18,58m2), osobna, jasna kuchnia (4,95m2), łazienka z WC (3,99m2), b...

Zobacz ogłoszenie
20
Mieszkanie 2-pokojowe Kraków Czyżyny, ul. Sołtysowska

675 000

31

2 pok.

NOWE, BEZ 2% PODATKU PCC, NOWOCZESNE, 2 POKOJOWE MIESZKANIE, KOMFORTOWE, Z KLIMATYZACJĄ, USTAWNE - UMEBLOWANE I WYPOSAŻONE, GOTOWE DO ZAMIESZKANIA, ZEWNĘTRZNE MIEJSCE POSTOJOWE PRZED BUDYNKIEM - W NOWYM BUDYNKU APARTAMENTOWYM - BLISKO TERENÓW ZIELONYCH - NA CZYŻYNACH. ATUTY NIERUCHOMOŚCI: * KUPUJ...

Zobacz ogłoszenie
8
Mieszkanie 2-pokojowe Kraków Czyżyny

630 000

34

2 pok.

Sprzedam nowe i świeżo wykończone mieszkanie w bloku na os. Woźniców w Krakowie na Czyżynach (okolice galerii M1). Opis mieszkania: Mieszkanie znajduje się na 3 piętrze w czteropiętrowym bloku i ma łącznie 34,50 m2. W bloku znajduje się winda. Mieszkanie składa się z dwóch pokoi (przestronny salon ...

Zobacz ogłoszenie