Mieszkanie na sprzedaż bez pośredników
ul. Strzelecka Gdańsk Śródmieście

Mieszkanie 3-pokojowe Gdańsk Śródmieście, ul. Strzelecka. Zdjęcie 1

Mieszkanie na sprzedaż bez pośredników Gdańsk Śródmieście ul. Strzelecka · parter

890 000
12 192 zł/m²
73
3 pok.
Gdańsk Śródmieście, Strzelecka - lokalizacja przybliżona
Bezpośrednio od właściciela

Jeśli nie potrzebujesz pośrednika, zaoszczędzisz około 26 700 zł. Potrzebujesz wsparcia? Skorzystaj z pomocy agenta.

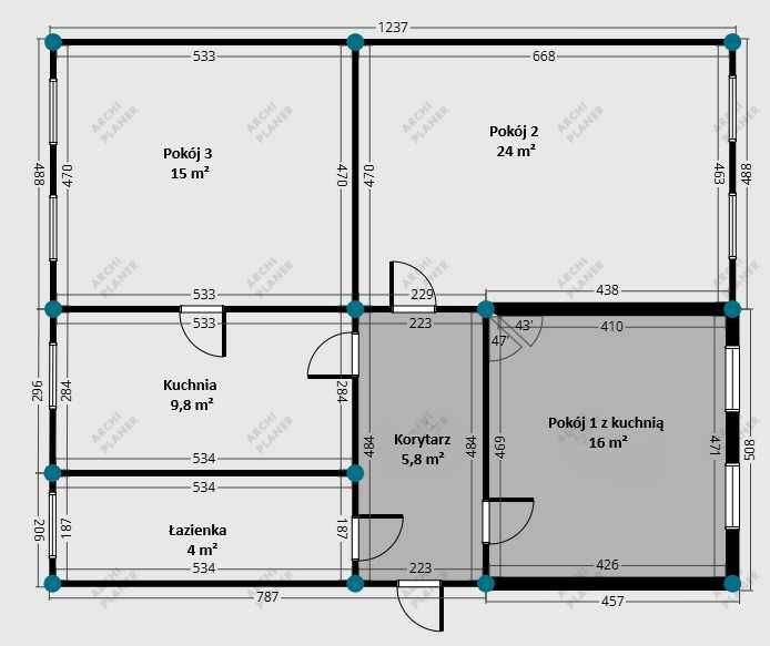
Oferuję na sprzedaż mieszkanie o powierzchni 73 m², przy ul. Strzeleckiej, znajdujące się na parterze.
Składa się z trzech pokoi, osobnej kuchni oraz, w jednym z pokoi, drugiej kuchni i łazienki.
Kamienica jest świetnie zachowana, a dotychczas przeprowadzone prace renowacyjne sprawiły, że budynek jest w bardzo dobrej kondycji.

Dodatkowe informacje:
- cena mieszkania: 890 000 zł,
- do mieszkania przynależy 20-metrowa piwnica, która znajduje się bezpośrednio pod mieszkaniem,
- 1 miejsce parkingowe na terenie kamienicy, za szlabanem,
- mieszkanie idealne dla rodziny, kancelarii adwokackiej, notariusza,
- mieszkanie wschód-zachód,
- pod mieszkaniem znajduje się węzeł centralnego ogrzewania, co czyni mieszkanie bardzo ciepłe,
- media: gaz, ogrzewanie miejskie, opomiarowanie wody, telewizja kablowa,
- mieszkanie do odświeżenia i remontu.

Lokalizacja mieszkania zapewnia łatwy dostęp do komunikacji miejskiej. W pobliżu znajdziesz obiekty handlowo-usługowe, restauracje, tereny zielone i rekreacyjne, osiedle bloków mieszkalnych. W okolicy są również szkoły, uczelnie wyższe, żłobek, przedszkole, apteka, szpital Copernicus, poczta, Urząd Miejski, przystanek tramwajowy, przystanek autobusowy, dworzec kolejowy, dworzec autobusowy. Bliskość kina, teatrów i gdańskiej starówki z pewnością ułatwi spędzanie wolnego czasu.

Nie zwlekaj, umów się na prezentację już dziś!

  • Na sprzedaż mieszkanie 3-pokojowe o powierzchni 73 m² piwnica, zewnętrzne miejsce parkingowe, osobna kuchnia
  • Parter w kamienicy  
  • Gdańsk, Śródmieście ul. Strzelecka
  • Mieszkanie w stanie do odświeżenia  
  • Oferta bezpośrednio od właściciela dodana ponad miesiąc temu i zaktualizowana ponad tydzień temu
Ta nieruchomość może być Twoja od.. sprawdź
178000 zł (20%) Okres spłaty: 30 lat

Podobne mieszkania na sprzedaż

20
Mieszkanie 2-pokojowe Gdańsk Śródmieście, ul. Ogarna

894 000

48

2 pok.

Tylko u nas! Prezentujemy Państwu unikatową nieruchomość, położoną w samym sercu "Starówki" Głównego Miasta Gdańska w bezpośrednim sąsiedztwie Wyspy Spichrzów oraz tętniącego życiem gastronomicznego centrum nad Motławą, gdzie skupione są najlepsze restauracje i kawiarnie. Bliskość muzeów oraz kluczo...

Zobacz ogłoszenie
19
Mieszkanie 3-pokojowe Gdańsk Śródmieście, ul. Łąkowa

799 000

53

3 pok.

Na sprzedaż 3-pokojowe mieszkanie po remoncie z oddzielną kuchnią w świetnej lokalizacji, przy samej Starówce! Bez pośredników, jestem właścicielem. ATUTY NIERUCHOMOŚCI: - idealna, gotowa inwestycja na najem krótkoterminowy lub hybrydowy - dostępne na życzenie podczas prezentacji dane odnośnie doch...

Zobacz ogłoszenie
10
Mieszkanie 4-pokojowe Gdańsk Śródmieście, ul. Długie Ogrody

889 000

59

4 pok.

Blisko do morza/plaża- Gdańsk Stogi 15 min / do Starówki - 5 min,/  pełna infrastruktura w zasięgu ręki .POLECAM ! Na sprzedaż 4 pok. mieszkanie o pow.59.60m – Gdańsk Śródmieście, ul. Długie Ogrody Mieszkanie położone na parterze budynku 10 piętrowym .. Układ pomieszczeń: • 4 niezależne pokoje, • o...

Zobacz ogłoszenie
8
Mieszkanie 3-pokojowe Gdańsk Śródmieście, ul. Stefanii Sempołowskiej

968 800

69

3 pok.

ATUTY: - 5 min pieszo do Starego Miasta  -150 do komunikacji miejskiej - Lokal idealny pod wynajem długoterminowy lub krótkoterminowy. MIESZKANIE: Mieszkanie położone na 2 piętrze składa się z dużego salonu, dwóch sypialni ,łazienki z prysznicem i oddzielnej dużej kuchni. W lokalu wymieniono całą in...

Zobacz ogłoszenie
14
Mieszkanie 3-pokojowe Gdańsk Śródmieście, ul. Szeroka

840 000

48

3 pok.

LOKAL ZAADOPTOWANY NA BIURO; pełne UMEBLOWANE. OD ZARAZ ŚCISŁE CENTRUM GDAŃSKIEJ "STARÓWKI", na ulicy Szerokiej 18/19; jest to ulica ogólnie dostępna, na której można parkować. Lokal położony jest na 1 piętrze ( wejście do klatki schodowej dobrze oznakowane -dodatkowy szyld ), czysta klatka schod...

Zobacz ogłoszenie
17
Mieszkanie 2-pokojowe Gdańsk Śródmieście, ul. Toruńska

815 000

44

2 pok.

Sprzedam 2-pokojowe mieszkanie zlokalizowane na 3. piętrze budynku zrealizowanego przez dewelopera PB Górski przy ul. Toruńskiej, kompleks Kamienice nad Motławą. Mieszkanie: - świeżo po remoncie - składa się z dwóch jasnych i ustawnych pokoi, aneksu kuchennego, łazienki i przedpokoju - okna drewnia...

Zobacz ogłoszenie