Ogłoszenie usunięte

Mieszkanie na sprzedaż bez pośredników
ul. Świeradowska Wrocław Krzyki

Mieszkanie 2-pokojowe Wrocław Krzyki, ul. Świeradowska. Zdjęcie 1

Mieszkanie na sprzedaż bez pośredników Wrocław Krzyki ul. Świeradowska · 3 piętro

-
-
45
2 pok.
Deweloper DEVELIA Inwestycja Vivre Numer lokalu AA0301
Bezpośrednio od dewelopera

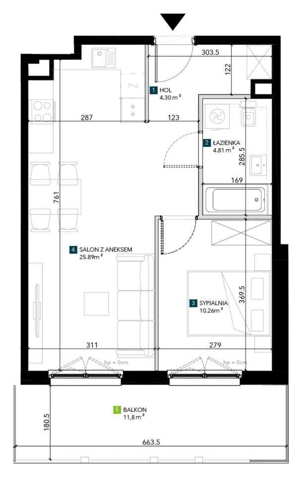
Nowe mieszkanie 2-pokojowe o powierzchni 45,26 m² w inwestycji Vivre dewelopera DEVELIA, na 3 piętrze w budynku 75A pod adresem ul. Świeradowska 75A, Wrocław Krzyki. Planowany termin oddania to I kwartał 2027 roku.

Opis inwestycji

Vivre to wyjątkowa inwestycja mieszkaniowa zlokalizowana w jednej z najbardziej cenionych dzielnic Wrocławia – Krzykach, tuż przy malowniczym Wzgórzu Gajowym. Projekt cechuje się elegancką, nowoczesną architekturą oraz starannie zaprojektowanymi częściami wspólnymi w stonowanej kolorystyce brązów i przełamanej bieli z subtelnymi złotymi akcentami.

W ramach inwestycji powstanie pięciokondygnacyjny budynek oferujący 52
komfortowe mieszkania o zróżnicowanych układach – od 1- do 4-pokojowych, o powierzchni od 30 do 94 m². Każde z mieszkań posiada balkon, taras lub
przydomowy ogródek, co zwiększa komfort codziennego życia. Na parterze
przewidziano również lokale usługowe, które ułatwią mieszkańcom codzienne
funkcjonowanie.

Dla wygody przyszłych mieszkańców zaplanowano podziemną halę garażową oraz udogodnienia dla miłośników jednośladów – stojaki na rowery oraz stanowisko do ich mycia i naprawy. Cała inwestycja będzie objęta monitoringiem.

Wszystkie mieszkania zostaną wyposażone w nowoczesny system smart home j Appartme. Umożliwia on m.in. zdalne sterowanie temperaturą, automatyczne wyłączanie oświetlenia po opuszczeniu mieszkania oraz odcięcie dopływu wody i prądu, co znacząco podnosi poziom bezpieczeństwa.

Lokalizacja

Inwestycja Vivre powstaje przy ul. Wandy Rutkiewicz, na wrocławskich Krzykach – w bezpośrednim sąsiedztwie Wzgórza Gajowego i otaczających je terenów zielonych. To idealne miejsce dla osób ceniących sobie połączenie bliskości natury z dostępem do miejskiej infrastruktury.

Dzielnica Krzyki to jeden z najbardziej pożądanych rejonów Wrocławia – zarówno przez rodziny z dziećmi, jak i osoby aktywne zawodowo. W okolicy znajdują się liczne sklepy, szkoły, przedszkola, restauracje, a także placówki medyczne. Rozbudowana sieć komunikacyjna umożliwia szybki dojazd do centrum miasta oraz innych dzielnic Wrocławia – zarówno samochodem, jak i komunikacją miejską.

Atuty

• Prestiżowa lokalizacja – Krzyki, tuż przy Wzgórzu Gajowym
• Blisko natury i szybki dojazd do centrum
• Tylko 52 mieszkania – kameralny budynek
• Każde mieszkanie z balkonem, tarasem lub ogródkiem
• Metraże od 30 do 94 m² – od kawalerek po 4 pokoje
• System smart home Appartme w standardzie
• Monitoring całej inwestycji
• Podziemny garaż + stacja naprawy i mycia rowerów
• Lokale usługowe na parterze – wygoda na co dzień
• Nowoczesna architektura i eleganckie wnętrza

Niniejszy materiał nie stanowi oferty w rozumieniu Kodeksu cywilnego i ma charakter wyłącznie informacyjny.

Szczegóły inwestycji dostępne są na stronie internetowej develia.pl

  • Oferta z rynku pierwotnego
  • Na sprzedaż mieszkanie 2-pokojowe o powierzchni 45,26 m² aneks kuchenny
  • 3 piętro w budynku z windą
  • Wrocław, Krzyki ul. Świeradowska
  • Mieszkanie do wykończenia  
  • Odrębna własność z księgą wieczystą  

Pozostałe nieruchomości tego dewelopera: Mieszkania DEVELIA Wrocław Mieszkania DEVELIA Vivre Wrocław Mieszkania 2-pokojowe DEVELIA Vivre Wrocław

Podobne mieszkania w inwestycji Vivre

Sortuj:
2 pok.
45.48 m²
parter
2 pok.
45.58 m²
3 p.
2 pok.
45.26 m²
parter
2 pok.
45.26 m²
1 p.
2 pok.
44.98 m²
2 p.
2 pok.
42.49 m²
1 p.
2 pok.
44.52 m²
1 p.
2 pok.
42.22 m²
1 p.

Aktualne mieszkania na sprzedaż

11
Mieszkanie 2-pokojowe Wrocław Krzyki, ul. Międzyleska

zapytaj

39

2 pok.

Nowe mieszkanie 2-pokojowe o powierzchni 39,16 m² w inwestycji Przy Parku Vita dewelopera DEVELIA, na parterze w budynku 2 pod adresem ul. Międzyleska 2, Wrocław Krzyki. Planowany termin oddania to III kwartał 2027 roku. Opis inwestycji Przy Parku Vita to wyjątkowa inwestycja mieszkaniowa położo...

Zobacz ogłoszenie
22
Mieszkanie 2-pokojowe Wrocław Stare Miasto, ul. marsz. Józefa Piłsudskiego

zapytaj

47

2 pok.

Sprzedam 2-pokojowe mieszkanie przy ulicy. Piłsudsudskiego Mieszkanie znajduje się w centrum Wrocławia blisko komunikacji tramwajowej i autobusowej, Szkola Muzyczna i podstawowa , przeczkole ,Urzędu Miejski , Teatr Polski ,Teatr Muzyczny Capitol , Sąd Apelacyjny ,Renoma oraz stacji kolejowej Wro...

Zobacz ogłoszenie
8
Mieszkanie 3-pokojowe Wrocław Popowice, ul. Legnicka

zapytaj

60

3 pok.

Nowe mieszkanie 3-pokojowe o powierzchni 60,03 m² w inwestycji Legnicka Vita dewelopera DEVELIA, na 10 piętrze w budynku 52A pod adresem ul. Legnicka 52A, Wrocław Popowice. Planowany termin oddania to IV kwartał 2025 roku. Lokalizacja Legnicka Vita to najnowsza propozycja Develii realizowana w d...

Zobacz ogłoszenie