Mieszkanie na sprzedaż bez pośredników
ul. Stanisława Drabika Wrocław Jagodno

Mieszkanie 2-pokojowe Wrocław Jagodno, ul. Stanisława Drabika. Zdjęcie 1

Mieszkanie na sprzedaż bez pośredników Wrocław Jagodno ul. Stanisława Drabika · 4 piętro

559 000
14 991 zł/m²
37
2 pok.
Wrocław Jagodno, Stanisława Drabika - lokalizacja przybliżona
Bezpośrednio od właściciela

Jeśli nie potrzebujesz pośrednika, zaoszczędzisz około 16 800 zł. Potrzebujesz wsparcia? Skorzystaj z pomocy agenta.

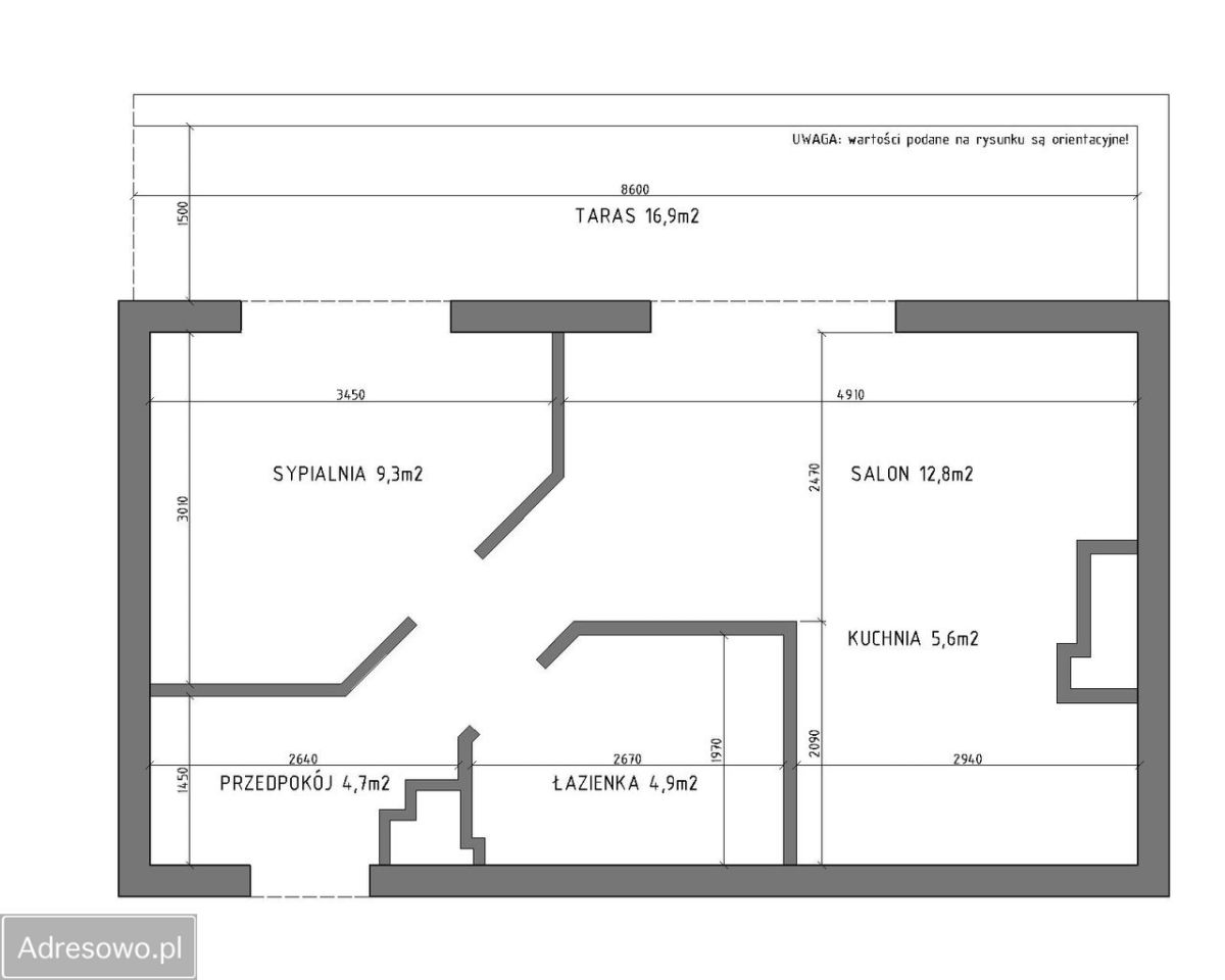
Na sprzedaż 2-pokojowe mieszkanie o powierzchni 37,29 m² z dużym tarasem (16 m²), położone na nowym osiedlu na Jagodnie (2023 r.).
Mieszkanie znajduje się na 4. piętrze w budynku z windą.

Układ:
- salon z aneksem kuchennym
- sypialnia
- łazienka
- przedpokój
- przestronny taras (16 m²)

Standard i wyposażenie:
- mieszkanie gotowe do zamieszkania bez dodatkowych nakładów
- kuchnia wykonana w wysokim standardzie (zabudowa + sprzęt AGD)
- nowoczesne materiały i spójna kolorystyka

Najważniejsze atuty:
- duży, ustawny taras - realne przedłużenie przestrzeni mieszkania
- budynek z 2023 roku
- funkcjonalny układ pomieszczeń
- idealne dla singla, pary lub jako inwestycja pod wynajem

Lokalizacja:
Jagodno - dynamicznie rozwijająca się część Wrocławia z dobrym dojazdem do centrum. W najbliższej okolicy przychodnie, sklepy, apteka, przedszkola, żłobki; szkoła podstawowa w odległości ok. 1 km.

Dodatkowe informacje:
- miejsce postojowe w hali garażowej w cenie 39 000 zł (zakup obligatoryjny)
- możliwość szybkiego wydania

Zapraszam do kontaktu i na prezentację.

  • Na sprzedaż mieszkanie 2-pokojowe o powierzchni 37,29 m² taras, garaż/miejsce parkingowe, aneks kuchenny
  • 4 piętro w 4-piętrowym apartamentowcu z windą, rok budowy 2023
  • Wrocław, Jagodno ul. Stanisława Drabika
  • Mieszkanie w stanie do zamieszkania okna plastikowe
  • Odrębna własność z księgą wieczystą  
  • Oferta bezpośrednio od właściciela dodana ponad miesiąc temu i zaktualizowana ponad tydzień temu
Ta nieruchomość może być Twoja od.. sprawdź
112000 zł (20%) Okres spłaty: 30 lat

Podobne mieszkania na sprzedaż

8
Mieszkanie 2-pokojowe Wrocław Jagodno, ul. Igora Strawińskiego

560 000

40

2 pok.

Mieszkanie w bardzo dobrej lokalizacji. Nowe osiedle i prężnie rozwijające się Wrocławskie Jagodno. Pełna infrastruktura.

Zobacz ogłoszenie
19
Mieszkanie 3-pokojowe Wrocław Psie Pole, ul. Obornicka

559 000

47

3 pok.

Na sprzedaż - 3-pokojowe mieszkanie z balkonem | Wrocław, ul. Obornicka. Na sprzedaż funkcjonalne i w pełni wyposażone mieszkanie 3-pokojowe, położone na 1. piętrze w budynku z windą, przy ul. Obornickiej we Wrocławiu. Idealna propozycja zarówno dla rodziny, jak i pod inwestycję - mieszkanie gotow...

Zobacz ogłoszenie
22
Mieszkanie 2-pokojowe Wrocław Jagodno, ul. Edmunda Kajdasza

710 000

48

2 pok.

* PODPISANA UMOWA PRZEDWSTĘPNA * Kajdasza 44 - nowoczesne 2 pokoje z oddzielną kuchnią i widokiem na poranne słońce Na sprzedaż przytulne, estetyczne i nowocześnie urządzone 2-pokojowe mieszkanie z oddzielną kuchnią na wrocławskim Jagodnie (Krzyki). Jagodno to jedno z najmłodszych i najszybciej rozw...

Zobacz ogłoszenie
19
Mieszkanie 2-pokojowe Wrocław Jagodno, ul. Adama Kopycińskiego

715 000

45

2 pok.

Oferujemy wyjątkowe mieszkanie w wysokim standardzie, po kompleksowym remoncie generalnym. Mieszkanie znajduje się na 2 piętrze. Na klatce schodowej znajdują się zaledwie 4 mieszkania, co zapewnia wyjątkową ciszę, prywatność i komfort sąsiedztwa. Mieszkanie wyposażone jest w system smart home Kemp...

Zobacz ogłoszenie
8
Mieszkanie 2-pokojowe Wrocław Jagodno, ul. Stanisława Drabika

730 000

46

2 pok.

Na sprzedaż 2-pokojowe mieszkanie 46.59m² we Wrocławiu przy ul. Stanisława Drabika w 4 piętrowym bloku z windą. Osiedle "Nowe miasto Jagodno", etap IV, inwestycja oddana w drugiej połowie 2021 roku.  Mieszkanie jest gotowe do zamieszkania, nie wymaga żadnych nakładów finansowych. Idealne dla pary, ...

Zobacz ogłoszenie
12
Mieszkanie 3-pokojowe Wrocław Jagodno, ul. Beaty Artemskiej

730 000

50

3 pok.

Na sprzedaż komfortowe, 3-pokojowe mieszkanie o powierzchni 50,5 m², położone na 1. piętrze w nowoczesnym budynku z 2022 roku, zlokalizowane na wrocławskim Jagodnie. Mieszkanie jest w pełni wykończone i gotowe do zamieszkania - idealne dla pary lub rodziny 2+1. UKŁAD I STANDARD: - salon z aneksem k...

Zobacz ogłoszenie