Mieszkanie na sprzedaż bez pośredników
Fabryczna Wrocław

Mieszkanie 3-pokojowe Wrocław Fabryczna. Zdjęcie 1

Mieszkanie na sprzedaż bez pośredników Wrocław Fabryczna brak adresu · parter

700 000
10 000 zł/m²
70
3 pok.
Wrocław Fabryczna - lokalizacja przybliżona
Bezpośrednio od właściciela

Jeśli nie potrzebujesz pośrednika, zaoszczędzisz około 21 000 zł. Potrzebujesz wsparcia? Skorzystaj z pomocy agenta.

Bezpośrednio od właściciela.

3 pokoje / parter / 70m² / z ogródkiem

Lokalizacja Wrocław Leśnica

Na sprzedaż mieszkanie we Wrocławiu-Leśnicy w spokojnej,cichej części osiedla blisko terenów zielonych.

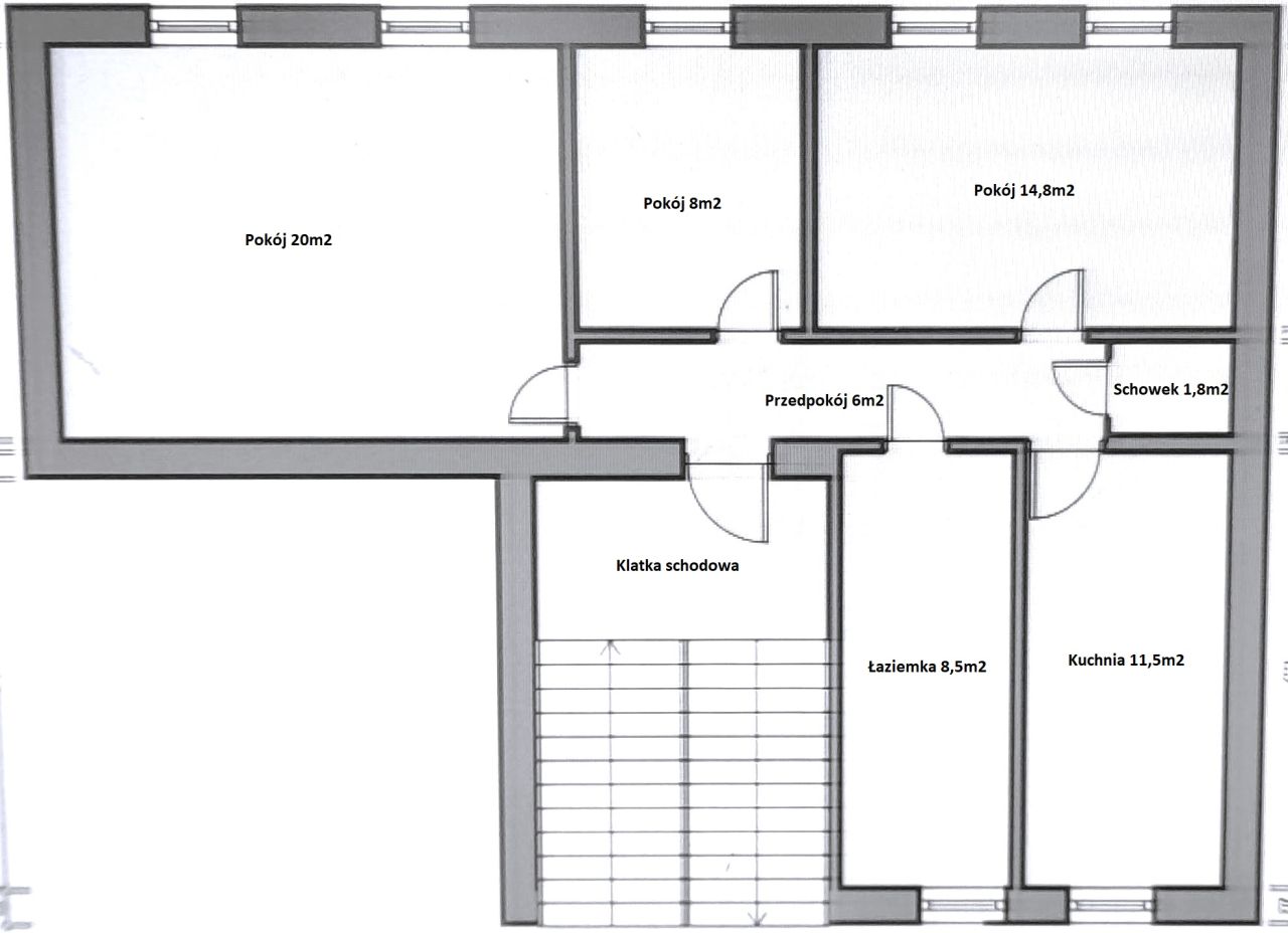
W skład mieszkania wchodzą:

Pokój-20m² (podzielony na dwa mniejsze pokoje)
Pokój-14,8m²
Pokój-8m²
Kuchnia-11,5m²
Łaziemka-8,5m²
Przedpokój-6m²
Schowek-1,8m²

Mieszkanie bezczynszowe.
Duża osobna kuchnia.
Ogrzewanie piec gazowy dwufunkcyjny.
Instalacja elektryczna miedziana.
Okna PCV.
Światłowód.

Stan techniczny mieszkania do odświeżenia.

Pełna własność księga wieczysta bez obciążeń.

Mieszkanie usytuowane jest na parterze dwurodzinnego budynku.
Powierzchnia całkowita posesji 529m².
Działka w całości ogrodzona ,na której znajduje się część służąca do wypoczynku
oraz miejsca parkingowe dla mieszkańców.
Do mieszkania przynależy piwnica o powierzchni około 30m²,strych,murowana komórka 15m² co daje dużo przestrzeni do przechowywania.
W budynku przeprowadzono remont dachu oraz elewacji.
Technika budowy / cegła grubość murów około 40cm.


W bliskiej odległości przystanek MPK-30m,z którego mamy bezpośrednie połączenie z pętlą autobusowo-tramwajową oraz stacją PKP Wrocław-Leśnica.
Szkoła podstawowa oraz liczne przedszkola.
W okolicy sklepy takie jak Lidl,Biedromka,Aldi,Rossmann i wiele innych.
W sąsiedztwie las mokrzański,park leśnicki,stawy i inne tereny zielone.

Zapraszam do kontaktu.

  • Na sprzedaż mieszkanie 3-pokojowe o powierzchni 70 m² piwnica, zewnętrzne miejsce parkingowe, ogródek, osobna kuchnia
  • Parter w 1-piętrowym domu wielorodzinnym bez windy, rok budowy 1930
  • Wrocław, Fabryczna  
  • Mieszkanie w stanie do odświeżenia okna plastikowe
  • Odrębna własność z księgą wieczystą  
  • Wyposażenie internet
  • Cena do negocjacji  
  • Oferta bezpośrednio od właściciela dodana przedwczoraj
Ta nieruchomość może być Twoja od.. sprawdź
140000 zł (20%) Okres spłaty: 30 lat

Podobne mieszkania na sprzedaż

10
Mieszkanie 3-pokojowe Wrocław Fabryczna

679 000

45

3 pok.

INFORMACJA DLA POŚREDNIKÓW. Szanowni Państwo, Proszę nie dzwonić oferując swoją współpracę. I Państwo, i ja wiemy doskonale, że niewiele z tego wynika. Jeżeli jednak (faktycznie) macie Państwo klientów poszukujących i chcecie zobaczyć nieruchomość, wówczas informuję, że: - nie zgadzam się na publiko...

Zobacz ogłoszenie
8
Mieszkanie 2-pokojowe Wrocław Fabryczna, ul. Budziszyńska

699 000

65

2 pok.

Sprzedam mieszkanie 2-pokojowe przerobione z mieszkania 3-pokojowego o powierzchni 65,04 m2 mieszczące się na 1 piętrze z windą i balkonem, wraz z umeblowaniem przy ulicy Budziszyńskiej we Wrocławiu. Mieszkanie składa się z 2 pokoi, łazienki połączonej z WC, przedpokoju, kuchni, ganku oraz piwnicy. ...

Zobacz ogłoszenie
14
Mieszkanie 3-pokojowe Wrocław Fabryczna, ul. Budziszyńska

719 000

56

3 pok.

Na sprzedaż mieszkanie po generalnym remoncie, łącznie z wymianą instalacji elektrycznej. Mieszkanie dodatkowo również równane płytami, dzięki czemu jest dodatkowy efekt wygłuszenia. Większość mieszkań w podobnej cenie ofertowej, nawet zadbanych, jest mieszkaniami prędzej czy później do remontu gen...

Zobacz ogłoszenie
3
Mieszkanie 3-pokojowe Wrocław Fabryczna, ul. Stalowa

721 000

51

3 pok.

BEZPOŚREDNIO! Oferuję na sprzedaż apartament 3,7 km od Rynku! OPIS LOKALU: - Metraż: 51 m2 - II p. / VII p. (winda) - Lokal jednostronny, przestrzenny - 2 sypialnie + salon + aneks kuchenny + łazienka z WC - Balkon - 2,85 m2 - Pełna własność, wspólnota STANDARD: - Stan deweloperski - Ogrzewanie m...

Zobacz ogłoszenie
22
Mieszkanie 4-pokojowe Wrocław Fabryczna, ul. Strzegomska

684 000

70

4 pok.

Bardzo ładne 4-pokojowe mieszkanie z balkonem o pow. ok. 70 m2 przy ul. Strzegomskiej. Oferta idealna dla inwestora lub dla rodziny !!! WIĘCEJ INFORMACJI POD NR TEL. [numer]. Dostępny wirtualny spacer: [www]/show/?m=DRR1gRsF6mC Lokal usytuowany jest na 4-piętrze, 10-piętrowego budynku z windą i sk...

Zobacz ogłoszenie
20
Mieszkanie 3-pokojowe Wrocław Fabryczna, ul. Stefana Drzewieckiego

725 000

66

3 pok.

Idealne mieszkanie dla rodziny, do remontu, możliwość dostosowania do własnych potrzeb i gustu. W cenie zakupu: 2h konsultacja projektu mieszkania z architektem. Mieszkanie znajduje się na 2. piętrze w 3-piętrowym budynku. Na przestronnej klatce na jednym piętrze znajdują się tylko 2 mieszkania. Br...

Zobacz ogłoszenie