Mieszkanie na sprzedaż bez pośredników
ul. Popularna Warszawa Włochy

Mieszkanie 1-pokojowe Warszawa Włochy, ul. Popularna. Zdjęcie 1

Mieszkanie na sprzedaż bez pośredników Warszawa Włochy ul. Popularna · parter

695 000
16 997 zł/m²
40
1 pok.
Warszawa Włochy, Popularna - lokalizacja przybliżona
Bezpośrednio od właściciela

Jeśli nie potrzebujesz pośrednika, zaoszczędzisz około 20 900 zł. Potrzebujesz wsparcia? Skorzystaj z pomocy agenta.

Okazja!

Tylko z powodu chęci zakupu działki i pobudowania się sprzedaję bezpośrednio (pośrednikom dziękuję) swoje mieszkanie, które kupowałem dla siebie. Mieszkanie znajduje się w idealnej lokalizacji: 3 minuty na piechotę od Parku Cietrzewia, 11 minut na piechotę od PKP Włochy.

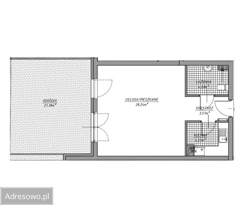
Mieszkanie jest ciche, z ogródkiem (nie od strony ulicy), który ze wszystkich trzech stron graniczy z innymi ogródkami. Idealna, cicha enklawa w topowej lokalizacji o niskiej zabudowie Miasta Ogrodu Włochy.

- Mieszkanie ma niestandardową wysokość 3.5 metra, umożliwiającą zrobienie antresoli.
- Niski czynsz poniżej 500 zł.
- Do mieszkania przypisane jest miejsce w garażu podziemnym, dodatkowo płatne 56 000 zł.
- Nowy, niski budynek (tylko 2 piętra) - na parterze, od strony ulicy, znajdują się sklepy i lokale usługowe.
- Pod budynkiem (mniej niż 10 metrów) jest przystanek z bezpośrednim autobusem do centrum (127 - 8 minut do Warszawy Zachodniej, 17 minut do Dworca Centralnego).
- Blisko Aleje Jerozolimskie, świetny wyjazd na obwodnicę.
- TOPOWA lokalizacja - mieszkania w okolicy (np. Popularna 60, Włoskie Tarasy) sprzedawane były po [numer]0 zł za metr.
- Mieszkanie posiada ogródek, otoczony z trzech stron zielenią - cicha enklawa w topowej lokalizacji.
- Gratis dorzucam projekt podziału na dwie mikro kawalerki z antresolami.
- W bliskim sąsiedztwie (do 5 minut na piechotę): sushi, dwie restauracje z kuchnią włoską, restauracja indyjska, restauracja z kuchnią polską, kebab, pub, lodziarnia, burgerownia, przychodnia, liczne sklepy.
- Czysta hipoteka bez obciążeń.
- Istnieje możliwość łatwego przekształcenia na lokal usługowy.

Mieszkanie jest w stanie deweloperskim. Zostały wyburzone ściany wewnętrzne, co umożliwia dowolną aranżację przestrzeni i wykończenie według własnych upodobań.

  • Na sprzedaż mieszkanie 1-pokojowe o powierzchni 40,89 m² taras, garaż/miejsce parkingowe, ogródek, osobna kuchnia
  • Parter w 2-piętrowym apartamentowcu z windą, rok budowy 2020
  • Warszawa, Włochy ul. Popularna
  • Mieszkanie do wykończenia okna plastikowe
  • Odrębna własność z księgą wieczystą  
  • Oferta bezpośrednio od właściciela dodana ponad miesiąc temu i zaktualizowana ponad tydzień temu
Ta nieruchomość może być Twoja od.. sprawdź
139000 zł (20%) Okres spłaty: 30 lat

Podobne mieszkania na sprzedaż

17
Mieszkanie 2-pokojowe Warszawa Włochy, ul. Łopuszańska

703 325

40

2 pok.

Na sprzedaż nowoczesne, 2-pokojowe mieszkanie o powierzchni 40,19 m², z loggią 4,63 m², położone na ostatniej kondygnacji nowej inwestycji przy ul. Łopuszańskiej 47 w Warszawie. Mieszkanie sprzedawane w formie cesji umowy deweloperskiej — idealna opcja dla osób szukających nowego lokalu bez koniecz...

Zobacz ogłoszenie
6
Mieszkanie 2-pokojowe Warszawa Włochy, ul. Klinkierowa

683 999

34

2 pok.

Szukasz mieszkania, które zarabia od pierwszego dnia albo idealnego 2-pokojowego lokum do szybkiego zamieszkania? Ta oferta jest dokładnie dla Ciebie. Na sprzedaż w pełni gotowe, funkcjonalne mieszkanie 2-pokojowe, położone w jednej z najbardziej poszukiwanych lokalizacji - tuż przy Parku Szczęśliwi...

Zobacz ogłoszenie
13
Mieszkanie 3-pokojowe Warszawa Włochy, al. Dwudziestolatków

750 000

48

3 pok.

Warszawa, Włochy, ul. Aleja Dwudziestolatków - 48,5 m2 // 3 pokoje + balkon francuski + PIWNICA WE SPEAK ENGLISH Mamy przyjemność zaprezentować Państwu 3 pokojowe mieszkanie o powierzchni 48,5 m2 położone na ul. Kolorowej w Ursusie, znajdujące się na parterze w 4 piętrowym kameralnym bloku. Mieszk...

Zobacz ogłoszenie
9
Mieszkanie 2-pokojowe Warszawa Włochy, ul. Marcina Flisa

690 000

42

2 pok.

NIE WSPÓŁPRACUJĘ Z AGENCJAMI. Sprzedam mieszkanie na parterze, znajdujące się przy ulicy Marcina Flisa, dzielnica Włochy. Rok budowy: 2019. Powierzchnia: 41,91 m². W skład mieszkania wchodzi salon z aneksem kuchennym, sypialnia i łazienka. Lokal posiada dwa ogródki o powierzchni 14,54 m² i 9,26 ...

Zobacz ogłoszenie
21
Mieszkanie 2-pokojowe Warszawa Włochy, ul. Żwirki i Wigury

729 000

54

2 pok.

Sprzedam mieszkanie 54,65 m² - ul. Żwirki i Wigury, Warszawa Na sprzedaż przestronne, klimatyczne mieszkanie o powierzchni 54,65 m², zlokalizowane przy ul. Żwirki i Wigury 19 - w jednej z najlepiej skomunikowanych i najbardziej zielonych części Warszawy. Atuty lokalizacji doskonała infrastruktura - ...

Zobacz ogłoszenie
1
Mieszkanie 2-pokojowe Warszawa Włochy, ul. Batalionu AK "Włochy"

690 000

54

2 pok.

2-pokojowe mieszkanie zlokalizowane na Włochach przy ul. Batalionu AK Włochy BUDYNEK/OSIEDLE Mieszkanie znajduje się na 1 piętrze w 3 piętrowym budynku. Rok budowy: 2000 NIERUCHOMOŚĆ Mieszkanie o powierzchni 54 m2 składa się z: -dwóch pokoi, -oddzielnej kuchni, -łazienki, -przedpokoju. Powier...

Zobacz ogłoszenie