Mieszkanie na sprzedaż bez pośredników
Mokotów Warszawa

Mieszkanie 4-pokojowe Warszawa Mokotów. Zdjęcie 1

Mieszkanie na sprzedaż bez pośredników Warszawa Mokotów brak adresu · parter

4 290 000
48 922 zł/m²
87
4 pok.
Warszawa Mokotów - lokalizacja przybliżona
Bezpośrednio od właściciela

Jeśli nie potrzebujesz pośrednika, zaoszczędzisz około 128 700 zł. Potrzebujesz wsparcia? Skorzystaj z pomocy agenta.

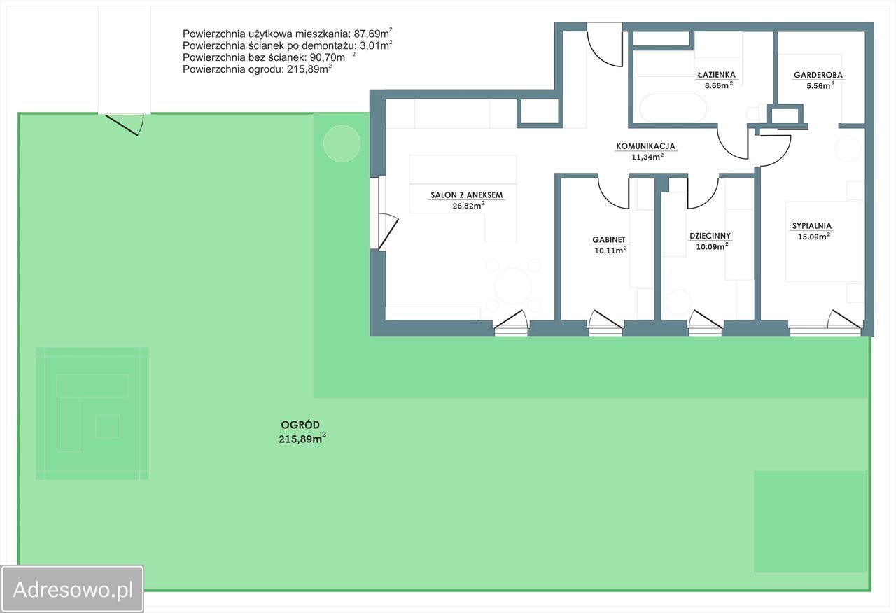
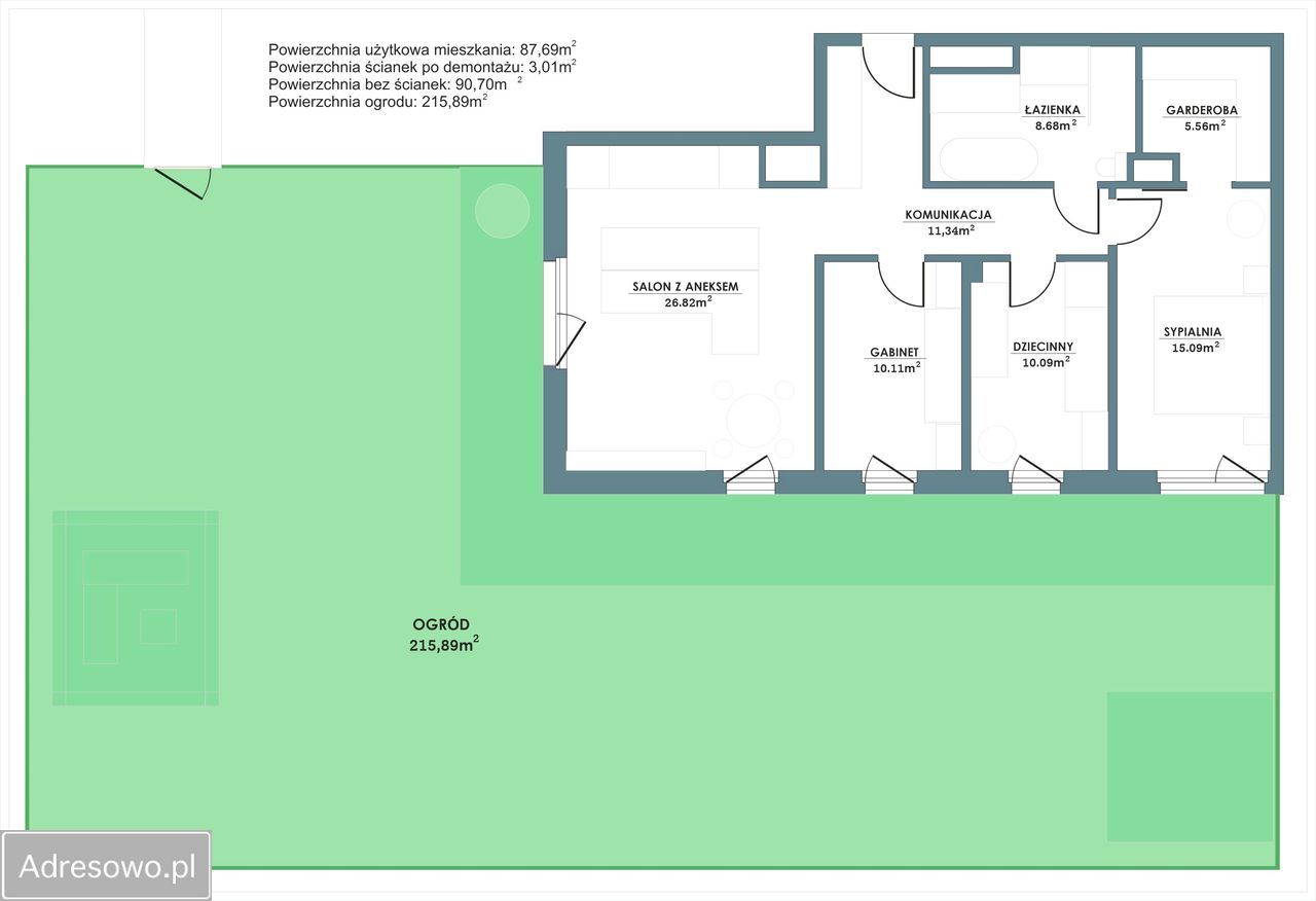
APARTAMENT 87,69 m² Z PRYWATNYM OGRODEM 215,89 m²
Nova Królikarnia | Mokotów | Wysokość 3 m

Wyjątkowy apartament z dużym, prywatnym ogrodem, położony na kameralnym osiedlu Nova Królikarnia - w jednej z najbardziej prestiżowych i zielonych części Mokotowa.

Nieruchomość znajduje się w nowoczesnej willi miejskiej z 2021 roku (niska, kameralna zabudowa) i oferuje 87,69 m² doskonale zaprojektowanej przestrzeni o ponadstandardowej wysokości 3,0 m.
Naturalnym przedłużeniem apartamentu jest prywatny, w pełni zagospodarowany ogród o powierzchni 215,89 m².
To idealna propozycja dla osób poszukujących komfortu domu z ogrodem, przy zachowaniu prestiżowej lokalizacji i wygody mieszkania w mieście.
Południowo-zachodnia ekspozycja zapewnia bardzo dobre nasłonecznienie wnętrz i ogrodu przez większą część dnia. Kameralna zabudowa oraz całodobowa ochrona osiedla gwarantują ciszę, prywatność i wysoki poziom bezpieczeństwa.

Najważniejsze atuty nieruchomości:
• prywatny ogród 215,89 m² z tarasem wykonanym z deski kompozytowej NewTechWood UltraShield oraz wolnostojącą pergolą
• automatyczny system nawadniania ogrodu oraz robot koszący - ogród praktycznie bezobsługowy
• wysokość pomieszczeń 3,0 m
• okna o wysokości 240 cm oraz wyjście do ogrodu z każdego pokoju
• bezpośrednie wejście do apartamentu z poziomu chodnika
• klimatyzacja w trzech pokojach (agregat na dachu budynku)
• kameralne, strzeżone osiedle z całodobową ochroną fizyczną
• nowoczesna willa miejska z 2021 r.
• bardzo dobra ekspozycja słoneczna (SW)
• wysoki standard wykończenia i automatyki
• osobny podlicznik wody ogrodowej (bez opłat za odprowadzanie ścieków)

Rozkład i funkcjonalność:
• salon z aneksem kuchennym
• gabinet
• pokój (dziecięcy lub gościnny)
• łazienka
• sypialnia
• garderoba
• przestronny hol z zabudową

Standard i wyposażenie:
• naturalne podłogi drewniane oraz wielkoformatowe spieki kwarcowe wysokiej jakości
• indywidualnie projektowane zabudowy stolarskie na wymiar
• najwyższej jakości klimatyzacja z oczyszczaczem powietrza
• systemy smart home oraz system alarmowy
• rolety zewnętrzne sterowane elektrycznie oraz moskitiery w każdym oknie
• wideodomofon
• wysoki standard materiałów i detali wykończeniowych

Parkowanie:
Apartament nie posiada przypisanego miejsca parkingowego.
Przy budynku dostępne są ogólnodostępne miejsca postojowe, a na osiedlu regularnie pojawiają się oferty wynajmu lub zakupu miejsc w garażu podziemnym.

Opłaty:
Czynsz administracyjny: ok. 1500 zł/mies.
(wysokość zależna głównie od zużycia wody w ogrodzie)

Kontakt i prezentacja:
Prezentacje odbywają się po wcześniejszym umówieniu terminu.
Oferta bezpośrednia od właściciela.

  • Na sprzedaż mieszkanie 4-pokojowe o powierzchni 87,69 m² taras, możliwość dokupienia garażu, ogródek, aneks kuchenny
  • Parter w 2-piętrowym apartamentowcu z windą, rok budowy 2021
  • Warszawa, Mokotów  
  • Mieszkanie w stanie do zamieszkania okna drewniane
  • Odrębna własność z księgą wieczystą  
  • Wyposażenie klimatyzacja
  • Oferta bezpośrednio od właściciela dodana ponad tydzień temu
Ta nieruchomość może być Twoja od.. sprawdź
858000 zł (20%) Okres spłaty: 30 lat

Podobne mieszkania na sprzedaż

4
Mieszkanie 3-pokojowe Warszawa Białołęka, ul. Ruskowy Bród

zapytaj

63

3 pok.

Nowe mieszkanie 3-pokojowe o powierzchni 63,61 m² w inwestycji Aroniowa Vita dewelopera DEVELIA, na parterze w budynku 57C pod adresem ul. Ruskowy Bród 57C, Warszawa Białołęka. Planowany termin oddania to III kwartał 2027 roku. Białołęka to dynamicznie rozwijająca się dzielnica Warszawy, ale zachow...

Zobacz ogłoszenie
4
Mieszkanie 3-pokojowe Warszawa Bemowo, ul. Szeligowska

zapytaj

55

3 pok.

Nowe mieszkanie 3-pokojowe o powierzchni 55,13 m² w inwestycji M Bemowo dewelopera DEVELIA, na 1 piętrze pod adresem ul. Szeligowska, Warszawa Bemowo. Planowany termin oddania to II kwartał 2027 roku. LOKALIZACJA M Bemowo 3 powstaje na warszawskim Bemowie – jednej z najszybciej rozwijających się ...

Zobacz ogłoszenie
8
Mieszkanie 3-pokojowe Warszawa Mokotów, al. gen. Władysława Sikorskiego

zapytaj

59

3 pok.

Nowe mieszkanie 3-pokojowe o powierzchni 59,97 m² w inwestycji Sikorskiego Vita dewelopera DEVELIA, na 3 piętrze w budynku 7 pod adresem al. gen. Władysława Sikorskiego 7, Warszawa Mokotów. Planowany termin oddania to III kwartał 2025 roku. Oferta Ofertę projektu tworzą 62 mieszkania o funkcjona...

Zobacz ogłoszenie
11
Mieszkanie 4-pokojowe Warszawa Praga-Południe, ul. Podskarbińska

zapytaj

82

4 pok.

Nowe mieszkanie 4-pokojowe o powierzchni 82,41 m² w inwestycji Aleje Praskie dewelopera DEVELIA, na 1 piętrze pod adresem ul. Podskarbińska, Warszawa Praga-Południe. Planowany termin oddania to III kwartał 2026 roku. O inwestycji Aleje Praskie to nowoczesna inwestycja w sercu Pragi Południe, w j...

Zobacz ogłoszenie
11
Mieszkanie 3-pokojowe Warszawa Włochy, ul. Trzcinowa

zapytaj

54

3 pok.

Nowe mieszkanie 3-pokojowe o powierzchni 54,63 m² w inwestycji Trzcinowa Vita dewelopera DEVELIA, na parterze w budynku 18 pod adresem ul. Trzcinowa 18, Warszawa Włochy. Planowany termin oddania to II kwartał 2027 roku. Trzcinowa Vita to nowoczesna inwestycja mieszkaniowa zlokalizowana w spokojnej,...

Zobacz ogłoszenie
8
Mieszkanie 4-pokojowe Warszawa Bielany, ul. Rokokowa

zapytaj

92

4 pok.

Nowe mieszkanie 4-pokojowe o powierzchni 92,85 m² w inwestycji Rokokowa Vita dewelopera DEVELIA, na 1 piętrze w budynku 132 pod adresem ul. Rokokowa 132, Warszawa Bielany. Planowany termin oddania to I kwartał 2026 roku. Lokalizacja Rokokowa Vita to najnowsza propozycja Develii realizowana na wars...

Zobacz ogłoszenie