Mieszkanie na sprzedaż bez pośredników
ul. Strumykowa Warszawa Białołęka

Mieszkanie 1-pokojowe Warszawa Białołęka, ul. Strumykowa. Zdjęcie 1

Mieszkanie na sprzedaż bez pośredników Warszawa Białołęka ul. Strumykowa · 2 piętro

575 000
16 912 zł/m²
34
1 pok.
Warszawa Białołęka, Strumykowa - lokalizacja przybliżona
Bezpośrednio od właściciela

Jeśli nie potrzebujesz pośrednika, zaoszczędzisz około 17 300 zł. Potrzebujesz wsparcia? Skorzystaj z pomocy agenta.

Kawalerka z duszą w zielonej oazie Białołęki - gotowa do zamieszkania!

Lokalizacja: Warszawa, Białołęka, ul. Strumykowa - cicha, zielona okolica z ochroną i monitoringiem 24/7. Blisko wszystkiego:
• Sklepy, piekarnie, apteka Ziko, Rossmann, Biedronka (7 min pieszo).
• Sklep osiedlowy tuż obok.
• Basen, bazarek, komunikacja: autobus (2 min pieszo), tramwaje 2/17 (5 min), metro Młociny (12 min tramwajem).

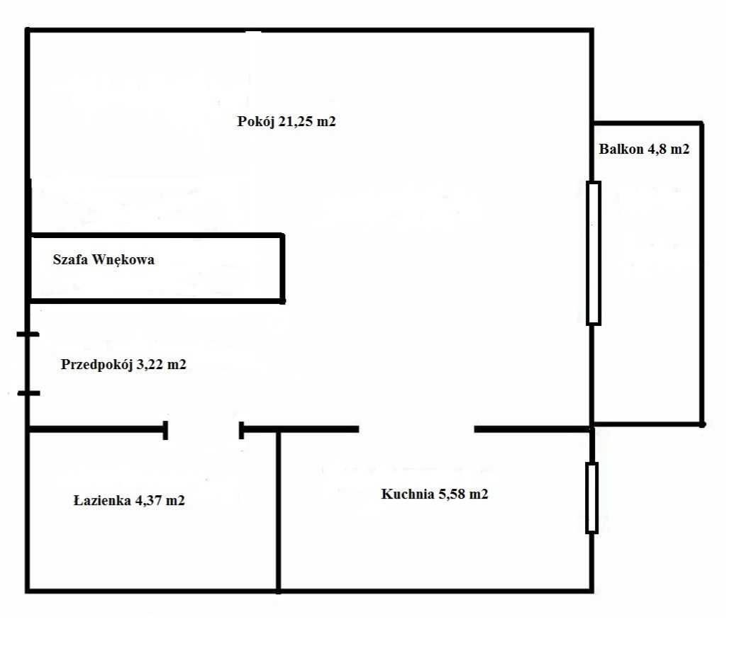
Powierzchnia i układ (34 m²):
• Widny pokój z egzotycznym drewnem na podłodze - idealny na sypialnię i salon.
• Oddzielna, jasna kuchnia w pełnej zabudowie (blaty, szafki, sprzęt AGD).
• Duży balkon na relaks z widokiem na zieleń.
• Przestronny przedpokój z dużą szafą w zabudowie i pawlaczem.
• Łazienka w gresie - czysta i funkcjonalna.

Standard i udogodnienia:
• Podłogi: gres w przedpokoju, łazience i kuchni; egzotyczne drewno w pokoju.
• Budynek z 2010 r. - solidny, zadbany, z windą.
• Ciche osiedle, bezpieczne dzięki ochronie i monitoringowi.

Mieszkanie własnościowe. Ma założoną KW.

Dodatek: Obowiązkowe miejsce postojowe w garażu podziemnym za 40 000 zł - wygodne i chronione.


Agencjom dziękujemy! Współpraca możliwa jedynie ze zdecydowanym klientem (prowizja po stronie kupujacego)

  • Na sprzedaż mieszkanie 1-pokojowe o powierzchni 34 m² balkon, miejsce w hali garażowej, osobna kuchnia
  • 2 piętro w 3-piętrowym bloku z windą, rok budowy 2010
  • Warszawa, Białołęka ul. Strumykowa
  • Mieszkanie w bardzo dobrym stanie  
  • Odrębna własność z księgą wieczystą  
  • Oferta bezpośrednio od właściciela dodana ponad tydzień temu
Ta nieruchomość może być Twoja od.. sprawdź
115000 zł (20%) Okres spłaty: 30 lat

Podobne mieszkania na sprzedaż

12
Mieszkanie 2-pokojowe Warszawa Białołęka, ul. Grzymalitów

580 000

34

2 pok.

Szukałeś mieszkania gotowego do zamieszkania? Ta oferta spełni Twoje oczekiwania. Mieszkanie ma 34,46 m² i znajduje się na drugim piętrze bloku z 2002 roku. Wnętrza są w pełni wykończone i wyposażone w meble, pralkę, lodówkę, kuchenkę i piekarnik. Do dyspozycji masz balkon, taras i miejsce parkin...

Zobacz ogłoszenie
9
Mieszkanie 2-pokojowe Warszawa Białołęka, ul. Mochtyńska

570 000

40

2 pok.

Komfortowe 2 pokoje gotowe do zamieszkania - ul. Mochtyńska, Warszawa Na sprzedaż przytulne i funkcjonalne mieszkanie o powierzchni 40,69 m², położone na 1. piętrze w kameralnym, 3-piętrowym bloku z windą. Układ mieszkania: • jasny salon z aneksem kuchennym • komfortowa sypialnia • łazienka • funk...

Zobacz ogłoszenie
6
Mieszkanie 3-pokojowe Warszawa Białołęka, ul. Dionizosa

549 000

39

3 pok.

Szukałeś mieszkania na Białołęce? Ten 39,5 m² apartament z balkonem i garażem czeka na Ciebie. Mieszkanie znajduje się na trzecim piętrze w 8-piętrowym apartamentowcu z windą. Oferuje 3 pokoje i jest dostępne od kwietnia 2026 roku. Lokal jest pełną własnością i posiada teren zamknięty dla bezpiecze...

Zobacz ogłoszenie
16
Mieszkanie 2-pokojowe Warszawa Białołęka, ul. Aluzyjna

579 000

44

2 pok.

Dzień dobry! Mam przyjemność zaprezentować mieszkanie zlokalizowane na Białołęce przy ul. Aluzyjnej 23D. Lokal jasny i przestronny nadaje się do bezpośredniego zamieszkania bez wkładu finansowego. Nieruchomość zlokalizowana na zamkniętym i strzeżonym osiedlu z ochroną oraz piętrowym garażem naziemn...

Zobacz ogłoszenie
8
Mieszkanie 2-pokojowe Warszawa Białołęka, ul. Aluzyjna

580 000

44

2 pok.

Sprzedam bezpośrednio 2-pokojowe mieszkanie o powierzchni 44,1 m2, usytuowane na 7. piętrze w 7-piętrowym bloku na zamkniętym i strzeżonym osiedlu, położonym na warszawskiej Białołęce przy ulicy Aluzyjnej. - Budynek został oddany do użytku w 2002 roku. - Do mieszkania przynależne jest miejsce parki...

Zobacz ogłoszenie
8
Mieszkanie 2-pokojowe Warszawa Białołęka, pl. Światowida

579 000

44

2 pok.

Warszawa - Białołęka ul. Światowida / Książkowa - 2 pokoje / 44,6 m2 + loggia // WINDA WE SPEAK ENGLISH Mamy przyjemność zaprezentować Państwu bardzo jasne 2 pokojowe mieszkanie o powierzchni 44,6m2 mieszczące się na parterze w 4 piętrowym bloku z windą, zlokalizowane na warszawskiej Białołęce. Ni...

Zobacz ogłoszenie