Mieszkanie na sprzedaż bez pośredników
ul. Krańcowa Poznań Nowe Miasto

NOWA OFERTA
Mieszkanie 2-pokojowe Poznań Nowe Miasto, ul. Krańcowa. Zdjęcie 1

Mieszkanie na sprzedaż bez pośredników Poznań Nowe Miasto ul. Krańcowa · parter

609 000
13 936 zł/m²
43
2 pok.
Poznań Nowe Miasto, Krańcowa - lokalizacja przybliżona
Bezpośrednio od właściciela

Jeśli nie potrzebujesz pośrednika, zaoszczędzisz około 18 300 zł. Potrzebujesz wsparcia? Skorzystaj z pomocy agenta.

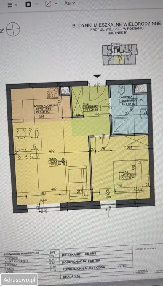
Na sprzedaż mieszkanie 43,7 m² - idealne dla pary lub inwestora.

Na sprzedaż funkcjonalne mieszkanie o powierzchni 43,7 m², położone na ulicy Krańcowej 4A na Osiedlu Kwadrans w atrakcyjnej i dobrze skomunikowanej okolicy. Mieszkanie położone jest na parterze 5-piętrowego bloku z 2017 roku.

Opis nieruchomości:
Mieszkanie składa się z:
- salonu z aneksem kuchennym - 22,94 m2
- sypialni - 11,19 m2
- łazienki - 4,82 m2
- przedpokoju - 4,78 m2
- ogródka - 12 m2

Lokal jest jasny, ustawny i dobrze doświetlony. Idealny zarówno do zamieszkania, jak i pod inwestycję (wynajem). Mieszkanie posiada ekspozycję zachodnią, co zapewnia dobre doświetlenie wnętrza w godzinach popołudniowych i wieczornych. Dzięki temu lokal jest jasny, przytulny i idealny do relaksu po pracy.

Standard i wyposażenie:
Mieszkanie sprzedawane z wyposażeniem:
- zabudowa kuchenna na wymiar + sprzęty AGD (lodówka, piekarnik, zmywarka, płyta indukcyjna)
- zabudowa na wymiar w przedpokoju
- pralka
- szafa PAX o szerokości 2 metry w sypialni
- meble w salonie z aneksem kuchennym

Lokalizacja:
Mieszkanie położone w dogodnej części Poznania - w pobliżu dworca Poznań Wschód (3 minuty pieszo), co zapewnia szybki dostęp do komunikacji kolejowej oraz wygodne połączenia z innymi częściami miasta. Bardzo dobry dojazd do dworca Poznań Główny - około 7 minut, co czyni lokalizację idealną dla osób korzystających z transportu kolejowego.
W najbliższej okolicy znajdują się również przystanki autobusowe, umożliwiające sprawny dojazd zarówno do centrum, jak i innych dzielnic. Dużym atutem jest szybki i wygodny dojazd do Ronda Śródka - jednego z głównych węzłów komunikacyjnych miasta, skąd kursują liczne linie tramwajowe i autobusowe.
Dodatkowym atutem jest dobrze rozwinięta infrastruktura - w pobliżu sklepy, punkty usługowe oraz tereny spacerowe.

Cena i dodatkowe informacje:
Cena mieszkania: 609000 zł
- w cenie mieszkania miejsce postojowe na zamkniętym naziemnym parkingu
- sprzedaż bezpośrednia - brak prowizji dla pośredników
- niski czynsz do wspólnoty mieszkaniowej (około 300 zł)

Zapraszam do kontaktu i na prezentację mieszkania!

  • Na sprzedaż mieszkanie 2-pokojowe o powierzchni 43,70 m² garaż/miejsce parkingowe, ogródek, aneks kuchenny
  • Parter w 5-piętrowym bloku rok budowy 2017
  • Poznań, Nowe Miasto ul. Krańcowa
  • Mieszkanie w stanie do zamieszkania okna plastikowe
  • Odrębna własność z księgą wieczystą  
  • Wyposażenie pralka, lodówka, piekarnik, zmywarka
  • Oferta bezpośrednio od właściciela dodana dodana dzisiaj
Ta nieruchomość może być Twoja od.. sprawdź
122000 zł (20%) Okres spłaty: 30 lat

Podobne mieszkania na sprzedaż

20
Mieszkanie 2-pokojowe Poznań Nowe Miasto, ul. Ostrówek

789 000

49

2 pok.

Serdecznie zapraszam do zapoznania się z ofertą pięknego, świeżo wyremontowanego i w pełni wyposażonego dwupokojowego mieszkania. Oferowana nieruchomość znajduje się w topowej, historycznej lokalizacji Poznania. Nieruchomość zlokalizowana jest na Rynku Śródeckim, 20 metrów od mostu Jordana, 100 metr...

Zobacz ogłoszenie
15
Mieszkanie 3-pokojowe Poznań Nowe Miasto, os. Armii Krajowej

670 000

47

3 pok.

3-pokojowe mieszkanie z loggią | funkcjonalny układ | gotowe do zamieszkania. Na sprzedaż komfortowe mieszkanie o bardzo funkcjonalnym układzie, składające się z trzech niezależnych pokoi, osobnej kuchni oraz łazienki. Dzięki oddzielnym pomieszczeniom lokal świetnie sprawdzi się zarówno dla rodziny...

Zobacz ogłoszenie
16
Mieszkanie 2-pokojowe Poznań Nowe Miasto, ul. Studzienna

750 000

43

2 pok.

Witam. Sprzedam w pełni umeblowane i wyposażone mieszkanie gotowe do zamieszkania od zaraz. Mieszkanie jest sprzedawane na fakture Vat 23% idealne na inwestycje dla Firmy oraz do odprowadzenia sobie kosztów w firmie. Mieszkanie jest wykończone na wysokiej jakości materiałach, większość sprzętu oraz...

Zobacz ogłoszenie
11
Mieszkanie 2-pokojowe Poznań Nowe Miasto, ul. Krańcowa

555 000

47

2 pok.

Dzień dobry, Okazyjnie sprzedam komfortowe i przestronne mieszkanie na ul. Krańcowej, składające się z dwóch pokoi, osobnej kuchni, nowoczesnej łazienki, balkonu oraz piwnicy. Mieszkanie o powierzchni 47,3m² znajduje się na 8. piętrze, jest w pełni umeblowane. Wysoka jakość wykończenia sprawia, że...

Zobacz ogłoszenie
18
Mieszkanie 3-pokojowe Poznań Piątkowo, ul. Teofila Mateckiego

609 000

53

3 pok.

!! OFERTA TYLKO W NASZYM BIURZE !! !! KUPUJĄCY NIE PŁACI PROWIZJI !! Przedstawiam na sprzedaż ofertę trzypokojowego mieszkania o powierzchni 53 m², położonego na 1 piętrze w niskim 4-piętrowym budynku z windą przy ul. Teofila Mateckiego w Poznaniu (Piątkowo). Budynek powstał w 2012 roku. Lokal jest ...

Zobacz ogłoszenie
3
Mieszkanie 2-pokojowe Poznań Nowe Miasto, ul. Naramowicka

470 620

42

2 pok.

Sprzedaż Bezpośrednio!!!!! Brak Prowizji!!!  2 -pokojowe mieszkania  42,56 m2 w cenie  470 000 zł oDwupoziomowy garaż podziemny z miejscami parkingowymi, komórkami lokatorskimi oraz stojakami na roweryŻabka, sklep spożywczy (1 minuta pieszo)Przystanek autobusowy Rubież (1 minuta pieszo)Przystan...

Zobacz ogłoszenie