Mieszkanie na sprzedaż bez pośredników
al. 29 Listopada Kraków Prądnik Biały

Mieszkanie 2-pokojowe Kraków Prądnik Biały, al. 29 Listopada. Zdjęcie 1

Mieszkanie na sprzedaż bez pośredników Kraków Prądnik Biały al. 29 Listopada · 8 piętro

610 000
15 569 zł/m²
39
2 pok.
Kraków Prądnik Biały, 29 Listopada - lokalizacja przybliżona
Bezpośrednio od właściciela

Jeśli nie potrzebujesz pośrednika, zaoszczędzisz około 18 300 zł. Potrzebujesz wsparcia? Skorzystaj z pomocy agenta.

Na sprzedaż ustawne i funkcjonalne mieszkanie o powierzchni 39,18 m² , na osiedlu Górka Narodowa przy alei 29 Listopada w Krakowie.

- Lokalizacja:
Osiedle Górka Narodowa, al. 29 Listopada – doskonała komunikacja z centrum miasta, nowa pętla „Górka Narodowa P+R” ,przystanki MPK, sklepy, szkoła podstawowa, tereny zielone. Rozwijająca się okolica z nową infrastrukturą, ścieżkami rowerowymi.

- Budynek
Rok budowy 2008r.
Zadbany blok z windą. Czysta klatka schodowa, monitoring, dostęp do miejsc parkingowych pod budynkiem. Budynek prezentuje się bardzo dobrze – zgodnie ze zdjęciem załączonym w ogłoszeniu.

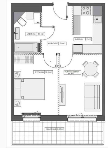
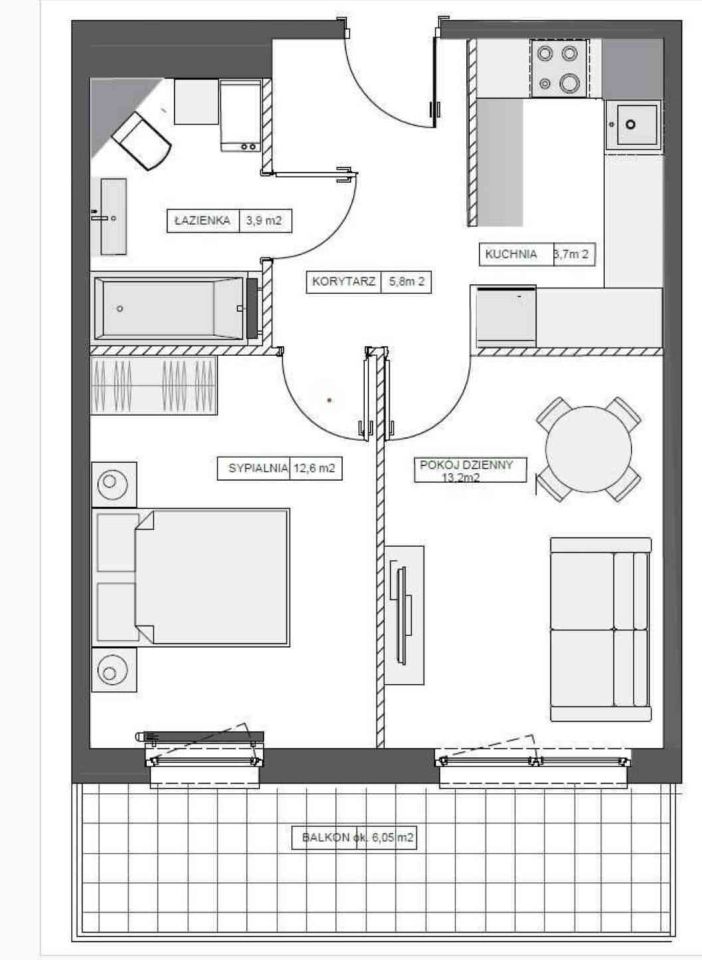
-Rozkład mieszkania (zgodnie z planem):

Pokój dzienny – 13,2 m²
Sypialnia – 12,6 m²
Kuchnia – 3,7 m² (osobna)
Łazienka – 3,9 m²
Korytarz – 5,8 m²
Balkon – ok. 6,05 m²

Mieszkanie znajduje się na 8 piętrze z widokiem na panoramę miasta. Jasne, dobrze doświetlone, z dużym balkonem – idealne do zamieszkania lub jako inwestycja pod wynajem.

-Dodatkowe atuty:

*Oddzielna kuchnia
*Duży balkon
*Nowoczesny budynek
*Spokojna, dobrze skomunikowana okolica
*Niski czynsz administracyjny ok 500 zł
*Na piętrze znajduje się do dyspozycji komórka lokatorska.
*Odrębna własność z księgą wieczystą
*Wyposażenie: internet, kuchenka, lodówka, mikrofalówka, piekarnik, pralka, zmywarka, telewizor
*Możliwość wynajęcia garażu
*Cena do negocjacji.

Kontakt:
Zapraszam do kontaktu telefonicznego lub mailowego w celu umówienia się na prezentację. Chętnie odpowiem na wszystkie pytania!

  • Na sprzedaż mieszkanie 2-pokojowe o powierzchni 39,18 m² balkon, piwnica, możliwość wynajęcia garażu, osobna kuchnia
  • 8 piętro w 10-piętrowym bloku z windą, rok budowy 2008
  • Kraków, Prądnik Biały al. 29 Listopada
  • Mieszkanie w bardzo dobrym stanie okna plastikowe
  • Odrębna własność z księgą wieczystą  
  • Wyposażenie internet, kuchenka, lodówka, mikrofalówka, piekarnik, pralka, telewizor, zmywarka
  • Oferta bezpośrednio od właściciela dodana ponad miesiąc temu i zaktualizowana dzisiaj
Ta nieruchomość może być Twoja od.. sprawdź
122000 zł (20%) Okres spłaty: 30 lat

Podobne mieszkania na sprzedaż

6
Mieszkanie 2-pokojowe Kraków Prądnik Biały, ul. Turystyczna

629 000

45

2 pok.

OFERTA NA WYŁĄCZNOŚĆ! Na sprzedaż mieszkanie o powierzchni 45,90 m², zlokalizowane przy ul. Turystycznej w dzielnicy Prądnik Biały. NAJWAŻNIEJSZE INFORMACJE: 2 oddzielne pokoje Oddzielna kuchnia z oknem Piętro: 6 / 10 z windą Ekspozycja: zachód Ogrzewanie i ciepła woda z sieci miejskiej (MPEC) Piwn...

Zobacz ogłoszenie
20
Mieszkanie 1-pokojowe Kraków Prądnik Biały, ul. Stefana Banacha

599 999

30

1 pok.

Do sprzedania duża kawalerka z balkonem przy ul. Banacha 29b w Krakowie – dzielnica IV Prądnik Biały. UWAGA! Mieszkanie można kupić pojedynczo lub w pakiecie inwestycyjnym składającym się z 9 mieszkań z najemcami w Krakowie – 7 kawalerek oraz 2 mieszkania 2-pokojowe! Szczegóły na temat pakietu inwe...

Zobacz ogłoszenie
1
Mieszkanie 2-pokojowe Kraków Prądnik Biały, ul. abp. Zygmunta Szczęsnego Felińskiego

600 000

50

2 pok.

2-pokojowe mieszkanie o powierzchni 50 m² jest gotowe do zamieszkania. Posiada balkon i oddzielną kuchnię. Większy pokój o powierzchni około 16 metrów, mniejszy 10 metrów. Dwa lata temu w większym pokoju zostały wymienione panele. Zostały również wymienione drzwi wewnętrzne. Mieszkanie znajduje si...

Zobacz ogłoszenie
19
Mieszkanie 2-pokojowe Kraków Prądnik Biały, ul. Macieja Słomczyńskiego

640 000

42

2 pok.

| 2 pokoje / osobna kuchnia / ul. Macieja Słomczyńskiego / szybki tramwaj / gotowe do wejścia / garaż / komórka lokatorska Tylko u nas, mamy klucze do nieruchomości. Układ i powierzchnia: - 2 pokoje, kuchnia, łazienka oraz przedpokój; - 2/3 piętro w bloku z 2005 roku; - 42,8 ...

Zobacz ogłoszenie
26
Mieszkanie 2-pokojowe Kraków Prądnik Biały, ul. Władysława Łokietka

640 000

38

2 pok.

| Mam przyjemność zaproponować Państwu mieszkanie, które znakomicie wykorzystuje każdy metr przestrzeni. Dwupokojowe 38,8m 2 z oddzielną kuchnią oraz piwnicą w cenie blisko centrum Krakowa z pięknym widokiem na panoramę i Park Wyspiańskiego , czeka na nowego właściciela. piękna, zielona okolic...

Zobacz ogłoszenie
25
Mieszkanie 2-pokojowe Kraków Prądnik Biały, ul. abp. Zygmunta Szczęsnego Felińskiego

670 000

47

2 pok.

| ŁADNE, ZADBANE 2-POKOJOWE MIESZKANIE Z BALKONEM | WIDOK NA ZIELEŃ Na sprzedaż klimatyczne, bardzo zadbane mieszkanie o powierzchni 47.91 m² , położone na parterze w budynku z 2012 roku , przy ul. Felińskiego . Lokal idealny zarówno do zamieszkania, jak i jako inwestycja pod wyna...

Zobacz ogłoszenie