Mieszkanie na sprzedaż bez pośredników
ul. Kazimierza Pułaskiego Kraków Dębniki

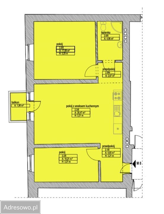
Mieszkanie 3-pokojowe Kraków Dębniki, ul. Kazimierza Pułaskiego. Zdjęcie 1

Mieszkanie na sprzedaż bez pośredników Kraków Dębniki ul. Kazimierza Pułaskiego · 1 piętro

1 290 000
19 545 zł/m²
66
3 pok.
Kraków Dębniki, Kazimierza Pułaskiego - lokalizacja przybliżona
Bezpośrednio od właściciela

Jeśli nie potrzebujesz pośrednika, zaoszczędzisz około 38 700 zł. Potrzebujesz wsparcia? Skorzystaj z pomocy agenta.

Wyjątkowa okazja! 3-pokojowe mieszkanie w kamienicy na Starych Dębnikach - stan deweloperski, idealne na inwestycję!

Sprzedam jasne i przestronne 3-pokojowe mieszkanie w prestiżowej lokalizacji - Stare Dębniki, ul. Kazimierza Pułaskiego, Kraków. To wyjątkowa propozycja zarówno dla osób szukających wymarzonego mieszkania w sercu miasta, jak i inwestorów poszukujących świetnej lokaty kapitału.


IDEALNA LOKALIZACJA

- Zaledwie kilka minut spacerem do Bulwarów Wiślanych, Wawelu i Rynku Głównego.
- Świetna komunikacja z każdą częścią miasta.
- W pobliżu sklepy, kawiarnie, restauracje oraz tereny zielone.


STAN DEWELOPERSKI PO GENERALNYM REMONCIE

- Nowe okna, instalacje elektryczne i hydrauliczne, świeże tynki i wylewki.
- To czyste płótno gotowe na realizację Twoich wnętrzarskich wizji.
- Mieszkanie znajduje się na I piętrze, co zapewnia komfort i wygodę.
- 3 pokoje, jasna kuchnia + salon, duża łazienka i przedpokój - do własnej aranżacji.
- Niskie koszty utrzymania, mała kamienica, miejskie ogrzewanie - idealne rozwiązanie dla osób szukających komfortu bez zbędnych wydatków.


SPRZEDAŻ BEZPOŚREDNIA - BRAK PROWIZJI!


BALKON

- Rzadkość w kamienicach, a tutaj dodatkowy atut dla tych, którzy cenią sobie poranną kawę na świeżym powietrzu i piękny widok.


POTENCJAŁ INWESTYCYJNY

- Doskonała lokalizacja i układ sprawiają, że mieszkanie idealnie nadaje się pod wynajem krótko- i długoterminowy.
- To mieszkanie to świetna propozycja dla rodzin, osób pracujących w centrum miasta, a także inwestorów, którzy chcą czerpać zyski z wynajmu.


Nie czekaj! Takie okazje szybko znikają z rynku.
Zadzwoń i umów się na prezentację.

  • Na sprzedaż mieszkanie 3-pokojowe o powierzchni 66 m² balkon
  • 1 piętro w 2-piętrowej kamienicy  
  • Kraków, Dębniki ul. Kazimierza Pułaskiego
  • Odrębna własność z księgą wieczystą  
  • Oferta bezpośrednio od właściciela dodana ponad miesiąc temu i zaktualizowana ponad tydzień temu
Ta nieruchomość może być Twoja od.. sprawdź
258000 zł (20%) Okres spłaty: 30 lat

Podobne mieszkania na sprzedaż

8
Mieszkanie 4-pokojowe Kraków Dębniki, ul. Obozowa

1 390 000

86

4 pok.

Sprzedam bez udziału pośredników przestronne mieszkanie 2-poziomowe. Powierzchnia użytkowa: 86,9 m2, po podłodze: 105 m2. Mieszkanie z klimatyzacją, posiada balkon i taras. Wystawa okien: wschód-południe-zachód. Położenie: 3 ostatnie piętro, ul. Obozowa. Budynek: Blok z 2006 roku. Domofon. Klatka s...

Zobacz ogłoszenie
20
Mieszkanie 3-pokojowe Kraków Dębniki, ul. Kazimierza Pułaskiego

1 298 000

66

3 pok.

Sprzedam bezpośrednio, stylowe, świeżo wyremontowane 3-pokojowe mieszkanie na 1 pietrze w klimatycznej kamienicy przy ul. Kazimierza Pułaskiego – z widokiem na ul. Różaną! Wysokość 3 m. Najważniejsze atuty: Generalny remont – nowe instalacje, podłogi, dębowy parkiet, drzwi na wymiar, gładzie, okna...

Zobacz ogłoszenie
21
Mieszkanie 3-pokojowe Kraków Dębniki, ul. Kobierzyńska

1 295 000

64

3 pok.

| Na sprzedaż 3 pokojowe mieszkanie z balkonem, położone na nowym osiedlu na Ruczaju. Mieszkanie usytuowane jest na pierwszym piętrze w sześciopiętrowym bloku z 2022 roku, przy ulicy Kobierzyńskiej. Na powierzchnię 64,77 m2 składa się : - pokój dzienny połączony z aneksem kuchennym (...

Zobacz ogłoszenie
21
Mieszkanie 2-pokojowe Kraków Dębniki, ul. Kazimierza Pułaskiego

1 290 000

60

2 pok.

*** ENGLISH TRANSLATION BELOW *** Sprzedam mieszkanie 60 m² + dodatkowy pokój 8 m² – Stare Dębniki / Rondo Grunwaldzkie Oferta prywatna – pośredników prosimy o niekontaktowanie się! Na sprzedaż wyjątkowe, jasne mieszkanie o powierzchni 60 m², zlokalizowane na II piętrze kamienicy z lat 30. przy u...

Zobacz ogłoszenie
14
Mieszkanie 3-pokojowe Kraków Dębniki, ul. dr. Jana Piltza

1 330 000

73

3 pok.

Zależy Ci na czasie i nie masz ochoty poświęcić kolejnych miesięcy swojego życia na użeranie się z wykonawcami? Zapraszamy na spotkanie w gotowym do zamieszkania apartamencie. Przyjdź, zobacz, złóż ofertę. Sprzedaż bezpośrednia, bez podatku PCC. --- NAJWAŻNIEJSZE INFORMACJE - NIERUCHOMOŚĆ: Wyjąt...

Zobacz ogłoszenie
13
Mieszkanie 2-pokojowe Kraków Dębniki, ul. Czerwone Maki

1 249 000

62

2 pok.

Do sprzedania przestronny apartament 62,24 + taras 22m2. ul. Czerwone Maki 49. Opcjonalnie dwa stanowiska postojowe w hali garażowej. LOKALIZACJA: ul. Czerwone Maki 49. Nieruchomość położona jest w samym sercu dzielnicy Ruczaj wchodzącej w skład dzielnicy Dębniki, w jednej z najbardziej pożądanych ...

Zobacz ogłoszenie