Mieszkanie na sprzedaż bez pośredników
ul. Kamionka Kraków Czyżyny

Mieszkanie 2-pokojowe Kraków Czyżyny, ul. Kamionka. Zdjęcie 1

Mieszkanie na sprzedaż bez pośredników Kraków Czyżyny ul. Kamionka · parter

665 000
13 039 zł/m²
51
2 pok.
Kraków Czyżyny, Kamionka - lokalizacja przybliżona
Bezpośrednio od właściciela

Jeśli nie potrzebujesz pośrednika, zaoszczędzisz około 20 000 zł. Potrzebujesz wsparcia? Skorzystaj z pomocy agenta.


Kraków - Czyżyny - ul. Kamionka - 51 m²

OFERTA BEZPOŚREDNIO OD WŁAŚCICIELI (BRAK PROWIZJI)

NAJWAŻNIEJSZE INFORMACJE:
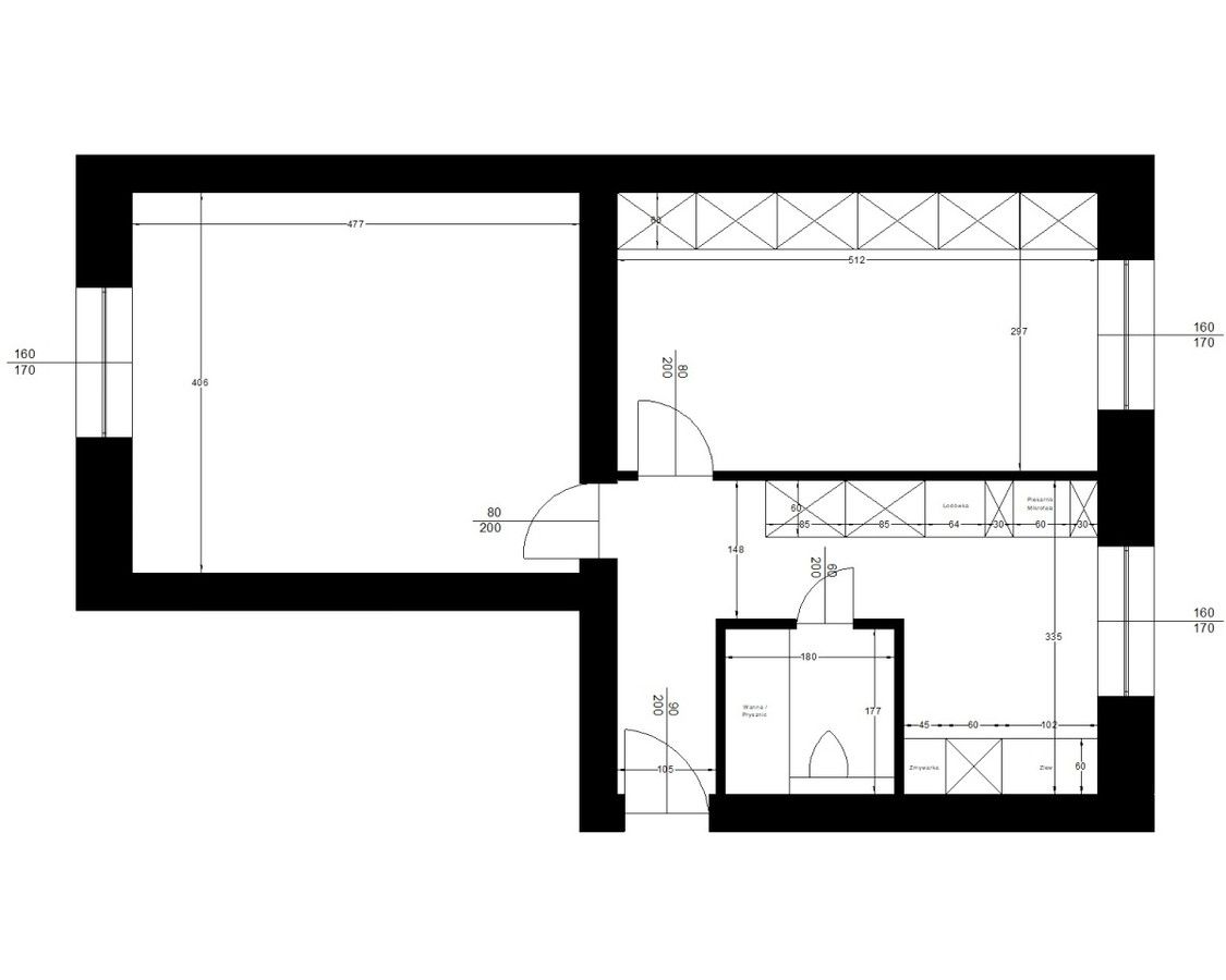
- Powierzchnia mieszkania: 50,52 m²
- 2 pokoje + osobna kuchnia + łazienka
- Mieszkanie z pełnym wyposażeniem
- Wysoki parter w dwupiętrowym bloku
- Mieszkanie wyposażone w alarm
- Duża piwnica (7,65 m²)
- Stan mieszkania: po generalnym remoncie w 2018 roku
- Ogrzewanie: miejskie
- Czynsz administracyjny: 630 zł (woda, śmieci według zużycia)
- Ogólnodostępny parking na ulicy.

NIERUCHOMOŚĆ:
Mieszkanie usytuowane jest na wysokim parterze dwupiętrowego bloku. Nieruchomość po generalnym remoncie w 2018 roku. Wymienione zostały wszystkie instalacje: elektryczna, hydrauliczna, gazowa.
W skład nieruchomości wchodzą:
● salon (19,37 m²)
● sypialnia (15,21 m²)
● kuchnia (6,94 m²)
● łazienka z WC i wanną (3,19 m²)
● przedpokój/komunikacja (5,81 m²).

W salonie znajduje się kanapa, biblioteczka oraz szafka RTV. Wszystkie te meble zostały zrobione na wymiar. Na wyróżnienie zasługuje drewniana podłoga oraz ściana z cegłą z czterema miejscami na zdjęcia dużego formatu.
Sypialnia to duże pomieszczenie z ogromną szafą przesuwną, dzięki której jest dużo miejsca do przechowywania. Bez problemu w pokoju zmieści się również biurko. Brakuje łóżka, które trzeba dokupić we własnym zakresie.
Nowoczesna kuchnia jest wyposażona w lodówkę, piekarnik, kuchenkę mikrofalową, płytę gazową oraz zmywarkę. Na uwagę zasługuje poręczne cargo, które pełni funkcję małej spiżarni. Duży blat pod oknem ułatwia przygotowywanie posiłków dla większej liczby gości.
Mała, choć praktycznie urządzona łazienka posiada wannę wraz z parawanem nawannowym oraz pralką. W podłodze zamontowane elektryczne ogrzewanie podłogowe sterowane z panelu dotykowego.
W przedpokoju znajduje się kolejna szafa przesuwna na płaszcze, buty i środki czystości. W szafie znajduje się również dodatkowe miejsce, które można wykorzystać na suszarkę elektryczną.
W przedpokoju oraz kuchni na podłodze położone są wysokiej klasy panele winylowe.

STAN MIESZKANIA:
Mieszkanie w dobrym stanie, wymaga delikatnego odświeżenia. Ogrzewanie z sieci MPEC, a ciepła woda pochodzi z piecyka gazowego umiejscowionego w kuchni. Do mieszkania przynależy piwnica o powierzchni 7,65 m².

STAN BUDYNKU:
Nieruchomość mieści się w budynku z lat 50. XX wieku z zadbaną elewacją. Na poddaszu dostępna jest suszarnia.

LOKALIZACJA:
Osiedle jest kameralne i spokojne z dużą ilością zieleni, a jednocześnie blisko niezbędnej infrastruktury.

Obiekty rekreacyjne:
- Park Woźniców (450m)
- Park Lotników Polskich (1,6 km)
- Wały Wiślane (1,5 km).

Supermarkety:
- Kaufland (500 m)
- Lidl (900 m)
- Biedronka (800 m).

Pozostałe sklepy:
- Designer Outlet Kraków (700 m)
- M1 (700 m)
- Centrum ATUT Galicyjska (1,1 km).

Edukacja:
- Szkoła Podstawowa nr 156 (700 m).

Komunikacja miejska:
- Tramwajowa (1, 14, 22, 62) - przystanek Gałczyńskiego (750 m)
- Autobusowa ([numer], 578) - przystanek Centralna (450 m).

Inne atrakcje:
- Centrum EXPO (700 m)
- Hala Centralna (750 m)
- Park Trampolin (1,6 km).

Zapraszamy do kontaktu.
Prosimy o nie kontaktowanie się pośredników nieruchomości.

  • Na sprzedaż mieszkanie 2-pokojowe o powierzchni 51 m² piwnica, osobna kuchnia
  • Parter w 2-piętrowym bloku rok budowy 1950
  • Kraków, Czyżyny ul. Kamionka
  • Mieszkanie w stanie do odświeżenia  
  • Wyposażenie pralka, lodówka, kuchenka, piekarnik, zmywarka, mikrofalówka
  • Oferta bezpośrednio od właściciela dodana ponad tydzień temu
Ta nieruchomość może być Twoja od.. sprawdź
133000 zł (20%) Okres spłaty: 30 lat

Podobne mieszkania na sprzedaż

11
Mieszkanie 2-pokojowe Kraków Czyżyny, ul. Sołtysowska

639 000

38

2 pok.

Tylko w Nest Brokers Estate Agency  Na sprzedaż ostatnie 2-pokojowe mieszkanie w gotowej inwestycji o powierzchni 38,81 m2 na nowopowstałym osiedlu przy ul. Sołtysowskiej w dzielnicy Czyżyny. Mieszkanie składa sie z : -Przedpokoju( 3,24 m2 ) -Łazienki ( 4,20 m2 ) -Salon ( 15,11 m2 ) - Sypialnia ( 8,...

Zobacz ogłoszenie
20
Mieszkanie 2-pokojowe Kraków Czyżyny, ul. Sołtysowska

675 000

31

2 pok.

NOWE, BEZ 2% PODATKU PCC, NOWOCZESNE, 2 POKOJOWE MIESZKANIE, KOMFORTOWE, Z KLIMATYZACJĄ, USTAWNE - UMEBLOWANE I WYPOSAŻONE, GOTOWE DO ZAMIESZKANIA, ZEWNĘTRZNE MIEJSCE POSTOJOWE PRZED BUDYNKIEM - W NOWYM BUDYNKU APARTAMENTOWYM - BLISKO TERENÓW ZIELONYCH - NA CZYŻYNACH. ATUTY NIERUCHOMOŚCI: * KUPUJ...

Zobacz ogłoszenie
6
Mieszkanie 3-pokojowe Kraków Czyżyny, ul. Romana Ciesielskiego

719 050

57

3 pok.

Na sprzedaż gotowe 3-pokojowe mieszkanie z balkonem, 57.99m² z ogródkiem – ul. Ciesielskiego, Czyżyny, Kraków Sprzedam mieszkanie o powierzchni 57.99 m², położone na 3 piętrze budynku w inwestycji Centralna Vita przy ul. Ciesielskiego w Krakowie. Mieszkanie składa się z: • pokoju dziennego z aneks...

Zobacz ogłoszenie
8
Mieszkanie 2-pokojowe Kraków Czyżyny, os. 2 Pułku Lotniczego

689 000

53

2 pok.

CZYŻYNY - 2-POKOJOWE - 53,3 m2 - NA OS. 2 PUŁKU LOTNICZEGO 28 WŁAŚCICIEL - BEZ POŚREDNIKÓW Sprzedam 2-pokojowe mieszkanie o powierzchni 53 m2, położone w Czyżynach na os. 2 Pułku Lotniczego 28. Mieszkanie usytuowane na 1. piętrze w 4-piętrowym bloku z cegły z 2001 roku. Stan mieszkania - do odświe...

Zobacz ogłoszenie
15
Mieszkanie 2-pokojowe Kraków Czyżyny, os. Dywizjonu 303

650 000

50

2 pok.

| SŁONECZNE 2-POKOJOWE Z BALKONEM W DOBREJ LOKALIZACJI I CENIE LOKALIZACJA, BUDYNEK Prezentujemy słoneczne, przestronne mieszkanie, położone na 10-piętrze (ostatnim) budynku na Osiedlu Dywizjonu 303 w Czyżynach. Budynek estetyczny, z lat 80-tych, ocieplony, 10-piętrowy....

Zobacz ogłoszenie
6
Mieszkanie 2-pokojowe Kraków Czyżyny, ul. Janusza Meissnera

679 000

43

2 pok.

Bezpośrednio od właściciela na sprzedaż mieszkanie: - ul. Meissnera / Mogilska - 2 pokoje, z osobną kuchnią - kuchnia wyposażona w piekarnik, płytę, lodówkę - przestronny przedpokój - powierzchnia: 43 m2 - balkon francuski z widokiem na panoramę Krakowa, w tym Wawel - siódme piętro, blok z windą - m...

Zobacz ogłoszenie