Mieszkanie na sprzedaż bez pośredników
ul. Grzegorza z Sanoka Gdańsk Wrzeszcz

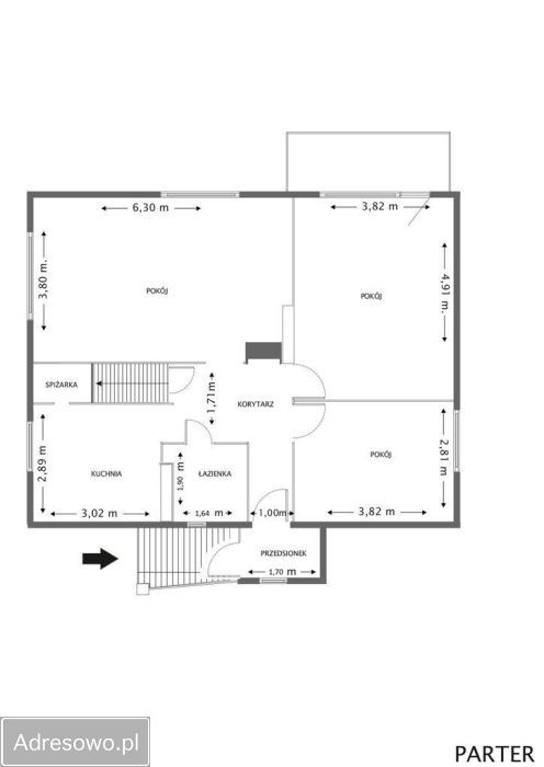
Mieszkanie 3-pokojowe Gdańsk Wrzeszcz, ul. Grzegorza z Sanoka. Zdjęcie 1

Mieszkanie na sprzedaż bez pośredników Gdańsk Wrzeszcz ul. Grzegorza z Sanoka · parter

1 340 000
8 826 zł/m²
151
3 pok.
Gdańsk Wrzeszcz, Grzegorza z Sanoka - lokalizacja przybliżona
Bezpośrednio od właściciela

Jeśli nie potrzebujesz pośrednika, zaoszczędzisz około 40 200 zł. Potrzebujesz wsparcia? Skorzystaj z pomocy agenta.

ATUTY
Trzypokojowe, przestronne mieszkanie, gotowe do zamieszkania.
Ekspozycja okien na cztery strony świata.
Oddzielna kuchnia z dużą spiżarnią.
Garaż w bryle budynku.
Spokojna okolica w sercu miasta.
Bliskość morza, najważniejszych punktów usługowych i uczelni.
MIESZKANIE (parter)

Mieszkanie przeszło generalny remont w 2025 roku z wykorzystaniem wysokiej jakości materiałów. Atutem są nowe drzwi wejściowe (Gerda) i trzyszybowe okna (dodatkowo plisy, rolety zaciemniające). Wymieniona została instalacja hydrauliczna oraz centralnego ogrzewania (kocioł kondensacyjny gazowy dwufunkcyjny Saunier Duval, grzejniki Diamond). Podczas remontu wykonane zostało przyłącze elektryczne oraz od nowa przygotowano instalację elektryczną wewnątrz mieszkania. Pod posadzką położono styropian, podłoga w pokojach i korytarzu wyłożona jest wysokiej jakości panelami podłogowymi (Berry Alloc). Zamontowano drewniane drzwi wewnętrzne (fornir dębowy). Kuchnia została wykonana na wymiar z drewnianym blatem i akrylowymi frontami, łazienkę urządzono funkcjonalnie i z gustem.

OGRÓD

Dom posadowiony jest na działce o powierzchni 543 m2. Teren zielony wyznaczony dla mieszkania wedle podziału użytkowego ma 224 m2. Na zewnątrz wyprowadzona została woda ogrodowa.

PIWNICA

Bardzo duża piwnica z bezpośrednim dostępem do garażu. Dobrze doświetlona. Jedno z pomieszczeń przeznaczo na pralnię. W przyszłości możliwa jest adaptacja piwnicy na dodatkową przestrzeń mieszkalną.

LOKALIZACJA

Cicha i spokojna okolica w sercu miasta. Lokalizacja we Wrzeszczu Dolnym zapewnia dostęp do licznych punktów handlowo-usługowych. W pobliżu znajdują się sklepy, biblioteka, poczta, dom kultury, przychodnia, kościół, szkoła, przedszkole, żłobek, a także uczelnie wyższe. W pieszej odległości usytuowany jest park Nad Strzyżą, park Millenium Gdańska, Polsat Plus Arena oraz plaża.
Komunikacja miejska w okolicy jest dobrze rozwinięta - w pobliżu znajdują się przystanki autobusowe, tramwajowe i stacja kolejowa.
Dom położony jest przy ślepej uliczce, co gwarantuje minimum ruchu samochodowego.

Zamieszkaj w spokojnej okolicy, blisko morza, jednocześnie mając dostęp do walorów miasta. Umów się na prezentację i poznaj tę nieruchomość!

  • Na sprzedaż dwupoziomowe mieszkanie 3-pokojowe o powierzchni 151,82 m² balkon, piwnica, garaż, ogródek, osobna kuchnia
  • Parter w 2-piętrowym domu wielorodzinnym bez windy, rok budowy 1960
  • Gdańsk, Wrzeszcz ul. Grzegorza z Sanoka
  • Mieszkanie w dobrym stanie okna plastikowe
  • Odrębna własność z księgą wieczystą  
  • Wyposażenie internet, klimatyzacja, kuchenka, piekarnik, zmywarka
  • Cena do negocjacji  
  • Oferta bezpośrednio od właściciela dodana wczoraj
Ta nieruchomość może być Twoja od.. sprawdź
268000 zł (20%) Okres spłaty: 30 lat

Podobne mieszkania na sprzedaż

10
Mieszkanie 7-pokojowe Gdańsk Wrzeszcz, ul. gen. Józefa Fiszera

1 100 000

111

7 pok.

Sprzedam mieszkanie mieszczące się na pierwszym piętrze w kamienicy przy ulicy Fiszera w centrum Gdańskiej dzielnicy Wrzeszcz. Ze względu na swoją lokalizację: 15 metrów od jednej z głównych bram na Politechnikę Gdańską, jest to idealna inwestycja pod wynajem. Aktualnie mieszkanie jest wynajmowane...

Zobacz ogłoszenie
20
Mieszkanie 4-pokojowe Gdańsk Siedlce, ul. Szara

1 290 000

106

4 pok.

OPIS NIERUCHOMOŚCI: Na sprzedaż ustawne mieszkanie 2-poziomowe zlokalizowane przy ul. Szarej 22 w Gdańsku. Mieszkanie w pełni wyposażone, do zamieszkania. Nieruchomość znajduje się w jednej z najbardziej pożądanych dzielnic - na Siedlcach. To idealny wybór dla osób ceniących spokój, a jednocześnie c...

Zobacz ogłoszenie
12
Mieszkanie 4-pokojowe Gdańsk Stare Miasto, ul. Mariana Seredyńskiego

1 399 000

104

4 pok.

SZUKASZ IDEALNEJ NA WYNAJEM INWESTYCJI POD NAJEM KRÓTKO BĄDŹ DŁUGO TERMINOWY? A MOŻE POTRZEBUJESZ DUŻEGO MIESZKANIA DLA SIEBIE I SWOJEJ RODZINY? ATUTY: - fantastyczna lokalizacja, nieopodal najbardziej znanych Gdańskich ulic Długiej i Mariackiej, - ładnie odnowiona kamienica, - mieszkanie po remonci...

Zobacz ogłoszenie
15
Mieszkanie 4-pokojowe Gdańsk Śródmieście, ul. Na Stoku

1 299 000

106

4 pok.

Nie jestem zainteresowany kontaktem z pośrednikami Unikatowe 4-pokojowe mieszkanie w  świetnej lokalizacji !   Szukasz przestronnego mieszkania w centrum Gdańska? Świetnie trafiłeś! Mam do zaoferowania wyjątkowe 4-pokojowe mieszkanie o łącznej powierzchni użytkowej 106 m² plus dodatkowo pomieszczen...

Zobacz ogłoszenie
18
Mieszkanie 4-pokojowe Gdańsk Morena, ul. Budapesztańska

1 335 000

94

4 pok.

Są mieszkania, które spełniają podstawowe potrzeby. I są takie, które tworzą prawdziwy dom dla rodziny. Ta nieruchomość należy zdecydowanie do tej drugiej kategorii. Na sprzedaż przestronne mieszkanie o powierzchni 94 m², położone w jednej z najbardziej cenionych dzielnic Gdańska - Morena (Piecki-M...

Zobacz ogłoszenie
19
Mieszkanie 4-pokojowe Gdańsk Orunia Górna, ul. Krzemowa

1 300 000

110

4 pok.

Mieszkanie, jak dom ! Dwupoziomowe mieszkanie znajduje się w 4 -rodzinnym domu z 1993 r. na świetnie skomunikowanym, zielonym osiedlu Orunia Górna. Lokal zajmuje I i II piętro. Na pierwszym poziomie : przedpokój z szafą Komandor, salon z kominkiem i wyjściem na piękny 20 m taras, dalej mamy sypialni...

Zobacz ogłoszenie