Mieszkanie na sprzedaż bez pośredników
Bielawy Bydgoszcz

NOWA OFERTA
Mieszkanie 4-pokojowe Bydgoszcz Bielawy. Zdjęcie 1

Mieszkanie na sprzedaż bez pośredników Bydgoszcz Bielawy brak adresu · 2 piętro

790 000
7 453 zł/m²
106
4 pok.
Bydgoszcz Bielawy - lokalizacja przybliżona
Bezpośrednio od właściciela

Jeśli nie potrzebujesz pośrednika, zaoszczędzisz około 23 700 zł. Potrzebujesz wsparcia? Skorzystaj z pomocy agenta.

Szukasz mieszkania, które daje przestrzeń domu jednorodzinnego, a jednocześnie oferuje wygodę miejskiej lokalizacji? To wyjątkowa propozycja na mapie Bydgoszczy - idealna dla dużej rodziny lub osób ceniących komfort i dodatkowe miejsce do przechowywania.

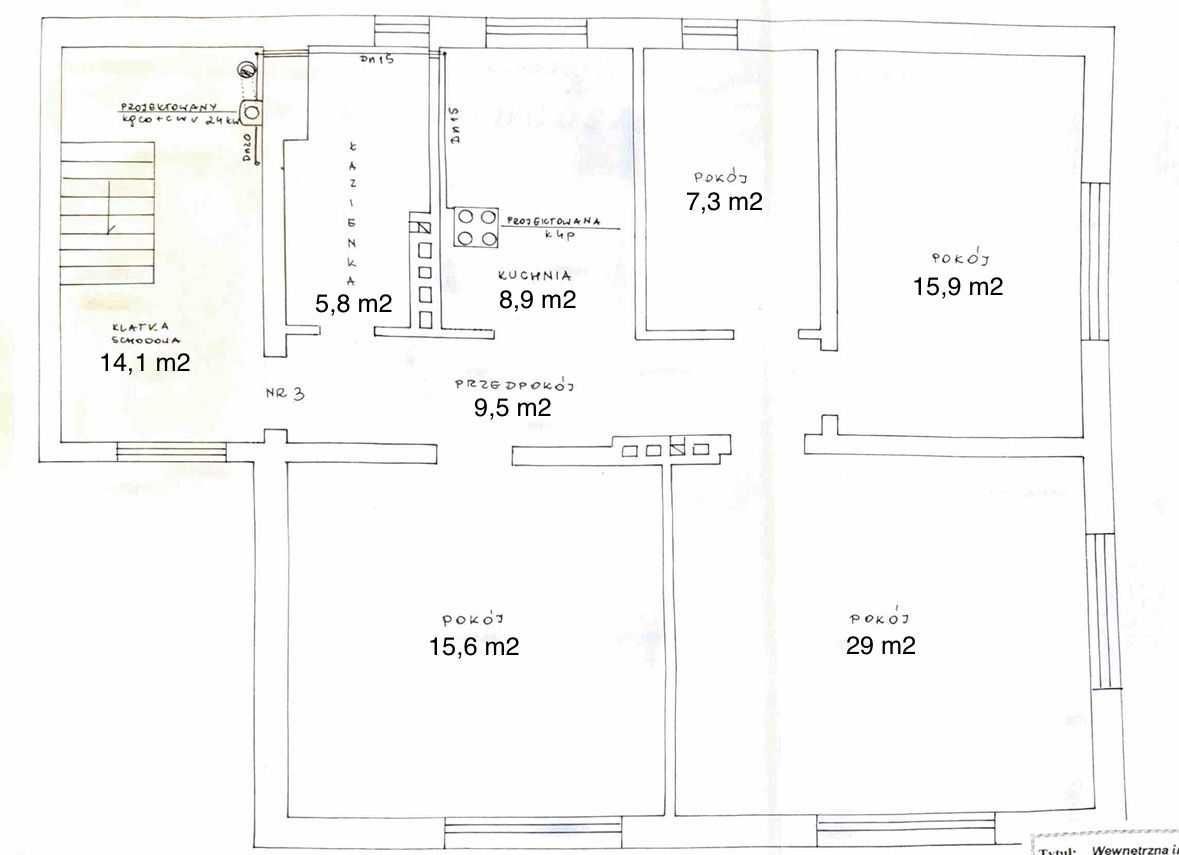
1. Układ Pomieszczeń:
Mieszkanie znajduje się na drugim piętrze (ostatnim) i składa się z czterech pokoi, kuchni, łazienki, przedsionku, klatki schodowej i spiżarni.

Część mieszkalna: 106,1 m²
Mieszkanie charakteryzuje się niezwykle funkcjonalnym rozkładem. Sercem lokalu jest ogromny salon, a dodatkowe pokoje dają pełną swobodę aranżacji (sypialnie, gabinet, pokoje dziecięce).
Salon/Pokój 1: 29 m²
Pokój 2: 15,9 m²
Pokój 3: 15,6 m²
Pokój 4: 7,3 m²
Kuchnia: 8,9 m²
Łazienka: 5,8 m²
Korytarz: 9,5 m²
Przedsionek i klatka schodowa: 12,9 m²
Spiżarnia: 1,2 m²

Dodatkowa Przestrzeń: 13,8 m²
To, co wyróżnia tę ofertę, to duża powierzchnia dodatkowa, której próżno szukać w nowoczesnym budownictwie:
Piwnica 1: 12,4 m²
Piwnica 2: 1,4 m²

Całkowita powierzchnia: 119,9 m2

2. Działka i parking:
Do mieszkania przynależy udział wynoszący 1/3 części działki (w tym miejsce parkingowe przy budynku).

3. Lokalizacja: Bielawy - tu wszędzie jest blisko
Komunikacja: świetne połączenie z centrum miasta (tramwaje i autobusy w bliskiej odległości od mieszkania).
Edukacja i Zdrowie: w bezpośrednim sąsiedztwie znajdują się renomowane szpitale (Szpital Uniwersytecki nr 1 im. Jurasza, Wojewódzki Szpital Dziecięcy im. J. Brudzińskiego w Bydgoszczy), uczelnie (UKW, Collegium Medicum) oraz szkoły i przedszkola.
Zakupy: bliskość CH Focus, sklepu Biedronka, sklepu Lidl oraz lokalnych ryneczków i sklepów osiedlowych.

4. Dlaczego warto?
Mieszkanie wyposażone jest w przyłącze światłowodowe - najszybszy internet dostępny na rynku, gotowy do natychmiastowej aktywacji u operatora. Jest to mieszkanie z ogromnym potencjałem adaptacyjnym. Duże metraże poszczególnych pokoi, unikalne zaplecze gospodarcze (spiżarnia, przedsionek) oraz dostęp do ogrodu i parkingu sprawiają, że to oferta jedyna w swoim rodzaju na rynku wtórnym.

  • Na sprzedaż mieszkanie 4-pokojowe o powierzchni 106 m² piwnica, zewnętrzne miejsce parkingowe
  • 2 piętro w 2-piętrowym budynku  
  • Bydgoszcz, Bielawy  
  • Oferta bezpośrednio od właściciela dodana wczoraj
Ta nieruchomość może być Twoja od.. sprawdź
158000 zł (20%) Okres spłaty: 30 lat

Podobne mieszkania na sprzedaż

20
Mieszkanie 5-pokojowe Bydgoszcz Śródmieście, ul. Ignacego Paderewskiego

799 000

113

5 pok.

MIESZKANIE 113,77m2 - DZIELNICA MUZYCZNA, PADEREWSKIEGO 13 SPRZEDAJĘ BEZPOŚREDNIO - OBNIŻKA CENY - POLECAM. PEŁNA WŁASNOŚĆ - CZYSTA KSIĘGA WIECZYSTA. PRESTIŻOWA I NIEZWYKLE WYGODNA LOKALIZACJA. KAMIENICA BEZ NADZORU KONSERWATORSKIEGO. KAMIENICA PO WYMIANIE DACHU + NOWA ELEWACJA I REMONT KLATEK SCHO...

Zobacz ogłoszenie
21
Mieszkanie 3-pokojowe Bydgoszcz Fordon, ul. Sybiraków

780 000

68

3 pok.

Przedmiotem ogłoszenia jest przestronne mieszkanie M4 o powierzchni 68,5 m², usytuowane na parterze nowoczesnego bloku z windą, halą garażową oraz rowerownią/wózkownią. Nieruchomość znajduje się w kompleksie Nordic Residence (kompleks E) na spokojnym osiedlu Eskulapa, przy ul. Sybiraków w dzielnicy ...

Zobacz ogłoszenie
13
Mieszkanie 3-pokojowe Bydgoszcz Górzyskowo, ul. Gołębia

799 900

80

3 pok.

Sprzedam mieszkanie 3-pokojowe na bydgoskim osiedlu Górzyskowo. Przestronne i jasne mieszkanie, o ciekawym rozwiązaniu architektonicznym (różnica poziomu między mniejszą sypialnią i toaletą a pozostałymi pomieszczeniami), idealne dla rodziny lub osób szukających komfortu w pobliżu centrum miasta. ...

Zobacz ogłoszenie
8
Mieszkanie 5-pokojowe Bydgoszcz, ul. Jagiellońska

820 000

115

5 pok.

Ogłoszenie: Mieszkanie na sprzedaż | Bydgoszcz, ul. Jagiellońska 66 Sprzedaż bez pośredników - bezpośrednio od właściciela. --- Na sprzedaż przestronne, funkcjonalne mieszkanie o powierzchni 115 m², położone w kamienicy przy ul. Jagiellońskiej 66, zaledwie kilka minut spacerem od centrum handlowe...

Zobacz ogłoszenie
20
Mieszkanie 4-pokojowe Bydgoszcz Osowa Góra

775 000

91

4 pok.

Dwupoziomowe mieszkanie 91/120 m² - Osowa Góra, Bydgoszcz LOKALIZACJA Na sprzedaż atrakcyjne mieszkanie dwupoziomowe M-5 o powierzchni użytkowej 91 m² (powierzchnia całkowita ok. 120 m²), położone na Osowej Górze w Bydgoszczy. Nieruchomość znajduje się w kameralnym, jednoklatkowym bloku z cegły na...

Zobacz ogłoszenie
7
Mieszkanie 3-pokojowe Bydgoszcz Górzyskowo, ul. Juliusza Kossaka

780 000

67

3 pok.

Przepiękne mieszkanie na bydgoskim os. Górzyskowo ul Kossaka 60 na 2 piętrze bloku. Mieszkanie w stanie idealnym. Wszystkie zabudowy ,drzwi,wykonane z materiałów najwyższej jakości. Mieszkanie 67 m salon z aneksem kuchennym,2 sypialnie,łazienka , pomieszczenie organizacyjne na pralkę,i inne sprzęty ...

Zobacz ogłoszenie