Dom na sprzedaż bez pośredników
ul. Bajeczna Warszawa Zacisze

bliźniak, 5 pokoi Warszawa Zacisze, ul. Bajeczna. Zdjęcie 1

Dom na sprzedaż bez pośredników Warszawa Zacisze ul. Bajeczna

1 100 000
9 167 zł/m²
120
5 pok.
Warszawa Zacisze, Bajeczna - lokalizacja przybliżona
Bezpośrednio od właściciela

Jeśli nie potrzebujesz pośrednika, zaoszczędzisz około 33 000 zł. Potrzebujesz wsparcia? Skorzystaj z pomocy agenta.

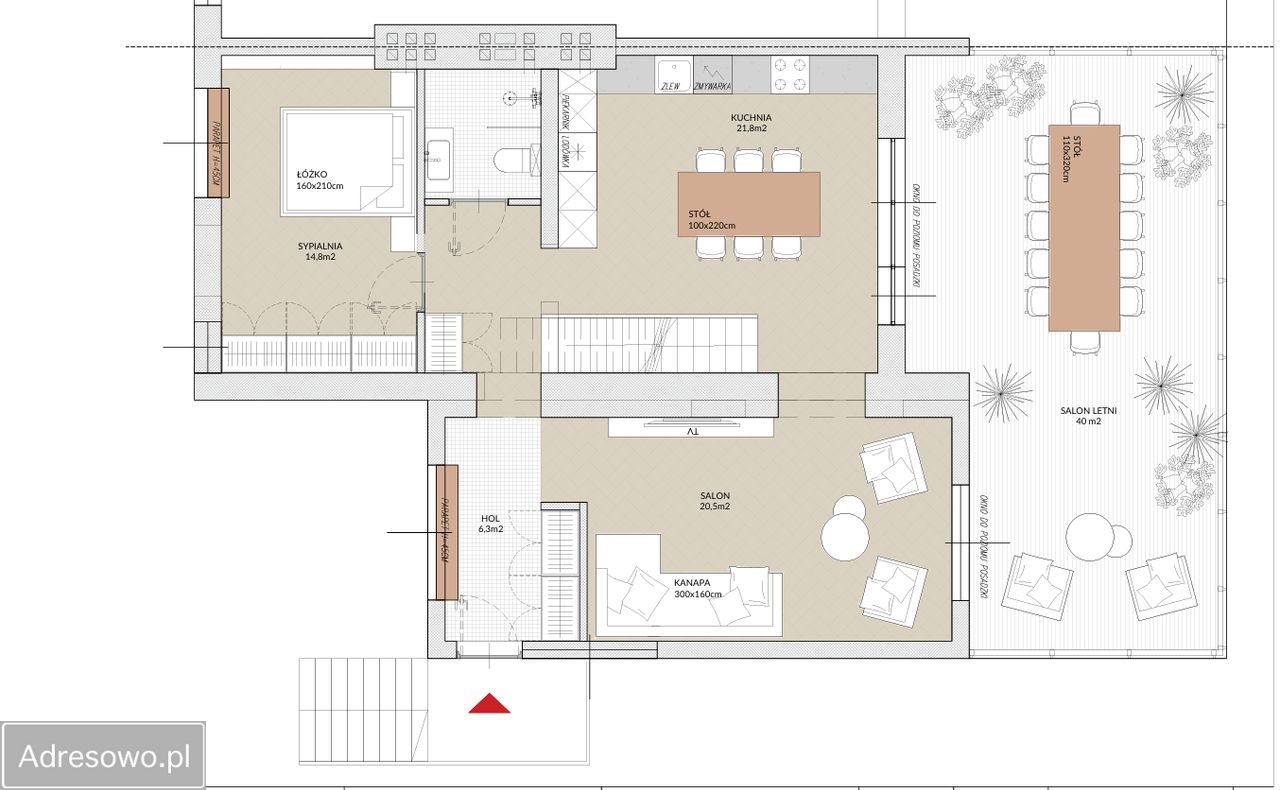
Na sprzedaż nieruchomość z ogromnym potencjałem inwestycyjnym w Warszawie (ul. Bajeczna).
Obecnie ok. 120 m² + piwnica.
Po rewitalizacji nawet ok. 200 m² powierzchni użytkowej + taras letni 40 m², + taras na piętrze 26 m².
Działka 300 m².
To idealna propozycja dla inwestora lub osoby, która chce stworzyć nowoczesny dom w świetnej lokalizacji - bez przepłacania za gotowy standard.
Można również stworzyć 3 niezależne mieszkania.

Koncepcja przebudowy:
Dla nieruchomości opracowano wstępny projekt funkcjonalny obejmujący:

Parter:
- przestronny salon z kuchnią, jadalnią i sypialnią
- wyjście na duży taras / salon letni ok. 40 m²

Piętro:
- 2 pokoje
- łazienka
- ogromny taras 26 m²

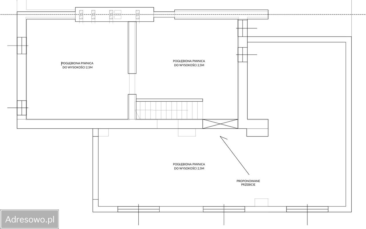
Piwnica:
- możliwość adaptacji na przestrzeń użytkową po pogłębieniu do 2,5 metra (sprawdzone z konstruktorem) (biuro, pokoje, strefa rekreacyjna)

Stan techniczny:
- budynek do remontu / modernizacji
- uporządkowany i przygotowany pod prace
- konstrukcja prosta i funkcjonalna - idealna do przebudowy

  • ul. Bajeczna, Warszawa Zacisze  
  • Na sprzedaż bliźniak o powierzchni 120 m², 5 pokoi wybudowany w 1970 roku
  • Sizing Streamline Icon: https://streamlinehq.com
    Działka 300 m²  
  • Budynek w stanie do remontu, z aneksem kuchennym  
  • Taras, piwnica, garaż  
  • Ogrzewanie gazowe
  • Materiał budowy cegła
  • Dach papa
  • Okna plastikowe
  • Dojazd asfalt
  • Ogrodzenie metalowe
  • Media woda, kanalizacja, prąd, gaz
  • Oferta bezpośrednio od właściciela dodana ponad miesiąc temu i zaktualizowana ponad tydzień temu
Ta nieruchomość może być Twoja od.. sprawdź
220000 zł (20%) Okres spłaty: 30 lat

Podobne domy na sprzedaż

8
dom wolnostojący, 4 pokoje Warszawa Rembertów

1 145 980

104

4 pok.

Kupujący nie płaci prowizji oraz 2% podatku PCC! B2 -104 m2 - Mam przyjemność zaprezentować nowoczesny dom w zabudowie szeregowej, zlokalizowane w spokojnej, zielonej części Warszawy - Rembertowie. To idealna okazja dla osób ceniących ciszę, bliskość natury oraz szybki dojazd do centrum miasta. Dlac...

Zobacz ogłoszenie
20
dom wolnostojący, 3 pokoje Warszawa Ursus, ul. Władysława Bieńczaka

1 149 000

106

3 pok.

Mam przyjemność zaprezentować Państwu dom wolnostojący o powierzchni całkowitej 106 m2 z możliwością rozbudowy zlokalizowany na działce o powierzchni 691 m2. Budynek i działka: - Budynek z 1964 roku o konstrukcji murowanej, - Dodatkowo na działce znajduje się budynek gospodarczy z garażem o powierzc...

Zobacz ogłoszenie
14
bliźniak, 4 pokoje Warszawa Białołęka, ul. Dębowa

1 050 000

125

4 pok.

KUPUJĄCY NIE PŁACI PROWIZJI! Na sprzedaż nowoczesny bliźniak o powierzchni 125 m², położony w spokojnej, zielonej części Białołęki - na osiedlu Choszczówka. Do centrum Warszawy 30 min autem, 5 min spacerem do przystanku autobusowego. Nieruchomość znajduje się w stanie deweloperskim bezpośrednio od ...

Zobacz ogłoszenie
6
dom szeregowy, 4 pokoje Warszawa Wawer

1 089 000

92

4 pok.

Segment o powierzchni 91,78m2 z poddaszem nieużytkowym o powierzchni ok 50m2 i wysokość od 1,9-2,7m na osiedlu Wawer-LAS Lokal znajduje się na dwóch kondygnacjach + poddasze nieużytkowe ok 50m2 o wysokości od 1,9-2,7m w stanie deweloperskim i ogrókiem od 31m2 Do lokalu przynależą 2 miejsca postojo...

Zobacz ogłoszenie
18
bliźniak, 4 pokoje Warszawa Wawer, ul. Lucerny

1 100 000

94

4 pok.

Zapraszamy do kupna nieruchomości, na którą składa się pół bliźniaka o powierzchni użytkowej 94 m2, powierzchni zabudowy 54 m2 i powierzchni zabudowy garażu 15 m2, posadowione na 600 metrowej działce, z której ok. 400 m2 stanowi położony od południa ogród. Dom zlokalizowany jest w znakomicie skomuni...

Zobacz ogłoszenie
8
dom szeregowy, 4 pokoje Warszawa Wawer, ul. Ogórkowa

1 090 000

109

4 pok.

Elegancja, Cisza i Komfort: Twój Nowy Dom w Sercu Zielonego Wawra Szukasz balansu między dynamiką Warszawy a spokojem natury? Prezentujemy unikalną ofertę sprzedaży nowoczesnego segmentu o powierzchni 109 m², położonego na kameralnym, zamkniętym osiedlu zaledwie 7 domów w warszawskim Wawrze. To pro...

Zobacz ogłoszenie