Mieszkanie na sprzedaż bez pośredników
ul. Konstantego Ildefonsa Gałczyńskiego Zgierz

Mieszkanie 2-pokojowe Zgierz, ul. Konstantego Ildefonsa Gałczyńskiego. Zdjęcie 1

Mieszkanie na sprzedaż bez pośredników Zgierz ul. Konstantego Ildefonsa Gałczyńskiego · 4 piętro

249 000
6 225 zł/m²
40
2 pok.
Zgierz, Konstantego Ildefonsa Gałczyńskiego - lokalizacja przybliżona
Bezpośrednio od właściciela

Jeśli nie potrzebujesz pośrednika, zaoszczędzisz około 7 500 zł. Potrzebujesz wsparcia? Skorzystaj z pomocy agenta.

Na sprzedaż oferujemy mieszkanie w Zgierzu, przy ulicy Gałczyńskiego.

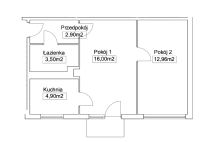
Lokal o powierzchni 40,2 m2 składający się z dwóch pokoi, łazienki z WC, kuchni oraz przedpokoju. Z pokoju dziennego wyjście na balkon. Do mieszkania przynależy komórka lokatorska.

Ogrzewanie miejskie.
W bloku instalacja Orange i telewizja kablowa osiedlowa.
Budynek ocieplony.
Balkon.
Okna plastikowe.
Czynsz ok. 600 zł.

W bardzo bliskiej odległości przedszkola, szkoły, apteki, przychodnia, sklepy oraz punkty usługowe. Wzdłuż ulicy parking, pod drugiej stronie budynku tereny rekreacyjne, boisko, zieleń.

  • Na sprzedaż mieszkanie 2-pokojowe o powierzchni 40 m² balkon, piwnica
  • 4 piętro w 4-piętrowym bloku rok budowy 1973
  • Zgierz ul. Konstantego Ildefonsa Gałczyńskiego
  • Oferta bezpośrednio od właściciela dodana ponad miesiąc temu i zaktualizowana 4 dni temu
Ta nieruchomość może być Twoja od.. sprawdź
50000 zł (20%) Okres spłaty: 30 lat

Podobne mieszkania na sprzedaż

8
Mieszkanie 2-pokojowe Zgierz, ul. Bolesława Leśmiana

220 000

32

2 pok.

✨ Dwupokojowe mieszkanie z potencjałem – idealne pod inwestycję lub dla siebie! Zgierz, osiedle 650 lecia, ul. Leśmiana Na sprzedaż jasne i ciepłe mieszkanie o powierzchni 32,30 m², położone na spokojnym, zielonym osiedlu. Lokal znajduje się na ostatnim piętrze ocieplonego bloku, co gwarantuje ciszę...

Zobacz ogłoszenie
12
Mieszkanie 2-pokojowe Zgierz, ul. Parzęczewska

230 000

44

2 pok.

Do sprzedania zadbane i niedawno wyremontowane mieszkanie w TBS czeka na nowego właściciela. Położone w doskonałej lokalizacji, niedaleko lasu, kolei ŁKA , komunikacji miejskiej oraz przedszkoli, szkół, szpitala, sklepów. Opłata na rzecz TBS 28 500 zł. Mieszkanie o powierzchni 44 m kw. na trzecim...

Zobacz ogłoszenie
19
Mieszkanie 2-pokojowe Zgierz, ul. Łódzka

210 000

28

2 pok.

Zapraszam na prezentację lokali w Zgierzu- bardzo blisko Łodzi. Są to mieszkania bezczynszowe, wyodrębnione z dużego obiektu użytkowego.  Obecnie znajduje się tam 6 mieszkań od 28 do 38 m/kw. Są to lokale gotowe do zamieszkania, częściowo umeblowane. We wszystkich zrobiona jest łazienka i kuchnia w ...

Zobacz ogłoszenie
8
Mieszkanie 2-pokojowe Zgierz, ul. Parzęczewska

289 000

43

2 pok.

Atrakcyjne, ciepłe i przytulne mieszkanie o powierzchni 43,5 m², znajdujące się na II piętrze w bloku przy ul. Parzęczewskiej w Zgierzu: 2 duże pokoje w amfiladzie (w tym jeden z balkonem typu francuskiego), widna kuchnia, do której wchodzi się z pokoju, dość duża łazienka z WC, jasny przedpokój ora...

Zobacz ogłoszenie
8
Mieszkanie 2-pokojowe Zgierz, ul. 3 Maja

279 000

31

2 pok.

Sprzedaż bezpośrednia. Bardzo proszę o niekontaktowanie się biur nieruchomości. Na sprzedaż funkcjonalne i przytulne mieszkanie 2-pokojowe o powierzchni 31,05 m², położone na 3. piętrze w 4-piętrowym budynku, który przeszedł adaptację z budynku hotelowego na mieszkalny w roku 1998. Mieszkanie jest...

Zobacz ogłoszenie
7
Mieszkanie 2-pokojowe Zgierz, ul. Bolesława Leśmiana

237 900

39

2 pok.

Posiadam na sprzedaz przytulne i sloneczne mieszkanie ; 2 pokoje z kuchnia, balkon ,lazienka ,oddzielne wc. Mieszkanie polozone na 1 pietrze w czteropietrowym bloku na osiedlu 650-lecia w Zgierzu ul .lesmiana o powierzchni 39 m2 posiada komorke lokatorska . Mieszkanie wlasnosciowe z ksiega wieczysta...

Zobacz ogłoszenie