Mieszkanie na sprzedaż bez pośredników
ul. Leszczynowa Zabrze Zaborze

Mieszkanie 3-pokojowe Zabrze Zaborze, ul. Leszczynowa. Zdjęcie 1

Mieszkanie na sprzedaż bez pośredników Zabrze Zaborze ul. Leszczynowa · 3 piętro

250 000
5 501 zł/m²
45
3 pok.
Zabrze Zaborze, Leszczynowa - lokalizacja przybliżona
Bezpośrednio od właściciela

Jeśli nie potrzebujesz pośrednika, zaoszczędzisz około 7 500 zł. Potrzebujesz wsparcia? Skorzystaj z pomocy agenta.

OGŁOSZENIE BEZPOŚREDNIE OD WŁAŚCICIELA – bez pośredników, proszę o nieodpisywanie agencji nieruchomości.

Oferuję na sprzedaż 3-pokojowe mieszkanie o powierzchni 45,45 m² w Zabrzu. W skład lokalu wchodzi osobna kuchnia, łazienka, 3 pokoje (jeden z balkonem typu loggia) oraz piwnica. Ogrzewanie miejskie zapewnia komfort w zimowe dni, a okna skierowane na zachód -gwarantują dobre nasłonecznienie mieszkania.

Mieszkanie znajduje się na trzecim piętrze bloku z lat 70-tych, klatka schodowa ze świetlikiem, zamykana domofonem. Spokojne sąsiedztwo.

Stan techniczny:

• Remont przeprowadzony 8 lat temu – nowa instalacja elektryczna, podwieszane sufity.
• Mieszkanie wymaga odświeżenia, umeblowania i ewentualnego dostosowania do własnych potrzeb.
• Lokal wysprzątany i gotowy do przekazania (piwnica w trakcie porządkowania)

Lokalizacja w Zaborzu Północ to idealne miejsce dla rodzin. W okolicy znajdziesz:

• DTŚ (zjazd w obu kierunkach) – ok. 5 min jazdy, nieodczuwalny hałas
• Autostrada A4 i A1 – dostępne z DTŚ
• Szkoła podstawowa – 175 m
• Przedszkole – 400 m
• żabka – 100 m
• Apteka, piekarnia, gastronomia – 250 m
• Stokrotka – 300 m
• Lidl, Aldi, Carrefour, Lewiatan – do 1 km
• Castorama – 8 km (ok. 11 min jazdy)
• przystanek komunikacji miejskiej - 100 m

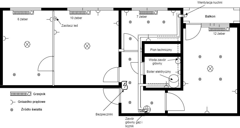
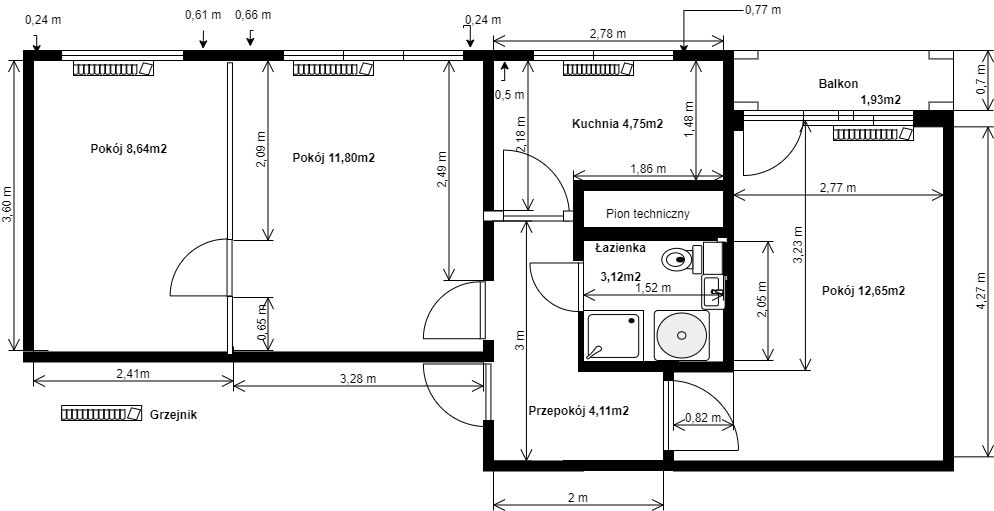
Zależy mi na kontakcie z osobami zdecydowanymi na zakup w przewidywalnym terminie, szanuję Twój czas i swój. Dodaję rzuty mieszkania z przybliżonymi wymiarami oraz schemat instalacji (gaz, woda, punkty świetlne i gniazdka). Pomiary wykonane dalmierzem laserowym, a rozmieszczenie instalacji określone orientacyjnie jako pomoc przy planowaniu, nie jako dokumentacja techniczna.

  • Na sprzedaż mieszkanie 3-pokojowe o powierzchni 45,45 m² balkon, piwnica, osobna kuchnia
  • 3 piętro w 4-piętrowym bloku z płyty bez windy, rok budowy 1976
  • Zabrze, Zaborze ul. Leszczynowa
  • Mieszkanie w stanie do odświeżenia okna plastikowe
  • Spółdzielcze własnościowe z księgą wieczystą  
  • Oferta bezpośrednio od właściciela dodana ponad miesiąc temu i zaktualizowana ponad tydzień temu
Ta nieruchomość może być Twoja od.. sprawdź
50000 zł (20%) Okres spłaty: 30 lat

Podobne mieszkania na sprzedaż

2
Mieszkanie 2-pokojowe Zabrze Helenka, ul. Witkacego

269 000

44

2 pok.

Na sprzedaż mieszkanie własnościowe położone w Zabrzu - Helenka. Budynek po termomodernizacji (fasada i fundamenty) w 2022 roku, klatka schodowa po remoncie. Mieszkanie 2 pokojowe + osobna garderoba. Powierzchnia mieszkalna: 44,45 m2. 1. piętro w jednopiętrowym bloku, 6 mieszkań w klatce. Do mies...

Zobacz ogłoszenie
14
Mieszkanie 2-pokojowe Zabrze Zaborze, ul. Wolności

335 000

50

2 pok.

Na sprzedaż jasne mieszkanie 2-pokojowe z balkonem rynek wtórny Na sprzedaż funkcjonalne i przytulne mieszkanie o bardzo dobrym rozkładzie, usytuowane na 3. piętrze w zadbanym budynku. Lokal wyróżnia się dużą ilością naturalnego światła, co sprawia, że wnętrze jest jasne i komfortowe przez cały dzi...

Zobacz ogłoszenie
8
Mieszkanie 3-pokojowe Zabrze, ul. Wolności

249 500

44

3 pok.

Na sprzedaż 3-pokojowe mieszkanie w Zabrzu, zlokalizowane przy ul. Wolności, na 1 piętrze kamienicy z zabezpieczonym wejściem. Nieruchomość idealna zarówno do zamieszkania, jak i pod inwestycję. Powierzchnia mieszkania: 44 m² Garaż pod oknem - w cenie mieszkania piwnica Układ mieszkania: - salon z...

Zobacz ogłoszenie
8
Mieszkanie 3-pokojowe Zabrze Mikulczyce, ul. Ludwika Solskiego

249 000

43

3 pok.

Sprzedam mieszkanie o powierzchni 43 m2 + piwnica 5.6 m2, znajdujące się w Zabrzu Mikulczycach przy ul. Ludwika Solskiego. Mieszkanie składa się z dużego salonu z kuchnią, 2 pokoi i łazienki. Budynek jest w spokojnej okolicy. Okna wychodzą na park z placem zabaw. W pobliżu są sklepy, szkoła, przedsz...

Zobacz ogłoszenie
8
Mieszkanie 2-pokojowe Zabrze, ul. Cieszyńska

250 000

44

2 pok.

Na sprzedaż: mieszkanie M3 w Zabrzu o powierzchni 44,24 m², położone na 1 piętrze zadbanego, 3-piętrowego bloku. Mieszkanie jest raczej w stanie do remontu — idealne do własnej aranżacji, jak i pod inwestycję. Układ lokalu jest funkcjonalny i zapewnia wygodę na co dzień. Naprzeciwko znajduje się pr...

Zobacz ogłoszenie
11
Mieszkanie 3-pokojowe Zabrze Centrum, ul. ks. Konstantego Damrota

265 000

46

3 pok.

Na sprzedaż przytulne i funkcjonalne mieszkanie o powierzchni 46 m², zlokalizowane w sercu Zabrza - w pobliżu Stadionu Górnika przy ul. Konstantego Damrota. Nieruchomość znajduje się na 2. piętrze 3-piętrowego budynku. Składa się z 3 pokoi, kuchni, łazienki razem z WC i wanną, oraz ustawnego przedp...

Zobacz ogłoszenie