Warszawa Żoliborz
ul. Potocka
1-pokojowe mieszkanie na sprzedaż Bez pośrednika

Mieszkanie 1-pokojowe Warszawa Żoliborz, ul. Potocka
Cena
610 000
Powierzchnia
32,30 m²
Cena za m²
18 885
Piętro
parter
Rok budowy
1966
Warszawa Żoliborz · 610 000 zł

Ogłoszenie właściciela - bez pośredników

Mieszkanie 1-pokojowe Warszawa Żoliborz, ul. Potocka. Zdjęcie 1
Mieszkanie 1-pokojowe Warszawa Żoliborz, ul. Potocka. Zdjęcie 1

Bez pośrednika. Oszczędzasz 18 300 zł na prowizji pośrednika!

Dzień dobry,

Sprzedam bezpośrednio mieszkanie na Starym Żoliborzu.

Lokalizacja: ul. Potocka (okolice Parku Lelewela)
Poziom: wysoki parter
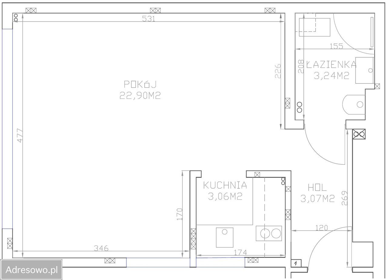
Powierzchnia całkowita: 32,30m2, w tym:
- Korytarz: 3,07 m2
- Łazienka: 3,24 m2
- Salon: 22,90 m2
- Kuchnia: 3,06m2

Mieszkanie jest po generalnym remoncie (zakończonym w listopadzie 2025r.), który obejmował:
- Przeniesienie pionów wodociągowych i kanalizacyjnych w nowe, praktycznie miejsca,
- Całą nową elektrykę wraz z nową skrzynką bezpieczników,
- Gładzie na wszystkich ścianach wraz z malowaniem farbami ceramicznymi,
- Nową podłogę (płytki) w przedpokoju, łazience i kuchni,
- Całkowicie nową łazienkę z odpływem liniowym, WC podtynkowym i pralką,
- Całkowicie nową kuchnię - szafki, blaty, sprzęty AGD (lodówka, płyta grzewcza, zmywarka), hydraulika, elektryka,
- Nowe drzwi wejściowe,
- Nowe drzwi wewnętrzne,
- Cyklinowanie dębowej podłogi (jest piękna).

Mieszkanie na dzień dzisiejszy jest w stanie "wejdź i mieszkaj" - czeka jedynie na umeblowanie wg. własnego gustu.

Do mieszkania przynależy piwnica.

Okolica budynku ogrodzona i bezpieczna, na terenie której znajdują się m.in. dwie wiaty rowerowe.

W zeszłym roku w budynku zmodernizowano węzeł cieplny. Aktualnie trwają procedury do realizacji remontu klatek schodowych i elewacji (budynek znajduje się na terenie weryfikowanym przez konserwatora zabytków).

Aktualny czynsz mieszkania to ok. 440zł.

Mieszkanie stanowi pełną własność o w pełni uregulowanej sytuacji.

Oprócz stanu samego mieszkania, na szczególną uwagę zasługuje lokalizacja nieruchomości: najładniejsza część Żoliborza - Stary Żoliborz z willową zabudową po drugiej stronie ulicy, parki, kameralne uliczki oraz dwie stacje metra w zasięgu 5-minutowego spaceru (Marymont oraz Pl. Wilsona). Takich lokalizacji nie trzeba reklamować :)

Zainteresowanych zapraszam do kontaktu, z chęcią udostępnię mieszkanie do obejrzenia.

Sprzedaję wyłącznie bezpośrednio.

Pozdrawiam,
Filip

  • Na sprzedaż mieszkanie 1-pokojowe o powierzchni 32,30 m²
  • parter w 10-piętrowym bloku z 1966 roku
  • Warszawa, Żoliborz, ul. Potocka
  • Piwnica, osobna kuchnia
  • Mieszkanie do zamieszkania
  • Odrębna własność z księgą wieczystą
  • Wyposażenie: pralka, lodówka, zmywarka
  • Oferta dodana bezpośrednio przez właściciela ponad miesiąc temu i zaktualizowana ponad tydzień temu
Wróć
Największa baza ogłoszeń bez pośredników
Zarejestruj się, aby przejść dalej
lub

Kontynuując akceptujesz
Regulamin i Politykę prywatności

Masz już konto na adresowo.pl?
Zaloguj się

Mamy dla Ciebie kredyt hipoteczny z niską ratą! Chcesz poznać szczegóły?

Kontakt z VeloBank:
- ofertę, wniosek i decyzję o przyznaniu kredytu w procesie online,
- wsparcie eksperta hipotecznego na każdym kroku,
- kredyt do 90% wartości nieruchomości.





Wyrażam zgodę na przetwarzanie moich danych osobowych zawartych w formularzu na stronie adresowo.pl przez VeloBank S.A. z siedzibą w Warszawie przy Rondo Ignacego Daszyńskiego 2C (Bank), a tym samym na ich przetwarzanie, w tym profilowanie, przez Bank w celu marketingu produktów i usług Banku za pośrednictwem rozmowy telefonicznej i sms. Zgoda może być w każdej chwili wycofana. Cofnięcie zgody nie ma wpływu na zgodność z prawem przetwarzania danych przed jej wycofaniem.