Mieszkanie na sprzedaż bez pośredników
ul. Okopowa Warszawa Wola

Mieszkanie 2-pokojowe Warszawa Wola, ul. Okopowa. Zdjęcie 1

Mieszkanie na sprzedaż bez pośredników Warszawa Wola ul. Okopowa · 2 piętro

820 000
17 826 zł/m²
46
2 pok.
Warszawa Wola, Okopowa - lokalizacja przybliżona
Bezpośrednio od właściciela

Jeśli nie potrzebujesz pośrednika, zaoszczędzisz około 24 600 zł. Potrzebujesz wsparcia? Skorzystaj z pomocy agenta.


Na sprzedaż 2-pokojowe mieszkanie o powierzchni 46,45 m², położone przy ul. Okopowej 16 w Warszawie, w dzielnicy Wola - Nowolipki.
Fajna i prężna Wspólnota.
Bezpieczeństwo
Lokal mieszkalny znajduje się na 2. piętrze w budynku z dwiema windami i monitoringiem, do mieszkania prowadzi prywatny, zamykany na klucz korytarz, w prywatnym korytarzu znajduje się łącznie 6 mieszkań. Cisi i sympatyczni sąsiedzi.
Dostępność
Brak barier architektonicznych! Można jeździć wózkiem bez problemów.
Lokalizacja
Świetnie skomunikowana część Woli - ok. 2,5 km pieszo od Pałacu Kultury i Nauki. W bezpośrednim sąsiedztwie pełna infrastruktura miejska: komunikacja (tramwaje, blisko metro Daszyńskiego), sklepy, usługi, szkoły, przedszkola, żłobki, tereny zielone.
Parking
Możliwość parkowania w strefie płatnego parkowania lub na parkingu strzeżonym Gryf (24/7).
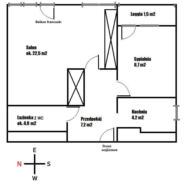
Układ i powierzchnia
Mieszkanie jest funkcjonalne i ustawne:
• pokój dzienny - ok. 23 m²,
• sypialnia - ok. 8 m²,
• kuchnia widna z oknem - ok. 4,2 m²,
• łazienka z WC - ok. 4m²,
• przedpokój - ok. 7,2 m²,
• loggia zamykana oknami przesuwnymi - ok. 1,5m² - pomieści dwa duże rowery lub np. wózek dziecięcy typu gondola,
• balkon francuski z dużego pokoju,
• piwnica - ok. 1,5m x 1,5m.
Układ widoczny na rzucie.
Media
W mieszkaniu jest ogrzewanie miejskie, gaz, prąd, możliwość założenia telefonu stacjonarnego i podłączenia Internetu przez światłowód. Gaz dostarcza PGNIG, prąd EON.
Czynsz
Przy 1 osobie czynsz miesięczny do wspólnoty (wraz z zaliczkami na wodę i ścieki i śmieciami) wynosi ok. 700 zł.
Standard
Mieszkanie w bardzo dobrym stanie, zadbane w pełni umeblowane i wyposażone.
Wyposażenie obejmuje m.in.: rozkładaną kanapę z pojemnikiem na pościel, 2-osobowe łóżko 140 cm x 200 cm, szafy IKEA PAX i IKEA Billy, szafki w przedpokoju, stolik do kawy i pod RTV, stół IKEA z 4 krzesłami, lodówkę Liebherr, pralkę Beko, zmywarkę Bosch, kuchenkę mikrofalową Daewoo, kuchenkę gazową, meble kuchenne.
Możliwość podłączenia Internetu, np. UPC (doprowadzony światłowód do bloku).
Nie ma konieczności remontu, można zamieszkać bez remontu.
Informacje dodatkowe
• forma własności: pełna własność, lokal stanowiący odrębną nieruchomość, w KW brak ujawnionej piwnicy (ona jest przydzielana przez Wspólnotę do korzystania)
• mieszkanie ma założoną KW
• nieobciążona, czysta hipoteka
• świadectwo energetyczne w przygotowaniu
• w mieszkaniu po zakupie mogą pozostać meble i sprzęty AGD
• nie współpracuję z biurami nieruchomości
UWAGA:
1) obecnie mieszkanie jest wynajmowane, najem okazjonalny obowiązuje do dnia 31 lipca 2026 roku z opcją przedłużenia na kolejny rok
2) mieszkanie możliwe do oglądania tylko po uprzednim umówieniu w weekend w oznaczonych godzinach, ze względu na wynajem każdorazowo musimy umówić oglądanie z najemcami
3) proszę o kontakt wyłącznie przez sms lub telefoniczny w godzinach 18:00-20:00

  • Na sprzedaż mieszkanie 2-pokojowe o powierzchni 46 m² piwnica
  • 2 piętro w 11-piętrowym bloku z windą, rok budowy 1968
  • Warszawa, Wola ul. Okopowa
  • Odrębna własność z księgą wieczystą  
  • Wyposażenie pralka, lodówka, kuchenka, zmywarka, mikrofalówka
  • Oferta bezpośrednio od właściciela dodana ponad tydzień temu
Ta nieruchomość może być Twoja od.. sprawdź
164000 zł (20%) Okres spłaty: 30 lat

Podobne mieszkania na sprzedaż

5
Mieszkanie 3-pokojowe Warszawa Wola

820 000

50

3 pok.

Mieszkanie 50m2 na Woli, przy stacji metra Księcia Janusza. Rynek wtórny, bez księgi wieczystej. 3 słoneczne pokoje, duży pokój z balkonem, oddzielnie WC i łazienka, widna kuchnia, piwnica. Parking ogólnie dostępny, poza strefą płatnego parkowania. W okolicy: 200 m stacja metra, 500 m centrum han...

Zobacz ogłoszenie
10
Mieszkanie 3-pokojowe Warszawa Wola, ul. Jana Olbrachta

819 000

50

3 pok.

Na sprzedaż mieszkanie o powierzchni 50,5 m², po generalnym remoncie zakończonym we wrześniu 2024 r. (bardzo dobra jakość materiałów, nowe AGD). Mieszkanie rozkładowe, ciche, bardzo wygodne i funkcjonalne. Szczegóły mieszkania: - Układ: 3 pokoje (salon z aneksem kuchennym + 2 sypialnie) - Możliwość...

Zobacz ogłoszenie
6
Mieszkanie 3-pokojowe Warszawa Wola, ul. Młynarska

800 000

47

3 pok.

3-pokojowe mieszkanie zlokalizowane na Woli przy ul. Młynarskiej BUDYNEK/OSIEDLE Mieszkanie znajduje się na 10 piętrze w 10 piętrowym budynku. Rok budowy: 1969 NIERUCHOMOŚĆ Mieszkanie o powierzchni 47,55 m2 składa się z: -trzech pokoi, -oddzielnej kuchni, -łazienki, -przedpokoju. Powierzchnia...

Zobacz ogłoszenie
8
Mieszkanie 3-pokojowe Warszawa Wola, ul. Ogrodowa

850 000

57

3 pok.

Warszawa, Wola ul. Ogrodowa - 57 m// 3 pokoje // balkon typu loggia // piwnica We speak English Świetna lokalizacja !! CENA: DO NEGOCJACJI Szanowni Państwo, zapraszamy do zapoznania się z ofertą ustawnego 3 pokojowego mieszkania w biznesowej części dzielnicy Wola. Mieszkanie ma powierzchnię 57 ...

Zobacz ogłoszenie
12
Mieszkanie 2-pokojowe Warszawa Wola, ul. Jana Kazimierza

820 000

40

2 pok.

NA SPRZEDAŻ dwupokojowe mieszkanie na warszawskiej Woli (Odolany ul. Jana Kazimierza/Sztuk Pięknych) Mieszkanie znajduje się w zielonej części Odolan, w drugiel linii zabudowy, co gwarantuje ciszę i spokój. Mieszkanie znajduje się na 2 piętrze w bloku 6 pietrowym z dwoma windami i składa się z: 1. s...

Zobacz ogłoszenie
8
Mieszkanie 3-pokojowe Warszawa Wola, ul. Okopowa

780 000

46

3 pok.

Mam na sprzedaż mieszkanie w świetnej lokalizacji przy ul. Okopowej 16 róg Al. Solidarności, bardzo blisko CH Arkadia i Klif, do centrum 4,2 km, super komunikacja. Mieszkanie ma 46,6 m2, znajduje się na parterze w 11 piętrowym bloku, jest po generalnym remoncie w 2022r., stan mieszkania bardzo dobry...

Zobacz ogłoszenie