Mieszkanie na sprzedaż bez pośredników
ul. Jana Kazimierza Warszawa Wola

NOWA OFERTA
Mieszkanie 3-pokojowe Warszawa Wola, ul. Jana Kazimierza. Zdjęcie 1

Mieszkanie na sprzedaż bez pośredników Warszawa Wola ul. Jana Kazimierza · 4 piętro

1 540 000
21 535 zł/m²
71
3 pok.
Warszawa Wola, Jana Kazimierza - lokalizacja przybliżona
Bezpośrednio od właściciela

Jeśli nie potrzebujesz pośrednika, zaoszczędzisz około 46 200 zł. Potrzebujesz wsparcia? Skorzystaj z pomocy agenta.

Zapraszam do obejrzenia przytulnego, przestronnego i bardzo funkcjonalnego apartamentu w samym sercu Woli. Apartament znajduje się na nowoczesnym osiedlu, z całodobową ochroną i monitoringiem, otoczony rewelacyjną infrastrukturą i w bliskiej odległości do centrum.
Mieszkanie usytuowane jest na 4 piętrze, 6-piętrowego budynku. Jest dwustronne, z ekspozycją na wschód i zachód, dzięki czemu jest bardzo jasne.
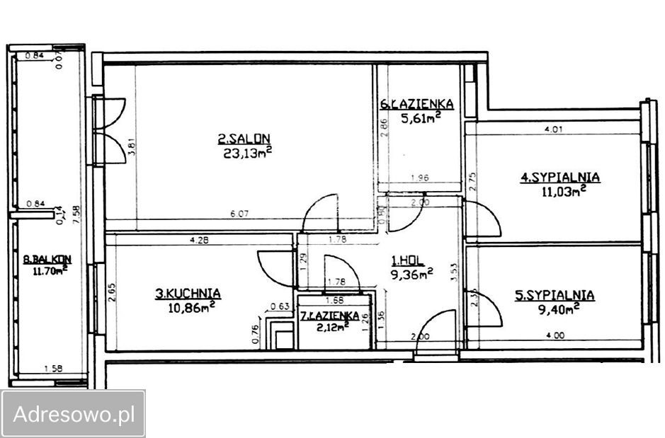
IDEALNY UKŁAD
Mieszkanie jest świetnie zaprojektowane i oferuje rzadko spotykaną elastyczność:
- Salon – 23,13 m²
- Oddzielna kuchnia – 10,86 m² (możliwość połączenia z salonem w otwartą przestrzeń ~40 m²)
- Sypialnia – 11,03 m²
- Sypialnia – 9,40 m²
- Hol – 9,36 m²
- Łazienka – 5,61 m²
- Garderoba – 2,12 m² (możliwość przerobienia na 2 łazienkę)
- Duży balkon – 11,70 m²

Wysokość mieszkania to 2,75m, co daje poczucie przestrzeni.
Układ idealny zarówno dla rodziny, jak i pod inwestycję.
STAN MIESZKANIA
- Mieszkanie jest wykończone i gotowe do wprowadzenia.
- Nie wymaga nakładów.

PARKING
- Do mieszkania przynależy miejsce w garażu podziemnym (w cenie 60 tys. zł).

BUDYNEK
- Nowoczesny, zadbany, bardzo dobrze utrzymany budynek.
- Ładnie wykończone części wspólne.
- Ciche, zielone patio.
- Z wejściem do budynku jedynie przez recepcję z ochroną.
- Pod regularną opieką serwisu sprzątającego i osób utrzymujących zieleń.

LOKALIZACJA (na wysokości ul. Gizów)
Pełna infrastruktura:
- sklepy, markety, drogerie, apteki,
- przedszkola, szkoły, żłobki,
- usługi: fryzjerzy, kosmetyczki, przychodnie, masaże itp.

Rekreacja:
- Park Powstańców Warszawy,
- Park Sowińskiego,
- Park Szymańskiego,
- Park Moczydło – baseny i tereny rekreacyjne,
- siłownie, ścieżki rowerowe, place zabaw.

Rewelacyjny transport:
- przystanek autobusowy przy samym osiedlu,
- tramwaj do centrum w 9–12 min,
- szybki dojazd do metra w ok. 7 min,
- szybki wyjazd z Warszawy (A2, S8).

Idealne miejsce dla osób chcących mieszkać blisko centrum, a jednocześnie ceniących ciszę i wygodę nowoczesnego osiedla.
Ogłoszenie bezpośrednie.

  • Na sprzedaż mieszkanie 3-pokojowe o powierzchni 71,51 m² balkon, garaż/miejsce parkingowe, osobna kuchnia
  • 4 piętro w 6-piętrowym apartamentowcu z windą, rok budowy 2016
  • Warszawa, Wola ul. Jana Kazimierza
  • Mieszkanie w stanie do zamieszkania okna drewniane
  • Odrębna własność z księgą wieczystą  
  • Oferta bezpośrednio od właściciela dodana dodana dzisiaj
Ta nieruchomość może być Twoja od.. sprawdź
308000 zł (20%) Okres spłaty: 30 lat

Podobne mieszkania na sprzedaż

13
Mieszkanie 4-pokojowe Warszawa Wola, ul. Płocka

1 500 000

85

4 pok.

4 pokojowe mieszkanie zlokalizowane na Woli przy ul. Płockiej BUDYNEK/OSIEDLE Mieszkanie znajduje się na 3 piętrze w 9 piętrowym budynku Rok budowy: 1998 NIERUCHOMOŚĆ Mieszkanie o powierzchni 89m2 składa się z: - hallu - pokoju dziennego - gabinetu - sypialni - pokoju gościnnego/dziecięcego ...

Zobacz ogłoszenie
1
Mieszkanie 3-pokojowe Warszawa Wola, ul. Jana Kazimierza

1 600 000

55

3 pok.

Rosnące dzieci wymuszają sprzedaż - inaczej byśmy nigdy nie sprzedawali :) Mieszkanie jest położone w bardzo modnej dzielnicy - Wola/Odolany. Mieszkanie jest na najwyższym piętrze i ma taras z 3 stron. Duże okna, słoneczne, wschód/południe/zachód. W okolicy trzech parków. Wzdłuż całej ulicy dużo lo...

Zobacz ogłoszenie
13
Mieszkanie 3-pokojowe Warszawa Wola, ul. Jana Kazimierza

1 499 000

58

3 pok.

Zaprojektowane przez architektów, wykonane z materiałów i urządzeń premium. Do mieszkania przynależy: • Ogródek z jacuzzi i meblami wypoczynkowymi. • 2 miejsca postojowe w garażu (zależne). • Komórka lokatorska 5 m² wraz z półkami (wysoka, około 3,5 m). Mieszkanie posiada klimatyzację. Telewizor w...

Zobacz ogłoszenie
20
Mieszkanie 3-pokojowe Warszawa Wola, ul. Jana Kazimierza

1 589 000

69

3 pok.

Gotowe do życia: (69 + 7) m² szczęścia – Twoje nowe gniazdko w sercu Woli! Metraż: 69,17 m² + 7,14 m² LOGGIA Lokalizacja: Jana Kazimierza, Wola – centrum wygody, spokoju i miejskiego vibe’u Witaj w miejscu, gdzie życie smakuje jak świeżo parzona kawa w ulubionej kawiarni! To nie jest zwykłe mies...

Zobacz ogłoszenie
7
Mieszkanie 3-pokojowe Warszawa Wola, al. Jana Pawła II

1 495 000

86

3 pok.

Mieszkanie jest dwustronne, z dwiema sypialniami od podwórza i bardzo przestronnym pokojem dziennym od strony al. Jana Pawła II. Salon (od strony południowej) ma boczny widok m.in. na Pałac Kultury i wieżowce w centrum. Oprócz praktycznego rozplanowania, kluczowym atutem mieszkania jest doskonała l...

Zobacz ogłoszenie
5
Mieszkanie 5-pokojowe Warszawa Wola, ul. Żelazna

1 550 000

85

5 pok.

Sprzedam mieszkanie o powierzchni 85 m², zlokalizowane w bloku przy ul. Żelaznej na warszawskiej Woli. Nieruchomość charakteryzuje się bardzo dobrą lokalizacją. Układ pomieszczeń oraz rozmieszczenie pionów pozwalają na wydzielenie z obecnego metrażu dwóch odrębnych, w pełni niezależnych mieszkań. D...

Zobacz ogłoszenie