Mieszkanie na sprzedaż bez pośredników
Ursynów Warszawa

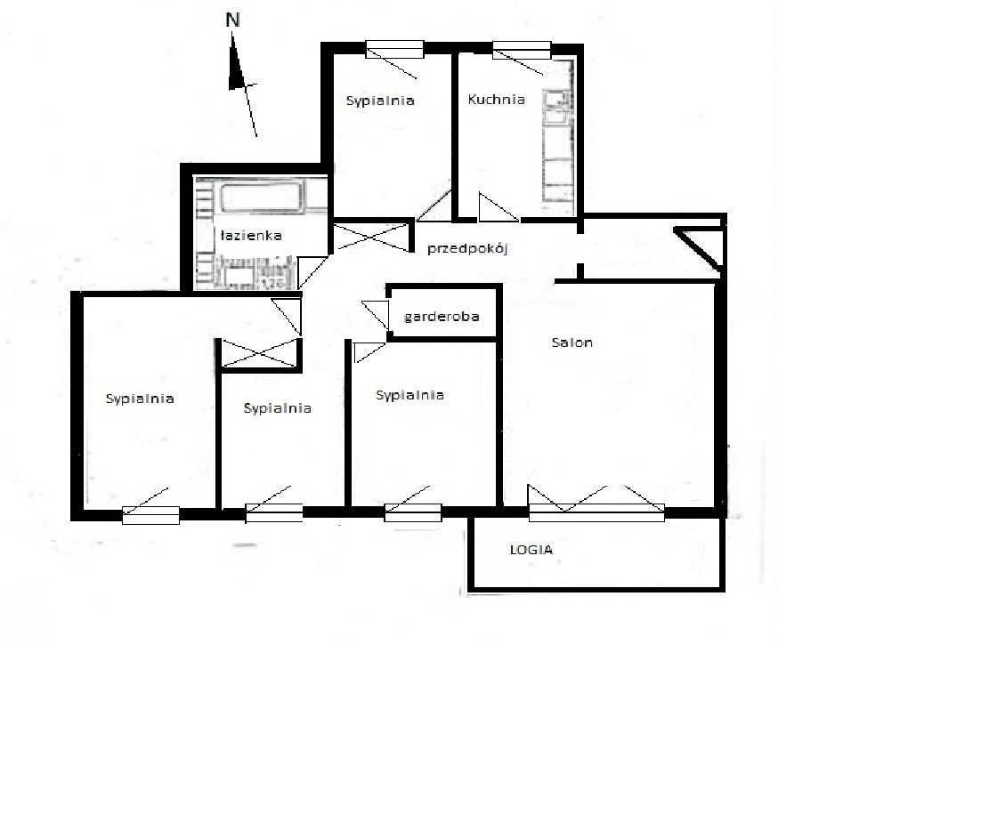
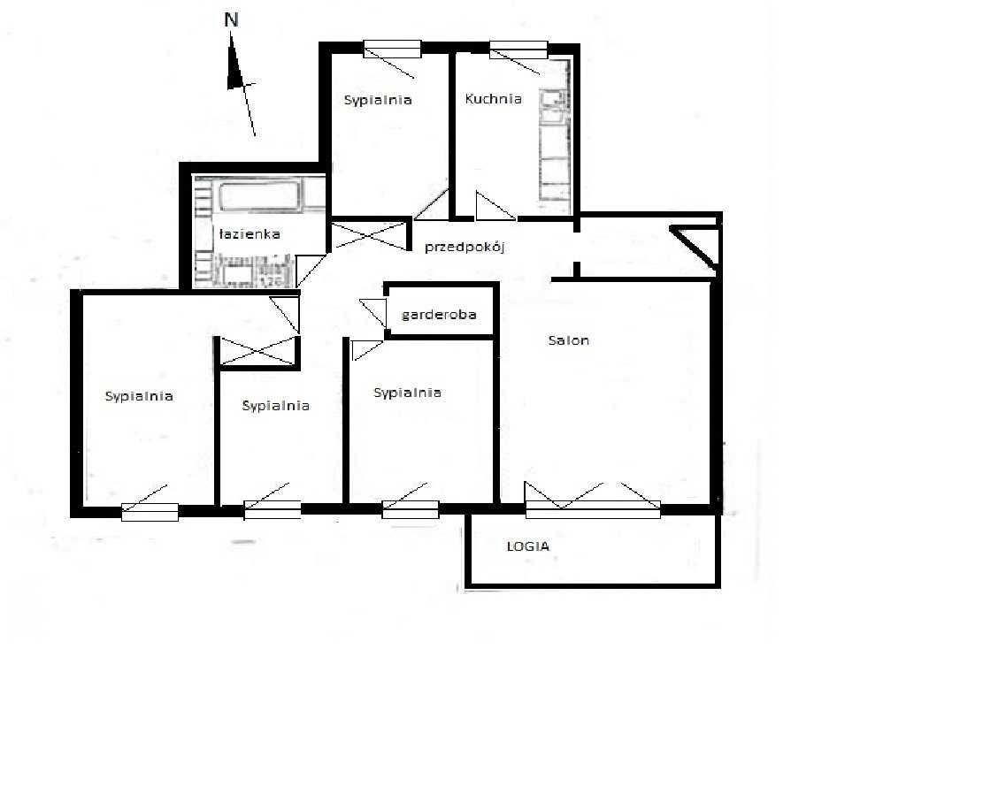
Mieszkanie 5-pokojowe Warszawa Ursynów. Zdjęcie 1

Mieszkanie na sprzedaż bez pośredników Warszawa Ursynów brak adresu · 3 piętro

995 000
11 988 zł/m²
83
5 pok.
Warszawa Ursynów - lokalizacja przybliżona
Bezpośrednio od właściciela

Jeśli nie potrzebujesz pośrednika, zaoszczędzisz około 29 900 zł. Potrzebujesz wsparcia? Skorzystaj z pomocy agenta.

Zapraszamy do zapoznania się z ofertą pięciopokojowego mieszkania na warszawskim Ursynowie. Lokal położony jest na kameralnym osiedlu "Na Skraju" w kwadracie ulic Ciszewskiego, Rosoła i Nugat.

Lokal:
Mieszkanie położone jest na trzecim - ostatnim piętrze. Składa się z pięciu pokoi, łazienki, oddzielnej, widnej kuchni i małej spiżarni/garderoby. Na klatce schodowej jest tylko 8 mieszkań.
Cztery z pięciu pokoi skierowane są na południe. Jedna sypialnia i kuchnia mają okna na północ. W mieszkaniu jest duża łazienka, którą można przebudować na dwie mniejsze lub oddzielne WC i łazienkę z WC. W całym lokalu, oprócz kuchni i łazienki, są solidne drewniane podłogi. W pokojach sosnowe, w korytarzu olchowe - wystarczy je odświeżyć. Z największego pokoju można wyjść na duży, prawie 7-metrowy, zabudowany balkon.
Mieszkanie posiada Księgę Wieczystą.

Okolica:
Na osiedlu znajduje się szkoła podstawowa, przedszkole, duży sklep. W odległości około kilometra znajduje się uczelnia SGGW.
Mieszkanie położone jest w odległości około 1,5 km od stacji Metra Imielin (dwa przystanki autobusowe). Duże centrum handlowe Auchan i OBI około 3 km od osiedla, na końcu Ciszewskiego.
Mieszkanie było wynajmowane przez ostatnie 11 lat. Zdjęcia pokazują lokal przygotowany do wynajmu. Mieszkanie idealnie spełni oczekiwania 4- lub 5-osobowej rodziny lub może być doskonałym produktem inwestycyjnym.

Lokal można oglądać od poniedziałku do piątku po wcześniejszym umówieniu się.

  • Na sprzedaż mieszkanie 5-pokojowe o powierzchni 83 m² balkon, osobna kuchnia
  • 3 piętro w 3-piętrowym bloku  
  • Warszawa, Ursynów  
  • Oferta bezpośrednio od właściciela dodana ponad miesiąc temu i zaktualizowana ponad tydzień temu
Ta nieruchomość może być Twoja od.. sprawdź
199000 zł (20%) Okres spłaty: 30 lat

Podobne mieszkania na sprzedaż

15
Mieszkanie 2-pokojowe Warszawa Ursynów, al. Komisji Edukacji Narodowej

989 000

55

2 pok.

Opis nieruchomości Na sprzedaż wyjątkowe, klimatyczne mieszkanie w stylu loftowym o łącznej powierzchni ok. 55-60 m² (ok. 40 m² + 15-20 m² antresola), zlokalizowane na Ursynowie – zaledwie 60 metrów od stacji metra Stokłosy. Mieszkanie znajduje się na 4. (ostatnim) piętrze w zadbanym budynku z 200...

Zobacz ogłoszenie
12
Mieszkanie 2-pokojowe Warszawa Ursynów, ul. Alternatywy

1 000 000

57

2 pok.

2-pokojowe mieszkanie na sprzedaż 56,84 m² | balkon | oddzielna kuchnia | winda | Ursynów OFERTA BEZ POŚREDNIKÓW Na sprzedaż 2-pokojowe mieszkanie o powierzchni 56,84 m², z oddzielną, widną kuchnią oraz balkonem, zlokalizowane na 2. piętrze w budynku z windą. Mieszkanie w bardzo dobrym stanie tech...

Zobacz ogłoszenie
13
Mieszkanie 3-pokojowe Warszawa Ursynów, ul. Dereniowa

998 000

67

3 pok.

Bezposrednio sprzedam bardzo ładne o ciekawym układzie pomieszczeń mieszkanie trzypokojowe 67 m2.Lokal z dobra ekspozycja stron swiata południe polnoc Mieszkanie z dużą możliwością aranżacyjna Położone jest na osmym piętrze, z okien duzego pokoju rozpościera się piękny widok Co istotne przed oknami ...

Zobacz ogłoszenie
6
Mieszkanie 3-pokojowe Warszawa Ursynów

1 010 000

63

3 pok.

Na sprzedaż jasne i funkcjonalne mieszkanie o powierzchni 63 mkw, położone na 1. piętrze w zadbanym budynku z lat 80., w jednej z najbardziej wygodnych lokalizacji na Ursynowie. Największym atutem mieszkania jest jego położenie: zaledwie 3 minuty spacerem do stacji metra Ursynów i 5 minut spacerem ...

Zobacz ogłoszenie
13
Mieszkanie 5-pokojowe Warszawa Ursynów, ul. Jana Cybisa

950 000

73

5 pok.

Jeśli szukasz funkcjonalnego mieszkania do własnej aranżacji na warszawskim Ursynowie albo gotowego produktu inwestycyjnego, to jest to oferta, która na pewno Cię zainteresuje! Mieszkanie Do sprzedania pięciopokojowe mieszkanie z balkonem na warszawskim Ursynowie (Stokłosy), o powierzchni 73,9 m2.  ...

Zobacz ogłoszenie
12
Mieszkanie 4-pokojowe Warszawa Ursynów, ul. Jana Miklaszewskiego

1 000 000

73

4 pok.

Oferuję do sprzedaży mieszkanie o pow. 73,20 m2 zlokalizowane na pierwszym piętrze 4-piętrowego budynku z lat osiemdziesiątych przy ulicy Miklaszewskiego. Jest to sam środek osiedla wśród zieleni. W budynku nie ma windy. Klatka schodowa po remoncie. Tylko 2 mieszkania na piętrze. Mieszkanie składa ...

Zobacz ogłoszenie