Warszawa Praga-Południe

3-pokojowe mieszkanie na sprzedaż Bez pośrednika

Mieszkanie 3-pokojowe Warszawa Praga-Południe
Cena
800 000
Powierzchnia
60
Cena za m²
13 333
Piętro
10
Rok budowy
1974
Warszawa Praga-Południe · 800 000 zł

Ogłoszenie właściciela - bez pośredników

Mieszkanie 3-pokojowe Warszawa Praga-Południe. Zdjęcie 1
Mieszkanie 3-pokojowe Warszawa Praga-Południe. Zdjęcie 1

Bez pośrednika. Oszczędzasz 24 000 zł na prowizji pośrednika!

Ogłoszenie bezpośrednio od właścicielki, brak prowizji. Uprzejma prośba do agencji nieruchomości o niekontaktowanie się.

Wyodrębniona własność z KW (po przekształceniu ze spółdzielczego własnościowego prawa do lokalu).

Bardzo jasne, dobrze doświetlone mieszkanie o orientacji południowo-wschodniej.

Bardzo dobry rozkład umożliwiający wygodną aranżację na niewielkiej powierzchni: 3 pokoje, z osobną kuchnią, łazienką i toaletą. Możliwość aranżacji kuchni w salonie, co umożliwi wygospodarowanie dodatkowego niewielkiego pokoju w miejscu kuchni (instalacje kuchenne są w ścianie między kuchnią a salonem). Przestronny widok z każdego okna. Każdy pokój oraz kuchnia oświetlone światłem dziennym. Otwarty balkon z przepięknym widokiem na centrum Warszawy.

Stan: do generalnego remontu.

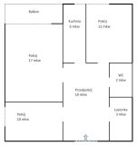
Powierzchnia 60 mkw, na którą składa się (orientacyjnie):
- Pokój - 17 mkw
- Pokój - 10 mkw
- Pokój - 11 mkw
- Przedpokój - 10 mkw
- Kuchnia - 6 mkw
- Łazienka - 3 mkw
- WC - 2 mkw.

W okolicy znajduje się cała niezbędna infrastruktura: liczne sklepy, punkty usługowe, galeria handlowe, markety, placówki medyczne, szkoły, przedszkola, żłobki. Tuż pod blokiem plac zabaw i siłownia plenerowa. Przemili sąsiedzi, domowa atmosfera "jak nie w Warszawie". Bardzo dobry kontakt ze Spółdzielnią.

Planowana stacja nowej linii metra zostanie najpewniej otwarta jeszcze w tym stuleciu. Mimo to dobra komunikacja z centrum poprzez ul. Ostrobramską i Grochowską - autobusy dzienne/nocne i tramwaje.

Dostępne od zaraz.

Serdecznie zapraszam do oglądania i składania ofert.

  • Na sprzedaż mieszkanie 3-pokojowe o powierzchni 60 m²
  • 10 piętro w 15-piętrowym bloku z 1974 roku
  • Warszawa, Praga-Południe
  • Balkon, osobna kuchnia
  • Mieszkanie w stanie do remontu
  • Oferta dodana bezpośrednio przez właściciela ponad tydzień temu
Wróć
Największa baza ogłoszeń bez pośredników
Zarejestruj się, aby przejść dalej
lub

Kontynuując akceptujesz
Regulamin i Politykę prywatności

Masz już konto na adresowo.pl?
Zaloguj się

Mamy dla Ciebie kredyt hipoteczny z niską ratą! Chcesz poznać szczegóły?

Kontakt z VeloBank:
- ofertę, wniosek i decyzję o przyznaniu kredytu w procesie online,
- wsparcie eksperta hipotecznego na każdym kroku,
- kredyt do 90% wartości nieruchomości.





Wyrażam zgodę na przetwarzanie moich danych osobowych zawartych w formularzu na stronie adresowo.pl przez VeloBank S.A. z siedzibą w Warszawie przy Rondo Ignacego Daszyńskiego 2C (Bank), a tym samym na ich przetwarzanie, w tym profilowanie, przez Bank w celu marketingu produktów i usług Banku za pośrednictwem rozmowy telefonicznej i sms. Zgoda może być w każdej chwili wycofana. Cofnięcie zgody nie ma wpływu na zgodność z prawem przetwarzania danych przed jej wycofaniem.