Mieszkanie na sprzedaż
ul. Antoniego Malczewskiego Warszawa Mokotów

Mieszkanie 2-pokojowe Warszawa Mokotów, ul. Antoniego Malczewskiego. Zdjęcie 1
Mieszkanie 2-pokojowe Warszawa Mokotów, ul. Antoniego Malczewskiego. Zdjęcie 2
Mieszkanie 2-pokojowe Warszawa Mokotów, ul. Antoniego Malczewskiego. Zdjęcie 3
Mieszkanie 2-pokojowe Warszawa Mokotów, ul. Antoniego Malczewskiego. Zdjęcie 4
Mieszkanie 2-pokojowe Warszawa Mokotów, ul. Antoniego Malczewskiego. Zdjęcie 5
Mieszkanie 2-pokojowe Warszawa Mokotów, ul. Antoniego Malczewskiego. Zdjęcie 6

Mieszkanie na sprzedaż Warszawa Mokotów ul. Antoniego Malczewskiego · 5 piętro

555 000
14 960 zł/m²
37
2 pok.
Warszawa Mokotów, Antoniego Malczewskiego - lokalizacja przybliżona

Właściciel powierzył sprzedaż nieruchomości pośrednikowi. Możesz zadzwonić lub napisać do agenta za darmo.

Szukasz mieszkania z ogromnym potencjałem inwestycyjnym, w fenomenalnej lokalizacji, blisko zieleni i parę kroków od metra?
Ta nieruchomość jest idealna dla Ciebie!
Z przyjemnością oferuję dwupokojowe mieszkanie na pograniczu Starego Mokotowa i Wierzbna - 3 minuty do stacji Metra Wierzbno!
Nieruchomość jest w stanie do GENERALNEGO REMONTU, liczy 37,1 m2 i mieści się na piątym piętrze zadbanego bloku. Budynek posiada 2 nowoczesne windy.
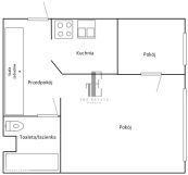
Mieszkanie składa się z:
- przedpokoju,
- salonu,
- kuchni,
- małej sypialni,
- łazienki
Dodatkowo:
- piwnica
Mieszkanie ma funkcjonalny rozkład i duży potencjał aranżacyjny.
Istnieje możliwość połączenia kuchni z sypialnią i przeniesienia aneksu kuchennego do salonu!
LOKALIZACJA
Nieruchomość jest doskonale skomunikowana, w niedalekiej odległości znajduje się stacja Metra Wierzbno, przystanek tramwajowy 3 minut piechotą.
W pobliżu niska kameralna zabudowa, otoczenie kamienic i alejek spacerowych. Świetnie rozwinięta infrastruktura: bliskość wielu sklepów, lokali usługowych, gastronomicznych, banków, aptek, placówek opieki zdrowotnej jak i administracji państwowej. W pobliżu również szkoły i przedszkola.
- Park Dreszera
STAN PRAWNY:
Odrębna własność z KW - możliwość posiłkowania się kredytem!
Zapraszam na prezentację, jestem dostępny 7 dni w tygodniu!
ZADZWOŃ TERAZ ZANIM KTOŚ BĘDZIE PIERWSZY, TAKIE MIESZKANIA TO RZADKOŚĆ!
[numer]
Jan Mikołajczuk
Ekspert ds. Nieruchomości
The Estate Warsaw

  • Na sprzedaż mieszkanie 2-pokojowe o powierzchni 37,10 m²  
  • 5 piętro w 10-piętrowym bloku z windą, rok budowy 1975
  • Warszawa, Mokotów ul. Antoniego Malczewskiego
  • Odrębna własność z księgą wieczystą  
  • Ogłoszenie biura nieruchomości  
  • Oferta dodana dodana dzisiaj
Ta nieruchomość może być Twoja od.. sprawdź
111000 zł (20%) Okres spłaty: 30 lat

Podobne mieszkania na sprzedaż

8
Mieszkanie 2-pokojowe Warszawa Mokotów, ul. Czarnomorska

565 000

31

2 pok.

2-pokojowe mieszkanie zlokalizowane na Mokotowie przy ul. Czarnomorskiej BUDYNEK/OSIEDLE Mieszkanie znajduje się na 3 piętrze w 11 piętrowym budynku Rok budowy: 1977 NIERUCHOMOŚĆ Mieszkanie o powierzchni 31m2 składa się z: -dwóch pokoi, -kuchni, -łazienki, -przedpokoju. Czynsz administracyjn...

Zobacz ogłoszenie
1
Mieszkanie 1-pokojowe Warszawa Mokotów, ul. Rakowiecka

550 000

26

1 pok.

Oferuję na sprzedaż 1 pokojowe mieszkanie o powierzchni 26,67 mkw, usytuowane na 1. piętrze w kameralnym budynku z 1953 roku. Nieruchomość zlokalizowana jest przy ul. Rakowieckiej na Warszawskim Starym Mokotowie. Jest to idealne mieszkanie dla singla, pary lub inwestora. Nieruchomość składa się z: ...

Zobacz ogłoszenie
8
Mieszkanie 2-pokojowe Warszawa Mokotów

590 999

31

2 pok.

Na sprzedaż funkcjonalne mieszkanie o powierzchni 31 m², położone na 6 piętrze w budynku na Mokotowie – Stegny. Mieszkanie stanowi świetną propozycję zarówno do zamieszkania, jak i jako gotowa inwestycja pod wynajem. Lokal jest wynajmowany nieprzerwanie od około 5 lat, obecnie przez parę – co potw...

Zobacz ogłoszenie
7
Mieszkanie 1-pokojowe Warszawa Mokotów, ul. Blacharska

549 000

31

1 pok.

Na sprzedaż jasna i ustawna kawalerka o powierzchni ok. 31 m², położona na 4 piętrze w budynku z windą przy ul. Blacharskiej 1 na Mokotowie (Służew). Mieszkanie znajduje się w zadbanym budynku z odnowioną klatką schodową, w spokojnej i zielonej części dzielnicy, z bardzo dobrą komunikacją z centrum ...

Zobacz ogłoszenie
20
Mieszkanie 2-pokojowe Warszawa Mokotów, ul. Stefana Pieńkowskiego

539 000

31

2 pok.

Na sprzedaż: słoneczne mieszkanie z pięknym widokiem na Mokotowie ? ul. Pieńkowskiego 4 Jeśli szukasz funkcjonalnego mieszkania w świetnej lokalizacji na Mokotowie, z dobrym dojazdem do centrum i dużym potencjałem inwestycyjnym, ta oferta zasługuje na uwagę. To idealna propozycja zarówno do zamieszk...

Zobacz ogłoszenie
14
Mieszkanie 2-pokojowe Warszawa Mokotów, ul. Łowicka

569 000

28

2 pok.

Dwa pokoje przy Łowickiej! Kamienica! Dwupokojowe mieszkanie przy ul.Łowickiej. Zadbana kamienica na Starym Mokotowie. Wysokość pomieszczeń 276 cm. Słoneczne, świetnie skomunikowane. Stary Mokotów kamienica świetna lokalizacja metro 2 pokoje Dwupokojowe mieszkanie na Starym Mokotowie. Osobna kuchni...

Zobacz ogłoszenie