Mieszkanie na sprzedaż
ul. Renesansowa Warszawa Bielany

Mieszkanie 3-pokojowe Warszawa Bielany, ul. Renesansowa. Zdjęcie 1
Mieszkanie 3-pokojowe Warszawa Bielany, ul. Renesansowa. Zdjęcie 2

Mieszkanie na sprzedaż Warszawa Bielany ul. Renesansowa · 3 piętro

899 000
15 979 zł/m²
56
3 pok.
Warszawa Bielany, Renesansowa - lokalizacja przybliżona

Właściciel powierzył sprzedaż nieruchomości pośrednikowi. Możesz zadzwonić lub napisać do agenta za darmo.

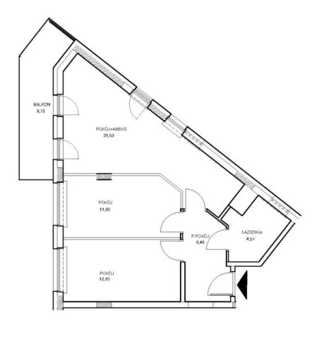
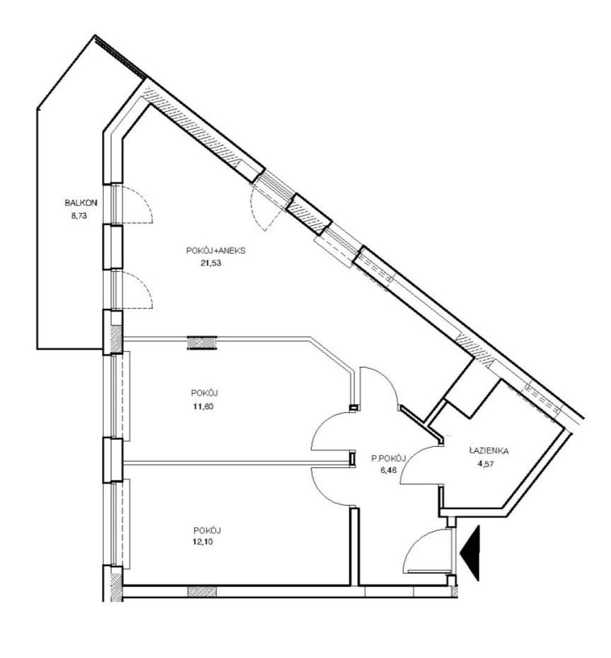
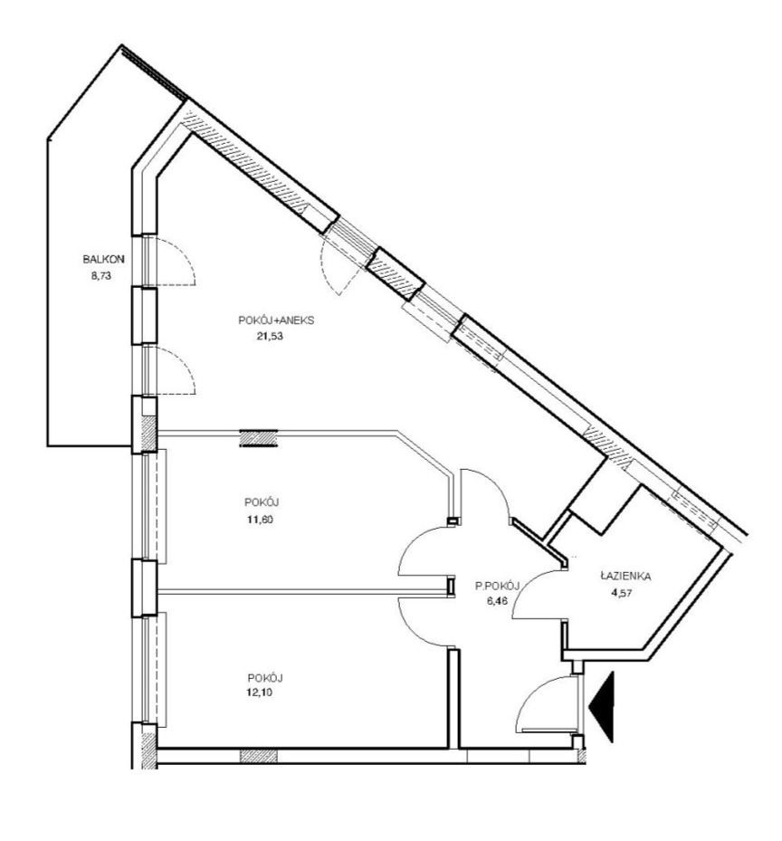
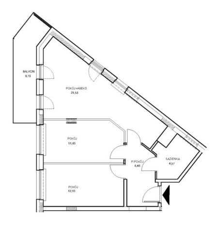
Na sprzedaż 3-pokojowe mieszkanie 56,26m2, piętro 3/7 z windą, w budynku z 2024r., Bielany Chomiczówka.
Mieszkanie w stanie deweloperskim, idealne dla pary, niewielkiej rodziny lub inwestycyjnie pod wynajem. W tym samym budynku dostępne również mieszkanie 3-pokojowe 59,08 m2 na piętrze 4 (rzut dodaję).
Mieszkanie to:
* pokój 21,53 m2 z aneksem kuchennym i wyjściem na balkon;
* pokój 11,60 m2;
* pokój 12,10 m2;
* łazienka 4,57 m2;
* przedpokój 6,46 m2;
* balkon 8,73 m2.
Dwa miejsca postojowe na platformie w garażu w cenie sprzedaży. Komórka lokatorska na półpiętrze obok mieszkania, dodatkowo płatna 7.000zł.
Ekspozycja okien na północny-zachód. Czynsz administracyjny 700 zł.
Nowoczesny, kameralny budynek, tylko 12 mieszkań.
Wygodna lokalizacja, obok przystanki autobusowe i tramwajowe, do metra Wawrzyszew (M1) 5 min autobusem, sprawne połączenia z centrum Warszawy. W najbliższej okolicy znajdują się liczne sklepy, apteka, przedszkole, szkoła, przychodnie lekarskie, sklepy, restauracje.
Mieszkanie zostanie wydzielone jako lokal stanowiący odrębną nieruchomość, zostanie założona księga wieczysta, grunty uregulowane (własność). Kupujący nie płaci PCC. Mieszkanie jest dostępne za gotówkę lub na kredyt, który bezpłatnie pomożemy uzyskać.
Zapraszam na bezpłatną i bezpieczną prezentację, zadzwoń od razu i umów się na spotkanie. Oferta biura nieruchomości, więcej propozycji na naszej stronie topbrokers(kropka)pl

  • Oferta z rynku pierwotnego
  • Na sprzedaż mieszkanie 3-pokojowe o powierzchni 56,26 m² miejsce w hali garażowej
  • 3 piętro w 7-piętrowym apartamentowcu z windą, rok budowy 2024
  • Warszawa, Bielany ul. Renesansowa
  • Odrębna własność z księgą wieczystą  
  • Ogłoszenie biura nieruchomości  
  • Oferta dodana ponad miesiąc temu
Ta nieruchomość może być Twoja od.. sprawdź
180000 zł (20%) Okres spłaty: 30 lat

Podobne mieszkania na sprzedaż

3
Mieszkanie 4-pokojowe Warszawa Bielany, ul. Wrzeciono

900 000

56

4 pok.

Sprzedam mieszkanie 4 pokoje 56m na parterze w 4o piętrowym bloku plus 2 piwnice bardzo funkcjonalny rozstaw pomieszczeń, okna wychodzą na północ i południe. jeden pokój przejściowy z dużego. 3 pokoje po około 10 m2 jeden około 16m2 Budynek przy ul. Wrzeciono 8a mieszkanie częściowo po remoncie Spr...

Zobacz ogłoszenie
10
Mieszkanie 2-pokojowe Warszawa Bielany, ul. Tomasza Nocznickiego

899 000

47

2 pok.

2-pokojowe mieszkanie zlokalizowane na Bielanach przy ul. Nocznickiego BUDYNEK/OSIEDLE Mieszkanie znajduje się na 1 piętrze w 9 piętrowym budynku. Rok budowy: 2013 NIERUCHOMOŚĆ Mieszkanie o powierzchni 47,8m2 składa się z: -Duży salon z otwartą kuchnią i wyjściem na balkon, -Sypialnia z szaf...

Zobacz ogłoszenie
13
Mieszkanie 3-pokojowe Warszawa Bielany, ul. Władysława Broniewskiego

900 000

56

3 pok.

Sprzedam bezpośrednio nowoczesne 3-pokojowe mieszkanie na Bielanach. Lokal po gruntownym remoncie: nowa łazienka, podłogi, drzwi, gładzie na ścianach, nowa instalacja elektryczna, okna plastikowe. Kuchnia wyposażona w nowe sprzęty na gwarancji (płyta, piekarnik, zmywarka, wyciąg). Rozkładowy układ...

Zobacz ogłoszenie
21
Mieszkanie 3-pokojowe Warszawa Bielany, ul. Renesansowa

875 000

60

3 pok.

DZIEŃ OTWARTY – ZAPRASZAMY! Serdecznie zapraszam na DZIEŃ OTWARTY, który odbędzie się w środę po wcześniejszym kontakcie telefonicznym. W SKRÓCIE ul. Renesansowa 27 | Bielany klimatyczne mieszkanie w bardzo dobrym stanie, gotowe do zamieszkania, w pełni umeblowane 3 pokoje z oddzielną, widną ku...

Zobacz ogłoszenie
8
Mieszkanie 3-pokojowe Warszawa Bielany, ul. Kluczowa

900 000

63

3 pok.

Kontakt w sprawie mieszkania codziennie w godz. 10:00-20:00, Tadeusz. Lokalizacja: Warszawa, Bielany, ul. Kluczowa. --- Mieszkanie 3-pokojowe (ok. 20 m², 13 m², 12 m²). Powierzchnia: 63,5 m². Piętro: 3. Kuchnia oddzielna, ok. 7 m². Łazienka i WC oddzielne. Balkon ok. 4,5 m². Piwnica ok. 2 m². Mie...

Zobacz ogłoszenie
12
Mieszkanie 4-pokojowe Warszawa Bielany, ul. Wojciecha Bogusławskiego

890 000

73

4 pok.

4-pokojowe mieszkanie zlokalizowane na Bielanach przy ul. Bogusławskiego BUDYNEK/OSIEDLE Mieszkanie znajduje się na 8 piętrze w 12 piętrowym budynku. Rok budowy: 1978 NIERUCHOMOŚĆ Mieszkanie o powierzchni 73m2 składa się z: -czterech pokoi, -oddzielnej, widnej kuchni, -łazienki, -przedpokoju...

Zobacz ogłoszenie