Mieszkanie na sprzedaż bez pośredników
ul. Unii Lubelskiej Poznań Starołęka

Mieszkanie 3-pokojowe Poznań Starołęka, ul. Unii Lubelskiej. Zdjęcie 1
Mieszkanie 3-pokojowe Poznań Starołęka, ul. Unii Lubelskiej. Zdjęcie 2
Mieszkanie 3-pokojowe Poznań Starołęka, ul. Unii Lubelskiej. Zdjęcie 3
Mieszkanie 3-pokojowe Poznań Starołęka, ul. Unii Lubelskiej. Zdjęcie 4
Mieszkanie 3-pokojowe Poznań Starołęka, ul. Unii Lubelskiej. Zdjęcie 5
Mieszkanie 3-pokojowe Poznań Starołęka, ul. Unii Lubelskiej. Zdjęcie 6
Mieszkanie 3-pokojowe Poznań Starołęka, ul. Unii Lubelskiej. Zdjęcie 7

Mieszkanie na sprzedaż bez pośredników Poznań Starołęka ul. Unii Lubelskiej · 5 piętro

64
3 pok.
Poznań Starołęka, Unii Lubelskiej - lokalizacja przybliżona
Deweloper DEVELIA Inwestycja Unii Lubelskiej Vita Numer lokalu C.05.189
Bezpośrednio od dewelopera

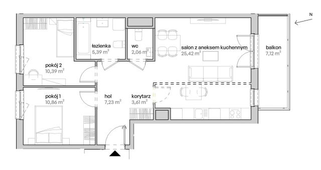
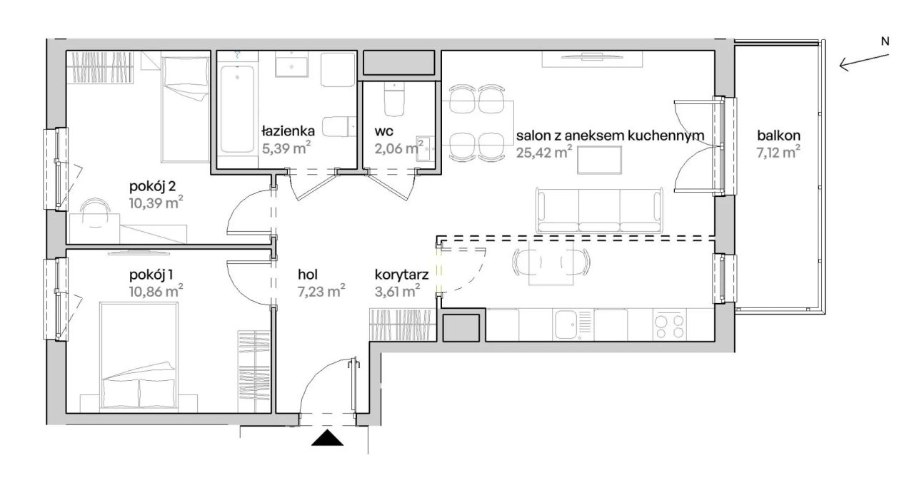
Nowe mieszkanie 3-pokojowe o powierzchni 64,96 m² w inwestycji Unii Lubelskiej Vita dewelopera DEVELIA, na 5 piętrze w budynku 10 pod adresem ul. Unii Lubelskiej 10, Poznań Starołęka. Planowany termin oddania to I kwartał 2026 roku.

Lokalizacja
Unii Lubelskiej Vita to najnowsza propozycja Develii w Poznaniu. Inwestycja powstaje przy ul. Unii Lubelskiej 10, na poznańskiej Starołęce, na terenie bardzo dobrze skomunikowanej dzielnicy Nowe Miasto.

Jedną z największych zalet tej lokalizacji są bogate tereny zielone w najbliższej okolicy. Malowniczy Las Dębiński, oddalony jedynie o 1,5 km, jest rajem dla miłośników przyrody, oferującym możliwość aktywnego wypoczynku przez cały rok. W bliskim sąsiedztwie znajduje się też urokliwa Wartostrada: idealna trasa dla spacerowiczów i rowerzystów, biegnąca wzdłuż rzeki Warty. Nieopodal położony jest także Park Rataje, który zachwyca fascynującymi instalacjami, skansenem kolejowym oraz różnorodnymi placami zabaw.

Lokalizacja projektu zapewnia niezrównaną wygodę komunikacyjną. Mieszkańcy tego obszaru mają bezpośredni dostęp do wyremontowanej pętli tramwajowej, co gwarantuje sprawny dojazd do Dworca Głównego oraz Starego Miasta, zajmujący zaledwie 20 minut. Ponadto, transportem publicznym można w łatwy i szybki sposób dotrzeć do renomowanych uczelni takich jak AWF i Politechnika Poznańska.

Korzystając z rozbudowanej infrastruktury drogowej, podróże samochodem do licznych szkół oraz do 4 okolicznych galerii handlowych zajmą mniej niż 10 minut, a oddalona o ok. 2 km stacja kolejowa Poznań Starołęka umożliwia połączenie z Dworcem Głównym w zaledwie kilka minut.

Oferta
Położona w popularnej lokalizacji na Starołęce w Poznaniu inwestycja Unii Lubelskiej Vita została zaprojektowana z myślą o nowoczesności i komforcie.
Powstanie 285 mieszkań w budynku o atrakcyjnej architekturze, liczącym od 5 do 13 kondygnacji. Bogaty wybór lokali o różnych metrażach mieszczących od 1 do 4 pokoi sprawia, że oferta ta jest idealna dla rodzin, par, singli oraz osób poszukujących inwestycji pod wynajem.

Dwupoziomowy garaż podziemny z niezależnym wjazdem na każdą kondygnację zapewnia 291 stanowisk postojowych, w tym 8 dostępnych dla osób z niepełnosprawnościami, a na terenie inwestycji utworzone będą także 3 naziemne miejsca parkingowe oraz stojaki dla rowerów. Na parterze przewidziano też 7 lokali usługowych, co dodatkowo podniesie komfort życia mieszkańców.

Inwestycja zapewnia także strefy rekreacyjne z urządzeniami dla dzieci i dorosłych, otoczone zielenią i elementami małej architektury. Nawierzchnia utwardzona została zaprojektowana tak, aby przepuszczać wody opadowe i roztopowe, co przyczyni się do zachowania ekologicznej równowagi.
Koncepcja architektoniczna Unii Lubelskiej Vita zakłada też duży nacisk na tereny zielone i ograniczenie ruchu kołowego, co sprzyjać będzie spokojnej atmosferze i aktywnemu wypoczynkowi mieszkańców.
Termin zakończenia budowy osiedla zaplanowany jest na I kwartał 2026 r.

Atuty
- Szeroki wybór mieszkań od kawalerek po 4-pokojowe
- Siedem lokali usługowych na parterze
- Atrakcyjna lokalizacja na poznańskiej Starołęce
- Sąsiedztwo terenów zielonych
- Lokalizacja bezpośrednio przy pętli tramwajowej

Niniejszy materiał ma charakter informacyjny i nie stanowi oferty w rozumieniu Kodeksu cywilnego.

Szczegóły inwestycji dostępne są na stronie internetowej develia.pl

  • Oferta z rynku pierwotnego
  • Na sprzedaż mieszkanie 3-pokojowe o powierzchni 64,96 m²  
  • 5 piętro  
  • Poznań, Starołęka ul. Unii Lubelskiej
  • Mieszkanie do wykończenia  
  • Odrębna własność z księgą wieczystą  

Pozostałe nieruchomości tego dewelopera: Mieszkania DEVELIA Poznań Mieszkania DEVELIA Unii Lubelskiej Vita Poznań Mieszkania 3-pokojowe DEVELIA Unii Lubelskiej Vita Poznań

Podobne mieszkania w inwestycji Unii Lubelskiej Vita

Sortuj:
3 pok.
51.23 m²
1 p.
3 pok.
64.86 m²
2 p.
3 pok.
64.86 m²
4 p.
3 pok.
57.18 m²
5 p.
3 pok.
64.86 m²
5 p.
3 pok.
57.18 m²
6 p.
3 pok.
64.86 m²
6 p.
3 pok.
57.18 m²
7 p.
3 pok.
64.86 m²
7 p.
3 pok.
57.18 m²
8 p.
3 pok.
64.96 m²
1 p.
3 pok.
56.77 m²
2 p.
3 pok.
64.96 m²
6 p.
3 pok.
64.96 m²
7 p.
3 pok.
56.77 m²
8 p.
3 pok.
56.44 m²
1 p.
3 pok.
56.44 m²
2 p.
3 pok.
56.44 m²
3 p.
3 pok.
56.44 m²
4 p.
3 pok.
56.44 m²
5 p.
3 pok.
54.95 m²
1 p.
3 pok.
54.95 m²
2 p.
3 pok.
54.95 m²
5 p.
3 pok.
65.45 m²
3 p.
3 pok.
65.45 m²
4 p.
3 pok.
62.94 m²
parter
3 pok.
54.73 m²
1 p.
3 pok.
62.96 m²
1 p.
3 pok.
51.23 m²
2 p.
3 pok.
62.96 m²
2 p.
3 pok.
56.85 m²
2 p.
3 pok.
51.23 m²
3 p.
3 pok.
56.85 m²
3 p.
3 pok.
51.23 m²
4 p.
3 pok.
56.85 m²
4 p.
3 pok.
51.23 m²
5 p.
3 pok.
62.96 m²
5 p.
3 pok.
56.85 m²
5 p.
3 pok.
51.23 m²
6 p.
3 pok.
56.85 m²
6 p.
3 pok.
51.23 m²
7 p.
3 pok.
54.73 m²
7 p.
3 pok.
56.85 m²
7 p.
3 pok.
66.18 m²
8 p.
3 pok.
51.23 m²
8 p.
3 pok.
56.85 m²
8 p.
3 pok.
56.85 m²
9 p.
3 pok.
56.85 m²
10 p.
3 pok.
56.96 m²
11 p.
3 pok.
56.85 m²
11 p.
3 pok.
56.96 m²
12 p.
3 pok.
52.88 m²
2 p.
3 pok.
52.88 m²
3 p.
3 pok.
52.88 m²
4 p.
3 pok.
52.88 m²
5 p.
3 pok.
52.88 m²
6 p.
3 pok.
52.88 m²
7 p.
3 pok.
52.88 m²
8 p.
3 pok.
52.54 m²
1 p.
3 pok.
52.54 m²
2 p.

Podobne mieszkania na sprzedaż

11
Mieszkanie 2-pokojowe Poznań Wilda, ul. Górna Wilda

359 000

45

2 pok.

- Oferta bezpośrednia, bez prowizji. - Lokal użytkowy ma powierzchnię 45,65 m² i składa się z 2 pokoi. Mieszkanie posiada osobno prysznic, łazienkę z wanną. - Lokal po generalnym remoncie (wymienione wszystkie instalacje: wodna, elektryczna i kanalizacyjna). - Cena obejmuje sprzedaż całkowicie wypos...

Zobacz ogłoszenie
7
Mieszkanie 4-pokojowe Poznań Wilda, ul. Mieczysława Niedziałkowskiego

zapytaj

72

4 pok.

Nowe mieszkanie 4-pokojowe o powierzchni 72,09 m² w inwestycji Vilda Arte dewelopera DEVELIA, na 1 piętrze w budynku 11 pod adresem ul. Mieczysława Niedziałkowskiego 11, Poznań Wilda. Planowany termin oddania to II kwartał 2026 roku. Vilda Arte to inwestycja położona w jednej z najlepiej skomunikow...

Zobacz ogłoszenie
5
Mieszkanie 3-pokojowe Poznań Grunwald, ul. Ptasia

zapytaj

63

3 pok.

Nowe mieszkanie 3-pokojowe o powierzchni 63,12 m² w inwestycji Ptasia Vita dewelopera DEVELIA, na parterze w budynku 32 pod adresem ul. Ptasia 32, Poznań Grunwald. Planowany termin oddania to IV kwartał 2027 roku. LOKALIZACJA Ptasia Vita to kameralne osiedle położone w jednej z bardziej cenionych ...

Zobacz ogłoszenie
2
Mieszkanie 4-pokojowe Poznań Stare Miasto, ul. Szyperska

310 000

70

4 pok.

Odstapie partycypacie mieszkania TBS 70 m,ul.Szyperska w centrum Poznania., 3, ostatnie piętro z winda i piwnica.Mieszkanie posiada 4 pokoje, duży salon z aneksem kuchennym, 3 niezależne pokoje, duży holl, łazienka z wanna i druga łazienka. Dla mieszkańców parking w cenie 30zl na m-c w strefie płat...

Zobacz ogłoszenie
2
Mieszkanie 2-pokojowe Poznań Grunwald, ul. Smardzewska

zapytaj

52

2 pok.

52m blisko szkoły na spokojnej jednokierunkowej ulicy .Szczegóły sprzedaży do uzgodnienia. CENA DO NEGOCJACJI. BEZ BALKONU.

Zobacz ogłoszenie
7
Mieszkanie 2-pokojowe Poznań, ul. Królowej Jadwigi

zapytaj

45

2 pok.

Nowe mieszkanie 2-pokojowe o powierzchni 45,04 m² w inwestycji Królowej Jadwigi dewelopera DEVELIA, na parterze w budynku 51 pod adresem ul. Królowej Jadwigi 51, Poznań. Planowany termin oddania to IV kwartał 2026 roku. Oferta Inwestycja Królowej Jadwigi 51 to wyjątkowe osiedle mieszkaniowe, które...

Zobacz ogłoszenie