Mieszkanie na sprzedaż bez pośredników
ul. Zielona Łódź Polesie

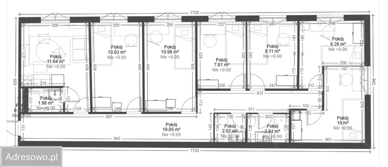
Mieszkanie 6-pokojowe Łódź Polesie, ul. Zielona. Zdjęcie 1

Mieszkanie na sprzedaż bez pośredników Łódź Polesie ul. Zielona · 2 piętro

980 000
9 989 zł/m²
98
6 pok.
Łódź Polesie, Zielona - lokalizacja przybliżona
Bezpośrednio od właściciela

Jeśli nie potrzebujesz pośrednika, zaoszczędzisz około 29 400 zł. Potrzebujesz wsparcia? Skorzystaj z pomocy agenta.

Mieszkanie inwestycyjne z kompletem najemców, w najmie długoterminowym.
Lokalizacja: Łódź ul. Zielona 27.

Podzielone na 6 pokoi i studio.
Bezpośrednia okolica wydziałów UM i UŁ.
5 minut spacerem do ulicy Piotrkowskiej.

Kamienica po rewitalizacji: ogrzewanie miejskie, pełny monitoring, rewitalizacja elewacji, instalacji i dachu.
Budynek położony przy ulicy Zielonej, w okolicy której powstaje tunel średnicowy i przystanki "łódzkiego metra", co daje gwarancję wzrostu wartości nieruchomości w najbliższych latach.
Zamykane i monitorowane podwórko z miejscami postojowymi.

Mieszkanie po profesjonalnym podziale i generalnym remoncie (pełny zakres: elektryka, hydraulika, nowa instalacja ogrzewania i grzejniki, gładzie, podłogi, okna, łazienki i kompletny sprzęt AGD).
Wynajmowane od kilku lat bez okresów pustostanu.
W 2025 roku wymieniona zabudowa kuchni, dodany piekarnik, przeprowadzone malowanie i wymiana zużytych mebli.
Do mieszkania przynależy miejsce parkingowe oraz komórka lokatorska.

Dzięki położeniu istnieje możliwość zamiany sposobu najmu na najem krótkoterminowy, co znacznie podniesie zwrot z inwestycji.

Dane mieszkania:
- powierzchnia mieszkania - 98,11 m2
- II piętro
- komórka lokatorska
- miejsce parkingowe
- ogrzewanie miejskie
- ścisłe centrum, bezpośrednio przy Piotrkowskiej i wydziałach UM i UŁ
- lokal posiada księgę wieczystą
- umowy podpisane do września 2026
- zarządzanie najmem gratis

Przychód miesięczny: 8600 złotych
Koszty wraz z energią: 2000 złotych

  • Na sprzedaż mieszkanie 6-pokojowe o powierzchni 98,11 m² piwnica, garaż/miejsce parkingowe, ogródek, osobna kuchnia
  • 2 piętro w 2-piętrowej kamienicy rok budowy 1905
  • Łódź, Polesie ul. Zielona
  • Mieszkanie w stanie do zamieszkania  
  • Odrębna własność z księgą wieczystą  
  • Wyposażenie piekarnik
  • Oferta bezpośrednio od właściciela dodana ponad miesiąc temu i zaktualizowana ponad tydzień temu
Ta nieruchomość może być Twoja od.. sprawdź
196000 zł (20%) Okres spłaty: 30 lat

Podobne mieszkania na sprzedaż

29
Mieszkanie 4-pokojowe Łódź Górna, ul. Kolumny

968 360

84

4 pok.

Poszukujesz mieszkania z ogrodem, które daje poczucie własnego domu? Ta oferta jest dla Ciebie! Na sprzedaż 4-pokojowe, dwupoziomowe mieszkanie o powierzchni 84,59 m² z prywatnym ogrodem 180 m², położone na zamkniętym osiedlu przy ul. Kolumny w dzielnicy Górna w Łodzi. Kameralny, 4-lokalowy apartame...

Zobacz ogłoszenie
11
Mieszkanie 3-pokojowe Łódź Polesie, ul. Stefana Żeromskiego

790 000

93

3 pok.

BEZPOŚREDNIO: Klimatyczne 93 m² w sercu Łodzi. 8495 zl za metr gotowego do wprowadzenia mieszkania, z parkingiem, 2 piwnicami! Odrestaurowana kamienica + parking! ​To nie jest zwykły lokal w bloku. To przestronny, wysoki (3 metry!) apartament w gruntownie odrestaurowanej kamienicy przy ul. Żeromskie...

Zobacz ogłoszenie
17
Mieszkanie 5-pokojowe Łódź Polesie, ul. Retkińska

945 000

126

5 pok.

Cena 945.000,00zł, tj. 7.500zł/m2 + garaż 25.000,00zł. Apartament przy ul. Retkińskiej w bezpośrednim sąsiedztwie Parku Na Zdrowiu, ZOO i Ogrodu Botanicznego, w pobliżu Aquaparku Fala i Atlas Areny. Obok przystanek autobusowy - szybki dojazd do Centrum; blisko przedszkole, szkoła, sklepy. Unikalne...

Zobacz ogłoszenie
20
Mieszkanie 4-pokojowe Łódź Andrzejów, ul. Macieja Rataja

990 000

82

4 pok.

Dzień dobry, Sprzedam środkowy szeregowiec o powierzchni 82 m² z ekspozycją okien północ-południe. Do mieszkania przynależą dwa miejsca parkingowe oraz ogródek ok. 300 m². Osiedle jest ogrodzone. Mieszkanie jest w pełni wykończone i wyposażone w sprzęty AGD. Na piętro prowadzą marmurowe schody, n...

Zobacz ogłoszenie
19
Mieszkanie 4-pokojowe Łódź Polesie, ul. Konstantynowska

980 000

89

4 pok.

Oferuję przestronne mieszkanie na sprzedaż w Łodzi. Powierzchnia wynosi 89 m² i znajduje się na 3. piętrze w budynku z 2013 roku. Mieszkanie składa się z 4 pokoi, w pełni wyposażonej kuchni oraz dwóch łazienek. Do dyspozycji masz również dwa balkony oraz miejsce parkingowe plus wiatę na samochód. W ...

Zobacz ogłoszenie
20
Mieszkanie 3-pokojowe Łódź Polesie, ul. Cmentarna

948 000

120

3 pok.

Oferuję na sprzedaż wyjątkowe, z bardzo dużym potencjałem, trzypokojowe mieszkanie o powierzchni 120 m², położone na ostatnim, 4. piętrze zadbanej kamienicy przy ul. Cmentarnej 1 w dzielnicy Łódź Polesie. Lokalizacja zapewnia doskonałą komunikację miejską - przystanek tramwajowy i autobusowy znajduj...

Zobacz ogłoszenie