Ogłoszenie usunięte

Kraków Prądnik Biały
ul. Stefana Banacha
1-pokojowe mieszkanie na sprzedaż

Kraków Prądnik Biały · 439 000 zł
Mieszkanie 1-pokojowe Kraków Prądnik Biały, ul. Stefana Banacha. Zdjęcie 1
Mieszkanie 1-pokojowe Kraków Prądnik Biały, ul. Stefana Banacha. Zdjęcie 1

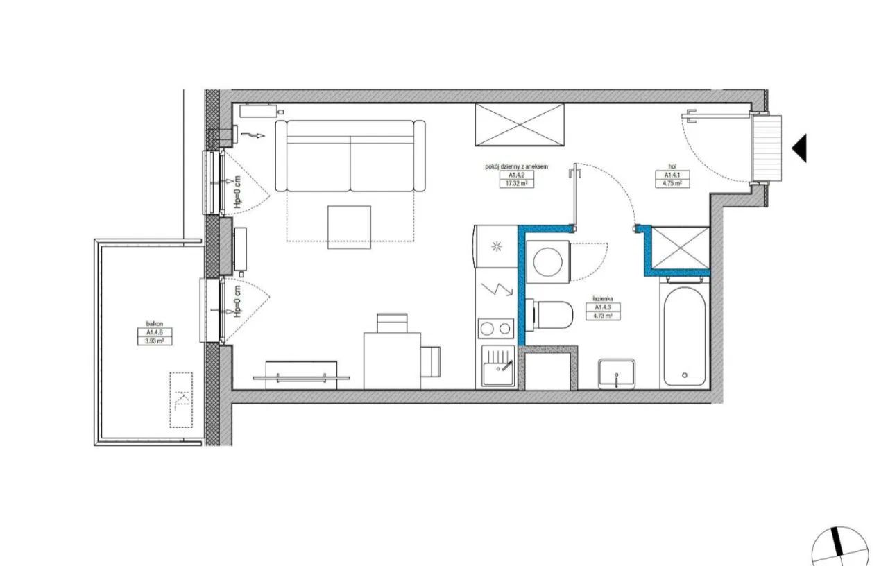
Do sprzedania kawalerka (stan deweloperski) położona w nowoczesnym budowanym aktualnie bloku na Prądniku Białym.

Mieszkanie składa się z:
- salon z aneksem kuchennym - 17,32 m2
- łazienka - 4,73 m2
- przedpokój do zabudowy - 4,75 m2
Mieszkanie położone jest na 1 pietrze. Do mieszkania przynależy balkon 3,82m2.
- umowa deweloperska gratis!
- zakup na kredyt bez ryzyka - gdy nie dostaniesz kredytu zwrot wpłaty do dewelopera
- ogrzewanie MPEC
- miejsce parkingowe w hali garażowej z ładowarką (za dopłata, preferencyjne warunku zakupu, zapytaj o rabat!)
- idealne polaczenie z centrum Krakowa - liczne linie tramwajowe.
- 4,5 km do Galerii Krakowskiej
- niski czynsz - ok. 380 zł
- wykończenie pod klucz za dopłata - preferencyjne ceny (po odebraniu inwestycji)

Cena 439000 zł.

Zapraszam do kontaktu!

Kamil Kozłowski

Zgodnie z ustawą o gospodarce nieruchomościami Rozdział 2, Art. 180, pkt 3. przed oglądnięciem nieruchomości należy podpisać standardową umowę pośrednictwa w kupnie. (USTAWA z dnia 21 sierpnia 1997 r. O gospodarce nieruchomościami).

  • Oferta z rynku pierwotnego
  • Na sprzedaż mieszkanie 1-pokojowe o powierzchni 26,80 m²
  • parter w 5-piętrowym bloku z windą z 2025 roku
  • Kraków, Prądnik Biały, ul. Stefana Banacha
  • Taras, piwnica, miejsce w hali garażowej, ogródek, aneks kuchenny
  • Mieszkanie wykończone (pod klucz), okna plastikowe
  • Odrębna własność z księgą wieczystą
  • Ogłoszenie biura nieruchomości  Właściciel postanowił powierzyć ofertę agencji nieruchomości.
5 dni temu
3
Mieszkanie 1-pokojowe Kraków Prądnik Biały

Kraków Prądnik Biały Mieszkanie na sprzedaż

1 pokój 27 3 piętro
452 700
16 767 zł / m²
ponad tydzień temu
4
Mieszkanie 1-pokojowe Kraków Prądnik Biały

Kraków Prądnik Biały Mieszkanie na sprzedaż

1 pokój 21 1 piętro Bez pośrednika
359 000
17 095 zł / m²
ponad miesiąc temu
15
Mieszkanie 2-pokojowe Kraków Prądnik Biały, ul. Zygmunta Glogera

Kraków Prądnik Biały ul. Zygmunta Glogera Mieszkanie na sprzedaż

2 pokoje 36 1 piętro
568 000
15 991 zł / m²
4 dni temu
4
Mieszkanie 1-pokojowe Kraków Prądnik Biały

Kraków Prądnik Biały Mieszkanie na sprzedaż

1 pokój 27 parter
440 051
16 298 zł / m²
4 dni temu
3
Mieszkanie 2-pokojowe Kraków Prądnik Biały

Kraków Prądnik Biały Mieszkanie na sprzedaż

2 pokoje 35 parter
518 800
14 823 zł / m²
ponad miesiąc temu
8
Mieszkanie 1-pokojowe Kraków Prądnik Biały, ul. ks. Józefa Meiera

Kraków Prądnik Biały ul. ks. Józefa Meiera Mieszkanie na sprzedaż

1 pokój 34 2 piętro
549 000
16 147 zł / m²