Mieszkanie na sprzedaż bez pośredników
ul. Józefa Wybickiego Kraków Krowodrza

Mieszkanie 3-pokojowe Kraków Krowodrza, ul. Józefa Wybickiego. Zdjęcie 1

Mieszkanie na sprzedaż bez pośredników Kraków Krowodrza ul. Józefa Wybickiego · 6 piętro

980 000
15 399 zł/m²
63
3 pok.
Kraków Krowodrza, Józefa Wybickiego - lokalizacja przybliżona
Bezpośrednio od właściciela

Jeśli nie potrzebujesz pośrednika, zaoszczędzisz około 29 400 zł. Potrzebujesz wsparcia? Skorzystaj z pomocy agenta.

Są mieszkania, które po prostu się ogląda… i są takie, w których od razu wyobrażasz sobie codzienne życie.
To mieszkanie przy ul. Wybickiego 3 w Krakowie należy do tej drugiej kategorii.

Już od wejścia czuć spokój i harmonię przestrzeni - naturalne dębowe parkiety, uporządkowany układ i światło, które dobrze pracuje w ciągu dnia. To wnętrze nie jest przypadkowe - jest funkcjonalne, wygodne i gotowe, by stać się domem.

Salon staje się naturalnym centrum życia - miejscem spotkań, odpoczynku i codzienności.
Dwie oddzielne sypialnie dają prywatność i elastyczność - dla rodziny, pracy zdalnej lub jako inwestycja.
Osobna kuchnia pozwala zachować komfort organizacji i niezależność przestrzeni.

Balkon, który robi różnicę
Jednym z największych atutów jest duży, około 8-metrowy balkon - przestrzeń, która realnie poszerza mieszkanie.
Poranna kawa, wieczorny odpoczynek, chwila ciszy po dniu - to miejsce szybko staje się ulubioną częścią domu.

Cisza i jakość życia
Mimo świetnej lokalizacji, mieszkanie pozostaje wyjątkowo ciche.
To efekt zarówno usytuowania, jak i charakteru budynku - większość mieszkań zajmują właściciele, co przekłada się na spokojną, uporządkowaną atmosferę.

Komfort codzienności
W cenie i strukturze nieruchomości:
- dodatkowe miejsce postojowe na terenie zamkniętym (szlaban)
- murowany garaż (15,9 m²) z prądem i wodą jest opcją dodatkowo płatną w cenie 150.000 zł

To rzadkie połączenie, które znacząco podnosi wygodę życia.

Lokalizacja - wszystko pod ręką
Ul. Wybickiego to miejsce, które łączy spokój z dostępnością.
W zasięgu kilku minut:
- komunikacja miejska: tramwaj 250 m, autobus 100m, pętla autobusowo tramwajowa ok 650m
- Dworzec PKP/PKS oddalony o 4 przystanki
- Galeria Krakowska oddalona o 4 przystanki
- sklepy (Biedronka 550m, Netto 350m, Kaufland 450m, Żabka 300m)
- poczta, stacja benzynowa ok 300 m
- szpital, szkoła, przedszkole, żłobki w promieniu kilkuset metrów
- lotnisko Kraków - Balice ok 20 minut samochodem.
- Szybki dojazd do centrum sprawia, że to lokalizacja praktyczna zarówno na co dzień, jak i inwestycyjnie.

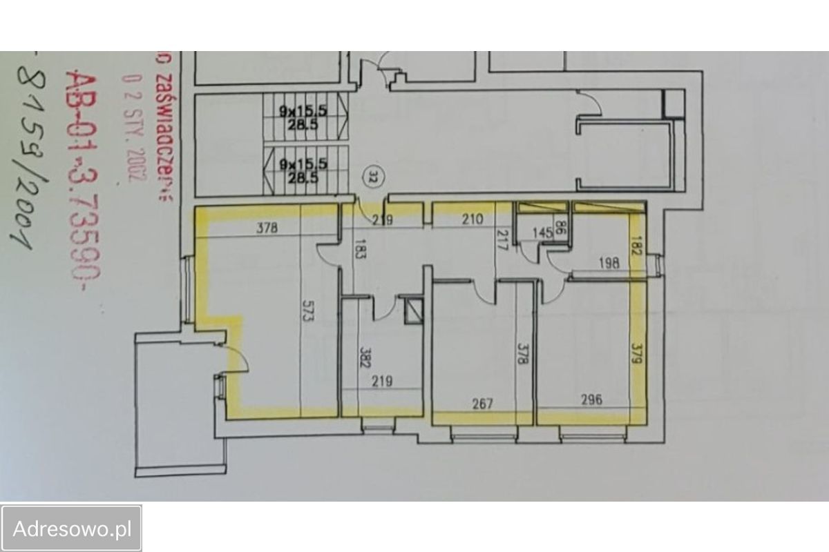
Parametry
- powierzchnia użytkowa: 63,64 m²
- dodatkowo: piwnica 4,32 m²
- łącznie: 67,96 m²
- 3 niezależne pokoje + oddzielna kuchnia
- 6 piętro
- ogrzewanie i woda z sieci miejskiej
- czynsz: ok. 934 zł

Stan prawny
- spółdzielcze własnościowe prawo do lokalu
- garaż w tej samej księdze wieczystej

  • Na sprzedaż mieszkanie 3-pokojowe o powierzchni 63,64 m² balkon, piwnica, garaż/miejsce parkingowe, osobna kuchnia
  • 6 piętro w 7-piętrowym bloku z windą, rok budowy 1990
  • Kraków, Krowodrza ul. Józefa Wybickiego
  • Mieszkanie w stanie do zamieszkania okna plastikowe
  • Spółdzielcze własnościowe  
  • Oferta bezpośrednio od właściciela dodana ponad miesiąc temu i zaktualizowana ponad tydzień temu
Ta nieruchomość może być Twoja od.. sprawdź
196000 zł (20%) Okres spłaty: 30 lat

Podobne mieszkania na sprzedaż

15
Mieszkanie 2-pokojowe Kraków Krowodrza, ul. Wrocławska

975 000

48

2 pok.

Oferuję na sprzedaż przestronne dwupokojowe mieszkanie z osobną kuchnią, przedpokojem oraz łazienką o łącznej powierzchni 48,8 m². Mieszkanie znajduje się na 5. piętrze w 6-piętrowym budynku z 2015 roku. Jest w pełni umeblowane, z nowoczesnym wyposażeniem: pralka, zmywarka, lodówka, kuchenka i pie...

Zobacz ogłoszenie
19
Mieszkanie 2-pokojowe Kraków Krowodrza, ul. Poznańska

980 000

42

2 pok.

Sprzedam przestronne mieszkanie przy ulicy Poznańskiej. Mieszkanie jest jasne, 2 pokojowe z dużym balkonem (10m2) z widokiem na park. Znajduje się na 6. piętrze. Bardzo dobra lokalizacja, pieszo około 25 minut do Rynku. W pobliżu przystanki autobusowe, sklepy, piekarnie, usługi. Kuchnia jest w pe...

Zobacz ogłoszenie
40
Mieszkanie 3-pokojowe Kraków Krowodrza, ul. Władysława Podkowińskiego

999 000

66

3 pok.

Zapraszam serdecznie do kontaktu.

Zobacz ogłoszenie
34
Mieszkanie 3-pokojowe Kraków Krowodrza, ul. Kazimierza Wierzyńskiego

940 000

79

3 pok.

| Duże 3 pokoje 79,8 m² | balkon | komórka | garaż | Wierzyńskiego | Kraków Na sprzedaż przestronne mieszkanie 3-pokojowe o powierzchni 79,8 m² z balkonem , położone na parterze w budynku z 2007 roku przy ul. Wierzyńskiego. Dodatkowym atutem nieruchomości jest komórka lokatorska oraz moż...

Zobacz ogłoszenie
18
Mieszkanie 2-pokojowe Kraków Krowodrza, ul. Poznańska

977 200

56

2 pok.

Do sprzedaży dwupokojowy apartament przy ulicy Poznańskiej. Apartament znajduje się w prestiżowej inwestycji Kamienice Herbowe. Niska zabudowa osiedla zapewnia dostęp dużej ilości naturalnego światła. Portiernia, całodobowa ochrona i monitoring dają gwarancję bezpieczeństwa. Mieszkanie było wykańcza...

Zobacz ogłoszenie
20
Mieszkanie 2-pokojowe Kraków Krowodrza, ul. Chocimska

990 000

56

2 pok.

Sprzedam bezpośrednio 2-pokojowe, w pełni rozkładowe mieszkanie na 2. piętrze w kameralnym budynku z cegły przy ul. Chocimskiej. Mieszkanie jest wysokie (2,75 m), obustronne i bardzo dobrze doświetlone. Niezależny dostęp do każdego z pomieszczeń sprawia, że jest to świetna propozycja pod inwestycję...

Zobacz ogłoszenie