Mieszkanie na sprzedaż bez pośredników
ul. Szwedzka Bydgoszcz Szwederowo

Mieszkanie 2-pokojowe Bydgoszcz Szwederowo, ul. Szwedzka. Zdjęcie 1

Mieszkanie na sprzedaż bez pośredników Bydgoszcz Szwederowo ul. Szwedzka · 1 piętro

295 000
8 065 zł/m²
36
2 pok.
Bydgoszcz Szwederowo, Szwedzka - lokalizacja przybliżona
Bezpośrednio od właściciela

Jeśli nie potrzebujesz pośrednika, zaoszczędzisz około 8 900 zł. Potrzebujesz wsparcia? Skorzystaj z pomocy agenta.

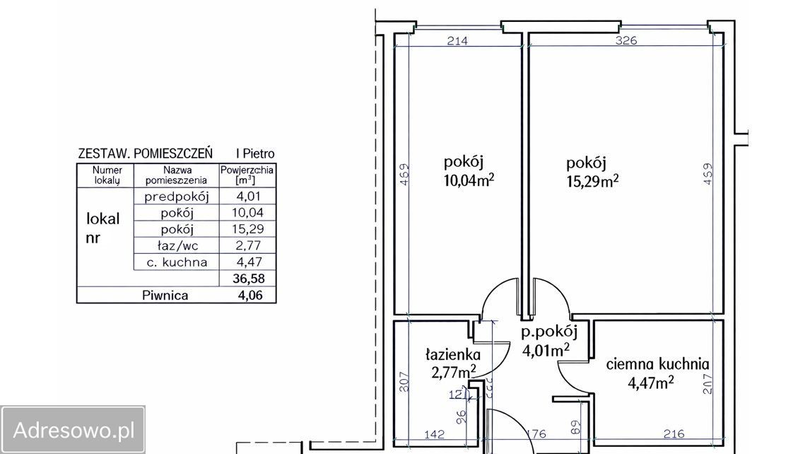
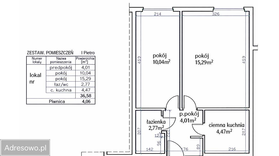
Na sprzedaż mieszkanie własnościowe o powierzchni 36,58 m², położone w Bydgoszczy przy ul. Szwedzkiej. Lokal znajduje się na I piętrze, w niskim bloku na osiedlu z pełną infrastrukturą i zielonym otoczeniem.

Mieszkanie składa się z:
- dwóch oddzielnych pokoi (10,04m² i 15,29m²)
- osobnej kuchni 4,47m²
- łazienki 2,77m²
- korytarza 4,01m².

Do mieszkania przynależy piwnica 4,6m².
Układ jest funkcjonalny i daje duże możliwości aranżacyjne - zarówno dla własnych potrzeb mieszkaniowych, jak i pod inwestycję.
Mieszkanie zadbane, nadające się do zamieszkania, z potencjałem do odświeżenia lub zmiany układu według indywidualnych preferencji.

Budynek i otoczenie:
- niska zabudowa,
- miejsca parkingowe dla mieszkańców dostępne przy budynku,
- spokojna, zielona okolica,
- w pobliżu sklepy, punkty usługowe, komunikacja miejska, szkoły i przedszkola.

Dodatkowe informacje:
- mieszkanie dostępne od zaraz,
- forma własności: pełna własność,
- piwnica w cenie,
- idealne jako pierwsze mieszkanie, dla pary, singla lub jako inwestycja na wynajem.

Pośrednikom dziękuję, niezależnie od formy współpracy.

  • Na sprzedaż mieszkanie 2-pokojowe o powierzchni 36,58 m² piwnica, osobna kuchnia
  • 1 piętro w 4-piętrowym bloku bez windy, rok budowy 1968
  • Bydgoszcz, Szwederowo ul. Szwedzka
  • Mieszkanie w dobrym stanie okna plastikowe
  • Odrębna własność z księgą wieczystą  
  • Oferta bezpośrednio od właściciela dodana ponad miesiąc temu i zaktualizowana ponad tydzień temu
Ta nieruchomość może być Twoja od.. sprawdź
59000 zł (20%) Okres spłaty: 30 lat

Podobne mieszkania na sprzedaż

4
Mieszkanie 1-pokojowe Bydgoszcz Szwederowo, ul. Stanisława Leszczyńskiego

252 000

30

1 pok.

Ładna przytulna kawalerka/ 30metrów/ po generalnym remoncie/ kuchnia/ łazienka/ sypialnia/ piwnica Leszczyńskiego/Bydgoszcz/wokół wiele nowych inwestycji/ SPRZEDAM BEZPOŚREDNIO BEZ ŻADNEJ PROWIZJI! LUBIĘ SIĘ TARGOWAĆ. ZAPRASZAM DO ROZMÓW! Zdjęcia przedstawiają rzeczywisty stan mieszkania. Kawalerka...

Zobacz ogłoszenie
9
Mieszkanie 2-pokojowe Bydgoszcz Szwederowo, ul. ks. Ignacego Skorupki

279 000

38

2 pok.

Ogłoszenie prywatne. Proszę o niekontaktowanie się agencji i pośredników. Na sprzedaż funkcjonalne 2-pokojowe mieszkanie o powierzchni 38,6 m², zlokalizowane w ocieplonej kamienicy z wyremontowanym dachem. Lokal stanowi pełną własność, jest wolny od obciążeń i nie wymaga dodatkowych nakładów finans...

Zobacz ogłoszenie
13
Mieszkanie 3-pokojowe Bydgoszcz Szwederowo

379 000

46

3 pok.

Tylko w naszym biurze! Na sprzedaż zadbane, w pełni umeblowane mieszkanie o powierzchni 46,9 m², położone na 3. piętrze w 4 piętrowym bloku zlokalizowane na popularnym i chętnie wybieranym osiedlu Szwederowo. Najważniejsze atuty mieszkania: -Oddzielna kuchnia -3 niezależne pokoje – ustawne i jasn...

Zobacz ogłoszenie
7
Mieszkanie 1-pokojowe Bydgoszcz Szwederowo, ul. Antoniego Chołoniewskiego

239 000

28

1 pok.

Mam do sprzedania kawalerkę 28 m2 na 4. piętrze w bloku. Mieszkanie jest do remontu lub odświeżenia. Została wymieniona instalacja elektryczna, okna plastikowe. Na ścianach gładzie i tapety, panele w pokoju do wymiany. Sąsiedzi mili i spokojni. Do Arkad 5 minut, a do Starego Rynku 10 minut. Wszędzie...

Zobacz ogłoszenie
12
Mieszkanie 1-pokojowe Bydgoszcz Szwederowo, park gen. Jana Henryka Dąbrowskiego

329 000

37

1 pok.

Sprzedaż 2 Kawalerek całość 37,65 m2 Trzecie piętro w Bydgoszczy w dzielnicy Szwederowo ul. Dąbrowskiego 15 Mieszkania pod inwestycję do dalszego wynajmu. Opis mieszkania: Kawalerka 1 Powierzchnia: 17m2 Kuchnia z salonem z zabudową i sprzętem Łazienka z wc prysznic Kawalerka 2 Powierzchnia 20,65m2 ...

Zobacz ogłoszenie
8
Mieszkanie 1-pokojowe Bydgoszcz Szwederowo, ul. Stanisława Leszczyńskiego

245 000

28

1 pok.

🏠 [NA SPRZEDAŻ] Stylowa kawalerka w zrewitalizowanej kamienicy – Bydgoszcz, Szwederowo! Szukasz gotowca inwestycyjnego lub przytulnego pierwszego mieszkania? Mam przyjemność zaprezentować nieruchomość przy ul. Leszczyńskiego 24, która łączy urok zrewitalizowanej kamienicy z nowoczesnym standardem. D...

Zobacz ogłoszenie