Nieruchomość komercyjna na sprzedaż bez pośredników
ul. Aleje Jerozolimskie Warszawa Ochota

Lokal Warszawa Ochota, ul. Aleje Jerozolimskie. Zdjęcie 1

Nieruchomość komercyjna na sprzedaż bez pośredników Warszawa Ochota ul. Aleje Jerozolimskie

2 090 000
12 590 zł/m²
166
Warszawa Ochota, Aleje Jerozolimskie - lokalizacja przybliżona
Bezpośrednio od właściciela

Jeśli nie potrzebujesz pośrednika, zaoszczędzisz około 62 700 zł. Potrzebujesz wsparcia? Skorzystaj z pomocy agenta.

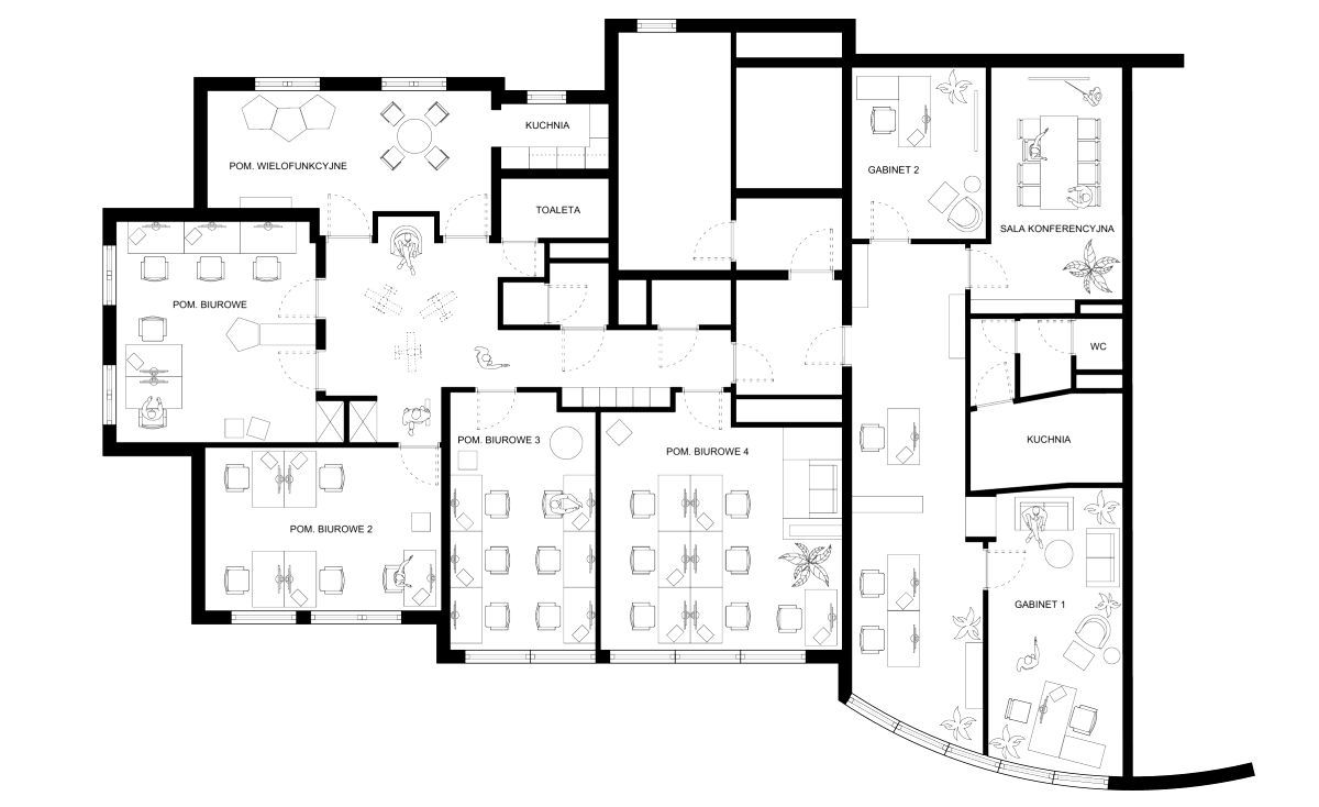
Podstawowe informacje Rok budowy: 2000 - Tytuł prawny: własność - Przedmiotem sprzedaży jest lokal niemieszkalny o powierzchni 165,89 m2. Możliwość powiększenia o sąsiadujący lokal niemieszkalny o powierzchni 104 m2. - Gruntowny remont w 2021 roku - Kondygnacja 3 (piętro 2) - Budynek o funkcji mieszanej (mieszkaniowo - biurowy) w zarządzaniu przez Wspólnotę.

Podstawowe informacje

Rok budowy: 2000
- Tytuł prawny: własność
- Przedmiotem sprzedaży jest lokal niemieszkalny o powierzchni 165,89 m2. Możliwość powiększenia o sąsiadujący lokal niemieszkalny o powierzchni 104 m2.
- Gruntowny remont w 2021 roku
- Kondygnacja 3 (piętro 2)
- Budynek o funkcji mieszanej (mieszkaniowo - biurowy) w zarządzaniu przez Wspólnotę

Lokalizacja

- Dworzec Zachodni - 1 km
- Metro Rondo Daszyńskiego - 1,5 km
- Pałac Kultury i Nauki - 2,5 km
- Sklepy, restauracje, przychodnie medyczne w odległości kilkuset metrów

  • ul. Aleje Jerozolimskie, Warszawa Ochota  
  • Na sprzedaż lokal o powierzchni 166 m²  
  • Oferta bezpośrednio od właściciela dodana ponad miesiąc temu
Ta nieruchomość może być Twoja od.. sprawdź
418000 zł (20%) Okres spłaty: 30 lat

Podobne nieruchomości komercyjne na sprzedaż

4
Lokal Warszawa Targówek

2 099 999

267

Zainwestuj w pewne źródło stabilnego dochodu! TOP LOKALIZACJA - stały, waloryzowany dochód! Parterowy budynek wraz z działką wynajęty przez stabilnych sieciowych najemców, m.in. Żabka, DHL, DPD, Allegro. Obok lokalu znajdują się olbrzymie osiedla mieszkaniowe, szkoły, instytucje lecznicze i zdrowot...

Zobacz ogłoszenie
1
Biuro Warszawa Praga-Południe

2 050 000

257

Samodzielne biuro położone jest na pierwszym piętrze, z wejściem z niezależnej klatki schodowej. Powierzchnia jest podzielona i składa się z 8 pokoi. 3 wc, aneksu kuchennego, pom. gospodarczego, korytarza i klatki schodowej. Do lokalu przynależy też piwnica o pow. ok.6 m2. Klimatyzacja w pomieszczen...

Zobacz ogłoszenie
19
Lokal Warszawa Wola, ul. Obozowa

2 100 000

105

LOKAL USŁUGOWY NA SPRZEDAŻ - WARSZAWA WOLA OFERTA NA WYŁĄCZNOŚĆ Na sprzedaż atrakcyjny lokal usługowy o powierzchni ok. 105 m², położony w nowoczesnym apartamentowcu na warszawskiej Woli, w rejonie ulicy Obozowej, w otoczeniu licznej zabudowy mieszkaniowej. Budynek został zrealizowany przez renomowa...

Zobacz ogłoszenie
4
Lokal Warszawa Bielany, ul. Heroldów

2 100 000

106

Lokal użytkowy na warszawskich Bielanach - 106 m kw. - ogródek 22 m kw. - miejsce postojowe w garażu podziemnym. Solidny najemca zapewniający regularny dochód od pierwszych dni. Usytuowany w atrakcyjnym miejscu przy skrzyżowaniu ulic z doskonałą widocznością. Niska podaż lokali użytkowych w okoli...

Zobacz ogłoszenie
10
Lokal Warszawa Wilanów, al. Wilanowska

2 050 000

101

Do sprzedaży oferujemy atrakcyjny lokal użytkowy o powierzchni 101 m², położony na parterze budynku przy al. Wilanowskiej 9 w Warszawie. Duże witryny zapewniają doskonałą ekspozycję i widoczność z ulicy. W lokalu obecnie prowadzona jest działalność fitness (siłownia). Lokal w stanie do indywidualne...

Zobacz ogłoszenie
5
Lokal Warszawa Bemowo, ul. Widawska

2 100 000

209

Oferuję Państwu bezpośrednio do sprzedaży lokal usługowo - biurowo - handlowy usytuowany na Warszawskim Bemowie. Lokale znajduje się przy ul. Widawskiej 25, w inwestycji mieszkaniowej z roku 2003. Doskonała lokalizacja pod wszelkiego rodzaju usługi, biuro, e-commerce. Lokale znajdują się na parterz...

Zobacz ogłoszenie