Nieruchomość komercyjna na sprzedaż bez pośredników
ul. Ignacego Krasickiego Kraków Podgórze

Lokal Kraków Podgórze, ul. Ignacego Krasickiego. Zdjęcie 1

Nieruchomość komercyjna na sprzedaż bez pośredników Kraków Podgórze ul. Ignacego Krasickiego

520 000
10 766 zł/m²
48
Kraków Podgórze, Ignacego Krasickiego - lokalizacja przybliżona
Bezpośrednio od właściciela

Jeśli nie potrzebujesz pośrednika, zaoszczędzisz około 15 600 zł. Potrzebujesz wsparcia? Skorzystaj z pomocy agenta.

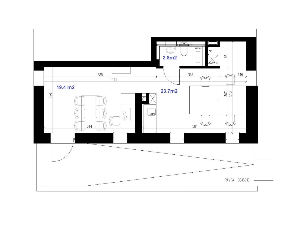
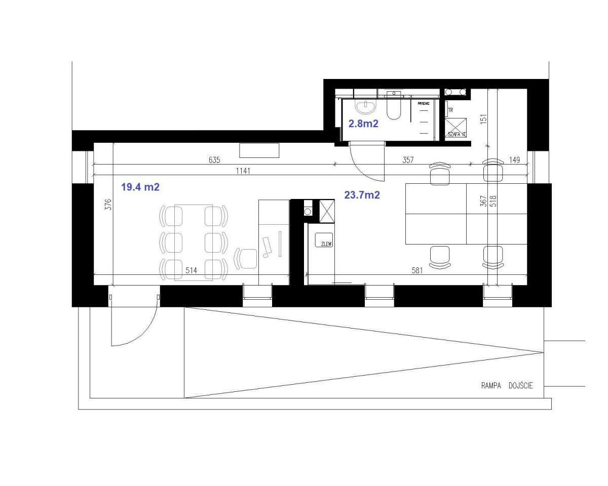
Funkcjonalny i komfortowy lokal idealny pod działalność biurową, projektową, IT, gabinet, studio lub inną nieuciążliwą działalność gospodarczą.

Lokal położony jest w przyziemiu budynku wielorodzinnego z bezpośrednim dojściem z ulicy oraz przestrzeni publicznej, w otoczeniu zieleni miejskiej.

Oferuje lokal o wysokim standardzie, po kompleksowym remoncie w latach 2022-23 roku. Nieruchomość była przygotowywana „dla siebie” jako profesjonalna przestrzeń inżynierska, co gwarantuje jakość użytych materiałów i instalacji. Sprzedaż wynika bezpośrednio z restrukturyzacji firmy i chęci uwolnienia kapitału na nowe inwestycje.

Najważniejsze atuty nieruchomości

Po generalnym remoncie – nowe instalacje sanitarne, elektryczne i grzewcze

Nowe posadzki z izolacją, ściany i sufity, nowe okna i drzwi wejściowe

Wysokość pomieszczeń: 252 cm – przestrzeń wygodna i jasna

Lokal suchy, bez wilgoci

Stała temperatura ok. 20°C latem (ekspozycja północna) – bez potrzeby klimatyzacji

Niskie koszty utrzymania – ok. 550 zł/mies.

Funkcjonalny układ

2 niezależne pomieszczenia użytkowe + Toaleta + Aneks gospodarczy i kuchenny

Okna na północ, zachód i wschód

Wygodne dojście zewnętrzną rampą

Wyposażenie stałe w cenie

Wbudowane meble ze sklejki wodoodpornej

Designerskie oświetlenie Aquaform

Armatura i sanitariaty Grohe

Szyby antywłamaniowe klasy P2

Technologia i bezpieczeństwo:

Nowa instalacja oświetleniowa

System alarmowy

Okablowanie LAN do 7 stanowisk komputerowych

Szafa rack + switch + skonfigurowana sieć wewnętrzna

Dostęp do światłowodu / sieci 5G

Możliwość rozbudowy o CCTV i TV

Przyłącze energi - Taron taryfa C12a - 10kW

Lokalizacja – absolutny TOP

ul. Ignacego Krasickiego 21, KrakówPodgórze

Rondo Matecznego – 300 m

Bulwary Wiślane – 500 m

Rynek Podgórski – 8 minut

Świetna komunikacja i prestiżowa okolica w centrum miasta.

Informacje prawne

Lokalu użytkowy wynajmuje bezposrednio własciciel nieruchomosci, brak możliwości meldunkwocyh w lokalu

Lokal wolny od wad prawnych i technicznych

Cena brutto, możliwość odliczenia VAT (23%)

Opłaty stałe czynsz okolo 540 zł/miesiac ( Co,Woda,Fundusz Remontowy ) , Tauron taryfa C12A -10kW

Oferuje lokal o wysokim standardzie, po kompleksowym remoncie w latach 2022-23 roku. Nieruchomość była przygotowywana „dla siebie” jako profesjonalna przestrzeń inżynierska, co gwarantuje jakość użytych materiałów i instalacji. Sprzedaż wynika bezpośrednio z restrukturyzacji firmy i chęci uwolnienia kapitału na nowe inwestycje.

Szczegółowe informacje oraz dodatkowe zdjęcia udostępnię telefonicznie [numer] .

Oględziny możliwe – termin do uzgodnienia.

ul. Ignacego Krasickiego 21, Kraków Podgórze

Oferta dodana bezpośrednio przez właściciela.

  • ul. Ignacego Krasickiego, Kraków Podgórze  
  • Na sprzedaż lokal o powierzchni 48,30 m²  
  • Cena do negocjacji  
  • Oferta bezpośrednio od właściciela dodana ponad miesiąc temu i zaktualizowana ponad tydzień temu
Ta nieruchomość może być Twoja od.. sprawdź
104000 zł (20%) Okres spłaty: 30 lat

Podobne nieruchomości komercyjne na sprzedaż

9
Lokal Kraków Podgórze

580 000

50

Lokal Usługowy (50m2) Pizzeria-Kawiarnia Działka na Sprzedaż w Krakowie pod Kopcem Krakusa w terenie zabudowy usługowej - Łącznie 282 m2 !!! Możliwe jest także postawienia nowego budynku do 3 pięter wys. !!! Atuty: - Wiele możliwości adaptacji placu i lokali użytkowych - Odbiór SANEPID - Zgoda n...

Zobacz ogłoszenie
8
Lokal Kraków Dębniki, ul. Leona Petrażyckiego

490 000

70

Sprzedam lokal usługowy na ul. Leona Petrażyckiego o powierzchni 70 m2. Lokal znajduję się na parterze nowym bloku, wejście bezpośrednio z ulicy, (witryny reklamowe dostępne) prywatny parking przed posesją. Lokal wymaga własnej aranżacji. Lokal w sprzedaży bezpośrednio od właściciela. Możliwość zoba...

Zobacz ogłoszenie
8
Lokal Kraków Podgórze, ul. Malborska

575 000

43

Sprzedam lokal handlowo-usługowy - wejście od frontu, pow. 20 m², z zapleczem socjalnym. Wraz z garsonierą mieszkalną (może być na cele biurowe), 23 m². Lokal z osobnym wejściem przez klatkę schodową od podwórka. Właściciel, bez pośredników. Ul. Malborska, przy parku Wola Duchacka....

Zobacz ogłoszenie
1
Lokal Kraków Kazimierz, ul. Halicka

480 000

27

Sprzedam lokal użytkowy zlokalizowany na parterze nowoczesnego apartamentowca wybudowanego w 2018 roku przy ulicy Halickiej 5 w Krakowie (dzielnica Kazimierz). Nieruchomość: Na powierzchnię 26,38 m2 składają się: • Pomieszczenie biurowe ok. 20 m2 • Zaplecze z lodówką i zmywarką • Toaleta Dodatkowo ...

Zobacz ogłoszenie
7
Lokal Kraków Podgórze, ul. Bonarka

zapytaj

430

Lokal o powierzchni 430 m²– położony na 3 piętrze, dostępny od stycznia 2025. To idealne miejsce dla firm, które potrzebują większej powierzchni do efektywnej pracy, z możliwością dostosowania układu do specyfiki działalności. Istnieje możliwość podziału przestrzeni lokalu pomiędzy dwóch najemców – ...

Zobacz ogłoszenie
8
Lokal Kraków Podgórze, ul. Malborska

645 000

64

OFERTA INWESTYCYJNA - LOKAL USŁUGOWY Z MIESZKANIEM, BEZCZYNSZOWE - KRAKÓW, PODGÓRZE DUCHACKIE --- Cena: 645 000 zł Powierzchnia całkowita: 64 m² + 35 m² strychu Piętro: Parter Gotowy dochód pasywny + potencjał rozbudowy. --- Na sprzedaż atrakcyjna nieruchomość inwestycyjna składająca się z dwóc...

Zobacz ogłoszenie