Dom na sprzedaż bez pośredników
ul. Storczykowa Wrocław Ołtaszyn

dom wolnostojący, 5 pokoi Wrocław Ołtaszyn, ul. Storczykowa. Zdjęcie 1

Dom na sprzedaż bez pośredników Wrocław Ołtaszyn ul. Storczykowa

1 699 000
7 829 zł/m²
217
5 pok.
Wrocław Ołtaszyn, Storczykowa - lokalizacja przybliżona
Bezpośrednio od właściciela

Jeśli nie potrzebujesz pośrednika, zaoszczędzisz około 51 000 zł. Potrzebujesz wsparcia? Skorzystaj z pomocy agenta.

OFERTA PRYWATNA – OSZCZĘDZASZ ok. 70 000 zł prowizji!

Sprzedajemy nasz dom wolnostojący o powierzchni 217 m², położony na działce 581 m² w spokojnej części Wrocławia – na Ołtaszynie. To miejsce, w którym wygodnie mieszka się rodzinie, a jednocześnie daje ono możliwość prowadzenia własnej działalności.

Największym atutem domu jest przyziemie o powierzchni ok. 80 m² z osobnym wejściem. Przestrzeń ta była wykorzystywana niezależnie od części mieszkalnej i świetnie sprawdzi się jako biuro, gabinet, pracownia, studio, mała firma lub dodatkowe mieszkanie.

W przyziemiu znajduje się:

kuchnia
toaleta z umywalką
kilka pomieszczeń użytkowych
nowy piec z kotłem
Dzięki oddzielnemu wejściu część ta może funkcjonować zupełnie niezależnie od domu.

Część mieszkalna jest wygodna i przestronna – idealna dla rodziny. W domu jest kilka pokoi, które można wykorzystać jako sypialnie, pokój dla dzieci, gabinet lub pokój gościnny.

Dom stoi na działce 581 m², która daje przestrzeń na ogród, miejsce do wypoczynku lub zabawy dla dzieci.

Ołtaszyn to spokojna, zielona dzielnica z dobrą infrastrukturą – w pobliżu są sklepy, szkoły, przedszkola i przystanki komunikacji miejskiej.

To miejsce będzie idealne dla osób, które szukają domu do życia, a jednocześnie chcą mieć przestrzeń na własną działalność.

Lokalizacja

Dom znajduje się w spokojnej i zielonej części Wrocławia – w dzielnicy Ołtaszyn.

W najbliższej okolicy znajdują się:

szkoła podstawowa – ok. 600 m
przedszkole
sklepy i punkty usługowe
kościół
przystanki autobusowe
To bardzo dobra lokalizacja dla rodzin – cicha uliczka bez ruchu przelotowego, a jednocześnie szybki dojazd do centrum miasta i autostrady A4.

Opis nieruchomości

Na sprzedaż dom wolnostojący, 3-kondygnacyjny o powierzchni 217 m², położony na działce 581 m².

Dom jest idealny zarówno dla rodziny, jak i dla osób prowadzących działalność gospodarczą.

Dużym atutem jest przestronne przyziemie z osobnym wejściem, które może służyć jako:

biuro
gabinet
pracownia
salon usługowy
niezależne mieszkanie pod wynajem
Dodatkowym atutem jest instalacja trójfazowa (380V).

Remonty i modernizacje

W latach 2008–2012 wykonano gruntowny remont domu, obejmujący:

ocieplenie budynku
wymianę okien i parapetów
częściową wymianę instalacji grzewczej
częściową wymianę instalacji kanalizacyjnej
W 2024 roku:

wymieniono część podłóg
zamontowano nowy piec z kotłem
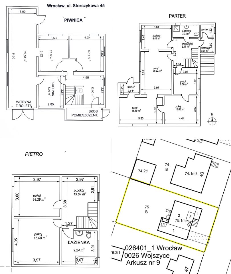
Układ pomieszczeń

Przyziemie – ok. 80 m²

wysokość 2,09–2,20 m

kuchnia – 8,81 m²
pokój – 13,18 m²
łazienka – 3,64 m²
pomieszczenie gospodarcze / dawny garaż – 29,42 m²
korytarz – 6,40 m²
kotłownia – 8,60 m²
przedsionek – 8,97 m²
Wysoki parter – 78,53 m²

wysokość 2,63–2,66 m

salon – 29,77 m²
pokój z kominkiem – 13,42 m²
pokój – 9,67 m²
kuchnia – 9,38 m²
łazienka – 6,39 m²
przedpokój – 9,90 m²
Piętro – 45,11 m²

wysokość 2,59–2,61 m

pokój – 13,18 m²
pokój – 13,12 m²
łazienka – 6,39 m²
przedpokój z aneksem kuchennym – 12,42 m²
Dodatkowe atuty

taras od strony południowej – ok. 30 m²
2 balkony (od frontu i od ogrodu)
duża działka 581 m²
spokojna uliczka
nowy piec
instalacja 3-fazowa
możliwość prowadzenia działalności
Dom jest częściowo do odświeżenia lub remontu w zależności od oczekiwanego standardu.

Można w nim zamieszkać praktycznie od razu (po wykonaniu mebli kuchennych).

Potencjał rozbudowy

Istnieje możliwość rozbudowy domu poprzez wykonanie skośnego dachu i zabudowę tarasu, co może zwiększyć powierzchnię o ok. 80 m².

Dom można również podzielić na kilka mieszkań z niezależną klatką schodową.

Ważna informacja: całość domu jest w pełni zalegalizowana, co nie jest oczywiste w wielu domach typu "kostka PRL".

Dlaczego ten dom jest atrakcyjny

Dom wolnostojący (nie bliźniak)

pełna prywatność
brak wspólnej ściany z sąsiadem
lepsze doświetlenie
Duża działka – 581 m²

więcej przestrzeni niż przy nowych bliźniakach
możliwość aranżacji ogrodu, tarasu, altany lub placu zabaw
Bardzo dobra cena za m²

ok. 8000 zł/m²

Dla porównania:

bliźniaki w tej okolicy osiągają zazwyczaj 10 000 – 13 000 zł/m².

  • ul. Storczykowa, Wrocław Ołtaszyn  
  • Na sprzedaż dom wolnostojący o powierzchni 217 m², 5 pokoi wybudowany w 1975 roku
  • Sizing Streamline Icon: https://streamlinehq.com
    Działka 581 m²  
  • Budynek w stanie do zamieszkania, z osobną kuchnią  
  • Balkon, piwnica  
  • Ogrzewanie gazowe
  • Materiał budowy cegła
  • Dach papa
  • Okna plastikowe
  • Dojazd utwardzony
  • Ogrodzenie metalowe
  • Media woda, kanalizacja, prąd, gaz
  • Oferta bezpośrednio od właściciela dodana ponad miesiąc temu i zaktualizowana dzisiaj
Ta nieruchomość może być Twoja od.. sprawdź
340000 zł (20%) Okres spłaty: 30 lat

Podobne domy na sprzedaż

21
bliźniak, 5 pokoi Wrocław Krzyki, ul. Arabska

1 689 000

190

5 pok.

Do sprzedania bardzo ładny dom w zabudowie bliźniaczej, o łącznej powierzchni 190 m2. Nieruchomość usytuowana jest na wrocławskich Krzykach, niedaleko Parku Bieńkowickiego. Dom został wybudowany pod koniec lat 80-tych, na działce o powierzchni 337 m2. W 2020 r. dom został ocieplony, zyskał nową ele...

Zobacz ogłoszenie
17
dom szeregowy, 6 pokoi Wrocław Krzyki, ul. Połabian

1 700 000

300

6 pok.

Sprzedam dom w zabudowie szeregowej.  Doskonała lokalizacja, cicha spokojna okolica. W. bezpośrednim sąsiedztwie centrum handlowe Bielany. 

Zobacz ogłoszenie
13
bliźniak, 8 pokoi Wrocław Ołtaszyn, ul. Turkusowa

1 590 000

220

8 pok.

Przestronny dom z potencjałem - Wrocław, Ołtaszyn, ul. Turkusowa Na sprzedaż dom jednorodzinny w zabudowie bliźniaczej, położony w prestiżowej i zielonej części Wrocławia na osiedlu Ołtaszyn (Krzyki). Nieruchomość idealna dla dużej rodziny oraz poszukujących domu z możliwością wydzielenia niezależne...

Zobacz ogłoszenie
2
dom wolnostojący Wrocław Strachocin

1 699 000

280

Na sprzedaż 4-kondygnacyjny dom wolnostojący o powierzchni 280 m², zlokalizowany na Strachocinie. Nieruchomość przestronna, posiadająca wiele pomieszczeń. Działka: 502 m². - 2 garaże - Piwnica - Prąd - Gaz - Woda - Kanalizacja - Klimatyzacja - Internet światłowodowy od 2 dostawców - Telefon - Tele...

Zobacz ogłoszenie
3
dom szeregowy, 5 pokoi Wrocław, ul. Litewska

1 680 000

200

5 pok.

Sprzedam dom szeregowy. 200 m.kw. Stan techniczny idealny. Nieruchomość własna, bez obciążeń. Wszystkie media. Osiedle zamykane: brama, szlaban.

Zobacz ogłoszenie
20
dom wolnostojący, 7 pokoi Wrocław Oporów, ul. Jana Ostroroga

1 750 000

170

7 pok.

Na sprzedaż niezwykły, przedwojenny dom położony w jednej z najbardziej cenionych i zielonych dzielnic Wrocławia - na Oporowie. To propozycja dla osób szukających nieruchomości z charakterem, solidną konstrukcją i dużym potencjałem aranżacyjnym. Dom usytuowany jest na działce o powierzchni 467 m². P...

Zobacz ogłoszenie