Dom na sprzedaż bez pośredników
Wysoki Kościół  

dom wolnostojący, 4 pokoje Wysoki Kościół. Zdjęcie 1

Dom na sprzedaż bez pośredników Wysoki Kościół

1 299 000
10 392 zł/m²
125
4 pok.
Wysoki Kościół - lokalizacja przybliżona
Bezpośrednio od właściciela

Jeśli nie potrzebujesz pośrednika, zaoszczędzisz około 39 000 zł. Potrzebujesz wsparcia? Skorzystaj z pomocy agenta.

Dzień dobry,

Oferuję na sprzedaż nowoczesny, wolnostojący dom w stanie deweloperskim wraz z garażem dwustanowiskowym, wolnostojącym, położony na Wzgórzach Trzebnickich z pięknym widokiem na okolice oraz Wrocław.

Dom budowany prywatnie, przez 3 lata, ze starannością i bez pośpiechu, na narożnej działce o powierzchni 1137 m2.
Budynek oraz garaż bardzo dobrze docieplony, co będzie miało wpływ na wysokość rachunków za ogrzewanie. Dom ogrzewany pompą ciepła wraz z podłogówką. We wszystkich oknach elektryczne rolety antywłamaniowe. Przygotowana instalacja elektryczna pod klimatyzację oraz instalację fotowoltaiczną.
Na poddaszu istnieje możliwość wydzielenia dodatkowych pomieszczeń mieszkalnych oraz łazienki.

Położenie:
- Wysoki Kościół
- 15 km od centrum handlowego Marino we Wrocławiu,
- 6 km od centrum Trzebnicy

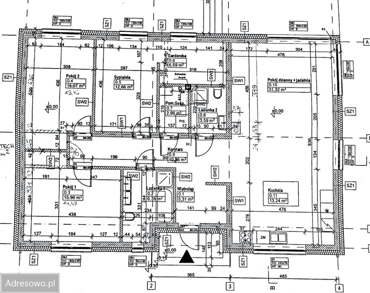
Powierzchnia:
- dom 125 m2
- 3 sypialnie (13,42 m2; 14,49 m2; 12,66 m2 połączona z garderobą 6,59 m2)
- otwarta na salon kuchnia (13,24 m2)
- salon z kominkiem (31,32 m2)
- łazienka (6,76 m2)
- łazienka (3,59 m2)
- garderoba (2,96 m2)
- przedpokój (5,31 m2)
- pomieszczenie gospodarcze
- poddasze (możliwość wydzielenia 2 sypialni i toalety)
- garaż ok 40 m2
- działka 1137 m2

Media:
- kanalizacja
- prąd
- woda
- Internet

Zapraszam do kontaktu.

  • Oferta z rynku pierwotnego
  • Wysoki Kościół, gmina Wisznia Mała, powiat trzebnicki  
  • Na sprzedaż dom wolnostojący o powierzchni 125 m², 4 pokoje wybudowany w 2024 roku
  • Sizing Streamline Icon: https://streamlinehq.com
    Działka 1 137 m²  
  • Budynek w stanie do wykończenia  
  • Garaż  
  • Ogrzewanie pompa ciepła
  • Materiał budowy pustak
  • Dach dachówka
  • Okna plastikowe
  • Dojazd utwardzony
  • Media woda, kanalizacja, prąd
  • Wyposażenie klimatyzacja
  • Oferta bezpośrednio od właściciela dodana ponad miesiąc temu i zaktualizowana ponad tydzień temu
Ta nieruchomość może być Twoja od.. sprawdź
260000 zł (20%) Okres spłaty: 30 lat

Podobne domy na sprzedaż

20
dom wolnostojący, 7 pokoi Żmigród, ul. Kwiatowa

1 280 000

168

7 pok.

Gotowy do zamieszkania dom wielorodzinny / wielopokoleniowy z ogrodem, oczkiem wodnym i możliwością prowadzenia nieuciążliwej działalności Szukasz domu, który nie wymaga remontu, jest zadbany w każdym detalu i oferuje przestrzeń dla całej rodziny? Ta nieruchomość łączy funkcjonalność komfortowego ...

Zobacz ogłoszenie
20
bliźniak, 5 pokoi Księginice, ul. Trzebnicki Raj

1 230 000

146

5 pok.

Na sprzedaż dom w zabudowie bliźniaczej o powierzchni 146 m2, zlokalizowany na zamkniętym osiedlu w Księginicach, ul. Trzebnicki Raj. Osiedle położone jest blisko centrum Trzebnicy, około 20-30 minut spacerem oświetloną ścieżką pieszo - rowerową. W przeciwnym kierunku oświetlona ścieżka pieszo - row...

Zobacz ogłoszenie
20
dom wolnostojący, 4 pokoje Pęgów, ul. Adama Mickiewicza

1 249 000

146

4 pok.

Na sprzedaż przestronny i funkcjonalny dom o powierzchni 146 m², położony w miejscowości Pęgów (woj. dolnośląskie), na działce o powierzchni 10 arów. Dom przeszedł generalny remont i jest gotowy do zamieszkania bez dodatkowych nakładów finansowych. W skład powierzchni wchodzi również garaż oraz ko...

Zobacz ogłoszenie
20
bliźniak, 5 pokoi Rogoż, ul. Kalinowa

999 000

122

5 pok.

Nowy dom dla rodziny z dużą, 500-metrową działką - tylko 6 km od Wrocławia. Nieruchomość znajduje się w miejscowości Rogoż (gmina Wisznia Mała) ul. Kalinowa na kameralnym osiedlu nowej zabudowy jednorodzinnej. Dom jest już wybudowany i znajduje się w bardzo zaawansowanym etapie realizacji. Planow...

Zobacz ogłoszenie
8
dom wolnostojący Wilczyn

1 290 000

100

Dzień dobry, Sprzedam dom pod Wrocławiem w miejscowości Wilczyn. Dom położony na działce 1000 m2. • 20 km od Wrocławia i 4 km od Obornik Śląskich, w których jest wszystko, co potrzebne do życia. • Dom położony pod lasem, za oknem nic nie zasłania pięknego widoku. • Cisza i spokój, a jednocześnie ...

Zobacz ogłoszenie
15
dom wolnostojący, 5 pokoi Wysoki Kościół, ul. Parkowa

1 090 000

124

5 pok.

NOWOCZESNY DOM W STANIE DEWELOPERSKIM 124 m² - WYSOKI KOŚCIÓŁ Oferuję na sprzedaż nowoczesny, wolnostojący dom w stanie deweloperskim, położony w malowniczej wsi Wysoki Kościół (gm. Wisznia Mała), na terenie urokliwych Wzgórz Trzebnickich. Dom parterowy z wysokim użytkowym poddaszem został indywid...

Zobacz ogłoszenie