Nieruchomość komercyjna na sprzedaż
ul. Wałbrzyska Wrocław Krzyki

Biuro Wrocław Krzyki, ul. Wałbrzyska. Zdjęcie 1
Biuro Wrocław Krzyki, ul. Wałbrzyska. Zdjęcie 2
Biuro Wrocław Krzyki, ul. Wałbrzyska. Zdjęcie 3

Nieruchomość komercyjna na sprzedaż Wrocław Krzyki ul. Wałbrzyska

874 000
7 600 zł/m²
115
Wrocław Krzyki, Wałbrzyska - lokalizacja przybliżona

Właściciel powierzył sprzedaż nieruchomości pośrednikowi. Możesz zadzwonić lub napisać do agenta za darmo.

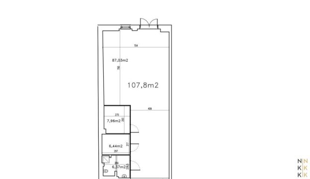
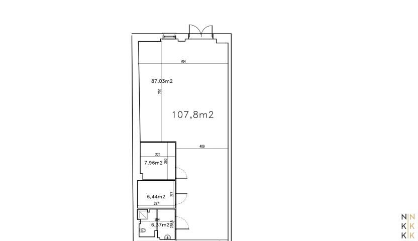
Na sprzedaż lokal użytkowy o powierzchni 115 m, zlokalizowany na południu Wrocławia w dzielnicy Klecina.

Lokal znajduje się na parterze, wejście do lokalu bezpośrednio z ulicy. Rozliczenie mediów według zużycia.

Układ:
- open space
- toaleta
- zaplecze socjalne
- pomieszczenie biurowe (bez okna)

Nieruchomość idealna pod działalność biurową, handlową, usługową, magazynową.

Do lokalu przynależą dwa miejsca postojowe przed budynkiem.

W ofercie dostępne są również inne lokale i powierzchnie użytkowe, które można połączyć ze sobą lub z halą, tworząc spójną przestrzeń do prowadzenia działalności.

Cena: 874 000 netto

Lokalizacja: Nieruchomość położona jest w południowej części Wrocławia
W bezpośrednim sąsiedztwie znajdują się firmy z branży logistycznej, handlowej, budowlanej i technologicznej, a także punkty usługowe.
Dojazd samochodem jest szybki i wygodny dzięki bliskości głównych tras: ul. Karkonoskiej, autostrady A4 i AOW (Autostradowa Obwodnica Wrocławia). W niedalekiej odległości znajdują się przystanki autobusowe, które umożliwiają sprawną komunikację z pozostałymi częściami miasta.
Zapraszam na prezentację!
Aleksandra Urbaniak
[numer]

Treść niniejszego ogłoszenia nie stanowi oferty handlowej w rozumieniu Kodeksu Cywilnego.

  • ul. Wałbrzyska, Wrocław Krzyki  
  • Na sprzedaż biuro o powierzchni 115 m²  
  • Ogłoszenie biura nieruchomości  
  • Oferta dodana dodana dzisiaj
Ta nieruchomość może być Twoja od.. sprawdź
175000 zł (20%) Okres spłaty: 30 lat

Podobne nieruchomości komercyjne na sprzedaż

6
Biuro Wrocław Krzyki, ul. Wałbrzyska

705 000

96

Nowe

Na sprzedaż lokal użytkowy o powierzchni 96 m, zlokalizowany na południu Wrocławia w dzielnicy Klecina. Lokal znajduje się na 2 piętrze budynku, wejście do lokalu z klatki schodowej (bez windy). Nieruchomość wymaga odświeżenia, pomieszczenia wyposażone w klimatyzację. Brak czynszu administracyjnego...

Zobacz ogłoszenie
10
Lokal Wrocław Krzyki, ul. Krakowska

799 000

82

Oferujemy na sprzedaż atrakcyjny lokal użytkowy, zlokalizowany na parterze nowoczesnego budynku apartamentowo-usługowego z 2020 roku. Lokal położony przy ul. Krakowskiej 39A we Wrocławiu, w doskonałym punkcie komunikacyjnym. Nieruchomość znajduje się w odległości ok 3 km od centrum miasta. Cena: 79...

Zobacz ogłoszenie
9
Lokal Wrocław Krzyki, al. Armii Krajowej

980 000

100

Przedmiotem sprzedaży są dwa połączone lokale usługowe znajdujące się we Wrocławiu przy ul. Armii Krajowej (Centrum AB). Oba lokale mają powierzchnię po 50,200 m2. Obecnie lokale są połączone, ale istnieje możliwość wyodrębnienia dwóch lokali niezależnych z uwagi na wejście z 2 stron budynku. ...

Zobacz ogłoszenie
9
Lokal Wrocław Krzyki, ul. Tadeusza Kościuszki

985 000

95

Sprzedam lokal użytkowy za cenę 985000 zł do dobrej negocjacji, czekam na propozycję -sprzedaż lokalu z możliwym przeznaczeniem na gabinet lakarski, biuro, sklep i inne - lokal w podwyższonym standardzie poprzedni najemcy bank, biuro finansowe, sklep - lokalizacja -WROCŁAW ul. Kościuszki 163 , dzie...

Zobacz ogłoszenie
18
Biuro Wrocław Krzyki, ul. Hubska

950 000

77

Nowe

Na sprzedaż atrakcyjny lokal biurowy w doskonale skomunikowanej części miasta - Krzyki przy ul. Hubskiej 52 w budynku Hotelu INVITE - Lokal aktualnie znajduje się w takim stanie, jak widać na zdjęciach, bez najemców, gotowy do sprzedaży i szybkiego rozpoczęcia działalności po zakupie. - powierzchn...

Zobacz ogłoszenie
9
Lokal Wrocław Krzyki, al. Armii Krajowej

885 000

46

(English version below) Oferujemy na sprzedaż atrakcyjny lokal usługowy o powierzchni 46 m², zlokalizowany przy al. Armii Krajowej 6c we Wrocławiu, w Centrum AB. To doskonała oferta zarówno dla inwestorów (pewna gwarancja ciągłości najmu), jak i przedsiębiorców poszukujących idealnej przestrzeni na...

Zobacz ogłoszenie