Ogłoszenie usunięte

Kraków Krowodrza
ul. Batalionu "Skała" AK
2-pokojowe mieszkanie na sprzedaż Bez pośrednika

Kraków Krowodrza · 349 000 zł

Ogłoszenie właściciela - bez pośredników

Mieszkanie 2-pokojowe Kraków Krowodrza, ul. Batalionu "Skała" AK. Zdjęcie 1
Mieszkanie 2-pokojowe Kraków Krowodrza, ul. Batalionu "Skała" AK. Zdjęcie 1

Bez pośrednika. Oszczędzasz 10 500 zł na prowizji pośrednika!

Sprzedam bardzo ustawne, niewielkie mieszkanie zlokalizowane na IV piętrze (z X.) bloku przy ul. Batalionu „Skała” AK 6 tuż przy Parku Krowoderskim w Krakowie.

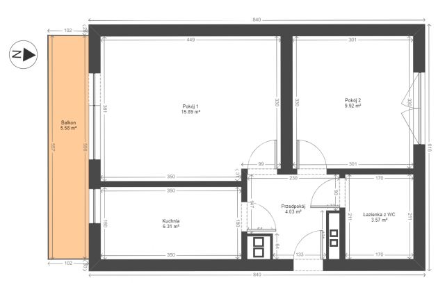
Lokal ma dokładnie 39,5m2 i składa się z:
- duży pokój – 15,9m2
- pokój – 9,9m2
- kuchnia – 6,3m2
- przedpokój – 4m2
- łazienka z WC – 3,6m2

Wymiary są przybliżone.
Mieszkanie nadaje się do remontu. Okna PCV, drzwi drewniane.
Ogrzewanie miejskie, woda ciepła gaz (w kuchni terma). Ekspozycja okien: duży pokój i kuchnia – południe, mały pokój - północ. Budynek ocieplony, dziesięciopiętrowy. Mieszkanie stanowi odrębną własność (księga wieczysta – czysta).

Okolica:
Bardzo przyjemna do życia okolica z dobrą infrastrukturą handlowo – usługową oraz świetną komunikacją. Nieopodal znajduje się pętla tramwajowa i autobusowa – Krowodrza Górka. Przystanki autobusowe znajdują się również obok bloku. Zmotoryzowani docenią możliwość łatwego dostępu do centrum jak również swobodnego wyjazdu na Olkusz czy Katowice.

Koszty:
Administracja: ok 300zł/mc
Prąd i gaz: wg zużycia
Cena: 349 000zł

Zapraszam!

Pośredników zapraszam do kontaktu z konkretnym klientem. Płacę prowizję.

Ogłoszenie nie stanowi oferty w rozumieniu przepisów KC.

  • Na sprzedaż mieszkanie 2-pokojowe o powierzchni 39,50 m²
  • 4 piętro w 10-piętrowym bloku z windą z 1970 roku
  • Kraków, Krowodrza, ul. Batalionu "Skała" AK
  • Balkon, piwnica, osobna kuchnia
  • Mieszkanie w stanie do remontu, okna plastikowe
  • Odrębna własność z księgą wieczystą
ponad miesiąc temu
9
Mieszkanie 1-pokojowe Kraków Krowodrza, al. Juliusza Słowackiego

Kraków Krowodrza al. Juliusza Słowackiego Mieszkanie na sprzedaż

1 pokój 28 5 piętro Bez pośrednika
474 000
16 989 zł / m²
ponad tydzień temu
8
Mieszkanie 1-pokojowe Kraków Swoszowice, ul. Kolejarzy

Kraków Swoszowice ul. Kolejarzy Mieszkanie na sprzedaż

1 pokój 28 parter Bez pośrednika
360 000
12 857 zł / m²
7
Mieszkanie 2-pokojowe Kraków Krowodrza, ul. Żabiniec

Kraków Krowodrza ul. Żabiniec Mieszkanie na sprzedaż

2 pokoje 48 1 piętro Bez pośrednika
zapytaj o cenę
ponad miesiąc temu
13
Mieszkanie 1-pokojowe Kraków Krowodrza

Kraków Krowodrza Mieszkanie na sprzedaż

1 pokój 29 2 piętro Bez pośrednika
453 000
15 713 zł / m²
ponad miesiąc temu
7
Mieszkanie 2-pokojowe Kraków Grębałów, ul. Grębałowska

Kraków Grębałów ul. Grębałowska Mieszkanie na sprzedaż

2 pokoje 29 parter Bez pośrednika
360 000
12 414 zł / m²